Advertorial

Okná Internorm za minuloročné ceny + hliníkový kryt zdarma!

Využite špeciálnu akciu Internorm: okná za minuloročné ceny a hliníkový kryt úplne zadarmo. Ponuka je časovo obmedzená!

Pozvánka na 2. ročník stavebného veľtrhu BigMarket na Slovensku

Na podujatí sa predstaví až 37 vystavovateľov - popredných dodávateľov stavebných materiálov a inovácií s prezentáciou...

Moderné plynové technológie: Efektivita a inovácie pre 21. storočie

Sumarizácia najdôležitejších inovácií, ktoré redefinujúcich využitie tohto energetického zdroja.

Utesňovanie spodných stavieb pomocou hydro-aktívnej fólie AMPHIBIA.

AMPHIBIA 3000 GRIP 1.3 od spoločnosti ATRO predstavuje modernú hydroizolačnú technológiu, ktorá spája vysokú odolnosť,...

Dekarbonizácia individuálneho vykurovania domácností – Green Deal evolučne a nie revolučne

Ambiciózne plány EK narazili na ekonomické možnosti domácností v jednotlivých členských štátoch –...

Minimalistické dvere IDEA – technická precíznosť a čistota prevedenia

IDEA DOOR od spoločnosti JAP prináša do interiéru čistý minimalistický vzhľad vďaka bezrámovému riešeniu a precíznej...

Dom s výhľadom na údolie, Dlouhý Most (ČR)

Kontinuita riešenia od vonkajšieho obkladu až po kovania a kľučky.

Schell Vitus – osvedčené riešenie pre sprchy a umývadlá vo verejnom sektore s viac ako desaťročnou tradíciou

Nástenné nadomietkové armatúry Vitus sú mimoriadne vhodné pre rýchlu a efektívnu...

Kompozitné okná predstavujú súčasnosť a budúcnosť

Okenné profily z kompozitného materiálu RAU-FIPRO X od spoločnosti Rehau sú v porovnaní s tradičnými plastovými profilmi mnohonásobne...

Myotis - stoly 2025

Najnovší sortiment stolov pre zariadenie interiérov...

Priemyselné sklenené priečky Dorsis Digero: svetelné rozhranie pre moderné interiéry

Spojenie moderného dizajnu, funkčnosti a svetla do harmonického architektonického prvku.

Význam prirodzeného svetla pre moderné a flexibilné pracovné prostredie

Kancelárska budova Baumit v slovinskom Trzine prešla premenou na moderné a udržateľné pracovisko. Architekti kládli dôraz...

Konferencia Xella Dialóg predstaví novinky a trendy v stavebníctve

Mottom šiesteho ročníku on-line konferencie odborníkov Xella Dialóg je Efektívny návrh budov 2025+: zmeny a riešenia

Murovací robot WLTR stavia svoj prvý dom na Slovensku

Robot WLTR predstavuje moderný prístup k murovaným konštrukciám. Vďaka automatizácii dokáže rýchlo, presne a bezpečne realizovať...

Nová éra bezpečnosti s I-tec Secure od Internorm

Okrem bezpečnosti majú okná aj elegantný vzhľad, pretože nie sú viditeľné žiadne uzamykacie časti kovania.

Viac než sa zdá - bývanie v storočnom pražskom bytovom dome

Čo môže ponúknuť priemerne veľký mestský byt?
Diela
Red 329.04.2025
15020+13
Viac než sa zdá - bývanie v storočnom pražskom bytovom dome
Autori: MgA. Jakub Filip Novák, Mgr. MgA. Daniela Nováková Baráčková, Ing. arch. Veronika Amiridis MenichováPodlažná plocha: 82 m²Návrh: 2023 - 2024Realizácia: 2024 - 2025Adresa: Praha, Česká republikaPublikované: 29. apríl 2025

Ateliér No Architects stál pred neľahkým zadaním. Ako vtesnať komplikovaný lokalitný program s množstvom funkcií do limitovaného priestoru, ktorý je navyše zásadne limitovaný nosnými stenami trojtraktovej dispozície? Realizáciu, ktorá je ich odpoveďou na túto otázku predstavia  samotní autori:

Statisticky průměrná velikost českého bytu dle sčítání lidu v roce 2021 je 86,7 metrů čtverečních. Takový byt prý pak svým obyvatelům poskytuje průměrně 2,9 obytných místností a kuchyni. Zbylé prostory jako chodby, koupelny a toalety jsou pak považovány za průchozí, servisní prostory. Co kdyby tomu tak ale nebylo? Co kdybychom nad všemi částmi bydlení přemýšleli jako nad rovnocennými prostory? Co kdybychom potřebné provozy organicky propojili i za cenu atypických situací? Lze najít harmonii mezi naplněným využitím, úložnými prostoty, denním světlem, větráním a neztratit velkorysost, originalitu a svébytný charakter?

Vzali jsme průměrný byt a zaměřili se na maximalizaci jeho obytného potenciálu. A vzniklo toho víc, než se zdá na první pohled. Bydlení zahrnuje po rekonstrukci stavební program blížící se spíše rodinnému domu. Na svých dokonce podprůměrných dvaaosmdesáti metrech čtverečních užitné plochy nabízí s trochou nadsázky až 11+kk. A sice vstupní halu s denním světlem, dlouhou centrální chodbu s posezením, dva dětské pokoje s komfortním spaním pro tři děti, dvě koupelny, samostatnou toaletu s úložnými prostory, kuchyni se stolováním až pro osm osob a obývací pokoj s knihovnou, za jejíž rozměry by se nemusel stydět žádný intelektuál, pracovní kout, rodičovskou ložnici a domácí saunu, díky které rodina přestala přes zimu stonat. A samozřejmě též příruční šatnu, sklad a prádelnu v jednom. To vše za vstupními dveřmi průměrně velkého bytu ve stoletém bytovém domě, jakých jsou v Česku tisíce. Přes tak nasycenou náplň se však se nejedná o bezduché skladiště s chodbami, náš návrh nerezignuje na snahu o velkorysost a poctivý detail. Na poetiku, bez které je každá stavba jen pouhou investicí.

Architekti vědí, že pro bytové domy není větší neštěstí, než troj trakt. Tedy celkem čtyři nosné stěny formující troje prostory, dva s okny – podél fasády a jednoho otloukánka uprostřed, bez přístupu k dennímu světlu a čerstvému vzduchu. Bez flexibility prostupů, průhledů, pohybu. A přesně takový troj trakt byl na začátku naší práce. Velká, ale černočerná předsíň bez oken. Se vstupem ze studené a tmavé podesty domovního schodiště. Předsíň, kde snadno našlapete bláto při vstupu a pak jej celý den roznášíte do pokojů, které jsou na ni navěšeny kolem dokola. Pokoje buď příliš velké, nebo zas příliš malé. A přitom jich nebylo tolik, kolik jsme potřebovali pro uspokojení potřeb nových obyvatel, mladé rodiny s dětmi.

Začali jsme nejprve paradoxně plýtváním místem. Vložili jsme doprostřed dispozice zcela nově dlouhý komunikační prostor, dokonce delší, než jsme potřebovali a na jeho koncích jej zaoblili a opatřili přisednutím a úložnými prostory. Od domovní chodby jsme pak byt pro pocit intimity a z hygienických důvodů odclonili vstupní halou, do které jsme pustili denní světlo jednak přímo přes kuchyňskou linku, ale i přes velkorysou prosklenou stěnu. Dětské pokoje jsme orientovali do dvora, rodičovskou ložnici a pracovní kout do ulice. Kuchyni dominuje uvítací okénko do haly, ale především velký kulatý stůl. Obývací prostor je tu vyvýšen na podium k oknu a usazen mezi dvojici knihoven. Pro případné návštěvy nebo lenošení poskytuje možnost rozložit na velké letiště. Rodičovská koupelna a sauna poskytuje přímo hotelový komfort. Bydlení je posazeno na dubové podlaze oděno do odstínů bílé a béžové s péčí o jemný detail. Celek podtrhuje světlá zubatá linie nízkého dřevěného obkladu – ve skutečnosti monumentálního soklu, zapuštěného do stěn a volně přecházející na nábytek a zpět.

Okénko mezi halou a kuchyní nabízí také jeden speciální efekt. Když se zavřou posuvné dveře do kuchyně, tak při zakrytí okna černým papírem s malým otvorem ve středu je zde možné provozovat cameru obscuru – dírkovou komoru, předchůdce fotoaparátů a zrcadlového promítání.

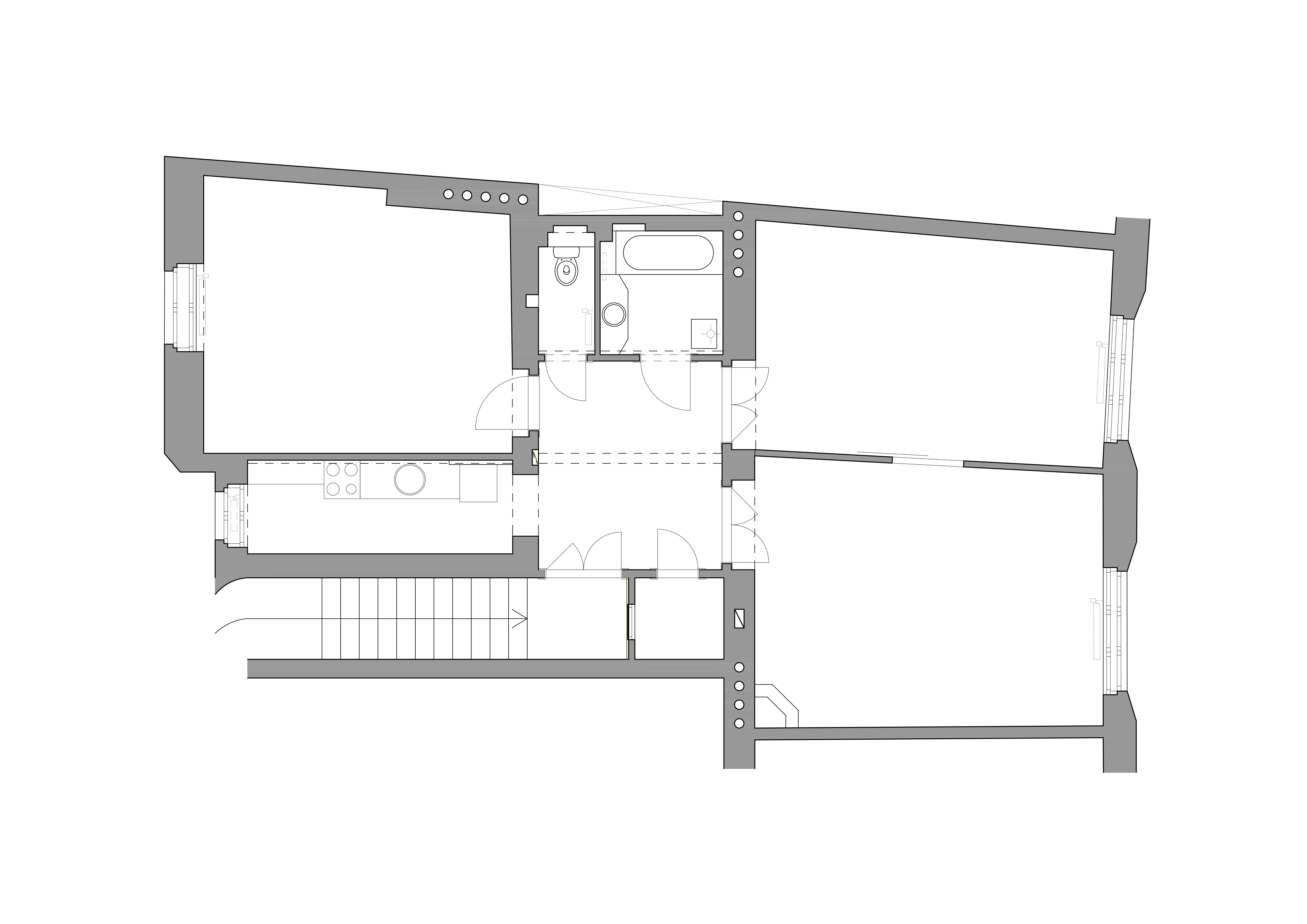
Pôdorys - pôvodný stav
Pôdorys - pôvodný stavAutor: No Architects
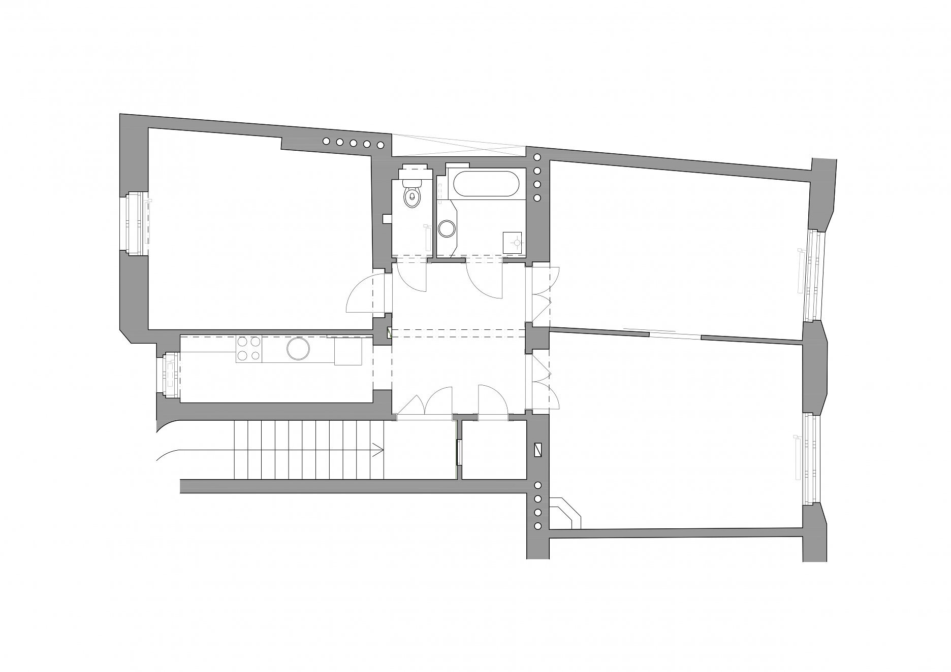
Pôdorys - návrh
Pôdorys - návrhAutor: No Architects
Foto: Studio Flusser
Foto: Studio Flusser
Foto: Studio Flusser
Foto: Studio Flusser
Foto: Studio Flusser
Foto: Studio Flusser
Foto: Studio Flusser
Foto: Studio Flusser
Foto: Studio Flusser
Foto: Studio Flusser
Foto: Studio Flusser
Foto: Studio Flusser
Foto: Studio Flusser
Foto: Studio Flusser
Foto: Studio Flusser
Foto: Studio Flusser
Foto: Studio Flusser
Foto: Studio Flusser
Foto: Studio Flusser
Foto: Studio Flusser
Foto: Studio Flusser
Foto: Studio Flusser
Foto: Studio Flusser

Materiály: 

  • dubové parkety
  • keramické obklady a dlažby
  • stolárske výrobky – lakovaná MDF, dubová dyha a masív
  • umelý kameň
  • textilné čalúnenie
  • zámočnícke a sklo – presklená stena

Autor: No Architects
Podklady: Linka
Fotografie: Studio Flusser 

Poloha diela

MgA. Jakub Filip Novák
Mgr. MgA. Daniela Nováková Baráčková
Ing. arch. Veronika Amiridis Menichová
Vložené
28. apríl 2025
0
1502
Hlavný obsahHlavný obsah
Čakajte prosím