Advertorial

Pozvánka na 2. ročník stavebného veľtrhu BigMarket na Slovensku

Na podujatí sa predstaví až 37 vystavovateľov - popredných dodávateľov stavebných materiálov a inovácií s prezentáciou...

Hotel Hirschen Spa House, Rakúsko

Novotvar v prostredí alpskej obce.

Vytvorte si kúpeľňu snov: dizajnové riešenie od značky hansgrohe

Hansgrohe - prémiová značka kúpeľňových riešení, ponúka nadčasový dizajn, technickú precíznosť a udržateľné inovácie...

Okná Internorm za minuloročné ceny + hliníkový kryt zdarma!

Využite špeciálnu akciu Internorm: okná za minuloročné ceny a hliníkový kryt úplne zadarmo. Ponuka je časovo obmedzená!

Moderné plynové technológie: Efektivita a inovácie pre 21. storočie

Sumarizácia najdôležitejších inovácií, ktoré redefinujúcich využitie tohto energetického zdroja.

Utesňovanie spodných stavieb pomocou hydro-aktívnej fólie AMPHIBIA.

AMPHIBIA 3000 GRIP 1.3 od spoločnosti ATRO predstavuje modernú hydroizolačnú technológiu, ktorá spája vysokú odolnosť,...

Dekarbonizácia individuálneho vykurovania domácností – Green Deal evolučne a nie revolučne

Ambiciózne plány EK narazili na ekonomické možnosti domácností v jednotlivých členských štátoch –...

Minimalistické dvere IDEA – technická precíznosť a čistota prevedenia

IDEA DOOR od spoločnosti JAP prináša do interiéru čistý minimalistický vzhľad vďaka bezrámovému riešeniu a precíznej...

Dom s výhľadom na údolie, Dlouhý Most (ČR)

Kontinuita riešenia od vonkajšieho obkladu až po kovania a kľučky.

Schell Vitus – osvedčené riešenie pre sprchy a umývadlá vo verejnom sektore s viac ako desaťročnou tradíciou

Nástenné nadomietkové armatúry Vitus sú mimoriadne vhodné pre rýchlu a efektívnu...

Kompozitné okná predstavujú súčasnosť a budúcnosť

Okenné profily z kompozitného materiálu RAU-FIPRO X od spoločnosti Rehau sú v porovnaní s tradičnými plastovými profilmi mnohonásobne...

Myotis - stoly 2025

Najnovší sortiment stolov pre zariadenie interiérov...

Priemyselné sklenené priečky Dorsis Digero: svetelné rozhranie pre moderné interiéry

Spojenie moderného dizajnu, funkčnosti a svetla do harmonického architektonického prvku.

Význam prirodzeného svetla pre moderné a flexibilné pracovné prostredie

Kancelárska budova Baumit v slovinskom Trzine prešla premenou na moderné a udržateľné pracovisko. Architekti kládli dôraz...

Konferencia Xella Dialóg predstaví novinky a trendy v stavebníctve

Mottom šiesteho ročníku on-line konferencie odborníkov Xella Dialóg je Efektívny návrh budov 2025+: zmeny a riešenia

Boleslavova 3, Praha

Prestavba pavlačového domu v pražskej štvrti Nusle.
Diela
Red 306.03.2025
9590+35
Boleslavova 3, Praha
Autori: Ing. arch. Petra Ciencialová, Ing. arch. Kateřina Průchová, Tereza ThérováInvestor: Castle Rock InvestmentsPodlažná plocha: 780 m²Návrh: 2023 - 2023Realizácia: 2024 - 2024Adresa: Jánský vršek 323/13, Praha, Česká republikaPublikované: 6. marec 2025

Prestavba domu z prelomu 19. a 20. storočia vytvorila priestor pre bývanie prispôsobené súčasným požiadavkám trhu. Zachovala pri tom kvality pôvodnej stavby.

Pôdorys umožnil vznik 15 rôznorodých bytových jednotiek s výhľadom do Nuselského údolia. Nové zásahy najviditeľnejšie reprezentuje netradičná farebnosť, ktorá plynie naprieč celým domom.

Pavlačový dom

Pavlače, ktoré v minulosti slúžili ako spoločné otvorené chodby so vstupmi do bytov, v súčasnosti preberajú funkciu balkónov. Charakteristický vzhľad vnútrobloku dotvára klenutý strop pavlačí, ktorého štruktúru zjemňuje keramická šachová dlažba a subtílne kované zábradlia. Dvor, prístupný všetkým obyvateľom domu, dopĺňajú udržiavané predzáhradky patriace k prízemným bytom. Sedlovú strechu pokrytú betónovými škridlami otvárajú veľkorysé ateliérové okná.

Spoločné priestory

Dôraz bol pri návrhu kladený na zdieľané priestory, ktorých podoba mala v minulosti pri mestských bytových domoch reprezentatívny charakter. Rovnaký princíp autori uplatnili aj v súčasnosti - zachovali ich pôvodné usporiadanie a čiastočne aj materiálové riešenie. Štukové omietky chodieb, ladené do odtieňov sivej a ružovej, čerpajú inšpiráciu z dobovej výmaľby – jej nepravidelné mapy voľne odkazujú na zdobné prvky starých pavlačových budov. V tmavšom tóne na ne nadväzujú kazetové vchodové dvere do jednotlivých bytov a poštové schránky z hnedej žíhanej dyhy. Podlahy chodieb kombinujú liatu stierku s maloformátovou dlažbou, lokálne vyskladanou pred vstupmi do bytov.

Schodisko

Dominantu zdieľaných priestorov tvorí pôvodné schodisko, ktorého kamenné stupne zostali zachované. Hrubý povrch stupňov vytvára atypický kontrast k výrazne farebným stenám chodieb a vstupným dverám bytov. Točité schodisko podčiarkuje subtílne líniové svietidlo, ktoré sa vinie naprieč všetkými podlažiami.

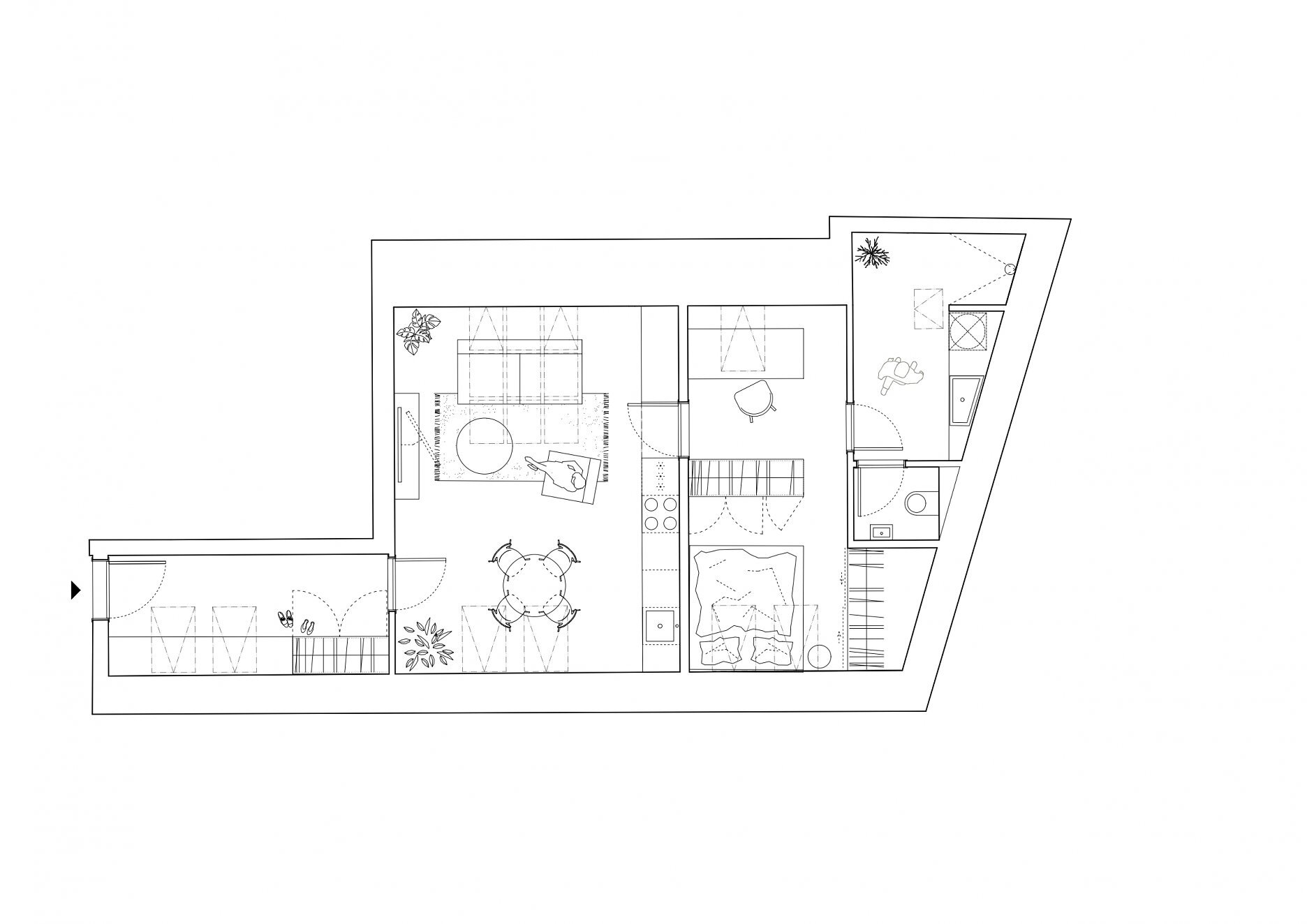
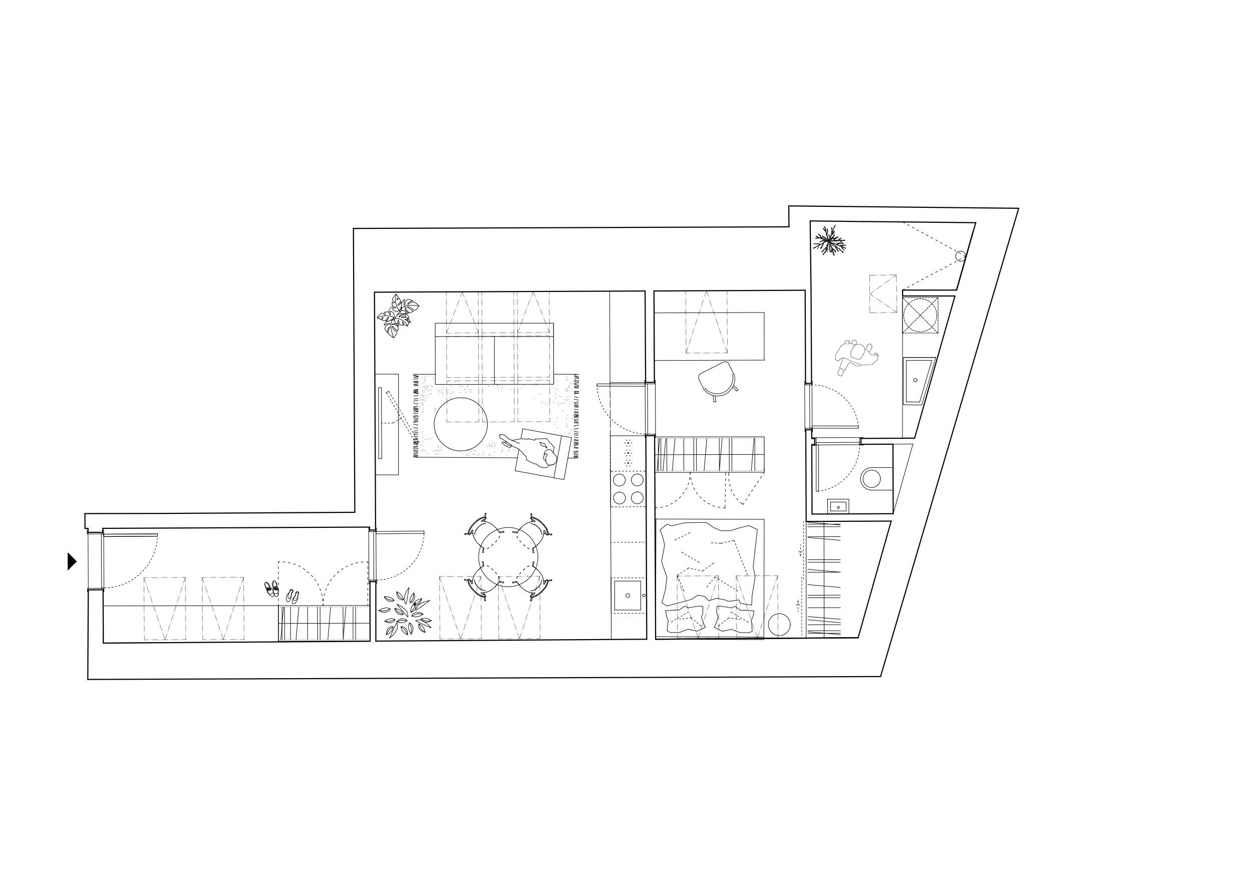
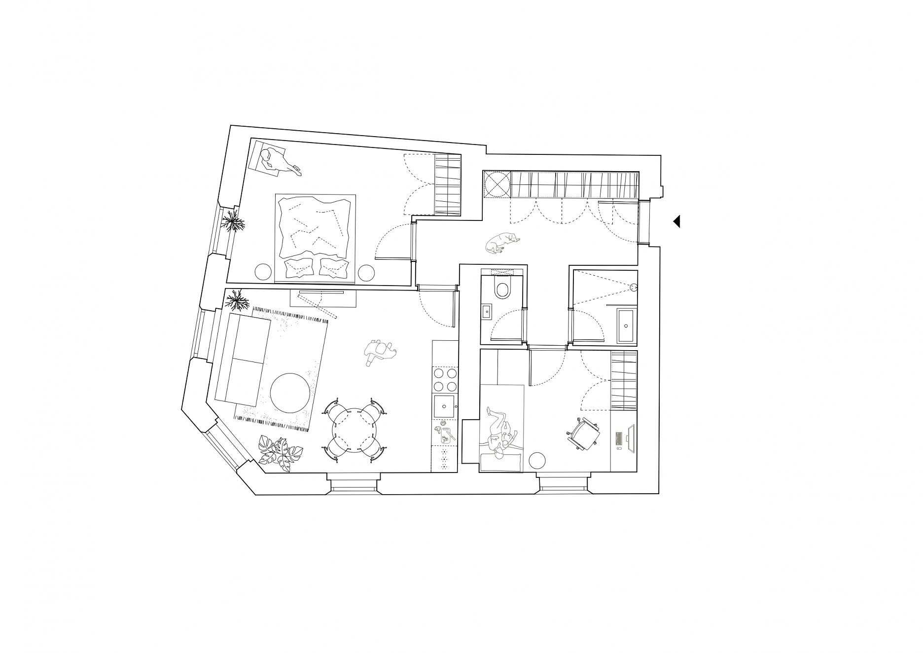
Dispozícia bytov

Všetky bytové jednotky sú jedinečné a neopakujú sa naprieč podlažiami. „Byty v prvním a druhém patře získaly pro dnešní dobu vhodnější dispozice, velkorysejší koupelny a některé i balkony. Vyztužení jejich stropů železobetonovými deskami posílilo statiku pater a zároveň do pokojů přibyl atraktivní vizuální prvek odhalených betonových stropů. Mezi prvním a druhým patrem se nachází také jediný mezonet s vlastním vchodem ze strany ulice. Nejvíce úprav si vyžádalo podkroví, kde jsme dříve půdní prostor rozdělili na čtyři byty různých velikostí. Velkou výzvou bylo vyvarovat se podhledům a naopak umístit maximum střešních oken i v místnostech, jako jsou koupelny. Kruhové světlíky nad jejich dveřmi pak přivádějí denní světlo i do vstupních chodeb. Přirozené osvětlení jsme u podkroví považovali za klíčovou hodnotu, ale podařilo se nám ho dostat i do místností v jiných patrech domu,“ popisuje dispozičné riešenie bytov architektka Kateřina Průchová.

Interiéry bytov

Nové dispozície bytov vytvorili vhodný rámec pre ich prispôsobenie individuálnym potrebám budúcich obyvateľov.

Všetky bytové jednotky spája jednotný štandard, zahŕňajúci laminátové podlahy s integrovaným elektrickým podlahovým vykurovaním a kúpeľne kombinujúce svetlé a zemité farby. Tie dopĺňajú vykurovacie rebríky a nové prvky sanity. V prízemných bytoch nájdeme zachované pôvodné konštrukčné prvky, ako sú valené klenby a niky, ktoré spolu s odhalenými betónovými stropmi podčiarkujú charakter historického domu.

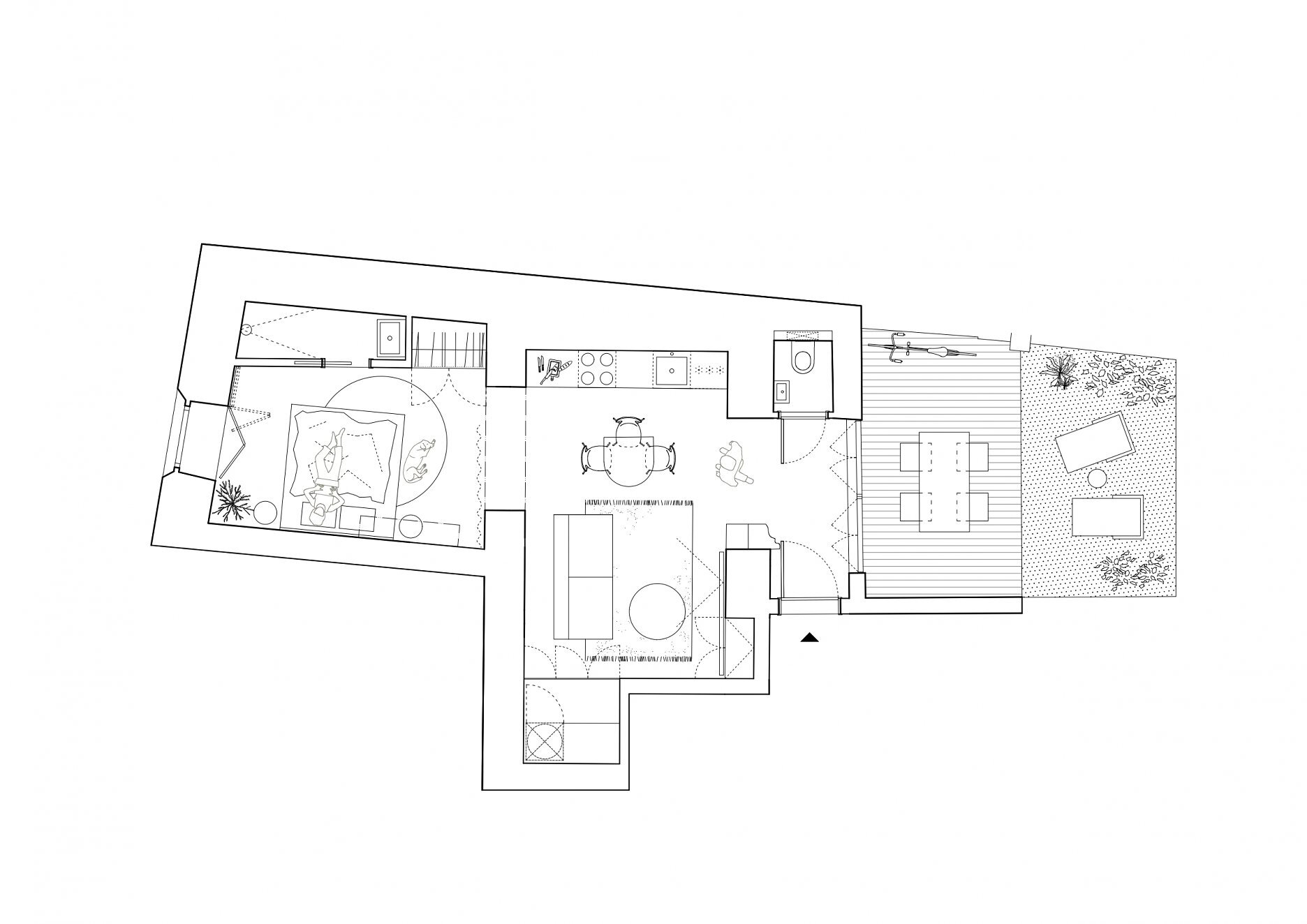
Vzorový byt na prízemí, realizovaný podľa návrhu ateliéru Plus One Architects, je vybavený nerezovou kuchyňou s červeno-ružovými glazovanými obkladmi a profilovanými okenicami, ktoré zabezpečujú súkromie a zároveň chránia interiér pred prehrievaním počas horúcich letných dní. Jediný mezonet v dome vyniká betónovým monolitickým schodiskom. Najvyššie podlažie je navyše vybavené klimatizačnými jednotkami.

Foto: BoysPlayNice
Foto: BoysPlayNice
Foto: BoysPlayNice
Foto: BoysPlayNice
Foto: BoysPlayNice
Foto: BoysPlayNice
Foto: BoysPlayNice
Foto: BoysPlayNice
Foto: BoysPlayNice
Foto: BoysPlayNice
Foto: BoysPlayNice
Foto: BoysPlayNice
Foto: BoysPlayNice
Foto: BoysPlayNice
Foto: BoysPlayNice
Foto: BoysPlayNice
Foto: BoysPlayNice
Foto: BoysPlayNice
Foto: BoysPlayNice
Foto: BoysPlayNice
Foto: BoysPlayNice
Foto: BoysPlayNice
Foto: BoysPlayNice
Foto: BoysPlayNice
Foto: BoysPlayNice
Foto: BoysPlayNice
Foto: BoysPlayNice
Foto: BoysPlayNice
Foto: BoysPlayNice
Foto: BoysPlayNice
Foto: BoysPlayNice
Foto: BoysPlayNice
Pôdorys 1. PP
Pôdorys 1. PPAutor: Plus One Architects
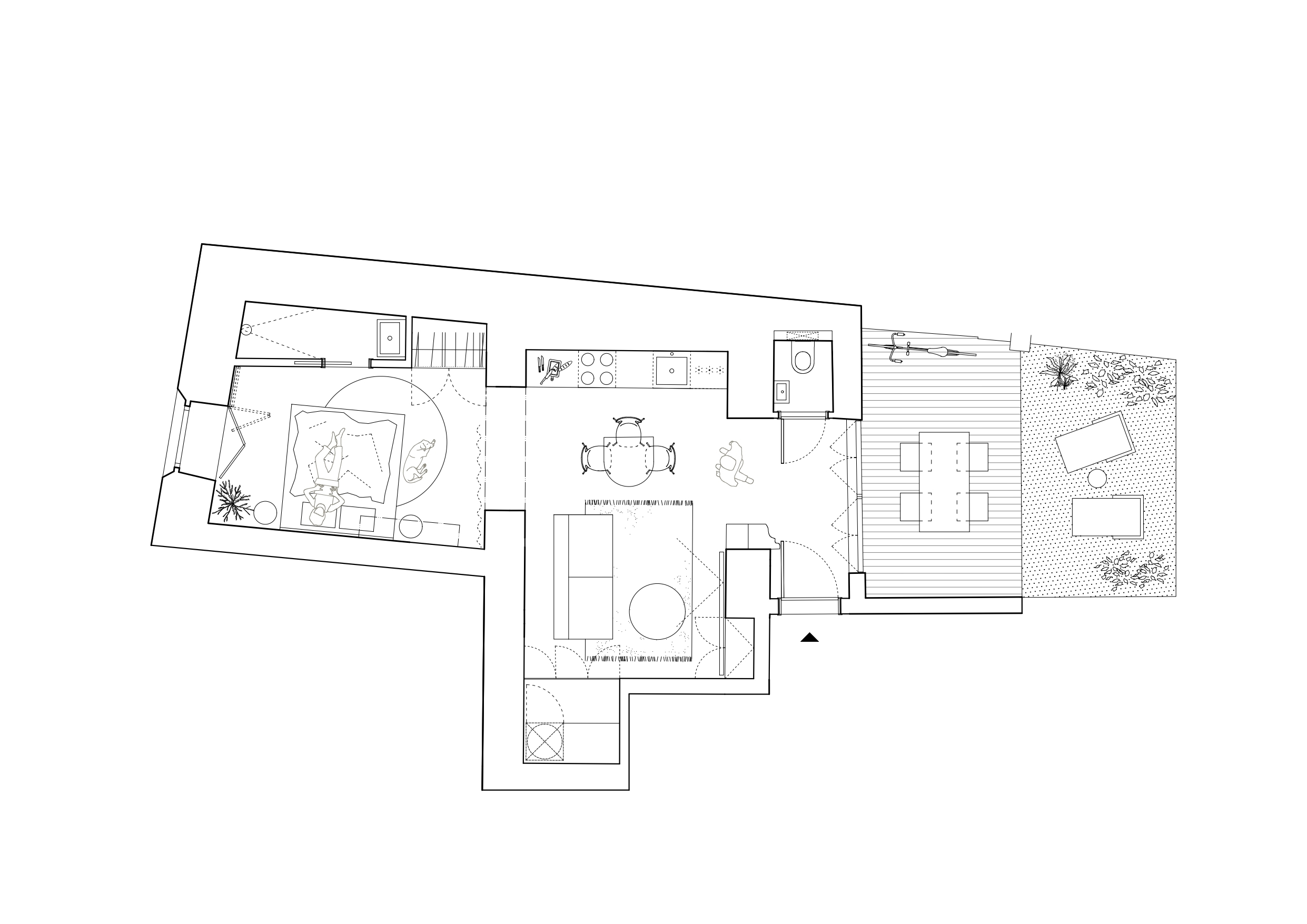
Pôdorys vzorového bytu na 1. PP
Pôdorys vzorového bytu na 1. PPAutor: Plus One Architects
Pôdorys 1. NP
Pôdorys 1. NPAutor: Plus One Architects
Pôdorys 2. NP
Pôdorys 2. NPAutor: Plus One Architects
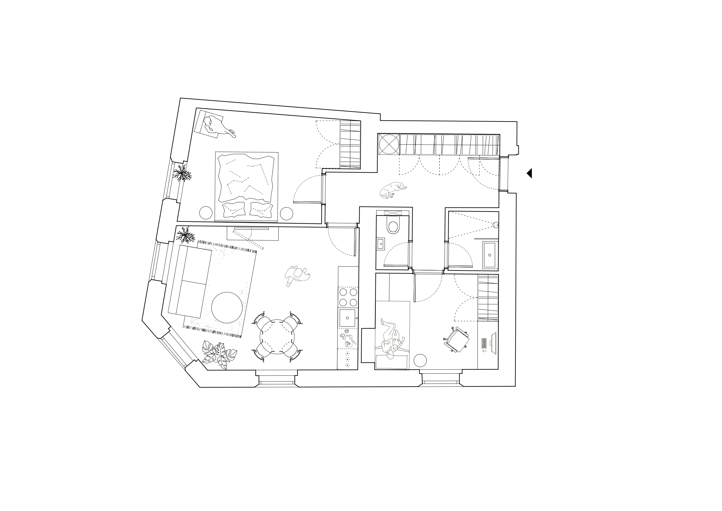
Pôdorys bytu na 2. NP
Pôdorys bytu na 2. NPAutor: Plus One Architects
Pôdorys bytu na 2. NP
Pôdorys bytu na 2. NPAutor: Plus One Architects
Pôdotrys 3. NP
Pôdotrys 3. NPAutor: Plus One Architects
Pôdorys bytu na 3. NP
Pôdorys bytu na 3. NPAutor: Plus One Architects

Materiály:

Podklady: LINKA
Autor: Plus One Architects
Fotografie: BoysPlayNice

Poloha diela

Ing. arch. Petra Ciencialová
Ing. arch. Kateřina Průchová
Tereza Thérová
Vložené
5. marec 2025
0
959
Hlavný obsahHlavný obsah
Čakajte prosím