Advertorial

Hotel Hirschen Spa House, Rakúsko

Novotvar v prostredí alpskej obce.

Vytvorte si kúpeľňu snov: dizajnové riešenie od značky hansgrohe

Hansgrohe - prémiová značka kúpeľňových riešení, ponúka nadčasový dizajn, technickú precíznosť a udržateľné inovácie...

Okná Internorm za minuloročné ceny + hliníkový kryt zdarma!

Využite špeciálnu akciu Internorm: okná za minuloročné ceny a hliníkový kryt úplne zadarmo. Ponuka je časovo obmedzená!

Pozvánka na 2. ročník stavebného veľtrhu BigMarket na Slovensku

Na podujatí sa predstaví až 37 vystavovateľov - popredných dodávateľov stavebných materiálov a inovácií s prezentáciou...

Moderné plynové technológie: Efektivita a inovácie pre 21. storočie

Sumarizácia najdôležitejších inovácií, ktoré redefinujúcich využitie tohto energetického zdroja.

Utesňovanie spodných stavieb pomocou hydro-aktívnej fólie AMPHIBIA.

AMPHIBIA 3000 GRIP 1.3 od spoločnosti ATRO predstavuje modernú hydroizolačnú technológiu, ktorá spája vysokú odolnosť,...

Dekarbonizácia individuálneho vykurovania domácností – Green Deal evolučne a nie revolučne

Ambiciózne plány EK narazili na ekonomické možnosti domácností v jednotlivých členských štátoch –...

Minimalistické dvere IDEA – technická precíznosť a čistota prevedenia

IDEA DOOR od spoločnosti JAP prináša do interiéru čistý minimalistický vzhľad vďaka bezrámovému riešeniu a precíznej...

Dom s výhľadom na údolie, Dlouhý Most (ČR)

Kontinuita riešenia od vonkajšieho obkladu až po kovania a kľučky.

Schell Vitus – osvedčené riešenie pre sprchy a umývadlá vo verejnom sektore s viac ako desaťročnou tradíciou

Nástenné nadomietkové armatúry Vitus sú mimoriadne vhodné pre rýchlu a efektívnu...

Kompozitné okná predstavujú súčasnosť a budúcnosť

Okenné profily z kompozitného materiálu RAU-FIPRO X od spoločnosti Rehau sú v porovnaní s tradičnými plastovými profilmi mnohonásobne...

Myotis - stoly 2025

Najnovší sortiment stolov pre zariadenie interiérov...

Priemyselné sklenené priečky Dorsis Digero: svetelné rozhranie pre moderné interiéry

Spojenie moderného dizajnu, funkčnosti a svetla do harmonického architektonického prvku.

Význam prirodzeného svetla pre moderné a flexibilné pracovné prostredie

Kancelárska budova Baumit v slovinskom Trzine prešla premenou na moderné a udržateľné pracovisko. Architekti kládli dôraz...

Konferencia Xella Dialóg predstaví novinky a trendy v stavebníctve

Mottom šiesteho ročníku on-line konferencie odborníkov Xella Dialóg je Efektívny návrh budov 2025+: zmeny a riešenia

Víkendový apartmán v Jizerských horách

Autorské detaily a kvalitné materiály.
Diela
Dominika Galandová08.07.2023
13280+53
Víkendový apartmán v Jizerských horách
Ateliér: Markéta Bromová architektiAutori: Ing.arch. Markéta BromováSpolupráca: Ing. arch. Petra CiencialováPodlažná plocha: 83 m²Návrh: 2019 - 2020Realizácia: 2021 - 2021Adresa: Jizerské hory, Česká republikaPublikované: 8. júl 2023

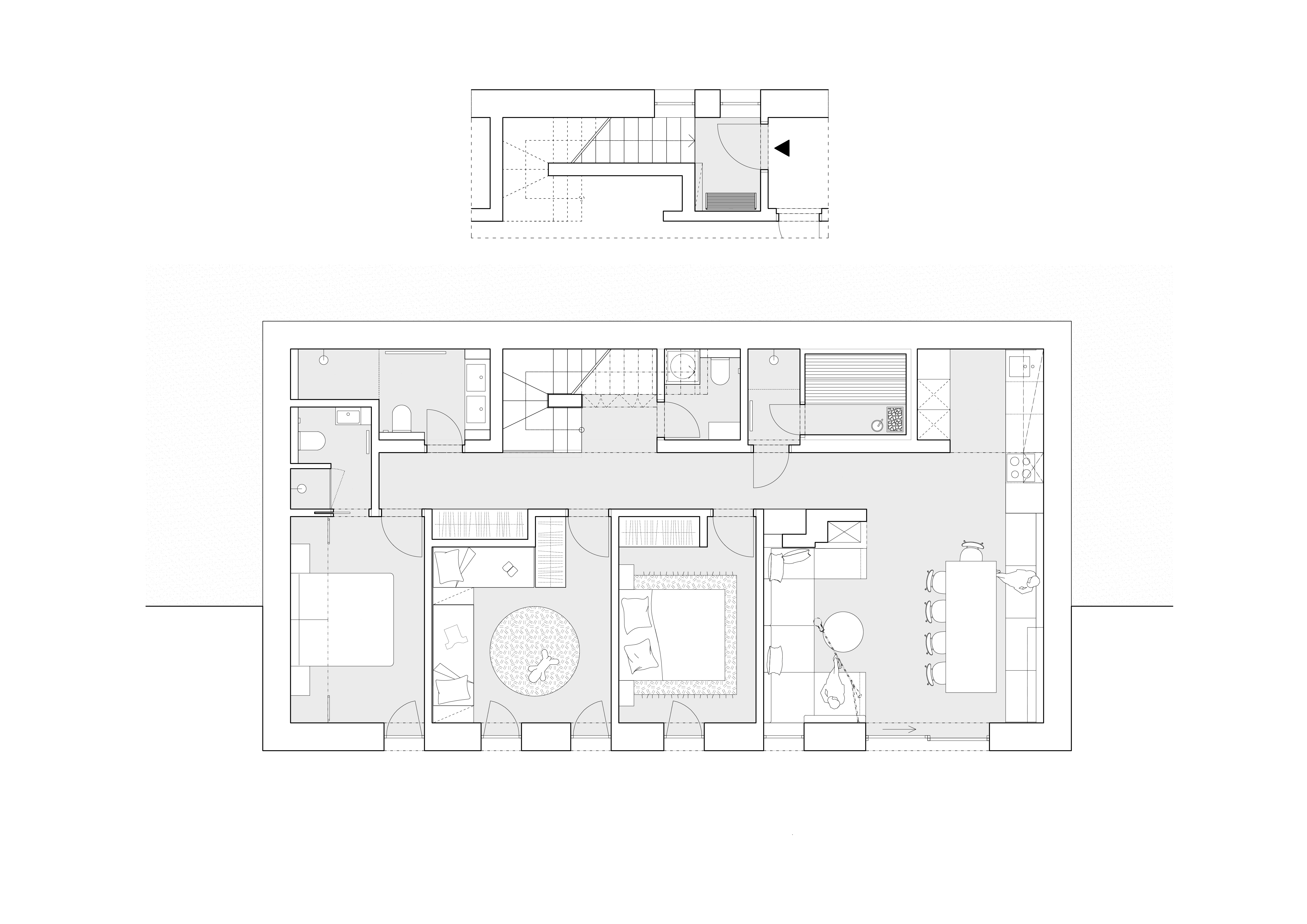
Ako vytvoriť útulné víkendové útočisko v novostavbe apartmánového domu? 

Apartmán sa nachádza na prízemí domu, v spojení s okolitou krajinou Jizeriek. Vstup vedie z druhého poschodia s malou predsieňou, ktorá nadväzuje na dvojramenné schodisko a funguje ako filter. Ocitneme sa v dlhej chodbe, z ktorej vedú dvere do jednotlivých spální a kúpeľne, alebo samostatnej toalety. Chodba tiež rozdeľuje byt na dve funkčné časti - technické zázemie (kúpeľne, toaleta, sauna, kuchyňa) a obytné priestory (spálňa a obývací priestor s krbom a jedálenským kútom). Priehľad chodbou na časť kuchyne vedie návštevníkov do obývacej izby, s ťažiskom sústredeným okolo krbového telesa. Krb vyčleňuje pohodlné sedenie, votknuté medzi. Naproti nemu je umiestnený jedálenský stôl s lavicou v línii kuchynskej linky.

Architektonické a materiálové riešenie vsádza na odolné materiály s jednoduchou údržbou a viaceré prvky inšpirované interiérmi chalúp a vidieckych domov. Tradičné prvky prispôsobujú autorky súčasným nárokom na estetiku a údržbu.

Foto: Veronika Raffajová
Pôdorys
PôdorysAutor: Markéta Bromová architekti
Foto: Veronika Raffajová
Foto: Veronika Raffajová
Foto: Veronika Raffajová
Foto: Veronika Raffajová
Foto: Veronika Raffajová
Foto: Veronika Raffajová
Foto: Veronika Raffajová
Foto: Veronika Raffajová
Foto: Veronika Raffajová
Foto: Veronika Raffajová
Foto: Veronika Raffajová
Foto: Veronika Raffajová
Foto: Veronika Raffajová
Foto: Veronika Raffajová
Foto: Veronika Raffajová
Foto: Veronika Raffajová
Foto: Veronika Raffajová
Foto: Veronika Raffajová

Materiály:

  • betón - kuchynská doska, umývadlá
  • patinovaná mosadz - obklad digestora
  • masívne drevo - nábytok
  • ručne vyrábaný keramický obklad - krb

Autor: Markéta Bromová architekti
Podklady: Linka
Fotografie: Veronika Raffajová

Poloha diela

Ing.arch. Markéta Bromová
Vložené
2. marec 2023
0
1328
Hlavný obsahHlavný obsah
Čakajte prosím