Advertorial

Okná Internorm za minuloročné ceny + hliníkový kryt zdarma!

Využite špeciálnu akciu Internorm: okná za minuloročné ceny a hliníkový kryt úplne zadarmo. Ponuka je časovo obmedzená!

Pozvánka na 2. ročník stavebného veľtrhu BigMarket na Slovensku

Na podujatí sa predstaví až 37 vystavovateľov - popredných dodávateľov stavebných materiálov a inovácií s prezentáciou...

Moderné plynové technológie: Efektivita a inovácie pre 21. storočie

Sumarizácia najdôležitejších inovácií, ktoré redefinujúcich využitie tohto energetického zdroja.

Utesňovanie spodných stavieb pomocou hydro-aktívnej fólie AMPHIBIA.

AMPHIBIA 3000 GRIP 1.3 od spoločnosti ATRO predstavuje modernú hydroizolačnú technológiu, ktorá spája vysokú odolnosť,...

Dekarbonizácia individuálneho vykurovania domácností – Green Deal evolučne a nie revolučne

Ambiciózne plány EK narazili na ekonomické možnosti domácností v jednotlivých členských štátoch –...

Minimalistické dvere IDEA – technická precíznosť a čistota prevedenia

IDEA DOOR od spoločnosti JAP prináša do interiéru čistý minimalistický vzhľad vďaka bezrámovému riešeniu a precíznej...

Dom s výhľadom na údolie, Dlouhý Most (ČR)

Kontinuita riešenia od vonkajšieho obkladu až po kovania a kľučky.

Schell Vitus – osvedčené riešenie pre sprchy a umývadlá vo verejnom sektore s viac ako desaťročnou tradíciou

Nástenné nadomietkové armatúry Vitus sú mimoriadne vhodné pre rýchlu a efektívnu...

Kompozitné okná predstavujú súčasnosť a budúcnosť

Okenné profily z kompozitného materiálu RAU-FIPRO X od spoločnosti Rehau sú v porovnaní s tradičnými plastovými profilmi mnohonásobne...

Myotis - stoly 2025

Najnovší sortiment stolov pre zariadenie interiérov...

Priemyselné sklenené priečky Dorsis Digero: svetelné rozhranie pre moderné interiéry

Spojenie moderného dizajnu, funkčnosti a svetla do harmonického architektonického prvku.

Význam prirodzeného svetla pre moderné a flexibilné pracovné prostredie

Kancelárska budova Baumit v slovinskom Trzine prešla premenou na moderné a udržateľné pracovisko. Architekti kládli dôraz...

Konferencia Xella Dialóg predstaví novinky a trendy v stavebníctve

Mottom šiesteho ročníku on-line konferencie odborníkov Xella Dialóg je Efektívny návrh budov 2025+: zmeny a riešenia

Murovací robot WLTR stavia svoj prvý dom na Slovensku

Robot WLTR predstavuje moderný prístup k murovaným konštrukciám. Vďaka automatizácii dokáže rýchlo, presne a bezpečne realizovať...

Nová éra bezpečnosti s I-tec Secure od Internorm

Okrem bezpečnosti majú okná aj elegantný vzhľad, pretože nie sú viditeľné žiadne uzamykacie časti kovania.

Byt Arbesovo náměstí, Praha

Priestorné podkrovné bývanie.
Diela
Red 330.08.2025
9520+18
Byt Arbesovo náměstí, Praha
Autori: Ing. arch. Katarina Varsová, Ing. arch. Petra DaganPodlažná plocha: 92 m²Návrh: 2021 - 2022Realizácia: 2023 - 2024Adresa: Arbesovo náměstí , Praha, Česká republikaPublikované: 30. august 2025

Rekonštrukcia podkrovných priestorov historického domu na Arbesovom námestí bola zameraná na vytvorenie dvojpodlažného podkrovného bytu určeného na prenájom. Ešte pred začiatkom návrhu spracoval architekt Pavel Hnilička pôvodnú dokumentáciu pre stavebné povolenie celého podlažia. Následne sa klient obrátil so žiadosťou o interiérový návrh a prípadnú úpravu dispozície na ateliér Formafatal.

Celé podlažie bolo rozdelené na štyri bytové jednotky, pričom jedna z nich bola súčasťou zadania. Dispozícia bytu sa vzhľadom na technické možnosti a umiestnenie prípojných bodov menila len minimálne. Klientovým želaním bolo vytvoriť nevšedný priestor, ktorý zaujme potenciálnych nájomcov. Dôležitá bola tiež praktickosť a udržateľnosť použitých povrchov a materiálov.

Klient ponechal autorom voľnú ruku pri koncepčnom riešení celého podkrovia. Priestor, ktorý pôsobil kvôli menším strešným tmavo, sa rozhodli premeniť na svetlý a vzdušný interiér. Základ tvorí smotanovo biely matný povrch, obohatený o rôzne štruktúry a jemné odtiene sivej a modrej. Tento základ oživujú tyrkysové a terakotové akcenty na solitérnych prvkoch.

V priestore sa nachádza samostatný objem – tmavý blok umiestnený vo vysokom otvorenom priestore s odhaleným krovom. Tento objem, ktorý zahŕňa vysokú kuchynskú skriňu, obklad chodby a šatníkovú skriňu v spálni, je materiálovo zjednotený a uložený pod stropom galérie s dekorom tmavého orecha. 

Horné podlažie zostáva v jemných odtieňoch smotanovej a sivej. Výrazným prvkom je okrem drevenej konštrukcie krbu aj oceľové schodisko s atypickým zábradlím z matne lakovaných oceľových profilov. V spodnej časti schodiska, kde sa nachádza úložný priestor, je perforovaný plech podložený zrkadlovým nerezovým plechom. Vzniká tak efekt zrkadlenia interiéru.

Veľkou výzvou bola členitosť starého podkrovného priestoru. Architekti sa s ňou vysporiadali dôsledným návrhom na mieru šitých interiérový. Výsledkom je kontrast medzi modernými súdobými prvkami a príbehom, ktorý rozprávajú trámy pôvodného krovu. 

Foto: BoysPlayNice
Foto: BoysPlayNice
Foto: BoysPlayNice
Foto: BoysPlayNice
Foto: BoysPlayNice
Foto: BoysPlayNice
Foto: BoysPlayNice
Foto: BoysPlayNice
Foto: BoysPlayNice
Foto: BoysPlayNice
Foto: BoysPlayNice
Foto: BoysPlayNice
Foto: BoysPlayNice
Foto: BoysPlayNice
Foto: BoysPlayNice
Foto: BoysPlayNice
Foto: BoysPlayNice
Foto: BoysPlayNice
Foto: BoysPlayNice
Foto: BoysPlayNice
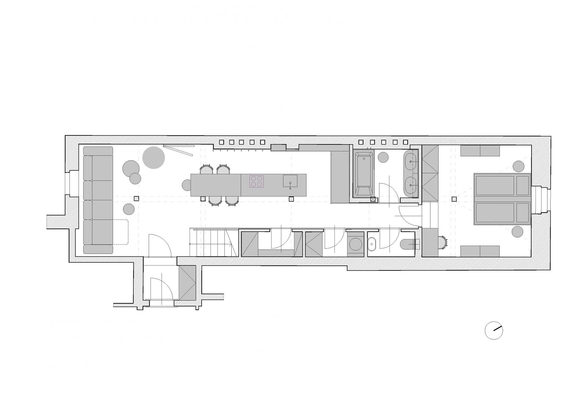
Pôdorys - spodná úroveň
Pôdorys - spodná úroveňAutor: Formafatal
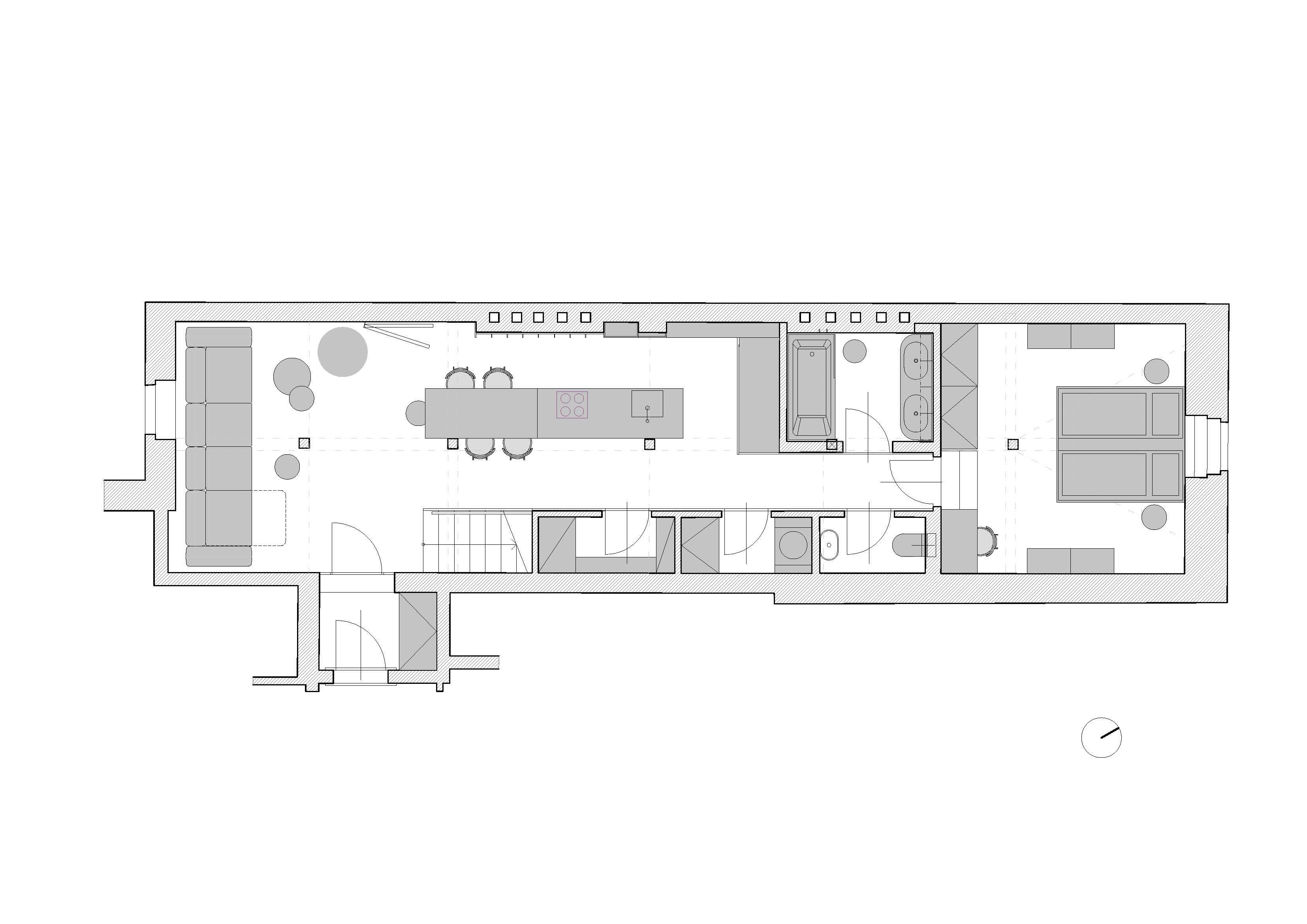
Pôdorys - horná úroveň
Pôdorys - horná úroveňAutor: Formafatal
Rez
RezAutor: Formafatal
Rez
RezAutor: Formafatal
Priestor hornej spálne
Priestor hornej spálneAutor: Formafatal

Materiály:

Povrch stien

  • výmaľba (tlmená biela), patinovaná výmaľba
  • tónovaná epoxidová stierka
  • repas pôvodných drevených stĺpov – protipožiarny náter + bieliaci podklad
  • keramický obklad kúpeľne

Podlahy

  • veľkoformátová keramická dlažba (technické miestnosti)
  • trojvrstvová kartáčovaná drevená podlaha 
  • epoxidová stierka
  • schodisko – oceľová konštrukcia + drevený obklad

Zámočnícke prvky spojené so stavbou (kovovýroba)

  • subtílne konštrukcie z lakovaných oceľových profilov
  • perforovaný plech - matná prášková farba 
  • profily sklenených priečok – 1× pivotové dvere (číre sklo), 1× sklenené dvere v šikmej stene (kúpeľňa – drôtosklo); subtílne lakované oceľové profily v smotanovom matnom odtieni

Zámočnícke prvky spojené s atypickým nábytkom

  • konštrukcie z lakovaných oceľových profilov
  • perforovaný plech - matná prášková farba

Dvere

  • bezobložkové dvere v rôznych povrchových úpravách (HPL unicolor alebo drevodekor, podklad pre výmaľbu či stierku)
  • 2× dverné krídlo bez obložky v jednej línii s nadväzujúcim obkladom stien
  • Renovácia existujúcich okien + nové strešné výklopné okná Velux
  • vstupné dvere do bytu boli zhotovené podľa pôvodného stavu v súlade s požiadavkami pamiatkového úradu.

Autorka: Dagmar Štefanová / Formafatal
Podklady: Linka
Fotografie: BoysPlayNice

Poloha diela

Ing. arch. Katarina Varsová
Ing. arch. Petra Dagan
Vložené
9. jún 2025
0
952
Hlavný obsahHlavný obsah
Čakajte prosím