Advertorial

Pozvánka na 2. ročník stavebného veľtrhu BigMarket na Slovensku

Na podujatí sa predstaví až 37 vystavovateľov - popredných dodávateľov stavebných materiálov a inovácií s prezentáciou...

Hotel Hirschen Spa House, Rakúsko

Novotvar v prostredí alpskej obce.

Vytvorte si kúpeľňu snov: dizajnové riešenie od značky hansgrohe

Hansgrohe - prémiová značka kúpeľňových riešení, ponúka nadčasový dizajn, technickú precíznosť a udržateľné inovácie...

Okná Internorm za minuloročné ceny + hliníkový kryt zdarma!

Využite špeciálnu akciu Internorm: okná za minuloročné ceny a hliníkový kryt úplne zadarmo. Ponuka je časovo obmedzená!

Moderné plynové technológie: Efektivita a inovácie pre 21. storočie

Sumarizácia najdôležitejších inovácií, ktoré redefinujúcich využitie tohto energetického zdroja.

Utesňovanie spodných stavieb pomocou hydro-aktívnej fólie AMPHIBIA.

AMPHIBIA 3000 GRIP 1.3 od spoločnosti ATRO predstavuje modernú hydroizolačnú technológiu, ktorá spája vysokú odolnosť,...

Dekarbonizácia individuálneho vykurovania domácností – Green Deal evolučne a nie revolučne

Ambiciózne plány EK narazili na ekonomické možnosti domácností v jednotlivých členských štátoch –...

Minimalistické dvere IDEA – technická precíznosť a čistota prevedenia

IDEA DOOR od spoločnosti JAP prináša do interiéru čistý minimalistický vzhľad vďaka bezrámovému riešeniu a precíznej...

Dom s výhľadom na údolie, Dlouhý Most (ČR)

Kontinuita riešenia od vonkajšieho obkladu až po kovania a kľučky.

Schell Vitus – osvedčené riešenie pre sprchy a umývadlá vo verejnom sektore s viac ako desaťročnou tradíciou

Nástenné nadomietkové armatúry Vitus sú mimoriadne vhodné pre rýchlu a efektívnu...

Kompozitné okná predstavujú súčasnosť a budúcnosť

Okenné profily z kompozitného materiálu RAU-FIPRO X od spoločnosti Rehau sú v porovnaní s tradičnými plastovými profilmi mnohonásobne...

Myotis - stoly 2025

Najnovší sortiment stolov pre zariadenie interiérov...

Priemyselné sklenené priečky Dorsis Digero: svetelné rozhranie pre moderné interiéry

Spojenie moderného dizajnu, funkčnosti a svetla do harmonického architektonického prvku.

Význam prirodzeného svetla pre moderné a flexibilné pracovné prostredie

Kancelárska budova Baumit v slovinskom Trzine prešla premenou na moderné a udržateľné pracovisko. Architekti kládli dôraz...

Konferencia Xella Dialóg predstaví novinky a trendy v stavebníctve

Mottom šiesteho ročníku on-line konferencie odborníkov Xella Dialóg je Efektívny návrh budov 2025+: zmeny a riešenia

Pražský byt rodiny režiséra Jana Hřebejka

Na rozhraní architektúry a scénografie.
Diela
Red 318.01.2023
28300+35
Pražský byt rodiny režiséra Jana Hřebejka
Autori: Ing. arch. Dagmar ŠtěpánováSpolupráca: Akad. mal. Miroslav Bednář, Libor Biemann, Ing. Pavel JindraInvestor: Jan Hřebejk, Lenka HřebejkováPodlažná plocha: 175 m²Návrh: 2016 - 2018Realizácia: 2018 - 2020Adresa: Praha 6, Česká republikaPublikované: 18. január 2023

Byt v radovom terasovom dome zo 70. rokov, v pražskej lokalite Hřebenky, patrí úspešnému filmovému režisérovi Janovi Hřebejkovi a jeho rodine. Na rekonštrukciu bývania, obklopeného zeleňou si majitelia prizvali architektku Dagmar Štěpánovú z ateliéru Formafatal. Štyri roky práce na projekte sa podpísali pod výsledok, ktorý zrkadlí charakter majiteľov. Živý interiér plný kníh, obrazov a umeleckých diel. Často nevšedná kombinácia poctivých materiálov, detailov a nábytkových solitérov. Otvorená a rozšírená denná časť s krásnymi výhľadmi na panorámu Prahy…

Bytová jednotka s výmerou 175 m2 prešla kompletnou rekonštrukciou, ktorá sa ľahko prepísala aj do exteriéru. Bývanie rodiny režiséra, zasadené v prudkom svahu, je prístupné iba po úzkom vonkajšom schodisku. To vedie labyrintom vzrastlej zelene. Prízemie domu vo svojej zadnej časti nadväzuje na romantickú súkromnú záhradu. Až z rozľahlej terasy na poschodí sa však otvárajú spomínané výhľady na mesto.

Neveľké dvojpodlažné bývanie podľa slov architektky reprezentuje to, čo majú majitelia najradšej - žiť v meste, ale zároveň v obklopení prírody. Nová lokalita tak vystriedala ich predchádzajúci dlhoročný domov na hausbóte v pražskom Smíchove.

Rovnako ako na hausbóte, kde boli priestorovo potlačené spálne a kúpeľňa, sa aj pri novom domove tento princíp opakuje. Upravená dispozícia preto na žiadosť majiteľov uprednostňuje zväčšenie spoločenských zón a to rovno na oboch podlažiach. Súkromné ​​časti sú minimalizované.

Podľa slov architektky bolo cieľom majiteľov “Vytvořit místo pro život, kde se budou cítit dobře nejen oni, ale i jejich přátelé. Místo, které bude působit přirozeně a zabydleně od samého začátku. Domov, který bude autentický, barevný, plný knih, obrazů a dalších uměleckých předmětů. Byt, do kterého kdykoliv umístíte něco nového, neuškodí mu to.” 

Dagmar Štěpánová pracovala na projekte celkom štyri roky. Bývanie rodiny režiséra tvorí súčasť radového domu, preto boli v rámci zachovania jednotného charakteru fasády vonkajšie zmeny minimalizované. Medzi výnimky však patrí nový vstupný portál na poschodí s bezrámovým zasklením. Táto zmena  podporila vizuálne prepojenie a presvetlenie celého horného poschodia. Na prianie klientov tu vznikla nová presklená prístavba, ktorá využíva časť pôvodnej terasy a rozširuje spoločenskú zónu domu. Prístavba ďalej integruje pôvodný krb, avšak s novou vložkou a obkladom z červeného travertínu. Priestor slúži ako hlavná jedáleň, prepojená s terasou a kuchyňou, na ktorej mieste bola predtým spálňa a kúpeľňa.

Do hlavného obytného priestoru na poschodí Dagmar Štěpánová umiestnila novú kúpeľňu pomocou industriálne presklenej kocky. Súkromie v presklenom priestore hygieny zabezpečuje záves. K hlavnému priestoru priliehajú už len dve malé spálne (detské izby) s oknami do záhrady.

Dvere, vedúce do spální, sú zakomponované do obkladu olejovanej brezovej preglejky. Komplikáciou bolo premiestnenie zvodu dažďovej vody zo strechy, ktorý po úpravách dispozície umiestnila architektka do starého liatinového stĺpu, ktorý majitelia bytu kúpili v bazáre.

V interiéri sa borovicová preglejka stretáva so sofistikovanými materiálmi, ako sú obklady z červeného a žltého travertínu, alebo mahagónové masívne drevo na kuchynskom pracovnom pulte. Interiér zvýrazňujú farebné výmaľby v modrých odtieňoch, alebo zelená cementová stierka v hlavnej obytnej časti domu, ktorá nadväzuje na dubové parkety. Tie sú kupované ako chybné kusy druhej kvalitatívnej triedy. Nedokonalosť je v prípade tohto interiéru žiaduca.

Na prízemí domu sa nachádza malá spálňa s kuchynkou, miniatúrna kúpeľňa a veľká pracovňa ústiaca do záhrady, ktorá je druhým spoločenským priestorom v dome.

Niektorý vintage nábytok a svietidlá si režisér s manželkou vyberali sami, na spoluprácu tiež často prizvali svojho dlhoročného rodinného priateľa, akademického maliara Miroslava Bednára. Ten pre nich vybral niekoľko originálnych a nevšedných kusov a po dome rozmiestnil obrazy a umelecké predmety zo zbierky majiteľov.

Foto: BoysPlayNice
Foto: BoysPlayNice
Foto: BoysPlayNice
Foto: BoysPlayNice
Foto: BoysPlayNice
Foto: BoysPlayNice
Foto: BoysPlayNice
Foto: BoysPlayNice
Foto: BoysPlayNice
Foto: BoysPlayNice
Foto: BoysPlayNice
Foto: BoysPlayNice
Foto: BoysPlayNice
Foto: BoysPlayNice
Foto: BoysPlayNice
Foto: BoysPlayNice
Foto: BoysPlayNice
Foto: BoysPlayNice
Foto: BoysPlayNice
Foto: BoysPlayNice
Foto: BoysPlayNice
Foto: BoysPlayNice
Foto: BoysPlayNice
Foto: BoysPlayNice
Foto: BoysPlayNice
Foto: BoysPlayNice
Foto: BoysPlayNice
Foto: BoysPlayNice
Foto: BoysPlayNice
Foto: BoysPlayNice
Foto: BoysPlayNice
Foto: BoysPlayNice
Foto: BoysPlayNice
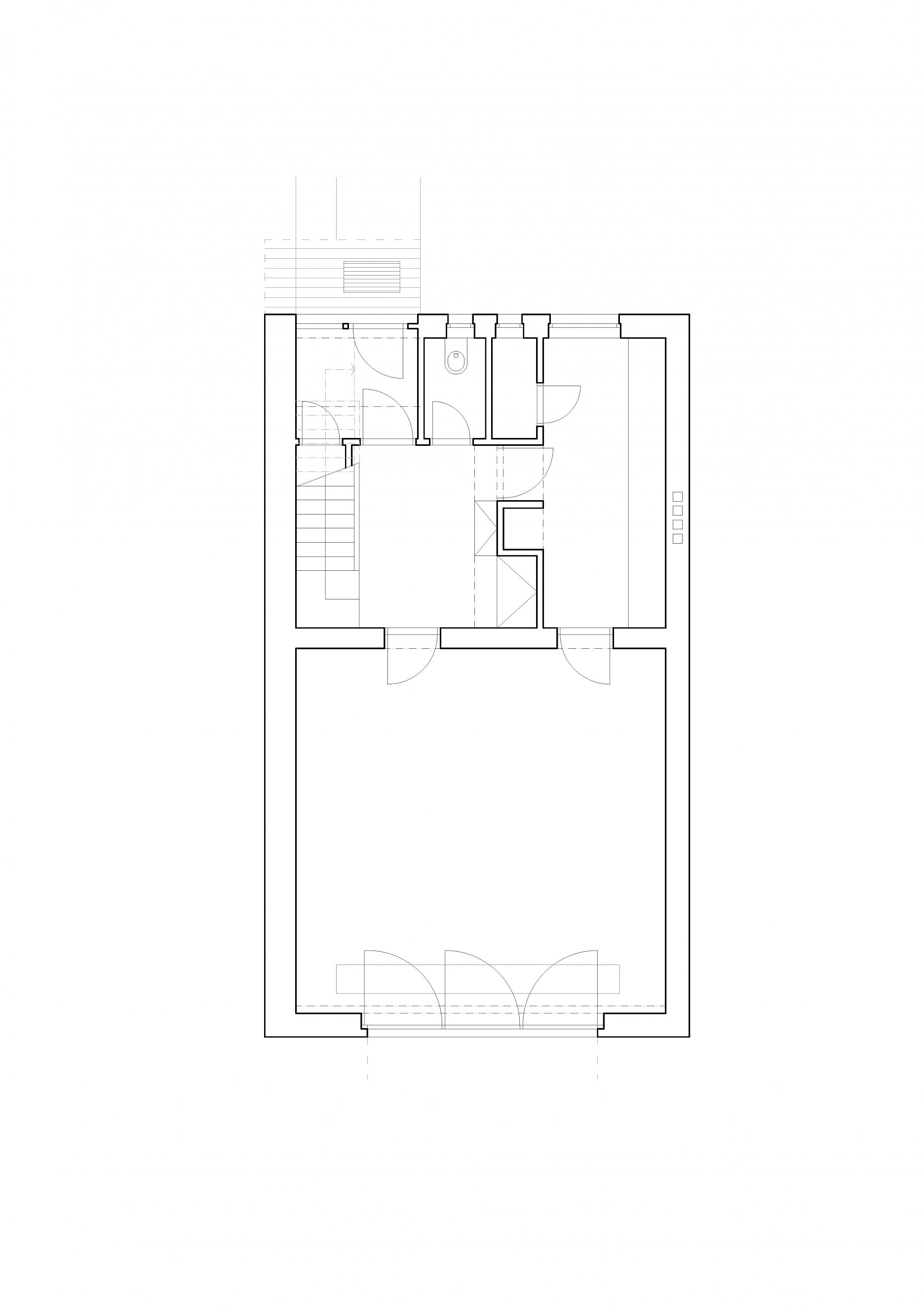
Pôdorys 1. NP - východiskový stav
Pôdorys 1. NP - východiskový stavAutor: Formafatal
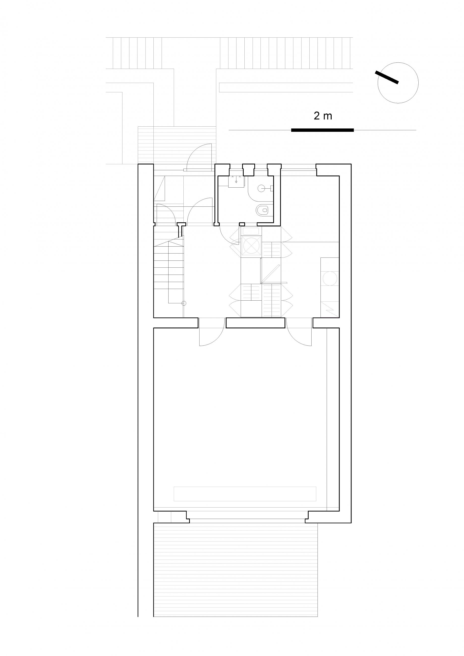
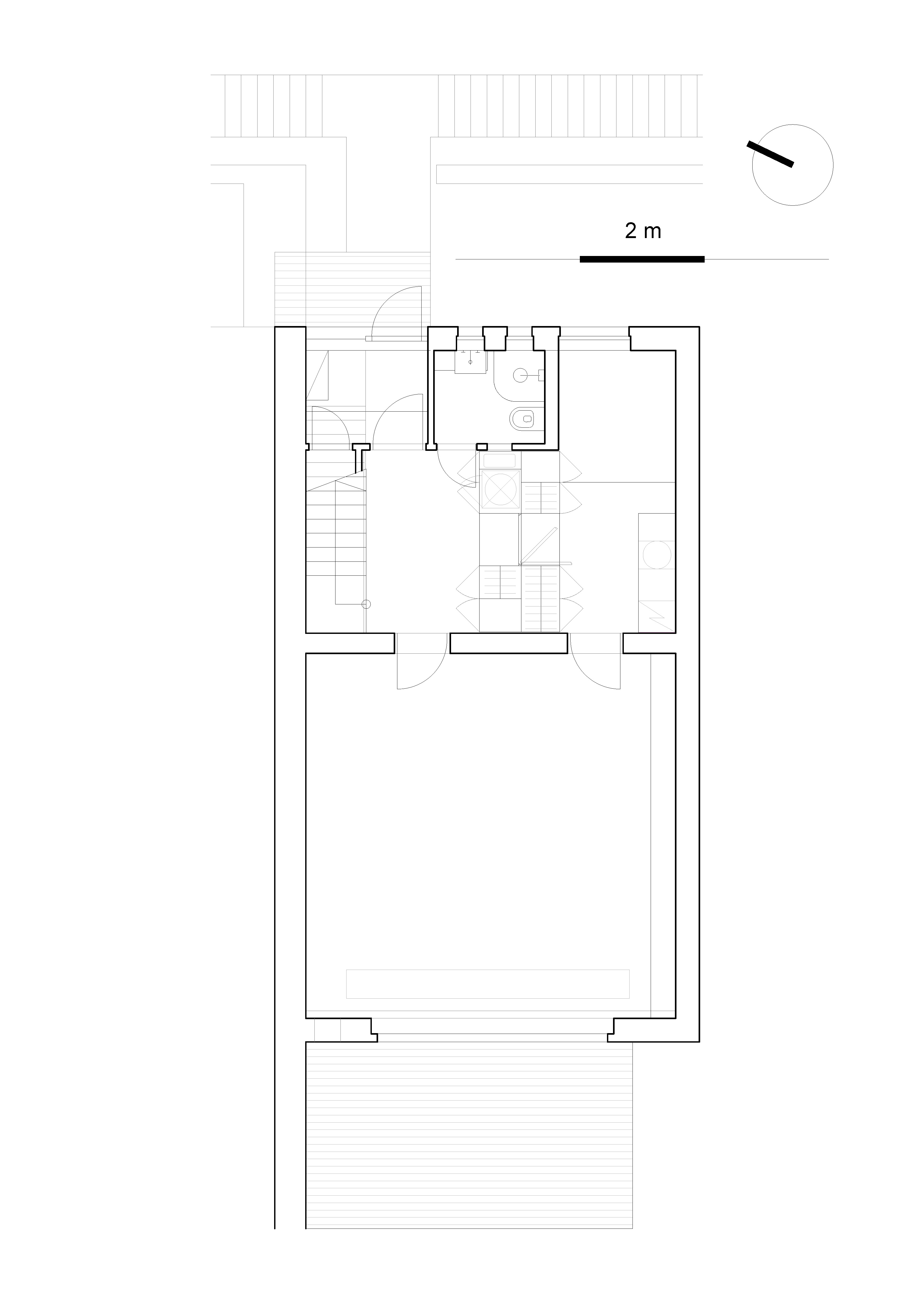
Pôdorys 2. NP - východiskový stav
Pôdorys 2. NP - východiskový stavAutor: Formafatal
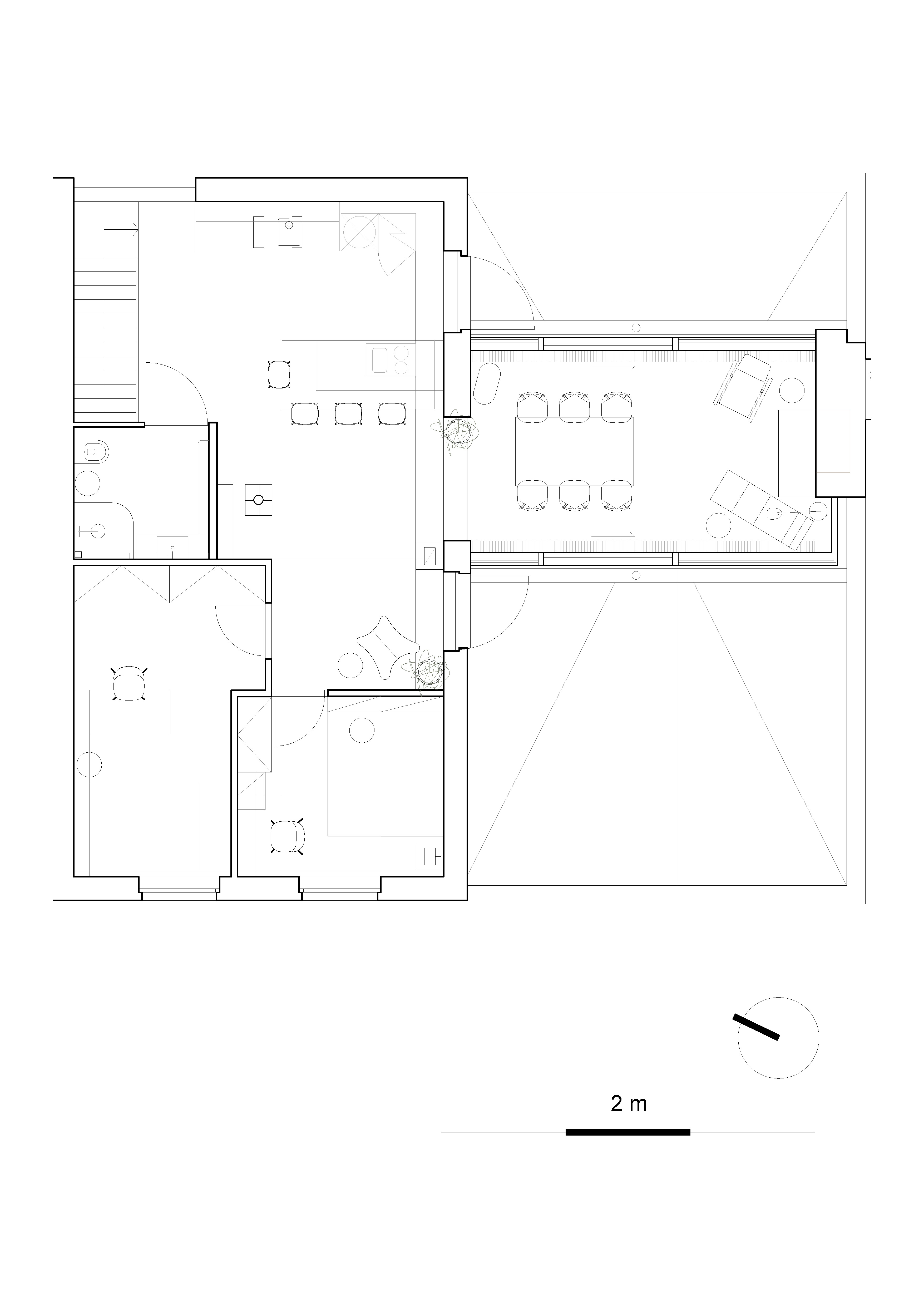
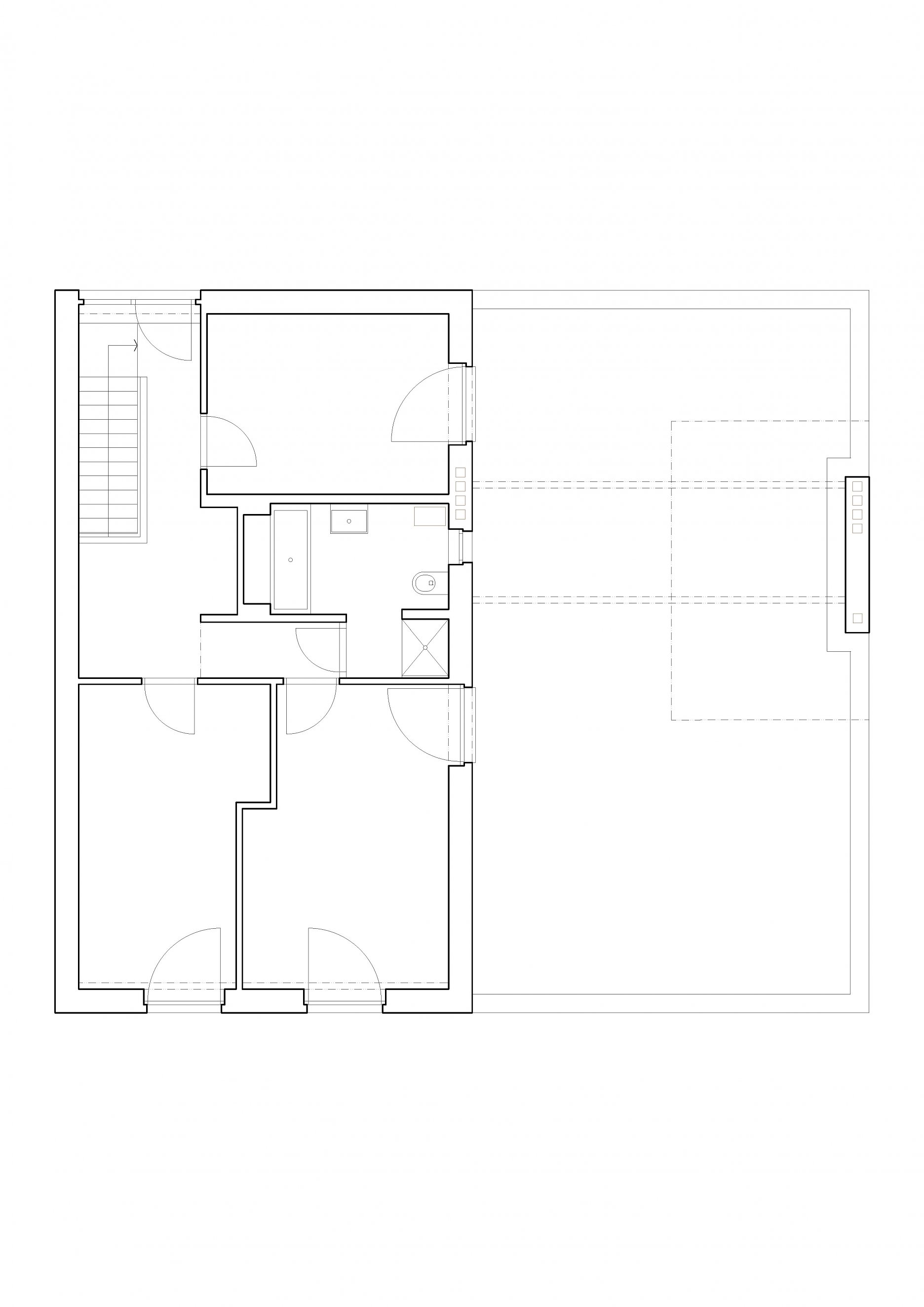
Pôdorys 1. NP - nový stav
Pôdorys 1. NP - nový stavAutor: Formafatal
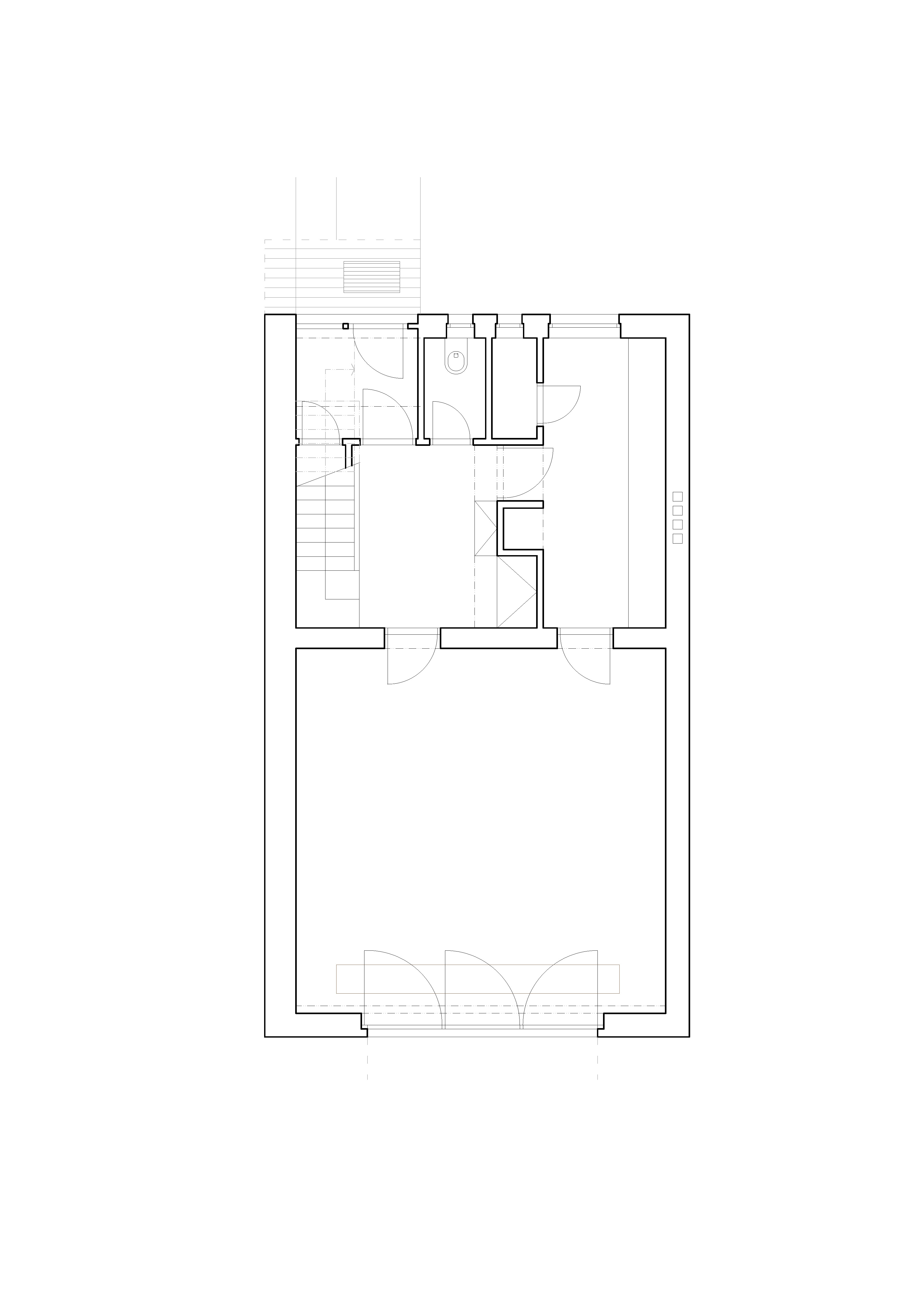
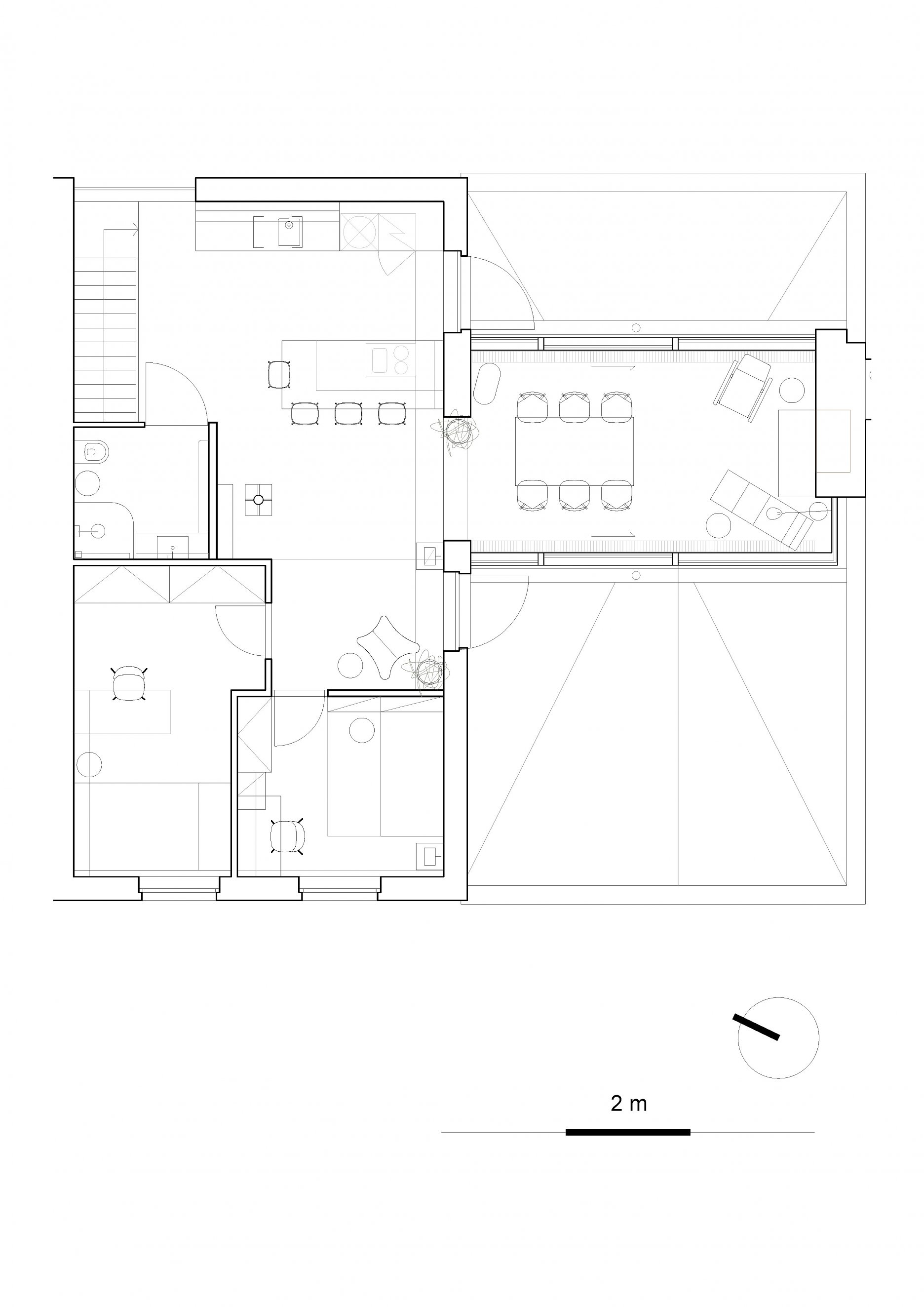
Pôdorys 2. NP - nový stav
Pôdorys 2. NP - nový stavAutor: Formafatal
Rozvinuté pohľady - 2. NP / kuchyňa a jedáleň
Rozvinuté pohľady - 2. NP / kuchyňa a jedáleňAutor: Formafatal
Rozvinutý pohľad - 2. NP / obývacia izba
Rozvinutý pohľad - 2. NP / obývacia izbaAutor: Formafatal
Rozvinuté pohľady- 2. NP / kúpeľňa
Rozvinuté pohľady- 2. NP / kúpeľňaAutor: Formafatal

Materiály:

  • Corten - obklad vstupného portálu podľa autorského návrhu
  • Masívne smrekovcové drevo - lamelový drevený obklad (časť fasády)
  • Masívne dubové drevo - parkety 
  • Prefarbená cementová stierka - podlaha a nábytok podľa autorského návrhu (kuchynská linka)
  • Červený travertín Persiano Rosso - obklady stien kúpeľne a krbu
  • Žltý travertín - obklad steny v kuchyni
  • Borovicová preglejka s povrchom zafarbeným olejom - obklady stien, nábytok podľa autorského návrhu (stolíky pod umyvadlami)
  • Masívne mahagónové drevo - doska kuchynského pultu
  • Mosadzný plech - doska jedálenského stola
  • Oceľ - nábytok podľa autorského návrhu, presklená priečka + dvere a zábradlie podľa autorského návrhu
  • Profilované sklo - nábytok podľa autorského návrhu (kuchynská linka)
  • Dierovaný a lakovaný oceľový plech - nábytok podľa autorského návrhu (šatníkové skrine)
  • Dubová dyha - nábytok podľa autorského návrhu (šatníkové skrine, zariadenie kuchyne)
  • Číre sklo - nové okno a ďalšie výplne, prístavba zimnej záhrady na terase 1. NP

Autorka: Dagmar Štefanová / Formafatal
Podklady: Linka
Fotografie: BoysPlayNice

Poloha diela

Ing. arch. Dagmar Štěpánová
Vložené
18. január 2023
0
2830
Hlavný obsahHlavný obsah
Čakajte prosím