Advertorial

95 rokov Internorm: 30 miliónov okien a dverí z Rakúska

Európska značka okien oslavuje jubileum: za 95 rokov sa vyvinula na najväčšiu medzinárodne pôsobiacu okennú značku a inovačného...

Pozvánka na 2. ročník stavebného veľtrhu BigMarket na Slovensku

Na podujatí sa predstaví až 37 vystavovateľov - popredných dodávateľov stavebných materiálov a inovácií s prezentáciou...

Hotel Hirschen Spa House, Rakúsko

Novotvar v prostredí alpskej obce.

Vytvorte si kúpeľňu snov: dizajnové riešenie od značky hansgrohe

Hansgrohe - prémiová značka kúpeľňových riešení, ponúka nadčasový dizajn, technickú precíznosť a udržateľné inovácie...

Okná Internorm za minuloročné ceny + hliníkový kryt zdarma!

Využite špeciálnu akciu Internorm: okná za minuloročné ceny a hliníkový kryt úplne zadarmo. Ponuka je časovo obmedzená!

Moderné plynové technológie: Efektivita a inovácie pre 21. storočie

Sumarizácia najdôležitejších inovácií, ktoré redefinujúcich využitie tohto energetického zdroja.

Utesňovanie spodných stavieb pomocou hydro-aktívnej fólie AMPHIBIA.

AMPHIBIA 3000 GRIP 1.3 od spoločnosti ATRO predstavuje modernú hydroizolačnú technológiu, ktorá spája vysokú odolnosť,...

Dekarbonizácia individuálneho vykurovania domácností – Green Deal evolučne a nie revolučne

Ambiciózne plány EK narazili na ekonomické možnosti domácností v jednotlivých členských štátoch –...

Minimalistické dvere IDEA – technická precíznosť a čistota prevedenia

IDEA DOOR od spoločnosti JAP prináša do interiéru čistý minimalistický vzhľad vďaka bezrámovému riešeniu a precíznej...

Dom s výhľadom na údolie, Dlouhý Most (ČR)

Kontinuita riešenia od vonkajšieho obkladu až po kovania a kľučky.

Schell Vitus – osvedčené riešenie pre sprchy a umývadlá vo verejnom sektore s viac ako desaťročnou tradíciou

Nástenné nadomietkové armatúry Vitus sú mimoriadne vhodné pre rýchlu a efektívnu...

Kompozitné okná predstavujú súčasnosť a budúcnosť

Okenné profily z kompozitného materiálu RAU-FIPRO X od spoločnosti Rehau sú v porovnaní s tradičnými plastovými profilmi mnohonásobne...

Myotis - stoly 2025

Najnovší sortiment stolov pre zariadenie interiérov...

Priemyselné sklenené priečky Dorsis Digero: svetelné rozhranie pre moderné interiéry

Spojenie moderného dizajnu, funkčnosti a svetla do harmonického architektonického prvku.

Význam prirodzeného svetla pre moderné a flexibilné pracovné prostredie

Kancelárska budova Baumit v slovinskom Trzine prešla premenou na moderné a udržateľné pracovisko. Architekti kládli dôraz...

Rekonštrukcia Ťoupalíkovej vily, Praha - Trója

Prvorepubliková vila s pozemkom, ktorý priamo prilieha k areálu pražskej botanickej záhrady. Rozsiahla rekonštrukcia zahŕňala tiež prístavbu garáže a rozšírenie obytnej plochy na úrovni prízemia. Napriek stavebným úpravám si vila zachovala svoje čisté línie.
Diela
Red 105.10.2018
30850+21
Rekonštrukcia Ťoupalíkovej vily, Praha - Trója
Autori: Ing. arch. Antonín JuštíkSpolupráca: Ing. Vladimír TůmaNávrh: 2014 - 2015Realizácia: 2015 - 2017Adresa: Nádvorní 6, Praha - Troja, Česká republikaPublikované: 5. október 2018

Ťoupalíkovu vilu na Nádvornej ulici v pražskej Tróji navrhol v roku 1935 architekt Václav Ittner. Na vtedajšiu dobu progresívna funkcionalistická stavba bola zrealizovaná v tom istom roku.

Vila nie je nijako rozsiahla ani výnimočná, avšak svojou neokázalou jednoduchosťou presne zodpovedá vtedajšiemu inovatívnemu ideovému prúdu.

Dom s puristicky riešeným priečelím a plochou strechou je osadený do západne orientovaného svahu nad údolím Vltavy. Hlavné priečelia smerujú na západ a na juh. Z kompaktného kubusu domu vystupuje v južnej časti rizalit, zakončený terasou s pôsobivým výhľadom na panorámu Prahy.

Foto: Aleš Jungmann
Foto: Aleš Jungmann

Dom je obklopený príjemnou, mierne sa zvažujúcou záhradou, ktorá zo severu a z východu priamo prilieha k areálu pražskej botanickej záhrady. 

Súčasný vlastník kúpil vilu v pomerne zanedbanom stave od priamych potomkov pôvodného stavebníka v roku 2014. Jeho zámerom bolo zrekonštruovať vilu tak, aby pri zachovaní dobového výrazu mohla slúžiť pre bývanie jeho rodiny. 

Hlavným východiskom návrhu bol rešpekt k miestu a samotnému domu. Novotvary, ktoré rozširujú možnosti využitia domu, nemajú za cieľ pôvodnej hmote konkurovať, skôr ticho doprevádzať jej čistú eleganciu.

Foto: Aleš Jungmann
Foto: Aleš Jungmann

Napriek tomu, že pri úpravách domu boli použité novodobé systémy, konštrukcie a materiály, architekti sa snažili vcítiť do uvažovania vtedajších autorov. Ako tvorivú metódu nepoužili preto doslovné citácie pôvodného, ale skôr nové formulácie zhodných myšlienkových postupov a východísk. Architekti zo Studia Hangár siahli po klasických prvkoch a materiáloch. Použili jemnozrnnú omietku, okná s drevenými rámami, titanzinkový plech, neleštené nerezové zámočnícke prvky, kamennú dlažbu, dubové parkety, či keramický obklad...

Stavebné práce komplikoval zlý technický stav pôvodných konštrukcií. Išlo predovšetkým o základy, betónové stropné konštrukcie a murivo niektorých stien. Ich sanácia, či náhrada si vyžiadali veľké časové a investičné náklady. Ďalšou komplikáciou boli zariadenia mobilného operátora na streche objektu, s ktorým sa architekti museli kultivovane vysporiadať.

Foto: Aleš Jungmann
Foto: Aleš Jungmann

Ťažkou úlohou bol i návrh garáže pre dve vozidlá tak, aby nekonkuroval vile a neznehodnotil relatívne malý pozemok. Ako výhodné sa ukazovalo pôvodne navrhnuté riešenie s garážou úplne zapustenou pod úroveň terénu. To však bolo nakoniec nahradené menej náročným riešením s polozapustenou garážou pripojenou k oploteniu. 

Pôvodne navrhnuté plné oplotenie z odstupňovaných prvkov zo štrukturovaného pohľadového betónu bolo po márnych pokusoch o dohodu s pražskou botanickou záhradou nahradené obligátnym oceľovým pletivom. 

Foto: Aleš Jungmann
Foto: Aleš Jungmann
Pôdorys 1. NP
Pôdorys 1. NPStudio Hangár

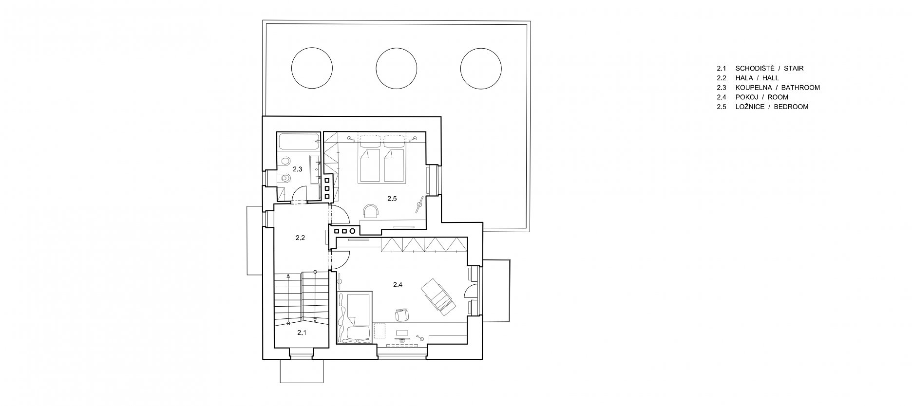
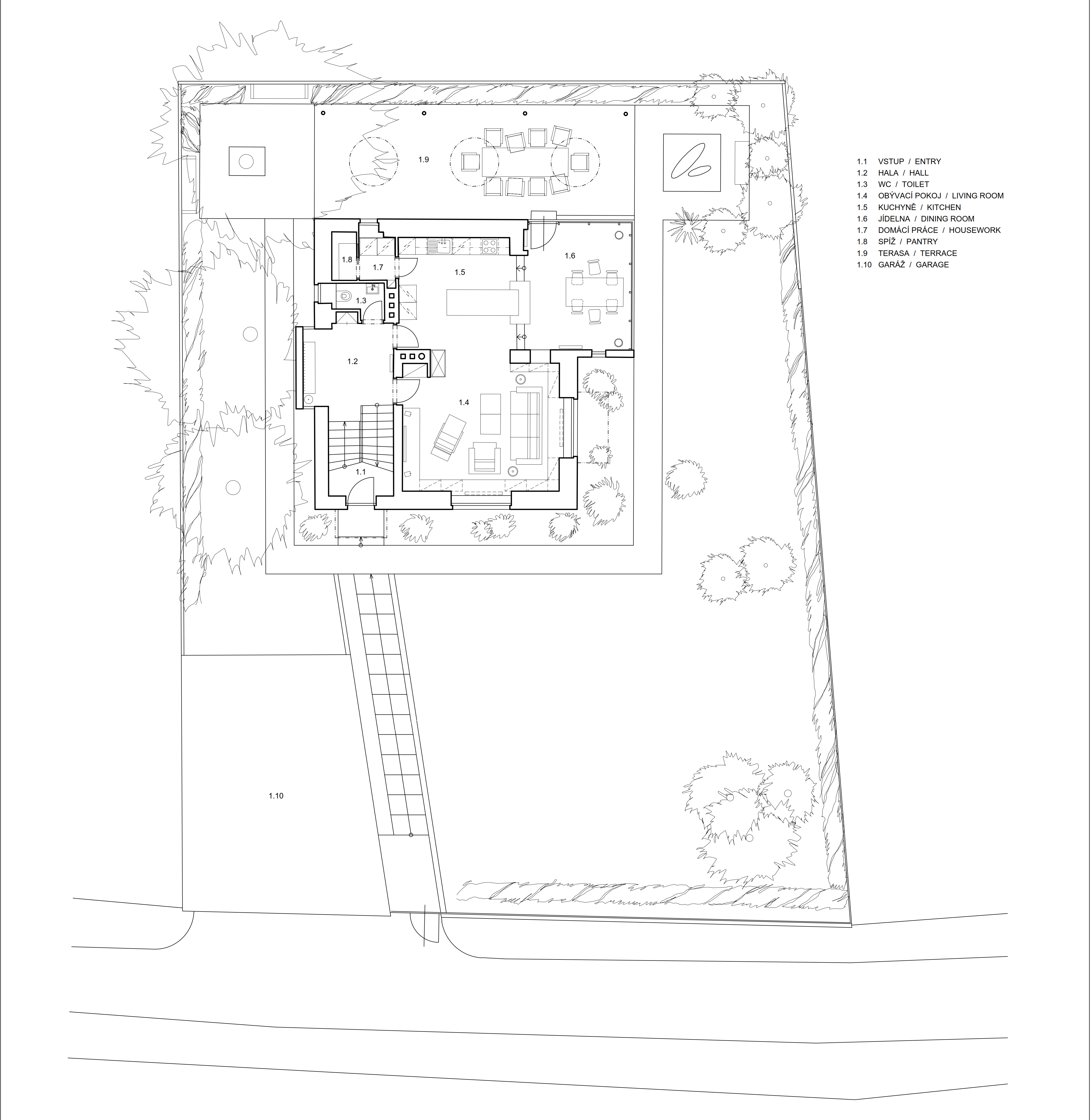
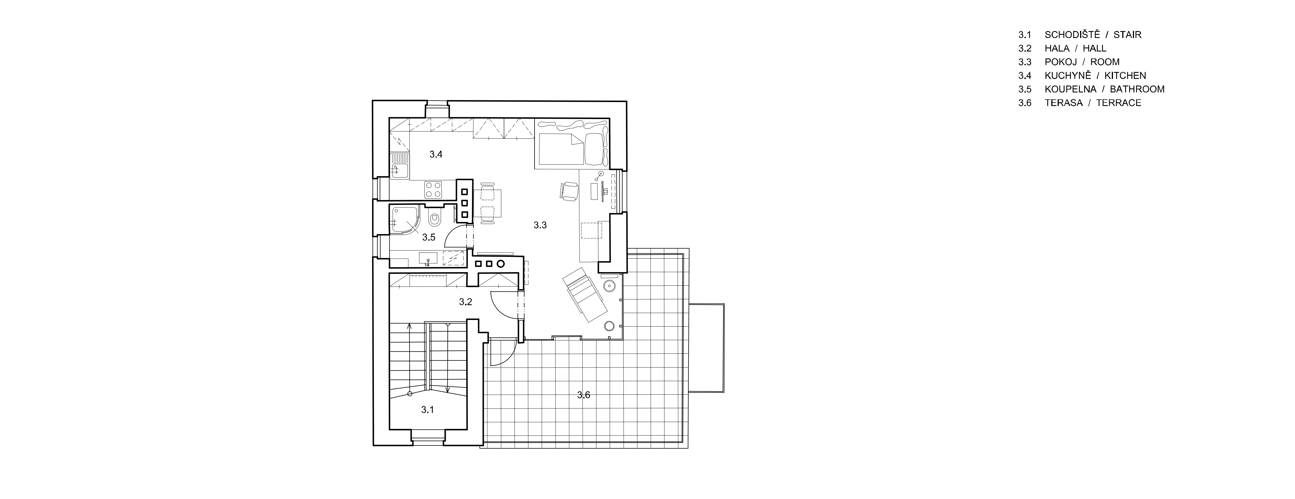
Plošne úsporná vila so štvorcovým pôdorysom má jedno podzemné a tri nadzemné podlažia, ktoré prepája schodisko situované v severozápadnej časti domu. Suterén bol pôvodne určený pre sklad a zázemie domu, na prízemí bola obývačka, kuchyňa a izba pre slúžku. Na poschodí  zas spálne s kúpeľňou. Najvyššie podlažie bolo vyhradené pre technické miestnosti - práčovňu a sušiareň, ktoré boli neskôr premenené na obytné miestnosti.

Klasický problém funkcionalistický stavieb - absencia šatníka pri vstupe, bol vyriešený rozšírením haly na úrovni prízemia. Novo navrhnutý kubus arkiera vychádza zo severného priečelia. Obývacia miestnosť bola prepojená s kuchyňou a rozšírená o presklenú prístavbu jedálne, ktorá dodáva hlavnému obytnému priestoru potrebnú dimenziu a dostatok svetla z južnej strany. Dôležité je tiež prepojenie interiéru so záhradou. Na prístavbu jedálne priamo nadväzuje krytá terasa, ktorá vytvára najintímnejšiu časť vonkajšieho priestoru.

Obytná plocha najvyššieho podlažia bola rozšírená presklenou prístavbou smerujúcou na strešnú terasu.

Pôdorys 2. NP
Pôdorys 2. NPStudio Hangár
Pôdorys 3. NP
Pôdorys 3. NPStudio Hangár

Riešenie interiéru vychádza z funkcionalistických princípov a tradícií pretavených do súčasného architektonického jazyka. Vo vile nájdeme množstvo atypických interiérových prvkov, zhotovených podľa autorského návrhu. Dôraz bol kladený na kvalitu použitých materiálov a detailov spracovania.

Foto: Studio Hangár
Foto: Studio Hangár
Foto: Studio Hangár
Foto: Studio Hangár
Ťoupalíkova vila pred rekonštrukciou
Ťoupalíkova vila pred rekonštrukciou

Podklady: Studio Hangár

Poloha diela

Ing. arch. Antonín Juštík

Súvisiace články

Vložené
31. august 2018
0
3085
Hlavný obsahHlavný obsah
Čakajte prosím