Advertorial

95 rokov Internorm: 30 miliónov okien a dverí z Rakúska

Európska značka okien oslavuje jubileum: za 95 rokov sa vyvinula na najväčšiu medzinárodne pôsobiacu okennú značku a inovačného...

Pozvánka na 2. ročník stavebného veľtrhu BigMarket na Slovensku

Na podujatí sa predstaví až 37 vystavovateľov - popredných dodávateľov stavebných materiálov a inovácií s prezentáciou...

Hotel Hirschen Spa House, Rakúsko

Novotvar v prostredí alpskej obce.

Vytvorte si kúpeľňu snov: dizajnové riešenie od značky hansgrohe

Hansgrohe - prémiová značka kúpeľňových riešení, ponúka nadčasový dizajn, technickú precíznosť a udržateľné inovácie...

Okná Internorm za minuloročné ceny + hliníkový kryt zdarma!

Využite špeciálnu akciu Internorm: okná za minuloročné ceny a hliníkový kryt úplne zadarmo. Ponuka je časovo obmedzená!

Moderné plynové technológie: Efektivita a inovácie pre 21. storočie

Sumarizácia najdôležitejších inovácií, ktoré redefinujúcich využitie tohto energetického zdroja.

Utesňovanie spodných stavieb pomocou hydro-aktívnej fólie AMPHIBIA.

AMPHIBIA 3000 GRIP 1.3 od spoločnosti ATRO predstavuje modernú hydroizolačnú technológiu, ktorá spája vysokú odolnosť,...

Dekarbonizácia individuálneho vykurovania domácností – Green Deal evolučne a nie revolučne

Ambiciózne plány EK narazili na ekonomické možnosti domácností v jednotlivých členských štátoch –...

Minimalistické dvere IDEA – technická precíznosť a čistota prevedenia

IDEA DOOR od spoločnosti JAP prináša do interiéru čistý minimalistický vzhľad vďaka bezrámovému riešeniu a precíznej...

Dom s výhľadom na údolie, Dlouhý Most (ČR)

Kontinuita riešenia od vonkajšieho obkladu až po kovania a kľučky.

Schell Vitus – osvedčené riešenie pre sprchy a umývadlá vo verejnom sektore s viac ako desaťročnou tradíciou

Nástenné nadomietkové armatúry Vitus sú mimoriadne vhodné pre rýchlu a efektívnu...

Kompozitné okná predstavujú súčasnosť a budúcnosť

Okenné profily z kompozitného materiálu RAU-FIPRO X od spoločnosti Rehau sú v porovnaní s tradičnými plastovými profilmi mnohonásobne...

Myotis - stoly 2025

Najnovší sortiment stolov pre zariadenie interiérov...

Priemyselné sklenené priečky Dorsis Digero: svetelné rozhranie pre moderné interiéry

Spojenie moderného dizajnu, funkčnosti a svetla do harmonického architektonického prvku.

Význam prirodzeného svetla pre moderné a flexibilné pracovné prostredie

Kancelárska budova Baumit v slovinskom Trzine prešla premenou na moderné a udržateľné pracovisko. Architekti kládli dôraz...

Vila v Beskydoch, Valašské Meziříčí

Vila osadená do svahu. Reprezentatívna, priestranná, nekompromisná.
Diela
Red 407.11.2018
20110+20
Vila v Beskydoch, Valašské Meziříčí
Autori: Ing. arch. Zdeněk TrefilSpolupráca: Ing. Petr Ramík, Ing. arch. Zoe Malovcová, Bc. Patrik Obr, Tomáš Chytka, Jan ZemánekPlocha pozemku: 6.500 m2Návrh: 2007 - 2012Realizácia: 2012 - 2014Adresa: Velká Lhota 40, Valašské Meziříčí, Česká republikaPublikované: 7. november 2018

Realizácia Zdeňka Trefila, ktorá po dokončení silno zarezonovala (nielen) v okruhu českej architektonickej obce “bojuje” vo finále aktuálneho ročníku Českej ceny za architektúru.

Stavba navrhovaná v pasívnom štandarde. Je názorným príkladom toho, že pasívny dom nemusí mať zažitú podobu “kompaktných utilitárnych domov s malými oknami", ale môže mať aj veľkorysejšiu a členitejšiu formu blízku “klasickej moderne”.

Veď ak parafrázujeme slová Ludwiga Miesa van der Rohe, tak základné faktory, podstatné pre tvorbu, sú stále tie isté: ...“miesto, orientácia voči slnku, priestorové riešenie a stavebné materiály”...

Súčasné požiadavky na budovy kladú pred architekta výzvy, častokrát vnímané ako obmedzenia. Na prvý pohľad protichodné požiadavky na nekompromisné, priestranné a pohodlné bývanie, ktoré zároveň zapadne do krajinného a kultúrneho kontextu a bude spĺňať požiadavky na efektívnu prevádzku sa podarilo Zdeňkovi Trefilovi naplniť. Výsledkom je vila, ktorá sa vymyká bežnej predstave o podobe pasívneho domu. Navyše, v súlade s tradíciou regiónu, ide o drevostavbou (hoci to na prvý pohľad tak nevyzerá). Poďme však pekne po poriadku.

Foto: Robert Žákovič

Kontext a osadenie stavby

Vila stojí na hranici južne sa zvažujúceho pozemku s rozlohou viac ako šesťtisíc metrov štvorcových. Parcela ukončená v spodnej časti vzrastlým lesom je súčasťou svahu, ktorý klesá k neďalekej priehrade. Kľúčové pri tvorbe v takomto prostredí je osadenie, ktoré vo výsledku ovplyvní nielen prevádzku objektu ale aj jeho výslednú energetickú bilanciu. Architekt tiež niesol značnú zodpovednosť, keďže ide o jednu z najväčších stavieb v obci. Hneď po bývalej škole, alebo pamiatke ľudovej architektúry - drevenom evanjelickom kostolíku z roku 1783, ktorý je tiež v priamom vizuálnom kontakte s domom. Osadenie stavby v najvyššej časti pozemku umožňuje jednoduchý prístup a otvára pohľady do krajiny. Vykonzolovaná hmota poschodia prekrýva terasu, ktorá nadväzuje na svahovitú záhradu.

Práve spomínaný kostolík sa stal predobrazom pre celkovú koncepciu vily, ktorá súčasným jazykom interpretuje dualitu exteriéru a interiéru, pre lokálnu architektúru tak typickú.  

Foto: Robert Žákovič
Situácia
Situácia

Materiálová dualita

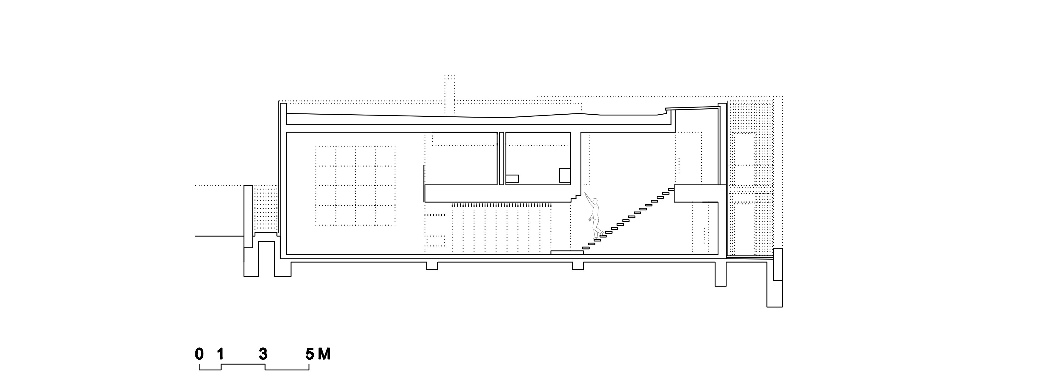
Kostru objektu tvorí drevená konštrukcia z krížom laminovaných drevených panelov kombinovaných s oceľovými nosnými prvkami. V súčasnosti čoraz obľúbenejšie riešenie umožnilo architektovi vyložiť nad terasu niekoľkometrovú konzolu s lodžiou a pracovať s variáciou na „plan libre“. Rozmerné zasklenie umožňuje nerušený výhľad do krajiny, ktorý bol jednou z priorít návrhu. Konštrukčná podstata domu je priamo čitateľná v interiéri. Drevená obálka obytných miestností je doplnená drevenou podlahou, schodiskom, či nábytkom s prírodnou kresbou dreva.

To však ťažko tušiť pri pohľade z ulice alebo zo záhrady. Fasáda z ohýbeného perforovaneho plechu pripomína čipkársku tradíciu regiónu. Tento prvok však nie je samoúčelný a neslúži iba na efekt. Profilovaný hliníkový plech - druhá koža objektu - slúži ako slnolam a chráni pred prehriatím poslednú obkladovú vrstvu z alucobondu. Zároveň funguje ako vetrolam. Bezúdržbový exteriér dopĺňajú gabionové koše naplnené miestnym kameňom.

Foto: Robert Žákovič

Dispozícia a prevádzka

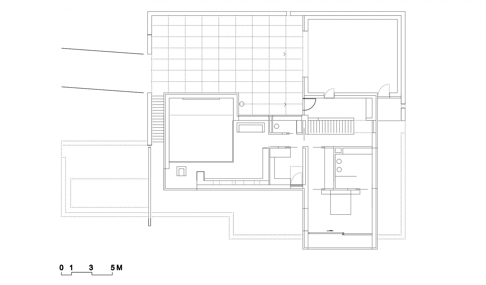
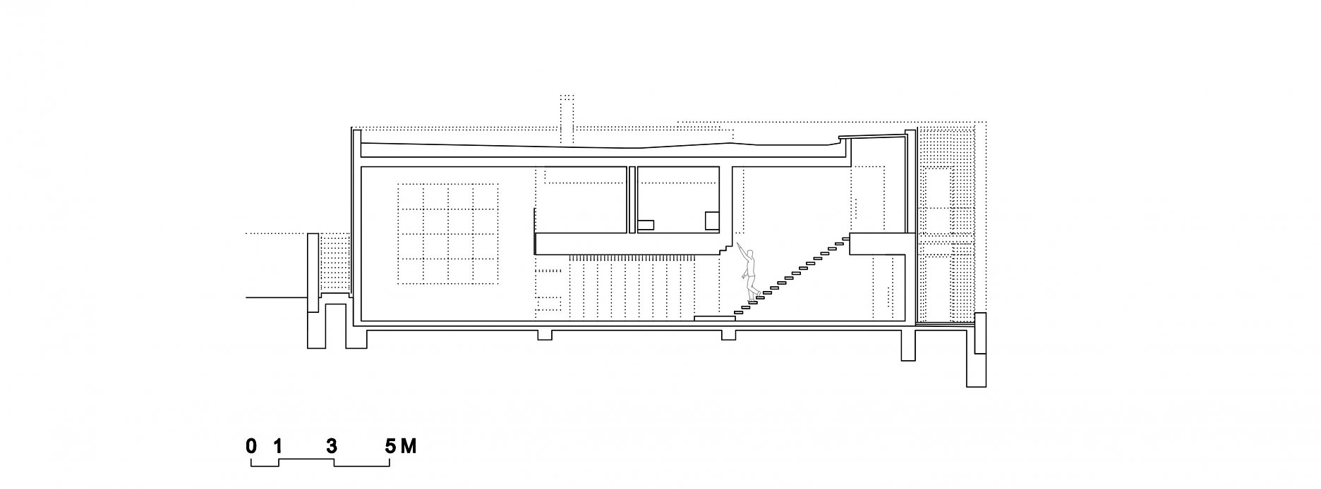
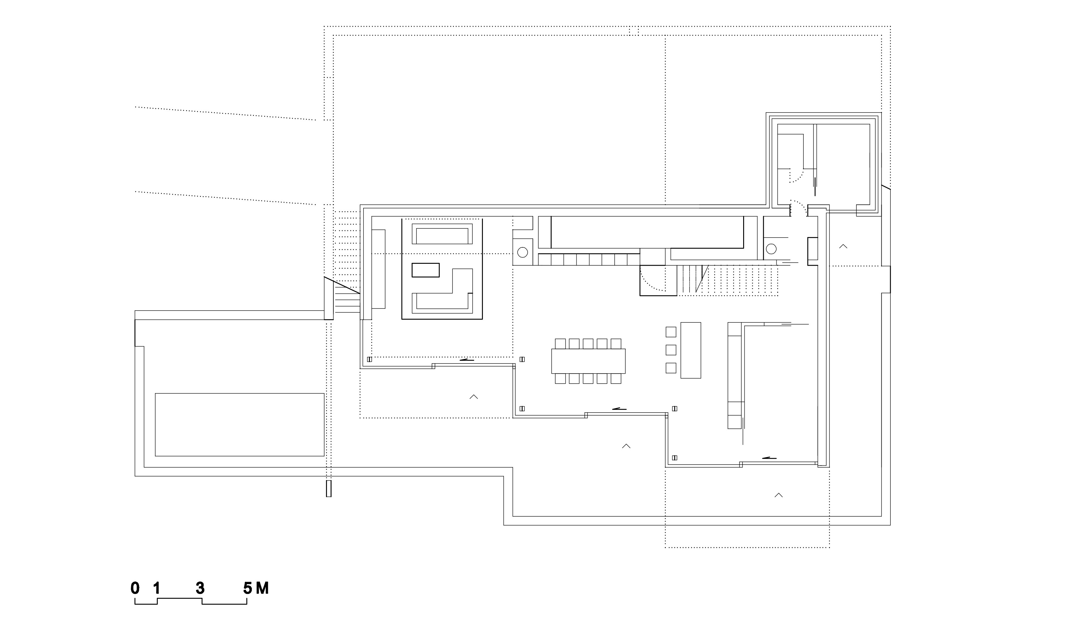
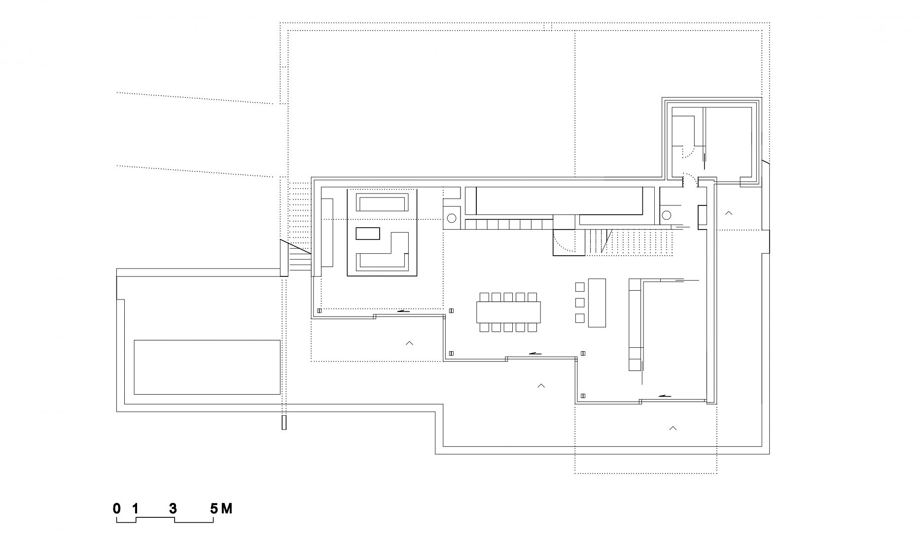
Prevádzka domu je vertikálne členená na dve časti. Nočná zóna je na poschodí a hlavná obytná časť je situovaná o úroveň nižšie. Obytné miestnosti sú orientované na juh, naopak na sever smeruje vstupný dvor, garáž a hospodárske priestory domu. V juhozápadnej časti domu priestorová koncepcia graduje dvojpodlažným obytným priestorom s galériou, knižnicou a rohovým oknom s výhľadom na blízky evanjelický kostolík.

Pôdorys 1. NP
Pôdorys 1. NP
Pôdorys 2. NP
Pôdorys 2. NP
Rez
Rez
Foto: Robert Žákovič
Foto: Robert Žákovič

Komplexné architektonické riešenie dopĺňa nábytok a doplnky navrhnuté na mieru. (Komody, nočné stolíky, jedálenský stôl, kuchyňa, radiátory, mydlovničky, vešiaky), ktoré prispievajú k dotiahnutiu a integrite diela. Splnenie pasívneho štandardu zabezpečuje vykurovanie tepelnými čerpadlamia a inteligentný systém riadenia budovy.

Foto: Robert Žákovič
Foto: Robert Žákovič
Foto: Robert Žákovič
Foto: Robert Žákovič

Podklady: TREF-Architekti

Poloha diela

Ing. arch. Zdeněk Trefil
Vložené
10. júl 2018
0
2011
Hlavný obsahHlavný obsah
Čakajte prosím