AMPHIBIA 3000 GRIP 1.3 od spoločnosti ATRO predstavuje modernú hydroizolačnú technológiu, ktorá spája vysokú odolnosť,...
Ambiciózne plány EK narazili na ekonomické možnosti domácností v jednotlivých členských štátoch –...
IDEA DOOR od spoločnosti JAP prináša do interiéru čistý minimalistický vzhľad vďaka bezrámovému riešeniu a precíznej...
Nástenné nadomietkové armatúry Vitus sú mimoriadne vhodné pre rýchlu a efektívnu...
Okenné profily z kompozitného materiálu RAU-FIPRO X od spoločnosti Rehau sú v porovnaní s tradičnými plastovými profilmi mnohonásobne...
Najnovší sortiment stolov pre zariadenie interiérov...
Spojenie moderného dizajnu, funkčnosti a svetla do harmonického architektonického prvku.
Kancelárska budova Baumit v slovinskom Trzine prešla premenou na moderné a udržateľné pracovisko. Architekti kládli dôraz...
Mottom šiesteho ročníku on-line konferencie odborníkov Xella Dialóg je Efektívny návrh budov 2025+: zmeny a riešenia
Robot WLTR predstavuje moderný prístup k murovaným konštrukciám. Vďaka automatizácii dokáže rýchlo, presne a bezpečne realizovať...
Okrem bezpečnosti majú okná aj elegantný vzhľad, pretože nie sú viditeľné žiadne uzamykacie časti kovania.
Dvere MASTER v skrytej zárubni AKTIVE je možné vyrobiť až do výšky 3 700 mm
Internorm stavia na energetickú efektívnosť a inteligentné tieniace riešenia.
Slovensko vo výbere zastupuje šesť realizácií.
Spoločnosť Internorm odteraz stavia na novej variante tepelnoizolačného skla od AGC, ktorá v produkcii ročne ušetrí 10...

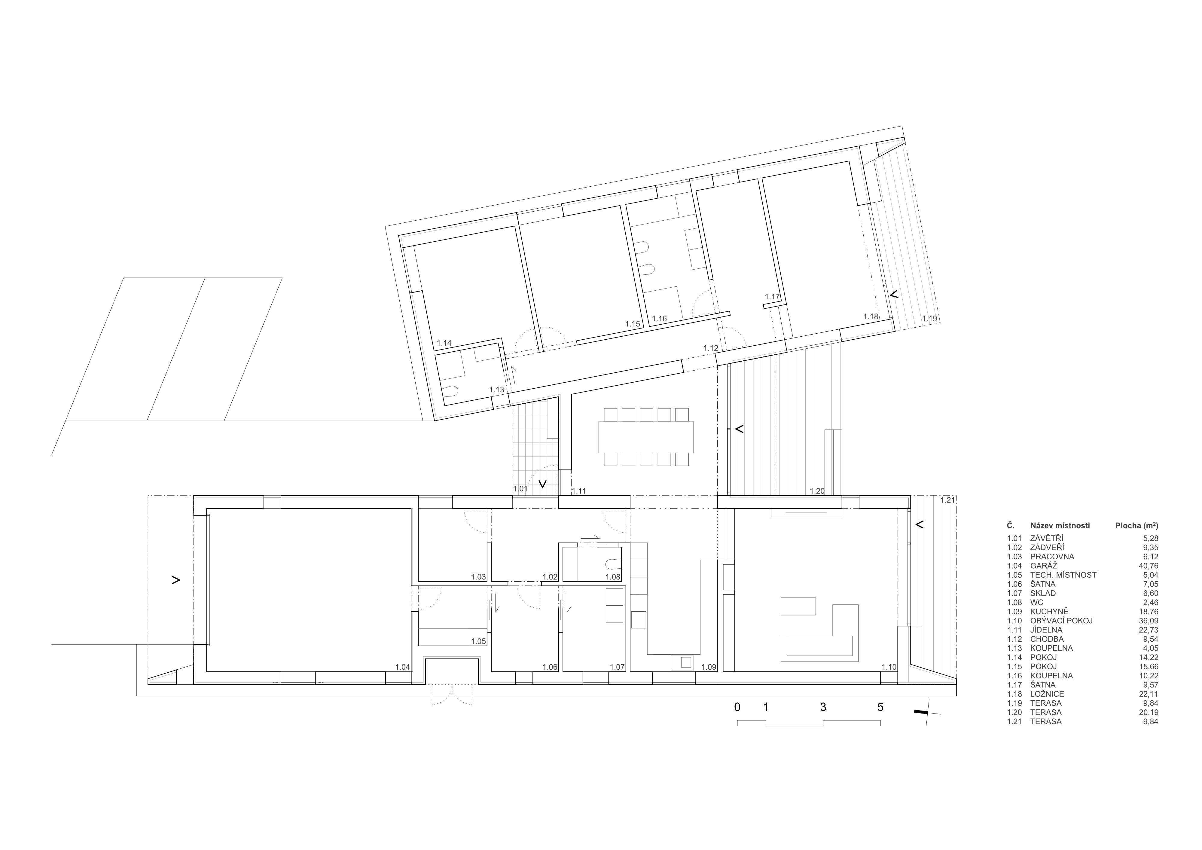
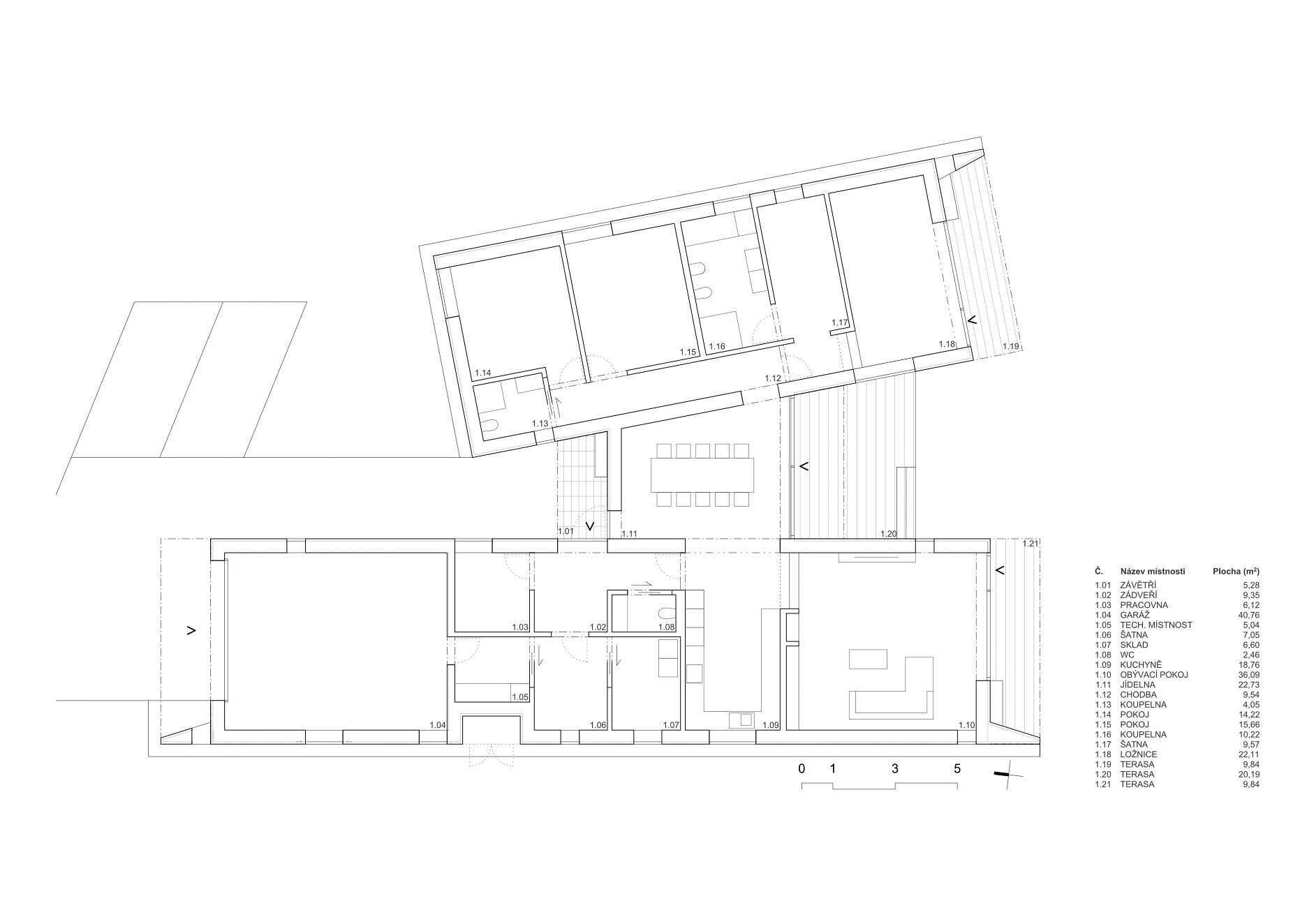
Realizácia z dielne ateliéru TREF-Architekti získala v uplynulom roku Hlavnú cenu v rámci súťaže Stavba roku Zlínského kraje v kategórii Rodinný dům. Vila, osadená v miernom svahu, stojí tesne za hranicou pamiatkovej zóny na severnom okraji trojtisícového moravského mesta Kelč.
Z východnej strany susedí parcela s dvojpodlažným rodinným domom, na protiľahlom pozemku je plánovaná nová výstavba. Smerom na juh sa otvárajú úchvatné výhľady na hrebeň Hostýnskych vrchov. Vstup a vjazd na pozemok vedú z miestnej komunikácie na severnej strane.
Architektonická koncepcia vily reaguje na uvedené východiská a požiadavku investora na vysokú mieru súkromia. Výsledkom je pôdorys v tvare nepravidelného písmena H, ktorý sa otvára smerom k južným výhľadom. Vo východnom krídle sa nachádza nočná zóna so spálňami, zatiaľ čo západné krídlo zastrešuje dennú zónu so vstupom a dvojgarážou. Obe krídla prepája jedáleň s prevýšenou pultovou strechou. Priestor pred jedálňou na severnej strane slúži ako závetrie a vstup do domu, na juhu sa nachádza obytná terasa.
Hlavné priestory domu – rodičovská spálňa, obytný priestor aj jedáleň – poskytujú obyvateľom výhľady na dominantnú panorámu Hostýnskych vrchov.
Podklady: TREF-Architekti
Fotografie: Robert Žákovič