Advertorial

Pozvánka na 2. ročník stavebného veľtrhu BigMarket na Slovensku

Na podujatí sa predstaví až 37 vystavovateľov - popredných dodávateľov stavebných materiálov a inovácií s prezentáciou...

Hotel Hirschen Spa House, Rakúsko

Novotvar v prostredí alpskej obce.

Vytvorte si kúpeľňu snov: dizajnové riešenie od značky hansgrohe

Hansgrohe - prémiová značka kúpeľňových riešení, ponúka nadčasový dizajn, technickú precíznosť a udržateľné inovácie...

Okná Internorm za minuloročné ceny + hliníkový kryt zdarma!

Využite špeciálnu akciu Internorm: okná za minuloročné ceny a hliníkový kryt úplne zadarmo. Ponuka je časovo obmedzená!

Moderné plynové technológie: Efektivita a inovácie pre 21. storočie

Sumarizácia najdôležitejších inovácií, ktoré redefinujúcich využitie tohto energetického zdroja.

Utesňovanie spodných stavieb pomocou hydro-aktívnej fólie AMPHIBIA.

AMPHIBIA 3000 GRIP 1.3 od spoločnosti ATRO predstavuje modernú hydroizolačnú technológiu, ktorá spája vysokú odolnosť,...

Dekarbonizácia individuálneho vykurovania domácností – Green Deal evolučne a nie revolučne

Ambiciózne plány EK narazili na ekonomické možnosti domácností v jednotlivých členských štátoch –...

Minimalistické dvere IDEA – technická precíznosť a čistota prevedenia

IDEA DOOR od spoločnosti JAP prináša do interiéru čistý minimalistický vzhľad vďaka bezrámovému riešeniu a precíznej...

Dom s výhľadom na údolie, Dlouhý Most (ČR)

Kontinuita riešenia od vonkajšieho obkladu až po kovania a kľučky.

Schell Vitus – osvedčené riešenie pre sprchy a umývadlá vo verejnom sektore s viac ako desaťročnou tradíciou

Nástenné nadomietkové armatúry Vitus sú mimoriadne vhodné pre rýchlu a efektívnu...

Kompozitné okná predstavujú súčasnosť a budúcnosť

Okenné profily z kompozitného materiálu RAU-FIPRO X od spoločnosti Rehau sú v porovnaní s tradičnými plastovými profilmi mnohonásobne...

Myotis - stoly 2025

Najnovší sortiment stolov pre zariadenie interiérov...

Priemyselné sklenené priečky Dorsis Digero: svetelné rozhranie pre moderné interiéry

Spojenie moderného dizajnu, funkčnosti a svetla do harmonického architektonického prvku.

Význam prirodzeného svetla pre moderné a flexibilné pracovné prostredie

Kancelárska budova Baumit v slovinskom Trzine prešla premenou na moderné a udržateľné pracovisko. Architekti kládli dôraz...

Konferencia Xella Dialóg predstaví novinky a trendy v stavebníctve

Mottom šiesteho ročníku on-line konferencie odborníkov Xella Dialóg je Efektívny návrh budov 2025+: zmeny a riešenia

Villa Kovacs, Piešťany

Mestská vila a záhradný ateliér z obdobia "prvej repubiky" prešli komplexnou rekonštrukciou. Napriek nutným stavebným zásahom sa architektom podarilo zachovať značnú časť dobových detailov.
Diela
Red 415.06.2018
34630+30
Villa Kovacs, Piešťany
Autori: Ing. arch. Ivo Flimmel, Ing. arch. Jaromír KrobotNávrh: 2015 - 2016Realizácia: 2016 - 2017Adresa: Kollárova ulica 13, 15 , Piešťany, SlovenskoPublikované: 15. jún 2018

Príklad, že sa oplatí venovať pozornosť aj “takým normálnym domom”. Kvalita je prítomná nielen v kultúrnych pamiatkach najvyšieho rangu.

Dielo bližšie predstavia autori:

Na obnove tohto domu sme pracovali dvaja, každý sme mali iné úlohy, preto aj autorské poznámky sú dve, s dvoma pohľadmi na vec.

Villa Kovacs, ako hlása nápis na fasáde, bola dielom a domovom významných piešťanských stavebných podnikateľov Jozefa Bertu a Alfréda Kovácsa. Neveľký, zato veľmi elegantný dvojpodlažný mestský dom na Kollárovej ulici bol miestom pre dva byty staviteľov, záhradný ateliér bol sídlom firmy. K obnove domu s pohnutým osudom sme pristupovali citlivo a s rešpektom, od začiatku sme to tak cítili. Nielen my, ale aj investor a stavitelia.

Technický stav si vyžiadal viaceré pokročilé riešenia týkajúce sa statiky a ochrany pred vlhkosťou, architektúra naopak prešla iba očistou, s dôrazom na jemnosť a výtvarnosť detailov, ktoré sme sa pokúsili preniesť do dnešného sveta a požiadaviek.

Jedným z motívov obnovy boli výplne otvorov. Z jestvujúcich dverí sa robili kópie, napodobňovali sa aj okná uličnej fasády. Niektoré typické prvky ako kvetináče a svetlíky sa repasovali, z niektorých bolo potrebné vytvoriť kópie - stavitelia napríklad pracne otláčali reliéfy a nápisy na fasáde. Niektoré cenné povrchy boli zachované a prezentované na mieste - takto ostali v pôvodnom stave schody, ich pôvabný zelený keramický sokel, obrazec v terrazze na prízemí alebo zábradlia.

Autorsky sme vstúpili iba do okolia. K domu pribudlo kryté parkovanie, poňaté ako ľahký biely pavilón, aký sa snáď hodí do kúpeľného mesta, dvor dostal novú dlažbu, pričom špárorezom a riešením okapových platní sme sa chceli priblížiť elegancii vily. Jestvujúce a výtvarne pôsobiace tehlové ploty sme doplnili nevysokou stenou z pohľadového betónu.

Stavbu realizovala zavedená piešťanská stavebná firma, čo je v kontexte histórie domu podľa mňa pekný moment.

Jaro Krobot

Foto: Katarína Turčanová

Pohľad Iva Flimmela:

Budova piešťanského sídla firmy Berta & Kovacs na Kollárovej ulici číslo 15  bola zrealizovaná v roku 1925. Tento vydarený autorský i realizačný počin bol dielom stavebných podnikateľov Jozefa Bertu (1877-1939) a Alfréda Kovácsa, podľa ktorého nesie objekt meno: Villa Kovacs. Firma sa podieľala na výstavbe viacerých objektov v Piešťanoch, ale aj v Trenčíne. Nakoľko však boli Berta a Kovács Židia, bola ich firma v roku 1941 zlikvidovaná.

Vila prešla za dlhé obdobie od svojho vzniku viacerými necitlivými stavebnými úpravami. Jednou z najbadateľnejších bolo obmurovanie a prekrytie terasy poschodia a „zrovnanie“ nárožia dvorovej fasády podľa prízemia. To viedlo k realizácii pultovej strechy. Krov bol “natlačený” pod jestvujúce okapy valbovej strechy nad poschodím, ktoré malo pôvodne pôdorysný tvar písmena L. Po overení viacerých variantných riešení sme sa však rozhodli túto časť zachovť, nakoľko sa podarilo konečný výzor prispôsobiť celkovému rázu budovy zjednotením fasád a okien.

Drevené stropy a krov vily, ktoré boli v minulosti neodborne menené, už staticky nezodpovedali ich pôvodnej funkcii. Aj kvôli celkovému spevneniu značne popraskanej budovy sme sa rozhodli pre oceľobetónové stropy so stužujúcimi vencami (pri zachovaní pôvodných drevených podláh), ktoré pôvodne chýbali. Taký istý postup bol použitý aj v objekte záhradného ateliéru.

Záhradný ateliér bol „vďaka“ zatekajúcej streche a prístavbám takmer úplne zavlhnutý. Objekt sme museli najprv stavebne vyčistiť, vymeniť strešnú krytinu, odstrániť všetky podlahy a stropy. Po vysušení bola stavba zvnútra pomocou bentonitových rohoží a zvonka použitím nopových fólií ochránená pred ďalším vlhnutím.

Nový krov vily kopíruje pôvodný tvar strechy, je však podchodný a staticky prispôsobený pre zateplenie a vnútorné zakrytie sadrokartónom. Priestor je možné celoročne využívať ako sklad, sú tu umiestnené kotle ústredného kúrenia. Na podlaží pod ním je plnohodnotný byt a na prízemí vznikli kancelárske priestory s kuchynkou a vlastným hygienickým zázemím. V objekte záhradného ateliéru sa zachovala pôvodná náplň: dvojpodlažné kancelárske priestory s vlastnou kuchynkou a hygienickým zariadením.

Dvor sa prispôsobil novej náplni a potrebám. Namiesto zbúraných hospodárskych prístavkov vznikol vzdušný prístrešok s parkovacími miestami pre tri autá a malý sklad. Zvyšné parkovacie miesta sú pred budovou záhradného ateliéru a na vydláždenej ploche za hlavným objektom vily.

Ľ.Mrňa v týždenníku Piešťanský týždeň (07.01.2017) píše: „Jemná dynamika decentne vydutého uličného priečelia tohto neveľkého dvojpodlažného domca má nepopierateľné architektonické kvality“. Aj preto sme k rekonštrukcii tejto mestskej vily a záhradného ateliéru pristupovali s vysokou mierou rešpektu a pokory v snahe o čo možno najmenej viditeľné zásahy. Aj napriek faktu, že osud a čas sa s touto stavbou vôbec nemaznal. Nekompetentné zásahy, prestavby a úpravy stavbu postupne znehodnotili. Príznačné dlhodobé zanedbávanie údržby viedlo k takmer úplnej devastácii. V spolupráci s Krajským pamiatkovým úradom sme hľadali najvhodnejšie riešenia. Či už ide o farebnosť a tektoniku fasád, výmenu strešných krytín, farbu okapov, alebo členenie a farebnosť okenných rámov. Z nášho pohľadu máme za to, že úspešne.

Priestorová schéma: vpravo dvojpodlažná mestská vila, vľavo záhradný pavilón s prístreškom
Priestorová schéma: vpravo dvojpodlažná mestská vila, vľavo záhradný pavilón s prístreškomAutori: Jaromír Krobot a Ivo Flimmel
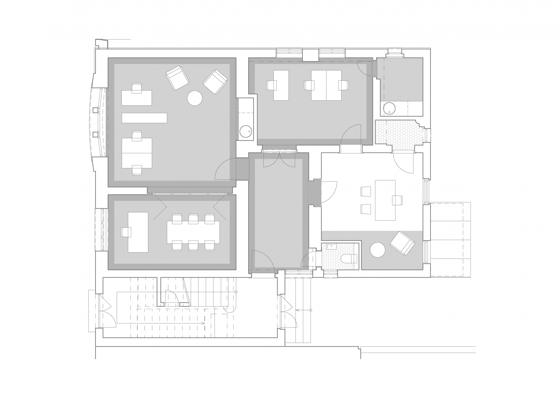
Vila - Pôdorys 1. NP
Vila - Pôdorys 1. NPAutori: Jaromír Krobot a Ivo Flimmel
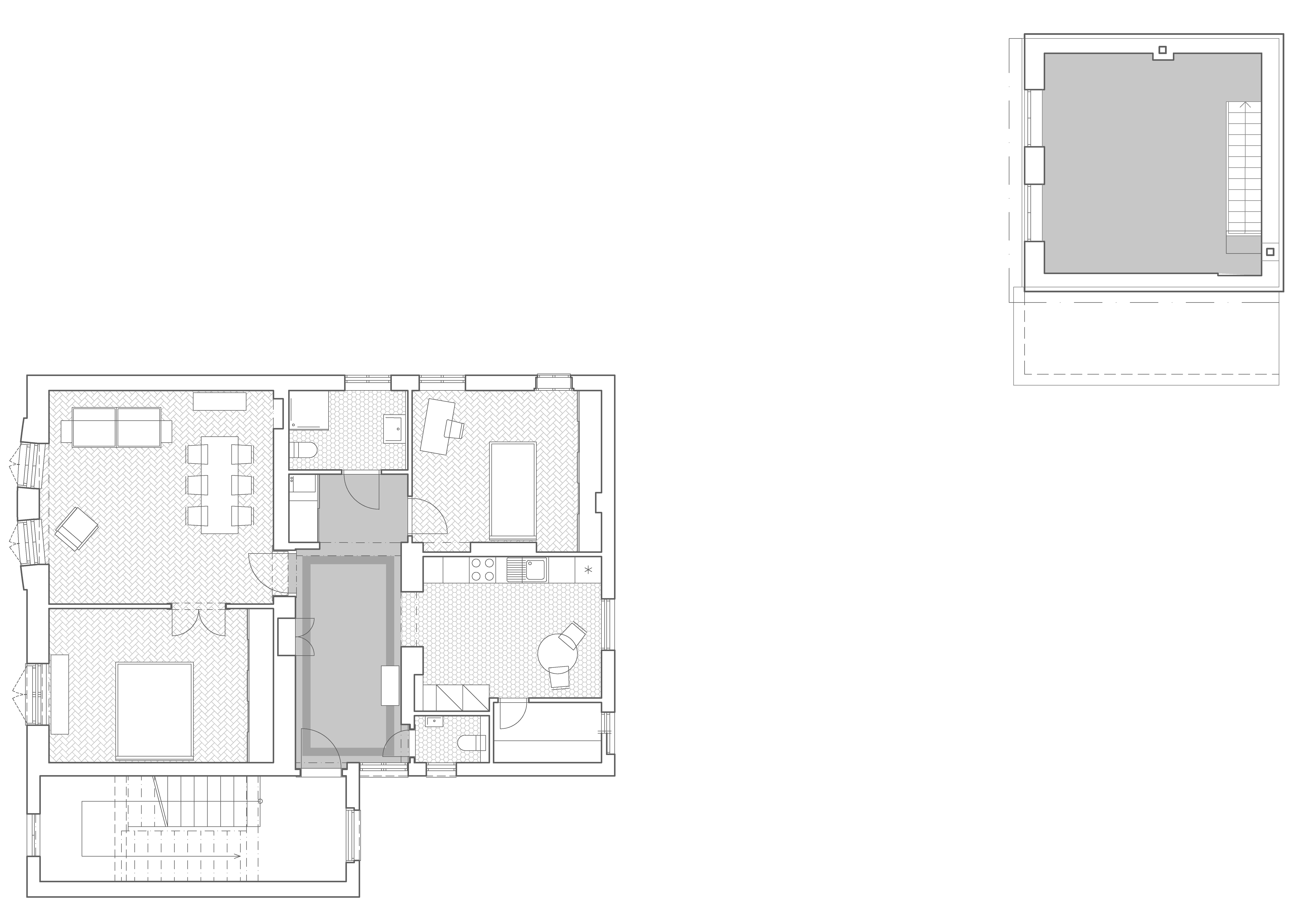
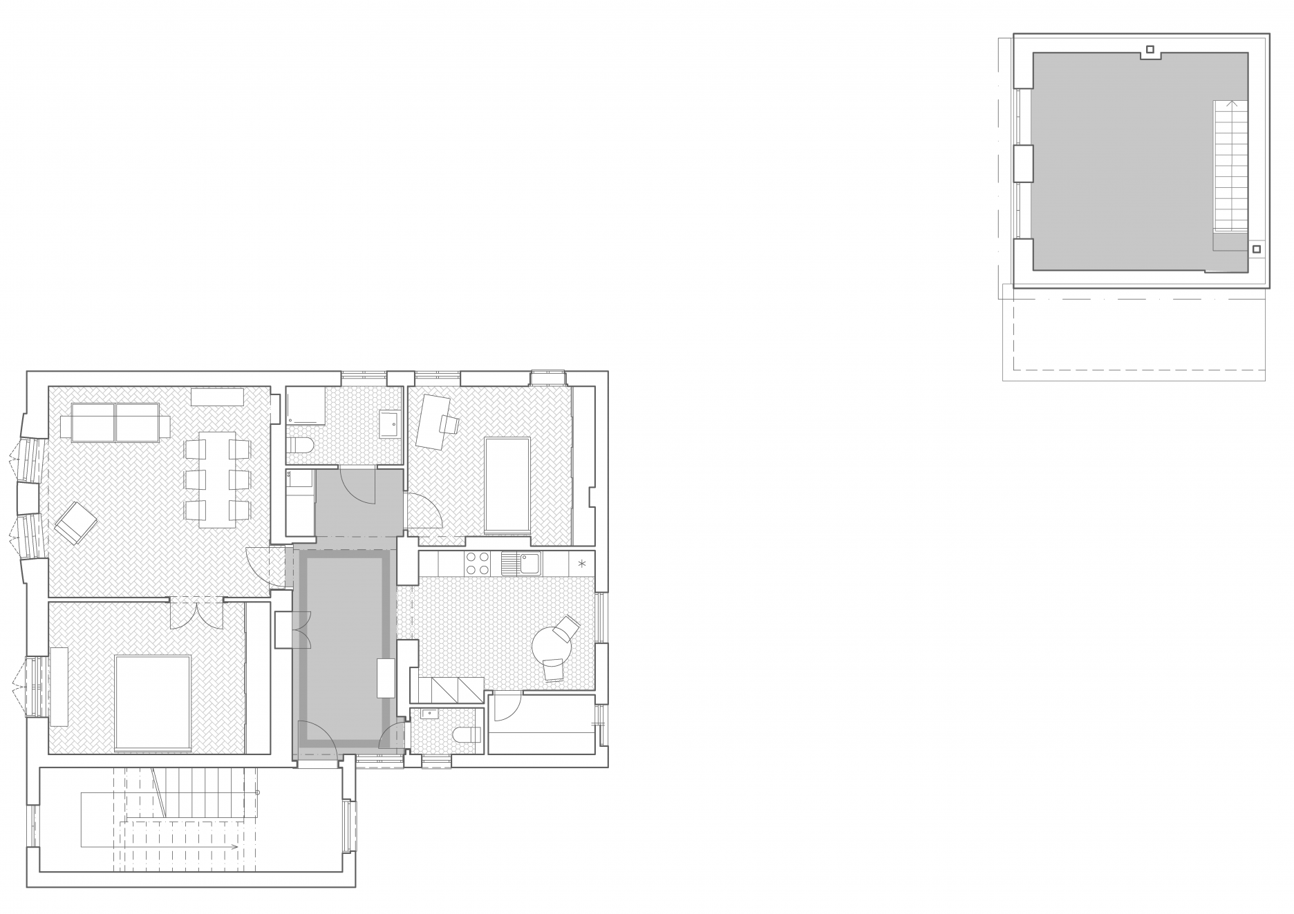
Vila a záhradný pavilón - Pôdorys 2. NP
Vila a záhradný pavilón - Pôdorys 2. NPAutori: Jaromír Krobot a Ivo Flimmel
Foto: Katarína Turčanová
Foto: Katarína Turčanová
Foto: Katarína Turčanová
Foto: Katarína Turčanová
Foto: Katarína Turčanová
Foto: Katarína Turčanová
Foto: Katarína Turčanová
Foto: Katarína Turčanová
Foto: Katarína Turčanová
Foto: Katarína Turčanová
Foto: Katarína Turčanová
Foto: Katarína Turčanová

Podklady: Jaromír Krobot a Ivo Flimmel

Poloha diela

Ing. arch. Ivo Flimmel
Ing. arch. Jaromír Krobot

Súvisiace články

Vložené
6. jún 2018
0
3463
Hlavný obsahHlavný obsah
Čakajte prosím