Novotvar v prostredí alpskej obce.
Hansgrohe - prémiová značka kúpeľňových riešení, ponúka nadčasový dizajn, technickú precíznosť a udržateľné inovácie...
Využite špeciálnu akciu Internorm: okná za minuloročné ceny a hliníkový kryt úplne zadarmo. Ponuka je časovo obmedzená!
Na podujatí sa predstaví až 37 vystavovateľov - popredných dodávateľov stavebných materiálov a inovácií s prezentáciou...
Sumarizácia najdôležitejších inovácií, ktoré redefinujúcich využitie tohto energetického zdroja.
AMPHIBIA 3000 GRIP 1.3 od spoločnosti ATRO predstavuje modernú hydroizolačnú technológiu, ktorá spája vysokú odolnosť,...
Ambiciózne plány EK narazili na ekonomické možnosti domácností v jednotlivých členských štátoch –...
IDEA DOOR od spoločnosti JAP prináša do interiéru čistý minimalistický vzhľad vďaka bezrámovému riešeniu a precíznej...
Kontinuita riešenia od vonkajšieho obkladu až po kovania a kľučky.
Nástenné nadomietkové armatúry Vitus sú mimoriadne vhodné pre rýchlu a efektívnu...
Okenné profily z kompozitného materiálu RAU-FIPRO X od spoločnosti Rehau sú v porovnaní s tradičnými plastovými profilmi mnohonásobne...
Najnovší sortiment stolov pre zariadenie interiérov...
Spojenie moderného dizajnu, funkčnosti a svetla do harmonického architektonického prvku.
Kancelárska budova Baumit v slovinskom Trzine prešla premenou na moderné a udržateľné pracovisko. Architekti kládli dôraz...
Mottom šiesteho ročníku on-line konferencie odborníkov Xella Dialóg je Efektívny návrh budov 2025+: zmeny a riešenia

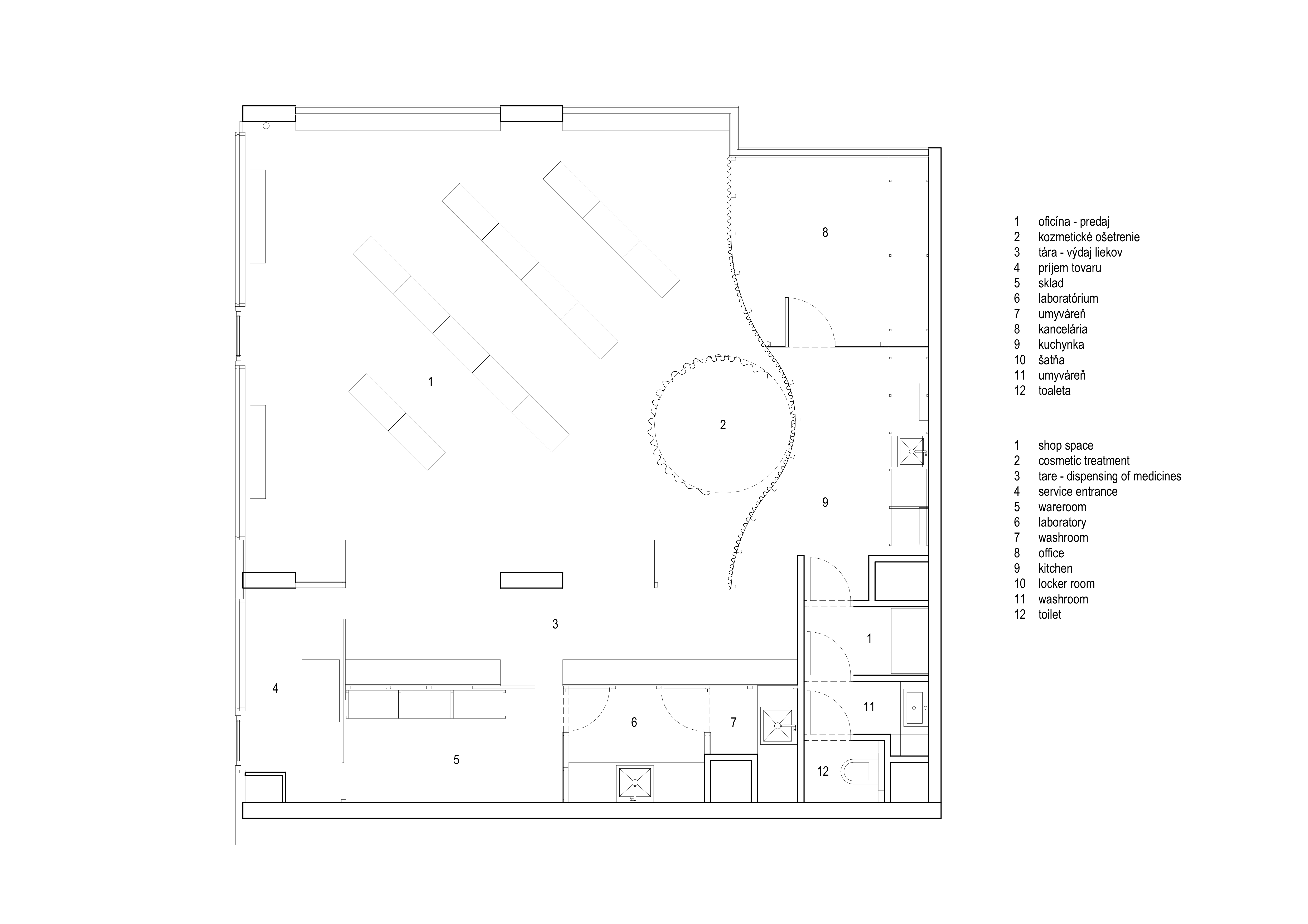
Interiér lekárne v parteri objektu Nová Vajnorská Nová Vajnorská z dielne ateliéru KROBOT HUDAČ.
Na podklade hrubej stavebnej obálky plynie priestor cez polopriehľadné vrstvy, zvlnené steny a ľahké závesy. Dennému svetlu tak nič nebráni, aby sa dostalo až do laboratória. Veľkorysá tára – archetyp historického pultu na prípravu liekov – tvorí srdce interiéru a zdôrazňuje osobný prístup k pacientovi.
Dielo predstavíme prostredníctvom sprievodného autorského textu:
Moderná holistická lekáreň s prípravou liekov. Bazálny priestor betónového kvádra s prednou presklenou stenou slúži ako kulisa. Do nej sme vložili viacvrstvový biely interiér s preplávajúcimi priestormi. Jednotlivé prvky tvoria plochy a prekrývajú pozadie vo vrstvách s priesvitnosťou, textúrou a tektonikou lekárskeho obväzu. Bolo pre nás dôležité, aby sa prirodzené svetlo dostalo aj do posledného kúta. Pura je čistená voda, ktorá sa používa pri výrobe liečiv. Beloba a základná materialita sú ekvivalentom pre čistotu, podstatu. Zvlnená stena a záves sú funkčné časti, ale zároveň zmäkčujú ostrosť línií a chladný materiál. Zrkadlo táry ukazuje na pacienta, zákazníka. To vy ste tu podstatní.
PURA je lekáreň vlastnená magistrami a ide o koncept ktorý je opozitom k sieťovým lekárňam, voči ktorým sa istým spôsobom vyhraňuje aj výtvarným interiérom. Dobrá starostlivosť o pacienta je podmienená jeho poznaním a pre túto lekáreň je dôležitá práve kmeňová základňa vlastných pacientov. Priestor odbytu preto dostal pomerne veľkú plochu a veľkú výraznú táru, ktorá je priestorom pre konzultácie. Tára je prípravný pult, názov pochádza z histórie lekárenstva, kedy sa práve tu lieky aj pripravovali. V súčasnosti prísne predpisy o lekárenskej praxi prípravu liečiv vyčlenili do samostatného laboratória s umyvárňou – toto tvorí lekárenské zázemie. Za výdajňou sa nachádza ešte sklad a priestor príjmu tovaru. Zázemie personálu je oddelené zvlnenou stenou, ide o kuchynku, kanceláriu, malú šatňu a hygienu. Snaha bola pomocou transparentných stien a nadsvetlíkov dostať denné svetlo všade v rámci interiéru. Transparentné steny sú zámerne vo viacerých plánoch, znížené, aj s plnou výškou, navrhnuté tak, aby pohyb a práca v priestore mohli byť plynulé. Jednotlivé miestnosti a zákutia sú iba naznačené, oddelené systémom paravánov.
Motív lekárskeho obväzu sa tu opakuje viackrát – bavilo nás skúšať výrobu vlastného umývateľného povrchu na steny s textúrou – použili sme sadrovú stierku, fasádnu sieťku, ktorej textúru sme zámerne odprezentovali, bielu farbu a lak. Ako obväz sa vrstvia aj spomínané priečky, pričom ich priesvitnosť vytvára pri vrstvení práve dojem balenia obväzom. V oficíne (odbytový priestor) sa ešte nachádza závesom oddelené miesto pre budúce kozmetické ošetrenia lekárenskou kozmetikou.
Dôležitým výtvarným prvkom je potom aj diagonálne osvetlenie, vytvorené na mieste z profilov pre výstavbu priečok. Znížené priečky umožnili spojiť rastrom osvetlenia celý hlavný priestor.
Materiály sme sa snažili používať veľmi jednoduché základné – pohybujeme sa hlavne okolo rôznych profilov, doskového materiálu. Stavebné hmoty – potery a strierky sú na báze príjemnej sadry. Pri drobnom autorskom mobiliári (stôl, pultíky) sme si pomohli debniacimi tvárnicami.
Našou snahou totiž bolo vytvoriť podnetné prostredie aj s čo možno najnižšími nákladmi. Priestor má ca 116,6m2 pri výške 3 metre. Náklady na stavbu dosiahli prbližne 80 tisíc eur, vrátane technického a zdravotníckeho vybavenia lekárne, laboratória a pokročilého vetracieho systému.
Ateliér: KROBOT HUDAČ
Fotografie: Peter Jurkovič