Advertorial

Pozvánka na 2. ročník stavebného veľtrhu BigMarket na Slovensku

Na podujatí sa predstaví až 37 vystavovateľov - popredných dodávateľov stavebných materiálov a inovácií s prezentáciou...

Hotel Hirschen Spa House, Rakúsko

Novotvar v prostredí alpskej obce.

Vytvorte si kúpeľňu snov: dizajnové riešenie od značky hansgrohe

Hansgrohe - prémiová značka kúpeľňových riešení, ponúka nadčasový dizajn, technickú precíznosť a udržateľné inovácie...

Okná Internorm za minuloročné ceny + hliníkový kryt zdarma!

Využite špeciálnu akciu Internorm: okná za minuloročné ceny a hliníkový kryt úplne zadarmo. Ponuka je časovo obmedzená!

Moderné plynové technológie: Efektivita a inovácie pre 21. storočie

Sumarizácia najdôležitejších inovácií, ktoré redefinujúcich využitie tohto energetického zdroja.

Utesňovanie spodných stavieb pomocou hydro-aktívnej fólie AMPHIBIA.

AMPHIBIA 3000 GRIP 1.3 od spoločnosti ATRO predstavuje modernú hydroizolačnú technológiu, ktorá spája vysokú odolnosť,...

Dekarbonizácia individuálneho vykurovania domácností – Green Deal evolučne a nie revolučne

Ambiciózne plány EK narazili na ekonomické možnosti domácností v jednotlivých členských štátoch –...

Minimalistické dvere IDEA – technická precíznosť a čistota prevedenia

IDEA DOOR od spoločnosti JAP prináša do interiéru čistý minimalistický vzhľad vďaka bezrámovému riešeniu a precíznej...

Dom s výhľadom na údolie, Dlouhý Most (ČR)

Kontinuita riešenia od vonkajšieho obkladu až po kovania a kľučky.

Schell Vitus – osvedčené riešenie pre sprchy a umývadlá vo verejnom sektore s viac ako desaťročnou tradíciou

Nástenné nadomietkové armatúry Vitus sú mimoriadne vhodné pre rýchlu a efektívnu...

Kompozitné okná predstavujú súčasnosť a budúcnosť

Okenné profily z kompozitného materiálu RAU-FIPRO X od spoločnosti Rehau sú v porovnaní s tradičnými plastovými profilmi mnohonásobne...

Myotis - stoly 2025

Najnovší sortiment stolov pre zariadenie interiérov...

Priemyselné sklenené priečky Dorsis Digero: svetelné rozhranie pre moderné interiéry

Spojenie moderného dizajnu, funkčnosti a svetla do harmonického architektonického prvku.

Význam prirodzeného svetla pre moderné a flexibilné pracovné prostredie

Kancelárska budova Baumit v slovinskom Trzine prešla premenou na moderné a udržateľné pracovisko. Architekti kládli dôraz...

Konferencia Xella Dialóg predstaví novinky a trendy v stavebníctve

Mottom šiesteho ročníku on-line konferencie odborníkov Xella Dialóg je Efektívny návrh budov 2025+: zmeny a riešenia

Rodinný dom pre divadelného režiséra a scénografku, Marchegg

Drevodom kúsok od našej západnej hranice.
Diela
Red 414.07.2020
60250+42
Rodinný dom pre divadelného režiséra a scénografku, Marchegg
Autori: Ing. arch. Michal Vacho, Ing. arch. Jaromír Krobot, Eva Kudláčová – Rácová (interiér)Návrh: 2018 - 2018Realizácia: 2018 - 2019Adresa: Marchegg , RakúskoPublikované: 14. júl 2020

Dvojica archetypálnych traktov / domov, v dotyčnici prepojených otvorenou dennou zónou, vytvára priestor pre život a kreatívnu prácu členov rodiny. Koncept počíta s možnosťou neskoršieho rozdelenia a samostatného fungovania oboch celkov. Architekt nastavil rámec, zvyšok ostal v kompetencii rodiny.

Foto: Eduard Kudláč
Foto: Eduard Kudláč

Realizáciu predstavujeme s textom Jara Krobota:

Dom pre divadelného režiséra a scénografku je scénou pre život. Ich, ich dvoch malých detí a staršej dcéry.

Stavba má nasledovné dejstvá: V prvom sú dva domy - jadro, v druhom interiér od Evy - scénografky, v treťom terasy a potom neplánovaný, ale skvelý domček na náradie. Naopak očakávame plánovanú garáž, časom snáď aj "kulisu / oponu" a vtáčiu búdku na zadnom štíte.

Autonómny a pre nás občas prekvapivý vznik a život jednotlivých častí tohto súboru sme postupne prijali, dokonca začali považovať za súčasť koncepcie domu. Do jeho vývoja aktívne zasahujú obyvatelia - spoluautori a pre nás sa proces stáva ešte zaujímavejším.

Celé toto predstavenie sa odohráva na pozadí veľmi výrazného fortifikačného múru z 13. storočia, ktorý dodáva obsahový rámec a pevné ukotvenie v čase.

Koncept domu je parafrázou, respektíve prevzatím "vzorca / patternu" sídelného plánu bývalého českého kráľovského mesta Marchegg, jeho takmer pravidelného zastavania, plných a prázdnych priestorov a hradieb, ktorý celé mestečko uzatvárajú do jedného celku. Našu "hradbu" má reprezentovať plánovaná "kulisa / opona" okolo domu - ľahká, tyčová (kov - drevo) perforovaná "hranica", uzatvárajúca aj otvárajúca svet domu.

Všetky hmoty v archetypálnom tvare, sú zjednodušené výrazom aj farbou - od domu, cez garáž až po kôlňu. Dom, respektíve dva domy sú oproti sebe posunuté, v ich prepojení je hlavný obytný priestor, veľký, spájajúci a zároveň členený tvarom stropu na dve menšie „územia“. Dva domy sú teraz domom pre rodinu a ateliér oboch rodičov s letnou izbou pre staršiu dcéru. Pripravené sú ale aj na možné rozdelenie na dva samostatné - každý so svojím zázemím, kde pomyselným miestom stretávania "námestím" sa stáva priestor obývacej izby. Priestory sú zámerne vyprázdnené, biele a čisté, ktoré si postupne naplnia ich obyvatelia. Detské izby sú dobrodružne v podkroví, do jednej z nich sa ide po rebríku.

Dom je drevostavba, vyrobená hneď za riekou - v rodinnej firme, v hale na Záhorí, dovezená a montovaná vo forme celých hotových stien priamo na mieste.

Foto: Eduard Kudláč
Foto: Eduard Kudláč
Situácia
Situácia
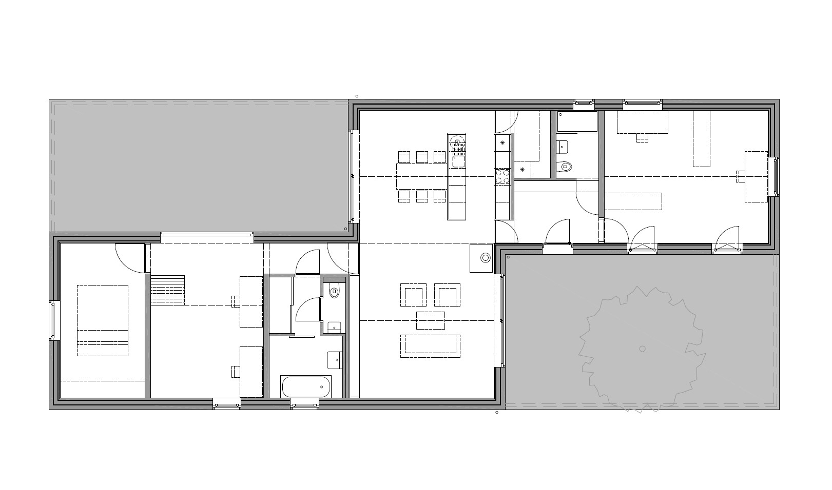
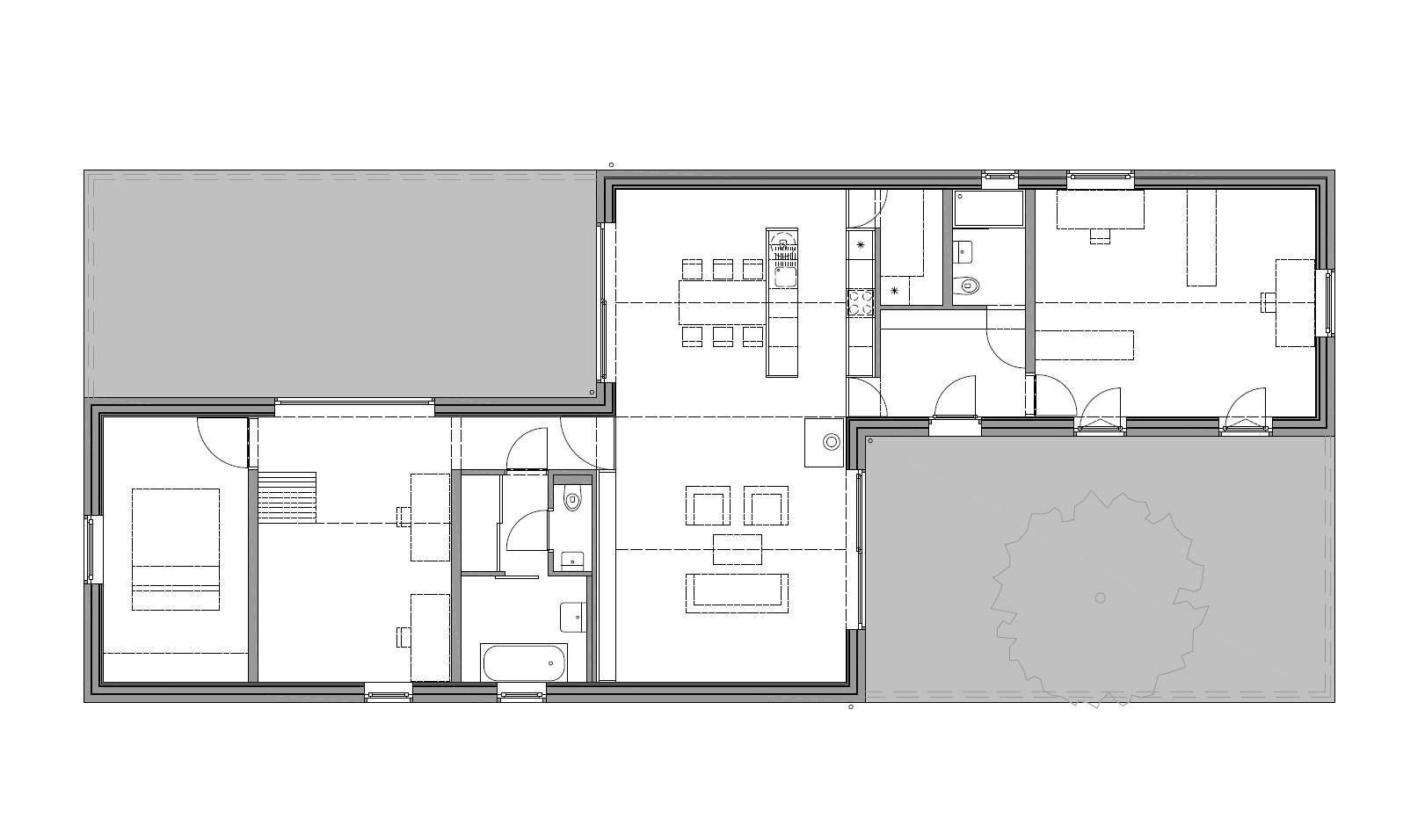
Pôdorys prízemia
Pôdorys prízemia
Pôdorys poschodia
Pôdorys poschodia
Rezy
Rezy
Pohľady
Pohľady
Foto: Eduard Kudláč
Foto: Eduard Kudláč
Foto: Eduard Kudláč
Foto: Eduard Kudláč
Foto: Eduard Kudláč
Foto: Eduard Kudláč
Foto: Eduard Kudláč
Foto: Eduard Kudláč
Foto: Eduard Kudláč
Foto: Eduard Kudláč

Fotografie pracovného modelu, ukazujú zamýšľanú finálnu podobu domu. “Opona" - ľahká perforovaná drevená konštrukcia, bude realizovaná v priebehu tohto, alebo budúceho roku.

Foto: archív autorov
Foto: archív autorov

Poloha diela

Ing. arch. Michal Vacho
Ing. arch. Jaromír Krobot
Eva Kudláčová – Rácová

Súvisiace články

Vložené
1. júl 2020
0
6025
Hlavný obsahHlavný obsah
Čakajte prosím