Advertorial

Pozvánka na 2. ročník stavebného veľtrhu BigMarket na Slovensku

Na podujatí sa predstaví až 37 vystavovateľov - popredných dodávateľov stavebných materiálov a inovácií s prezentáciou...

Hotel Hirschen Spa House, Rakúsko

Novotvar v prostredí alpskej obce.

Vytvorte si kúpeľňu snov: dizajnové riešenie od značky hansgrohe

Hansgrohe - prémiová značka kúpeľňových riešení, ponúka nadčasový dizajn, technickú precíznosť a udržateľné inovácie...

Okná Internorm za minuloročné ceny + hliníkový kryt zdarma!

Využite špeciálnu akciu Internorm: okná za minuloročné ceny a hliníkový kryt úplne zadarmo. Ponuka je časovo obmedzená!

Moderné plynové technológie: Efektivita a inovácie pre 21. storočie

Sumarizácia najdôležitejších inovácií, ktoré redefinujúcich využitie tohto energetického zdroja.

Utesňovanie spodných stavieb pomocou hydro-aktívnej fólie AMPHIBIA.

AMPHIBIA 3000 GRIP 1.3 od spoločnosti ATRO predstavuje modernú hydroizolačnú technológiu, ktorá spája vysokú odolnosť,...

Dekarbonizácia individuálneho vykurovania domácností – Green Deal evolučne a nie revolučne

Ambiciózne plány EK narazili na ekonomické možnosti domácností v jednotlivých členských štátoch –...

Minimalistické dvere IDEA – technická precíznosť a čistota prevedenia

IDEA DOOR od spoločnosti JAP prináša do interiéru čistý minimalistický vzhľad vďaka bezrámovému riešeniu a precíznej...

Dom s výhľadom na údolie, Dlouhý Most (ČR)

Kontinuita riešenia od vonkajšieho obkladu až po kovania a kľučky.

Schell Vitus – osvedčené riešenie pre sprchy a umývadlá vo verejnom sektore s viac ako desaťročnou tradíciou

Nástenné nadomietkové armatúry Vitus sú mimoriadne vhodné pre rýchlu a efektívnu...

Kompozitné okná predstavujú súčasnosť a budúcnosť

Okenné profily z kompozitného materiálu RAU-FIPRO X od spoločnosti Rehau sú v porovnaní s tradičnými plastovými profilmi mnohonásobne...

Myotis - stoly 2025

Najnovší sortiment stolov pre zariadenie interiérov...

Priemyselné sklenené priečky Dorsis Digero: svetelné rozhranie pre moderné interiéry

Spojenie moderného dizajnu, funkčnosti a svetla do harmonického architektonického prvku.

Význam prirodzeného svetla pre moderné a flexibilné pracovné prostredie

Kancelárska budova Baumit v slovinskom Trzine prešla premenou na moderné a udržateľné pracovisko. Architekti kládli dôraz...

Konferencia Xella Dialóg predstaví novinky a trendy v stavebníctve

Mottom šiesteho ročníku on-line konferencie odborníkov Xella Dialóg je Efektívny návrh budov 2025+: zmeny a riešenia

Byt pre malú rodinu v Jarovciach

Základné priestorové kvality a tvrdé povrchy vs. organické členenie priestoru a jemná farebnosť.
Diela
Red 314.03.2024
50400+167
Byt pre malú rodinu v Jarovciach
Autori: Ing. arch. Mgr.art. Peter Hudač, PhD., Ing. arch. Jaromír KrobotNávrh: 2022 - 2022Realizácia: 2023 - 2023Adresa: Jarovce, SlovenskoPublikované: 14. marec 2024

Jednoliaty, voľne plynúci obytný priestor. Bez dizajnových klišé, s autorskými solitérmi a detailmi, na mieru konkrétnym klientom...

 

Realizáciu predstavíme prostredníctvom autorského textu a fotografií Petra jurkoviča:

Byt sa nachádza v trojdome, ktorý je súčasťou novej štvrtrte v Jarovciach. Lineárna dispozícia dennej časti na prízemí smeruje k juhovýchodnému priehľadu do záhrady. Obytný priestor s exteriérom bezbariérovo prepája čiastočne krytá terasa. Presahujúci lychobežníkový objem poschodia zastrešuje nočnú zónu bytu - dvojicu izieb so spoločnou kúpeĺňou.

Pôvodná dispozičná schéma bola prirodzená a prehľadná,  s výnimkou kúpeľne nebolo potrebné do nej výrazne zasahovať. V návrhu sme potlačili slabé stránky interiéru a zároveň vyzdvihli jeho pozitíva. Vznikol osobitý priestor, ktorý zodpovedá požiadavkám a potrebám konkrétnych užívateľov.

Kvality bytu, ako veľkorysá svetlá výška a monolitický strop, majú oporu v materiálovom vymedzení. Protiváhou k nenasýtenej betónovej ploche stropu je smelý, ale jemný odtieň jednoliatej podlahy, ktorý sa zvolil vo vzťahu k investorom.

Vznikla tak "hracia plocha", na ktorej vystupujú rôzni aktéri. Jednotlivým komponentom interiéru priraďujeme rozličné vlastnosti. Každý vystupuje sám za seba, ale je prepojený vo vzájomných vzťahoch a odkazoch. Plné vodorovné plochy dopĺňajú líniové akcenty a solitéry.

Do popredia vystupuje siahodlhý stolársky prvok, ktorý prebieha z kuchynského pultu až do obývačkovej zostavy. V nočnej časti sa cez medziprvok schodiska mení kvalita povrchu a uberá farebná intenzita. Ostávajú jemné pastelové elementy - dvere, ktoré chcú splynúť, ale nie zaniknúť.

Prírodná kresba červeného smreka na podlahe vytvára spolu s natočením kontrastný vzor voči neutrálnemu pozadiu a vzdoruje neortogonálnym stenám. Každá miestnosť, aj keď je iba chodbou, alebo kúpeľňou, dostáva pozornosť a svetlo, akoby bola ďalšou izbou v dome. Byt je doplnený textilnými závesmi, ktoré tlmia a clonia, ale aj členia a dynamizujú životný priestor rodiny.

Foto: Peter Jurkovič
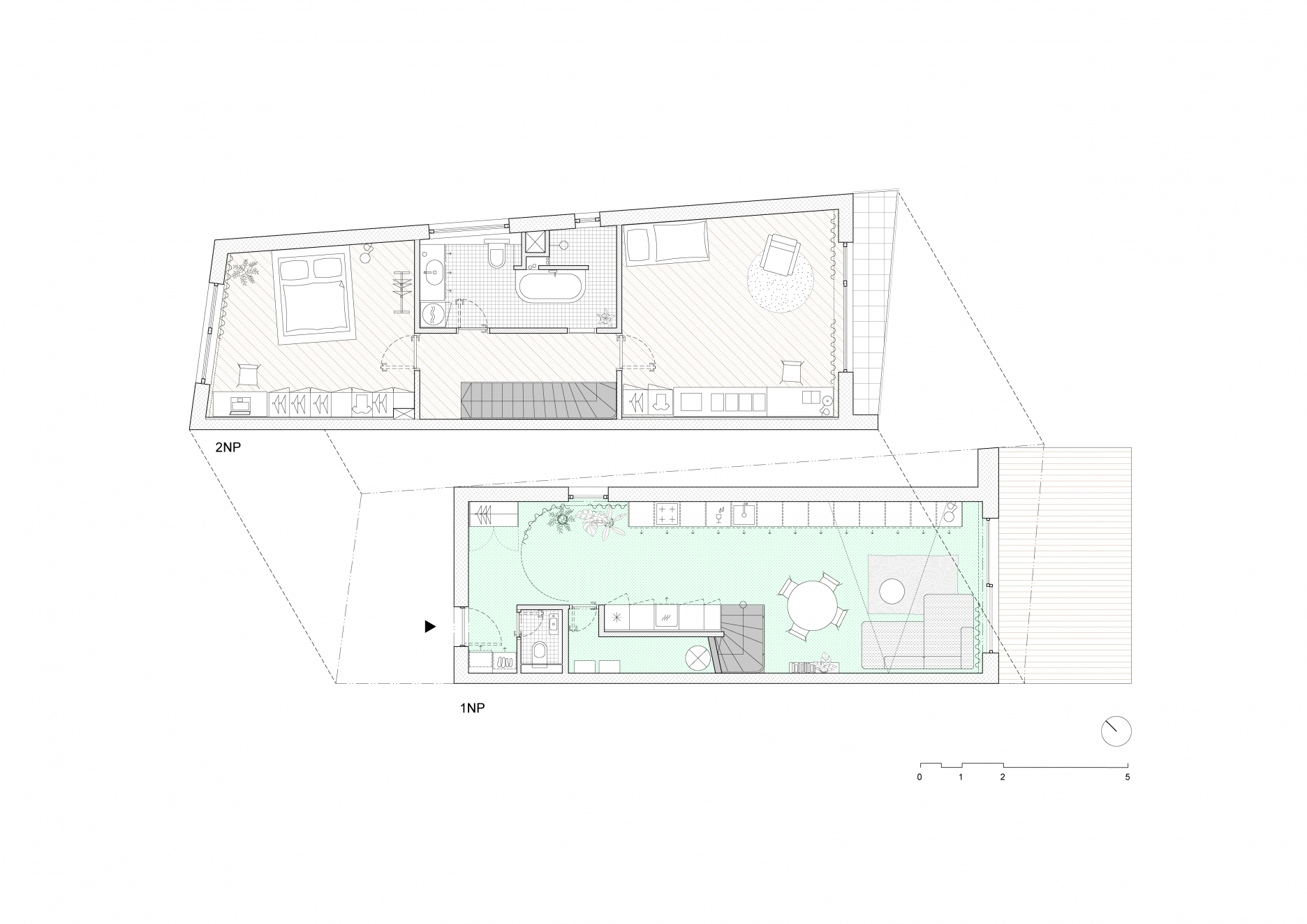
Pôdorysy - návrh
Pôdorysy - návrhAutor: Peter Hudač, spolupráca: Jaromír Krobot
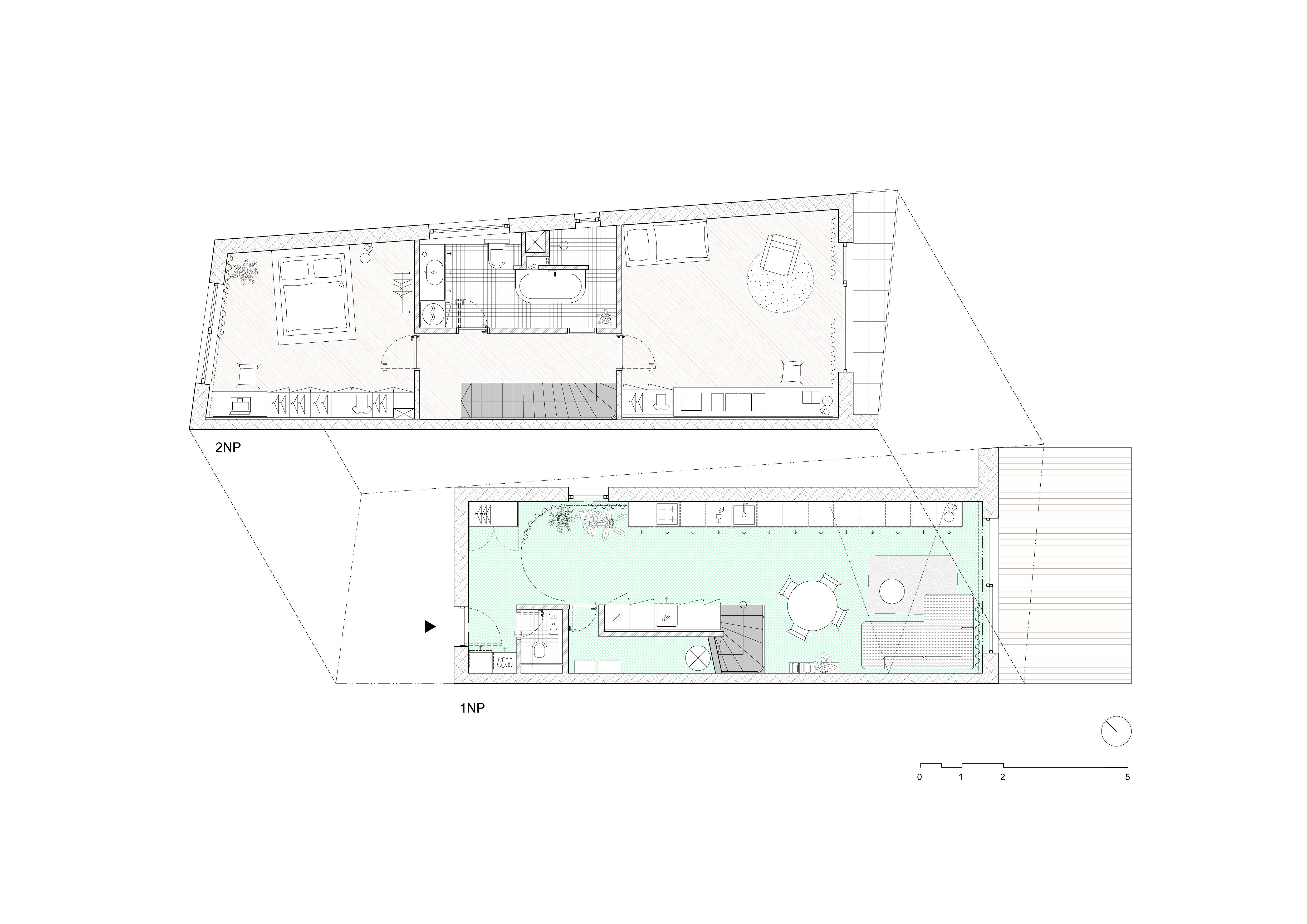
Axonometria - 1. NP
Axonometria - 1. NPAutor: Peter Hudač, spolupráca: Jaromír Krobot
Axonometria - 2. NP
Axonometria - 2. NPAutor: Peter Hudač, spolupráca: Jaromír Krobot
Foto: Peter Jurkovič
Foto: Peter Jurkovič
Foto: Peter Jurkovič
Foto: Peter Jurkovič
Foto: Peter Jurkovič
Foto: Peter Jurkovič
Foto: Peter Jurkovič
Foto: Peter Jurkovič
Foto: Peter Jurkovič
Foto: Peter Jurkovič
Foto: Peter Jurkovič
Foto: Peter Jurkovič
Foto: Peter Jurkovič
Foto: Peter Jurkovič
Foto: Peter Jurkovič
Foto: Peter Jurkovič
Foto: Peter Jurkovič
Foto: Peter Jurkovič

Podklady: Peter Hudač, Jaromír Krobot
Fotografie: Peter Jurkovič

Poloha diela

Ing. arch. Mgr.art. Peter Hudač, PhD.
Ing. arch. Jaromír Krobot

Súvisiace články

Vložené
13. marec 2024
0
5040
Hlavný obsahHlavný obsah
Čakajte prosím