Advertorial

Pozvánka na 2. ročník stavebného veľtrhu BigMarket na Slovensku

Na podujatí sa predstaví až 37 vystavovateľov - popredných dodávateľov stavebných materiálov a inovácií s prezentáciou...

Hotel Hirschen Spa House, Rakúsko

Novotvar v prostredí alpskej obce.

Vytvorte si kúpeľňu snov: dizajnové riešenie od značky hansgrohe

Hansgrohe - prémiová značka kúpeľňových riešení, ponúka nadčasový dizajn, technickú precíznosť a udržateľné inovácie...

Okná Internorm za minuloročné ceny + hliníkový kryt zdarma!

Využite špeciálnu akciu Internorm: okná za minuloročné ceny a hliníkový kryt úplne zadarmo. Ponuka je časovo obmedzená!

Moderné plynové technológie: Efektivita a inovácie pre 21. storočie

Sumarizácia najdôležitejších inovácií, ktoré redefinujúcich využitie tohto energetického zdroja.

Utesňovanie spodných stavieb pomocou hydro-aktívnej fólie AMPHIBIA.

AMPHIBIA 3000 GRIP 1.3 od spoločnosti ATRO predstavuje modernú hydroizolačnú technológiu, ktorá spája vysokú odolnosť,...

Dekarbonizácia individuálneho vykurovania domácností – Green Deal evolučne a nie revolučne

Ambiciózne plány EK narazili na ekonomické možnosti domácností v jednotlivých členských štátoch –...

Minimalistické dvere IDEA – technická precíznosť a čistota prevedenia

IDEA DOOR od spoločnosti JAP prináša do interiéru čistý minimalistický vzhľad vďaka bezrámovému riešeniu a precíznej...

Dom s výhľadom na údolie, Dlouhý Most (ČR)

Kontinuita riešenia od vonkajšieho obkladu až po kovania a kľučky.

Schell Vitus – osvedčené riešenie pre sprchy a umývadlá vo verejnom sektore s viac ako desaťročnou tradíciou

Nástenné nadomietkové armatúry Vitus sú mimoriadne vhodné pre rýchlu a efektívnu...

Kompozitné okná predstavujú súčasnosť a budúcnosť

Okenné profily z kompozitného materiálu RAU-FIPRO X od spoločnosti Rehau sú v porovnaní s tradičnými plastovými profilmi mnohonásobne...

Myotis - stoly 2025

Najnovší sortiment stolov pre zariadenie interiérov...

Priemyselné sklenené priečky Dorsis Digero: svetelné rozhranie pre moderné interiéry

Spojenie moderného dizajnu, funkčnosti a svetla do harmonického architektonického prvku.

Význam prirodzeného svetla pre moderné a flexibilné pracovné prostredie

Kancelárska budova Baumit v slovinskom Trzine prešla premenou na moderné a udržateľné pracovisko. Architekti kládli dôraz...

Konferencia Xella Dialóg predstaví novinky a trendy v stavebníctve

Mottom šiesteho ročníku on-line konferencie odborníkov Xella Dialóg je Efektívny návrh budov 2025+: zmeny a riešenia

Dom "PRST", Slovenská Kajňa

Rekonštrukcia stavby zo sedemdesiatych rokov. Pôvodné ostali iba obvodové múry. Do priestoru bola vložená nová “loftová” dispozícia. Vznikol tak interiér s nezvyčajnou svetlou výškou a priznanými konštrukciami schodiska a galérie.
Diela
Red 326.06.2018
42660+49
Dom "PRST", Slovenská Kajňa
Autori: Ing. arch. Jozef HudákPlocha pozemku: 912 m²Zastavaná plocha: 133 m²Podlažná plocha: 102 m²Obostavaný objem: 886 m ³Investičný náklad: 176.000 € (vrátane technológií)Návrh: 2015 - 0Realizácia: 2015 - 2018Adresa: Slovenská Kajňa 84, Vranov nad Topľou, SlovenskoPublikované: 26. jún 2018

Transformácia domu na dedine. Väčšina ulíc v našich obciach vyzerá podobne, ako ulica v Slovenskej Kajni, blízko Domaše. Heterogénna zástavba domov z rôzneho obdobia, rôznej podoby a rôznych architektonických kvalít. Naviac postupom času sú objekty “vylepšované” o rôznorodé dodatočné úpravy, prístavby a dostavby.

Rôznosť vôbec nemusí byť problém. Problémom je skôr kvalita objektov a ich okolia. Málo sa rozmýšľa. Skôr sa viac spontánne, bez rozmyslu robí. Bez vízie a bez presvedčivého názoru. Mechanicky, bez hlbšieho uvažovania sa zvyknú preberať zažité, videné postupy. Obvykle zvíťazí prístup “takto sa to robí, toto som videl”, prípadne sa preberajú vzory z lacných akciových ponúk predajní stavebnín, či z časopisov propagujúcich podobné "trendové" riešenia.

Prezentovaný príklad nás aj preto veľmi milo prekvapil. Je to silné gesto stavebníka i architekta, ktorí ukázali, že vlastný názor majú. A názor zaujímavý.  Dokonca aj fyzicky dotiahnutý do finálneho, hmatateľného výsledku. Výpoveď je zrejmá, priama, dostatočne jednoduchá a zároveň kultivovaná. (Škoda, že zrejmé kvality objektu nedosahuje exteriér. I ten, ktorý vyzerá byť fyzicky nový. Je to pravdepodobne spôsobené zložitými vzťahmi, genézou a procesom prestavby… Veríme, že aj vonkajšky (a okolie) dostanú časom presvedčivejšiu podobu).

Tešíme sa, že sa podarilo dielo, ktoré ukazuje jednu z možných dobrých ciest pre majiteľov staršieho stavebného fondu na vidieku. Ani táto cesta sa však nedá mechanicky preberať a napodobňovať. Poučenie je však v tom, že veci sa majú robiť profesionálne. A keď sa stretne inteligentný investor a dobrý architekt, tak sa dá dosiahnuť inšpiratívny výsledok aj na odľahlom a banálnom mieste. Názorný príklad, ako sa dajú veci riešiť a kvalitatívne posunúť dopredu. Jeden zo vzorov hodných nasledovania. Umocnený aj tým, že vznikol na východnom Slovensku, kde “nič nie je”.

Foto: Tomáš Topoľančín
Dom pred prestavbou -  marec 2016
Dom pred prestavbou - marec 2016Foto: Jozef Hudák

Rozsah zmien naznačuje už uličný pohľad a skladba okenných otvorov, za ktorými je "ukrytá" denná časť domu otvorená cez všetky podlažia. Plytká strešná konštrukcia a skryté žľaby nechávajú vyniknúť jednoduchú architektonickú kompozíciu. Oplotenie a dláždený vjazd k objektu ostali zachované.

Foto: Tomáš Topoľančín
Foto: Tomáš Topoľančín
Foto: Tomáš Topoľančín
Foto: Tomáš Topoľančín

Dispozícia

Zo zádveria sa vstupuje do centrálneho obývacieho priestoru, ktorý je otvorený cez všetky podlažia. Nosné a deliace steny sú vymurované z pohľadových debniacich tvaroviek. Za deliacou stenou v severnej časti domu sa nachádza technické a hygienické zázemie.

Pôdorys prízemia
Pôdorys prízemiaAutor: H2A | architects

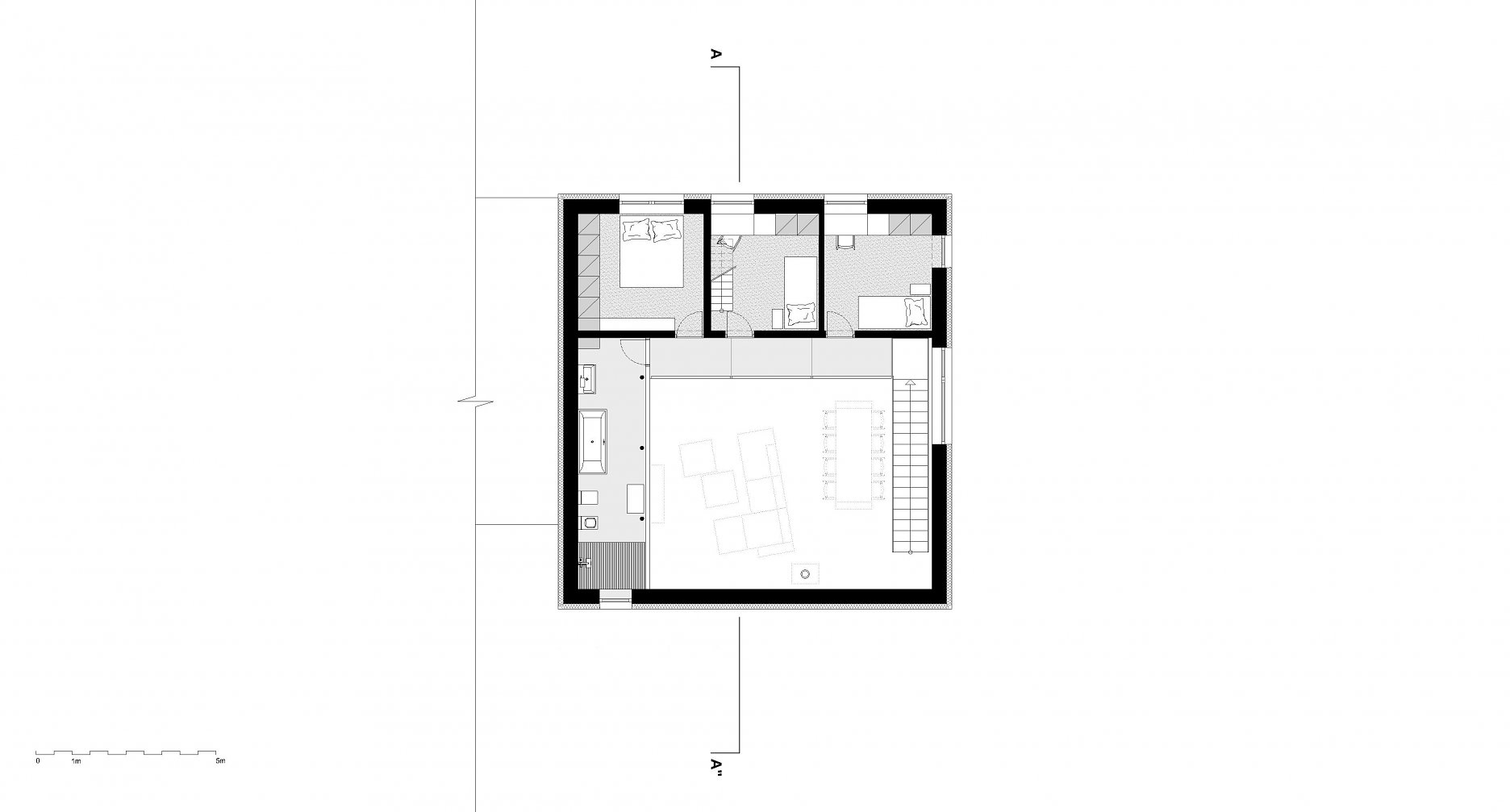
Miestnosti na poschodí sú prístupné cez galériu, na ktorú vedie samonosné oceľové schodisko. Rozmerná kúpeľňa na poschodí je umiestnená za translucentnou stenou z profilovaného stavebného skla. Z detskej izby je cez drevené konzolové schodisko prístupná malá herňa situovaná v priestore pod väzníkovým krovom. Vstavaný nábytok vyrobený z preglejky, oživuje interiér výraznou kresbou prírodného dreva.

Pôdorys poschodia
Pôdorys poschodiaAutor: H2A | architects

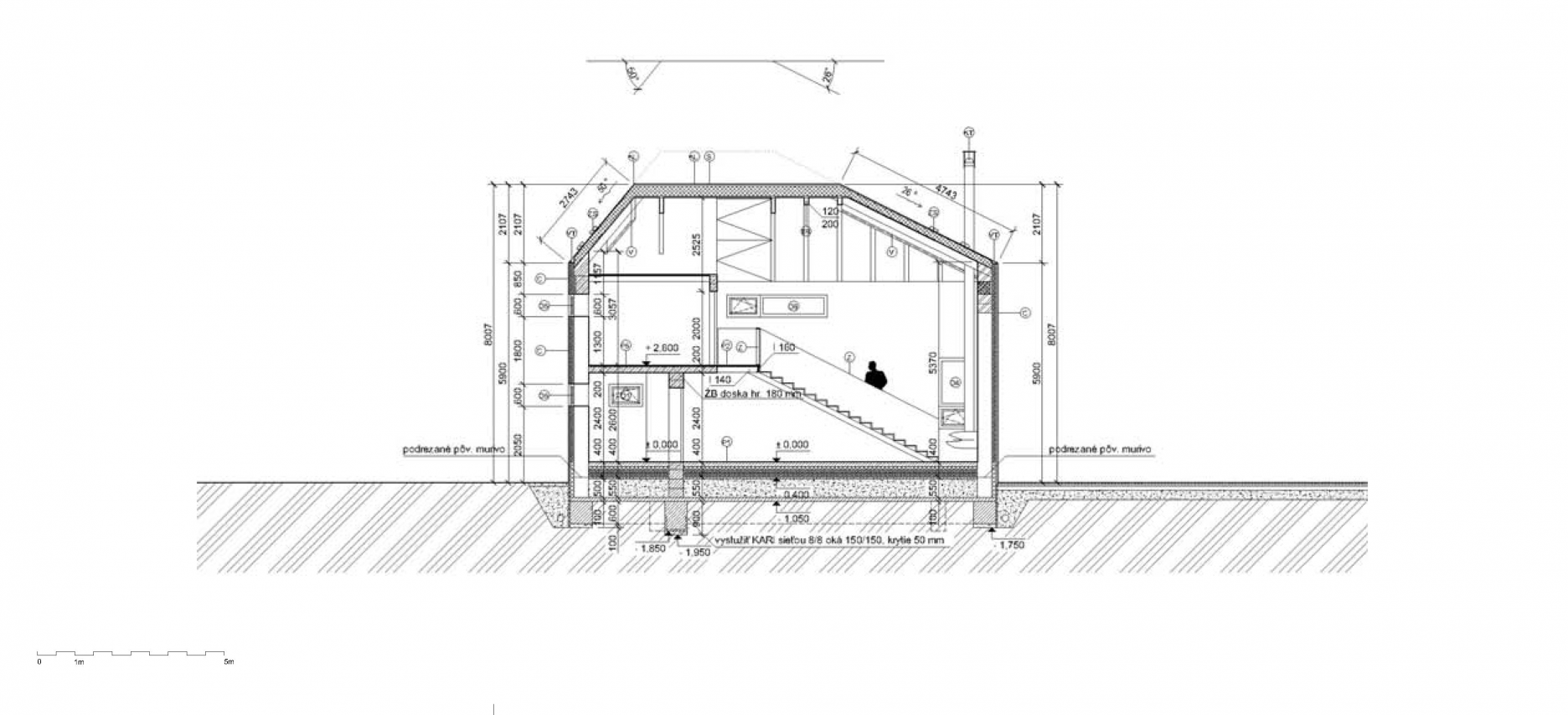
Krbové teleso s priznaným dymovodom v celelej výške obytného priestoru, repasované priemyselné lampy a odhalené rozvody vzduchotechniky dotvárajú architektonické riešenie. Vykurovanie a efektívnu prevádzku domu zabezpečuje tepelné čerpadlo, napojené na podlahové kúrenie a vetranie s rekuperáciou.

Rez A-A'
Rez A-A'Autor: H2A | architects
Pohľad južný
Pohľad južnýAutor: H2A | architects
Pohľad severný
Pohľad severnýAutor: H2A | architects
Pohľad východný
Pohľad východnýAutor: H2A | architects

Prevýšený priestor ponúka pohľady na nový oceľový väzníkový krov doplnený drevenými trámami. Tak ako strešná konštrukcia, aj ostatné nosné prvky v interiéri sú ponechané “v pohľade”. Materiály ako betón, oceľ, sklo a preglejka ostávajú obnažené, nechávajú vyniknúť prirodzenú farbu a textúru.

Foto: Tomáš Topoľančín
Foto: Tomáš Topoľančín
Foto: Tomáš Topoľančín
Foto: Tomáš Topoľančín
Foto: Tomáš Topoľančín
Foto: Tomáš Topoľančín
Foto: Tomáš Topoľančín
Foto: Tomáš Topoľančín
Foto: Tomáš Topoľančín
Foto: Tomáš Topoľančín
Foto: Tomáš Topoľančín
Foto: Tomáš Topoľančín
Foto: Tomáš Topoľančín
Foto: Tomáš Topoľančín
Foto: Tomáš Topoľančín
Foto: Tomáš Topoľančín
Foto: Tomáš Topoľančín
Foto: Tomáš Topoľančín
Foto: Tomáš Topoľančín
Foto: Tomáš Topoľančín
Dom počas stavebných prác
Dom počas stavebných prácFoto: Jozef Hudák

Interiér domu "PRST" v krátkom videu:

1073
Youtube

Podklady: H2A | architects

Poloha diela

Ing. arch. Jozef Hudák
Vložené
14. jún 2018
0
4266
Hlavný obsahHlavný obsah
Čakajte prosím