Advertorial

Pozvánka na 2. ročník stavebného veľtrhu BigMarket na Slovensku

Na podujatí sa predstaví až 37 vystavovateľov - popredných dodávateľov stavebných materiálov a inovácií s prezentáciou...

Hotel Hirschen Spa House, Rakúsko

Novotvar v prostredí alpskej obce.

Vytvorte si kúpeľňu snov: dizajnové riešenie od značky hansgrohe

Hansgrohe - prémiová značka kúpeľňových riešení, ponúka nadčasový dizajn, technickú precíznosť a udržateľné inovácie...

Okná Internorm za minuloročné ceny + hliníkový kryt zdarma!

Využite špeciálnu akciu Internorm: okná za minuloročné ceny a hliníkový kryt úplne zadarmo. Ponuka je časovo obmedzená!

Moderné plynové technológie: Efektivita a inovácie pre 21. storočie

Sumarizácia najdôležitejších inovácií, ktoré redefinujúcich využitie tohto energetického zdroja.

Utesňovanie spodných stavieb pomocou hydro-aktívnej fólie AMPHIBIA.

AMPHIBIA 3000 GRIP 1.3 od spoločnosti ATRO predstavuje modernú hydroizolačnú technológiu, ktorá spája vysokú odolnosť,...

Dekarbonizácia individuálneho vykurovania domácností – Green Deal evolučne a nie revolučne

Ambiciózne plány EK narazili na ekonomické možnosti domácností v jednotlivých členských štátoch –...

Minimalistické dvere IDEA – technická precíznosť a čistota prevedenia

IDEA DOOR od spoločnosti JAP prináša do interiéru čistý minimalistický vzhľad vďaka bezrámovému riešeniu a precíznej...

Dom s výhľadom na údolie, Dlouhý Most (ČR)

Kontinuita riešenia od vonkajšieho obkladu až po kovania a kľučky.

Schell Vitus – osvedčené riešenie pre sprchy a umývadlá vo verejnom sektore s viac ako desaťročnou tradíciou

Nástenné nadomietkové armatúry Vitus sú mimoriadne vhodné pre rýchlu a efektívnu...

Kompozitné okná predstavujú súčasnosť a budúcnosť

Okenné profily z kompozitného materiálu RAU-FIPRO X od spoločnosti Rehau sú v porovnaní s tradičnými plastovými profilmi mnohonásobne...

Myotis - stoly 2025

Najnovší sortiment stolov pre zariadenie interiérov...

Priemyselné sklenené priečky Dorsis Digero: svetelné rozhranie pre moderné interiéry

Spojenie moderného dizajnu, funkčnosti a svetla do harmonického architektonického prvku.

Význam prirodzeného svetla pre moderné a flexibilné pracovné prostredie

Kancelárska budova Baumit v slovinskom Trzine prešla premenou na moderné a udržateľné pracovisko. Architekti kládli dôraz...

Konferencia Xella Dialóg predstaví novinky a trendy v stavebníctve

Mottom šiesteho ročníku on-line konferencie odborníkov Xella Dialóg je Efektívny návrh budov 2025+: zmeny a riešenia

Rodinný dom s ateliérom (ČR)

Dom v prieluke.
Diela
Red 429.07.2018
38690+22
Rodinný dom s ateliérom (ČR)
Autori: Ing. arch. Hynek Holiš, Ing. arch. Šárka Holišová ŠochováSpolupráca: Magdaléna Myšková Kaščáková (návrh záhrady)Investor: Manželia HolišovciZastavaná plocha: 103 m2Podlažná plocha: 176,5 m2 Obostavaný objem: 650 m3Návrh: 2014 - 2015Realizácia: 2015 - 2016Adresa: Vlašimská 379, Benešov, Česká republikaPublikované: 29. júl 2018

Ako vyplniť medzeru v kompaktnej uličnej zástavbe malého mesta? Spojenie nového a starého v bezprostrednom dotyku. Ukážka jedného z príkladov, keď stavia architekt...

"Stavět dům v proluce bylo naším snem," prezrádzajú na úvod architekti a zároveň majitelia domu. Po troch rokoch hľadania vhodného pozemku v okolí Benešova, ho našli neďaleko centra mesta. Štvrť so zvyškami pôvodnej zástavby však poznačila nekoordinovaná výstavba z druhej polovice minulého storočia.

Foto: Tomáš Rasl

Rodinný dom s ateliérom stojí na mieste pôvodnej jednopodlažnej stavby, ktorá bola v čase kúpy v havarijnom stave. Aj napriek pešej dostupnosti centra mesta nemajú majitelia núdzu o zeleň. Záhrada, opticky prepojená so susediacimi dvormi, sa stáva súčasťou veľkého "sadu".

Situácia
SituáciaAutor: Holiš + Šochová architekti

“Koncept domu se zrodil ještě ten den, kdy jsme si pozemek poprvé prohlédli a v podstatě už se nezměnil,” objasňuje genézu architektonického riešenia tvorivá dvojica.

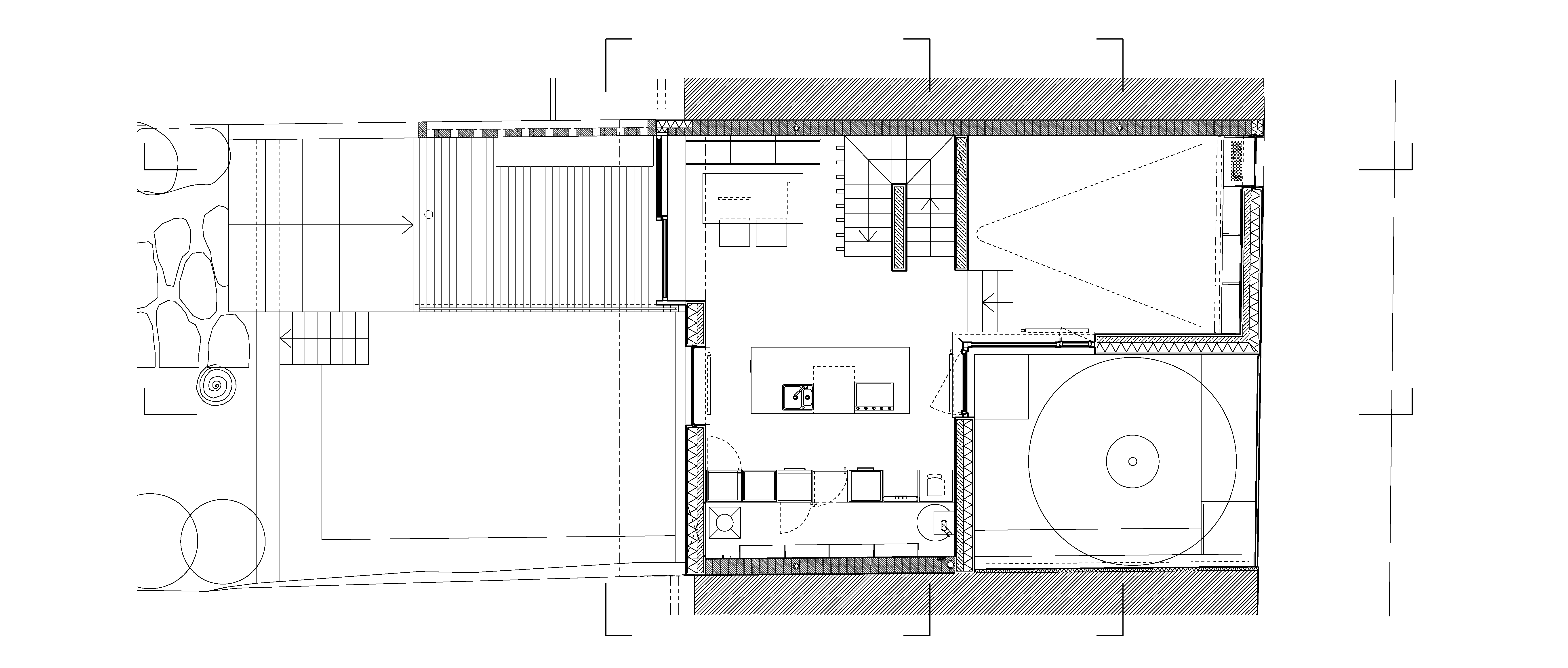
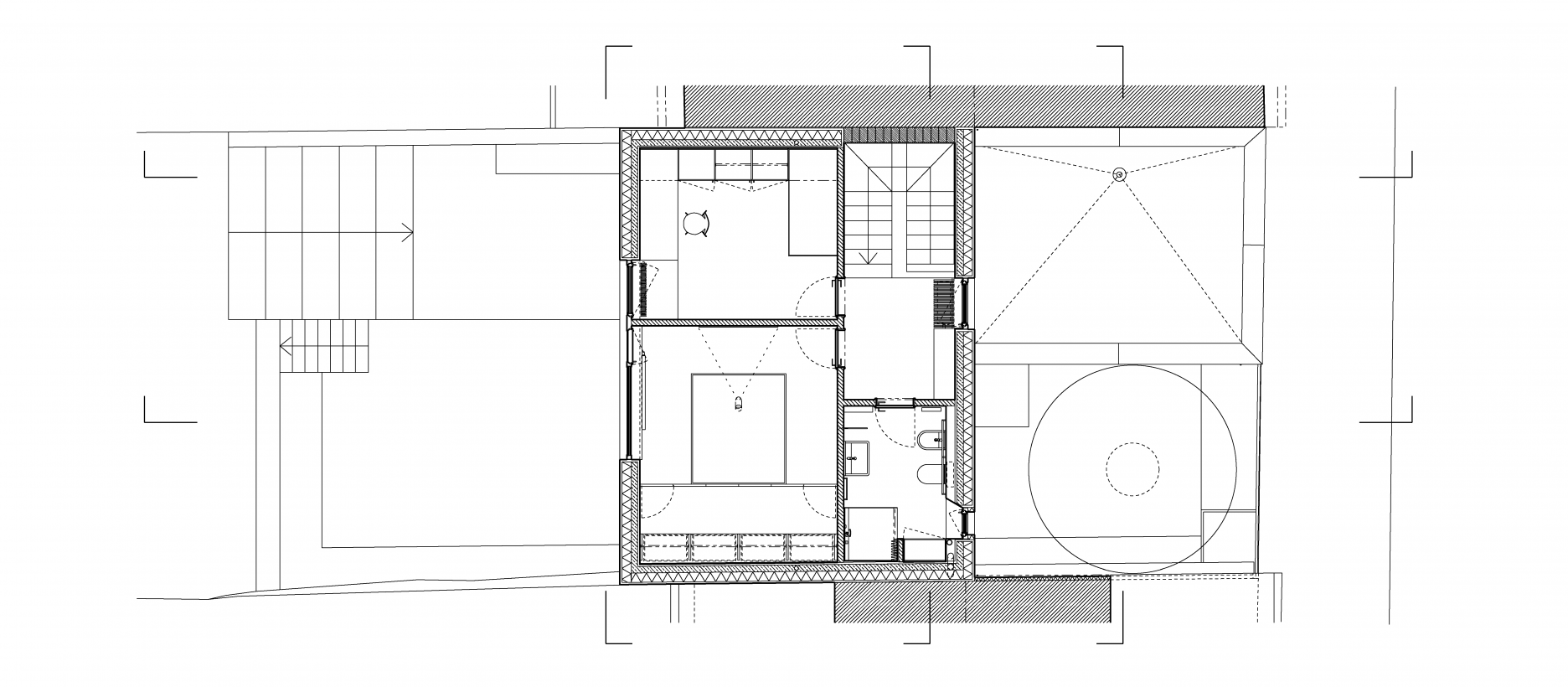
Na ateliéri (príležitostnej izbe pre hostí), garáži a zázemí domu je “posadená” obytná časť. Tvorí ju polozapustená a prevýšená obývacia izba a kuchyňa s jedálňou (obe priamo prepojené so záhradou). Nad hlavnou obytnou zónou je situovaná nočná časť s dvoma spálňami a kúpeľňou.

Foto: Tomáš Rasl

Nesúrodá architektúra a stvárnenie uličných fasád susedných domov dovolila architektom "vypustiť" časť priečelia v prospech vstupného dvora. Vzniklo tak kľudné predpolie a  príjemné priehľady z ateliéru na poschodí. Odstup obytnej časti od ulice spolu s prirodzeným tienením južného slnka korunou stromu umožnil orientovanie rozsiahleho presklenia obytných miestností do vnútorného dvora. Súkromný priestor od ulice oddeľuje rozmerná plechová brána. Jednotlivé časti domu výškovo nadväzujú na okolité rímsy a hrebene striech.

Foto: Tomáš Rasl
Foto: Tomáš Rasl

Vonkajšie povrchy majú zámerne hrubšiu štruktúru. Svetlá dvojvrstvová štuková omietka je na prízemí a v exponovaných miestach nahradená trvácnejšími materiálmi. Režné murivo a na čierno natreté maloformátové betónové tvárnice architekti kombinujú s nepravidelnou žulovou dlažbou a masívnymi kamennými a betónovými prvkami. 

Foto: Tomáš Rasl

Dom je vymurovaný z tvárnic Durisol, na ktoré sú položené železobetónové stropy. Tehly z pôvodného domu sa podarilo využiť na štítových nosných stenách, ktoré nemuseli byť tepelnoizolačné. "Nakonec to stačilo na přízemí, ostatní cihly jsou nové. Od začátku jsme také věděli, že když cihly, tak neomítané s přiznáním nekonečné struktury a všech nedokonalostí," dopĺňajú architekti.

Vykurovanie a ohrev vody zabezpečuje plynový kotol situovaný na “prostrednom” poschodí, v hospodárskej miestnosti medzi štítovým múrom a nábytkovou stenou oddeľujúcou kuchyňu. Zámerom architektov bolo skrátenie rozvodov vody a kúrenia. Súčasne sa im podarilo do jedného priestoru sústrediť špajzu, technické zázemie a práčku so sušičkou.

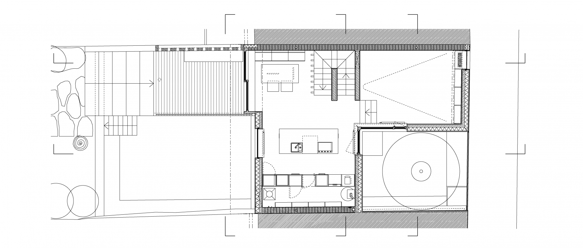
Pôdorys prízemia
Pôdorys prízemiaAutor: Holiš + Šochová architekti
Pôdorys hlavného obytného podlažia
Pôdorys hlavného obytného podlažiaAutor: Holiš + Šochová architekti
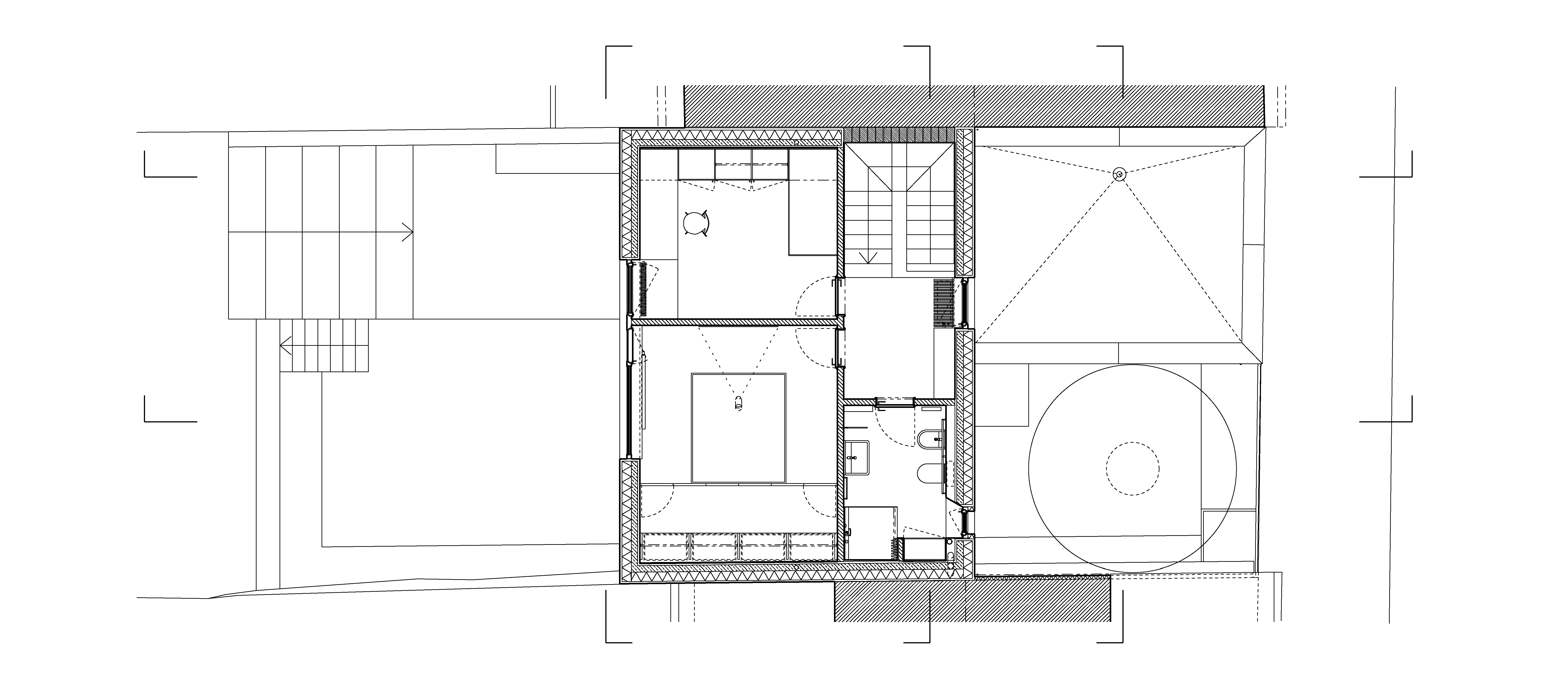
Pôdorys druhého nadzemného podlažia
Pôdorys druhého nadzemného podlažiaAutor: Holiš + Šochová architekti
Pôdorys strechy
Pôdorys strechyAutor: Holiš + Šochová architekti
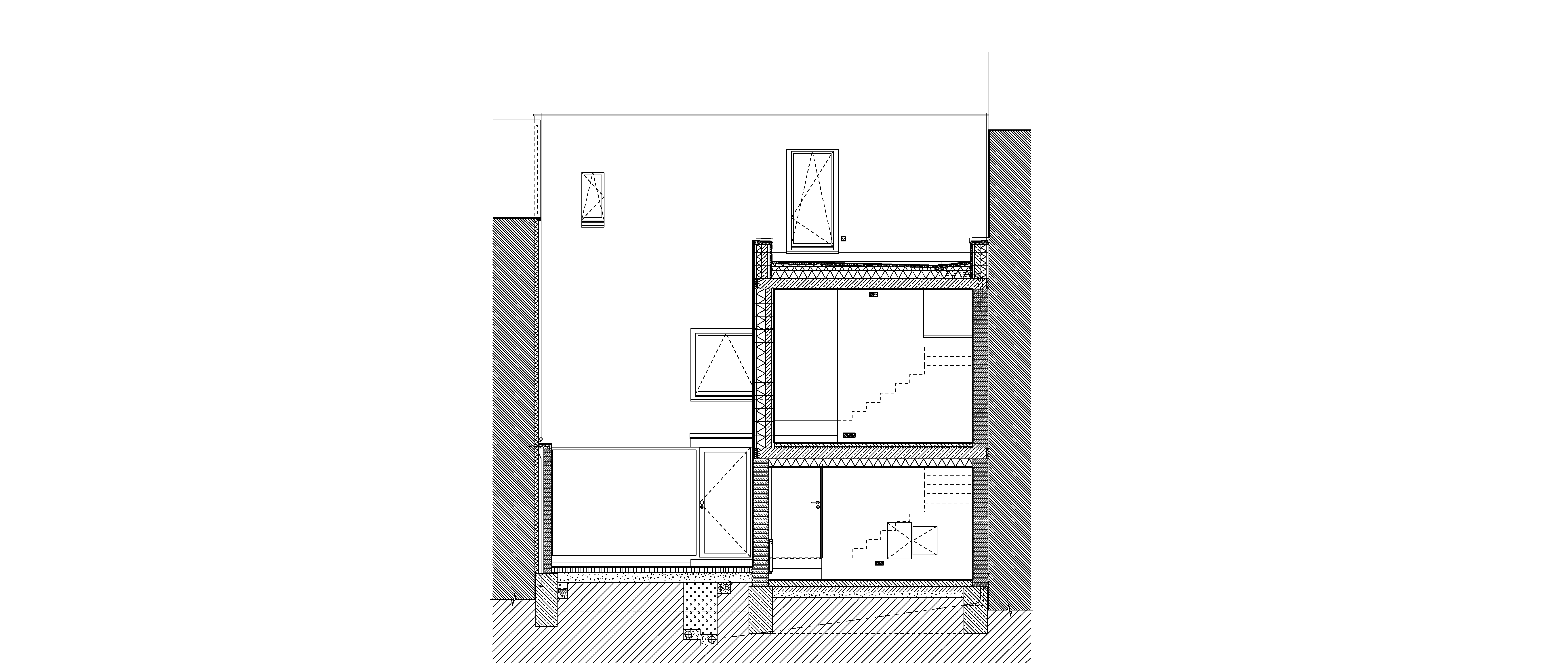
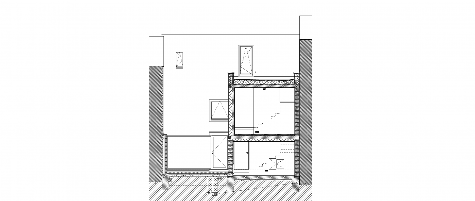
Rez
RezAutor: Holiš + Šochová architekti
Rez
RezAutor: Holiš + Šochová architekti
Rez
RezAutor: Holiš + Šochová architekti
Rez
RezAutor: Holiš + Šochová architekti
Rezopohľad zo záhrady
Rezopohľad zo záhradyAutor: Holiš + Šochová architekti
Pohľad z ulice
Pohľad z uliceAutor: Holiš + Šochová architekti
Situácia s architektonickým riešením záhrady
Situácia s architektonickým riešením záhradyAutor: Holiš + Šochová architekti

Podlahy sú z liateho terazza (v niektorých častiach betónová stierka prekrytá bavlnenými kobercami), steny omietané alebo z režného tehlového muriva. Tvrdé povrchy dopĺňa nábytok a schody zo smrekovcového dreva. Hliníkové okná na prízemí (fasáda ateliéru), striedajú v obytnej časti drevené profily.

Foto: Tomáš Rasl
Foto: Tomáš Rasl
Foto: Tomáš Rasl
Foto: Tomáš Rasl
Foto: Tomáš Rasl

Neoddeliteľnou súčasťou domu je exteriér. Zo stredu dláždenej plochy vstupného dvora vyrastá Gledíčia trojtŕňová. Záhrada za domom, ktorá nadväzuje na pobytovú terasu so sedením, je rozdelená nízkymi živými plotmi do troch za sebou radených častí. Okrasnú s levanduľou, množstvom trvaliek a bylinkami na prípravu jedál, pobytovú s ohniskom a muchovníkom a úžitkovú s jahodami, malinami a ovocnými stromami.

Foto: Tomáš Rasl
Foto: Tomáš Rasl
Foto: Tomáš Rasl
Foto: Tomáš Rasl
Foto: Tomáš Rasl

Poloha diela

Ing. arch. Hynek Holiš
Ing. arch. Šárka Holišová Šochová

Súvisiace články

Vložené
12. júl 2018
0
3869
Hlavný obsahHlavný obsah
Čakajte prosím