Advertorial

Pozvánka na 2. ročník stavebného veľtrhu BigMarket na Slovensku

Na podujatí sa predstaví až 37 vystavovateľov - popredných dodávateľov stavebných materiálov a inovácií s prezentáciou...

Hotel Hirschen Spa House, Rakúsko

Novotvar v prostredí alpskej obce.

Vytvorte si kúpeľňu snov: dizajnové riešenie od značky hansgrohe

Hansgrohe - prémiová značka kúpeľňových riešení, ponúka nadčasový dizajn, technickú precíznosť a udržateľné inovácie...

Okná Internorm za minuloročné ceny + hliníkový kryt zdarma!

Využite špeciálnu akciu Internorm: okná za minuloročné ceny a hliníkový kryt úplne zadarmo. Ponuka je časovo obmedzená!

Moderné plynové technológie: Efektivita a inovácie pre 21. storočie

Sumarizácia najdôležitejších inovácií, ktoré redefinujúcich využitie tohto energetického zdroja.

Utesňovanie spodných stavieb pomocou hydro-aktívnej fólie AMPHIBIA.

AMPHIBIA 3000 GRIP 1.3 od spoločnosti ATRO predstavuje modernú hydroizolačnú technológiu, ktorá spája vysokú odolnosť,...

Dekarbonizácia individuálneho vykurovania domácností – Green Deal evolučne a nie revolučne

Ambiciózne plány EK narazili na ekonomické možnosti domácností v jednotlivých členských štátoch –...

Minimalistické dvere IDEA – technická precíznosť a čistota prevedenia

IDEA DOOR od spoločnosti JAP prináša do interiéru čistý minimalistický vzhľad vďaka bezrámovému riešeniu a precíznej...

Dom s výhľadom na údolie, Dlouhý Most (ČR)

Kontinuita riešenia od vonkajšieho obkladu až po kovania a kľučky.

Schell Vitus – osvedčené riešenie pre sprchy a umývadlá vo verejnom sektore s viac ako desaťročnou tradíciou

Nástenné nadomietkové armatúry Vitus sú mimoriadne vhodné pre rýchlu a efektívnu...

Kompozitné okná predstavujú súčasnosť a budúcnosť

Okenné profily z kompozitného materiálu RAU-FIPRO X od spoločnosti Rehau sú v porovnaní s tradičnými plastovými profilmi mnohonásobne...

Myotis - stoly 2025

Najnovší sortiment stolov pre zariadenie interiérov...

Priemyselné sklenené priečky Dorsis Digero: svetelné rozhranie pre moderné interiéry

Spojenie moderného dizajnu, funkčnosti a svetla do harmonického architektonického prvku.

Význam prirodzeného svetla pre moderné a flexibilné pracovné prostredie

Kancelárska budova Baumit v slovinskom Trzine prešla premenou na moderné a udržateľné pracovisko. Architekti kládli dôraz...

Konferencia Xella Dialóg predstaví novinky a trendy v stavebníctve

Mottom šiesteho ročníku on-line konferencie odborníkov Xella Dialóg je Efektívny návrh budov 2025+: zmeny a riešenia

Kafkův Dům - kaviareň s galériou, Praha

Tektonika masívnych stien, priehľady, výškové rozdiely, atmosféra rastlého prostredia abstraktného mesta...
Diela
Red 310.09.2020
8290+10
Kafkův Dům - kaviareň s galériou, Praha
Autori: Ing. arch. Karel Scheib, MgA. Václav Šuba, MgA. Jakub ČervenkaSpolupráca: ateliér ANTA - autor rekonštrukcie celého domuInvestor: Hlavní město PrahaNávrh: 2018 - 2018Realizácia: 2019 - 2019Adresa: Staroměstské náměstí 2, Praha, Česká republikaPublikované: 10. september 2020

Kafkov dom v srdci Prahy slúžil v posledných rokoch ako priestor, kde sa na pravidelnej báze konali zaujímavé výstavy a podujatia. Objekt vo vlastníctve pražského magistrátu nedávno prešiel rozsiahlou rekonštrukciou pod taktovkou architektov Karla Scheiba a Tomáša Holuba z ateliéru ANTA. Horné poschodia vyplnili byty, kultúrna a spoločenská funkcia ostala zachovaná na prízemí a v suteréne. Nová kaviareň a podzemná galéria, realizovaná podľa návrhu pražského ateliéru OBJEKTOR ARCHITEKTI, pracuje s odkazmi a fragmentmi pôvodných objektov. Súčasná budova z prelomu 19. a 20. storočia totiž stojí na mieste vyhoreného rodného domu modernistického spisovateľa, ktorý zas vznikol o storočie skôr na základoch románskych budov. Naratív, plynúci vo viacerých rovinách v mnohom pripomína Kafkovu tvorbu.  

 

Projekt bližšie predstavia autori z ateliéru OBJEKTOR ARCHITEKTI:

Kafkův rodný dům ve své původní figuře padl za oběť požáru a pak definitivně asanaci židovského města. Objekt z roku 1902 integruje jen jeho fragmenty.

Návrh pracuje s vrstvou zmizelého městského prostředí, životem židovského města 19. století.

Odkaz na dnes neexistující průchod mezi domem a kostelem sv. Mikuláše je vepsán do nové arkády, procházející skrze celý parter v místě původní obvodové zdi. Arkáda přetíná hlavní prostor přízemí - kavárny, navádí ke schodišti, k vnitřnímu dvorku a zadním místnostem. Centrálním prvkem kavárny je bar z masivního dřevěného bloku. Jeho hmota zastřešuje všechny aktivity s barem spojené – zákazník je vtažen do procesu přípravy.

Suterénní expozice je průchozím labyrintem. Tektonika masivních stěn, průhledy, výškové rozdíly, atmosféra rostlého prostředí abstraktního města. Odkryté románské základy dají nahlédnout až do hloubky nejstarší zástavby; přemostěny ocelovou lávkou. Prostor umí být galerií, přednáškovou místností, kulturním prostorem...

Foto: Tomáš Souček
Foto: Tomáš Souček
Foto: Tomáš Souček
Foto: Tomáš Souček
Foto: Tomáš Souček
Foto: Tomáš Souček
Foto: Tomáš Souček
Foto: Tomáš Souček
Koláž
KolážAutor: OBJEKTOR ARCHITEKTI
Pôdorys 1. PP
Pôdorys 1. PPAutor: OBJEKTOR ARCHITEKTI
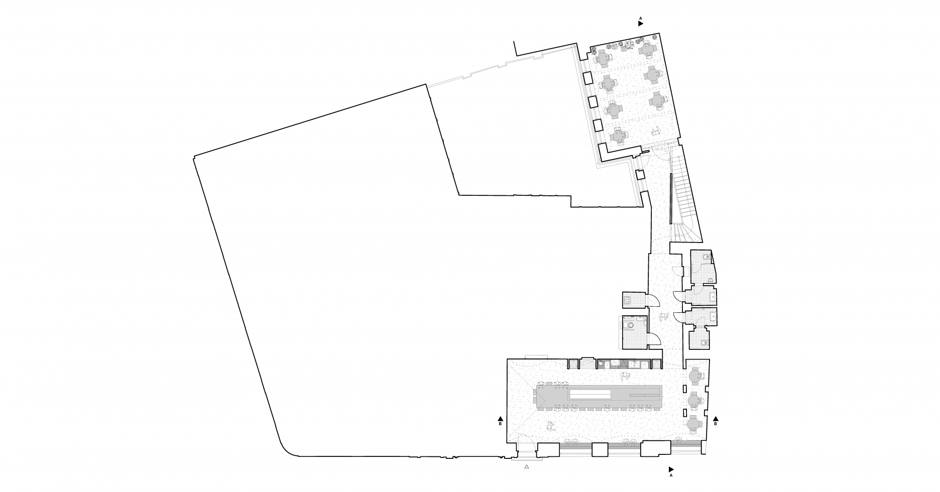
Pôdorys 1. NP
Pôdorys 1. NPAutor: OBJEKTOR ARCHITEKTI
Kaviareň - celkový pohľad
Kaviareň - celkový pohľadAutor: OBJEKTOR ARCHITEKTI
Kaviareň - detail
Kaviareň - detailAutor: OBJEKTOR ARCHITEKTI
Nová expozícia - celkový pohľad
Nová expozícia - celkový pohľadAutor: OBJEKTOR ARCHITEKTI
Foto: Tomáš Souček
Foto: Tomáš Souček
Foto: Tomáš Souček
Foto: Tomáš Souček
Foto: Tomáš Souček
Foto: Tomáš Souček
Foto: Tomáš Souček
Foto: Tomáš Souček
Foto: Tomáš Souček
Foto: Tomáš Souček

Poloha diela

Ing. arch. Karel Scheib
MgA. Václav Šuba
MgA. Jakub Červenka

Súvisiace články

Vložené
9. jún 2020
0
829
Hlavný obsahHlavný obsah
Čakajte prosím