Advertorial

Pozvánka na 2. ročník stavebného veľtrhu BigMarket na Slovensku

Na podujatí sa predstaví až 37 vystavovateľov - popredných dodávateľov stavebných materiálov a inovácií s prezentáciou...

Hotel Hirschen Spa House, Rakúsko

Novotvar v prostredí alpskej obce.

Vytvorte si kúpeľňu snov: dizajnové riešenie od značky hansgrohe

Hansgrohe - prémiová značka kúpeľňových riešení, ponúka nadčasový dizajn, technickú precíznosť a udržateľné inovácie...

Okná Internorm za minuloročné ceny + hliníkový kryt zdarma!

Využite špeciálnu akciu Internorm: okná za minuloročné ceny a hliníkový kryt úplne zadarmo. Ponuka je časovo obmedzená!

Moderné plynové technológie: Efektivita a inovácie pre 21. storočie

Sumarizácia najdôležitejších inovácií, ktoré redefinujúcich využitie tohto energetického zdroja.

Utesňovanie spodných stavieb pomocou hydro-aktívnej fólie AMPHIBIA.

AMPHIBIA 3000 GRIP 1.3 od spoločnosti ATRO predstavuje modernú hydroizolačnú technológiu, ktorá spája vysokú odolnosť,...

Dekarbonizácia individuálneho vykurovania domácností – Green Deal evolučne a nie revolučne

Ambiciózne plány EK narazili na ekonomické možnosti domácností v jednotlivých členských štátoch –...

Minimalistické dvere IDEA – technická precíznosť a čistota prevedenia

IDEA DOOR od spoločnosti JAP prináša do interiéru čistý minimalistický vzhľad vďaka bezrámovému riešeniu a precíznej...

Dom s výhľadom na údolie, Dlouhý Most (ČR)

Kontinuita riešenia od vonkajšieho obkladu až po kovania a kľučky.

Schell Vitus – osvedčené riešenie pre sprchy a umývadlá vo verejnom sektore s viac ako desaťročnou tradíciou

Nástenné nadomietkové armatúry Vitus sú mimoriadne vhodné pre rýchlu a efektívnu...

Kompozitné okná predstavujú súčasnosť a budúcnosť

Okenné profily z kompozitného materiálu RAU-FIPRO X od spoločnosti Rehau sú v porovnaní s tradičnými plastovými profilmi mnohonásobne...

Myotis - stoly 2025

Najnovší sortiment stolov pre zariadenie interiérov...

Priemyselné sklenené priečky Dorsis Digero: svetelné rozhranie pre moderné interiéry

Spojenie moderného dizajnu, funkčnosti a svetla do harmonického architektonického prvku.

Význam prirodzeného svetla pre moderné a flexibilné pracovné prostredie

Kancelárska budova Baumit v slovinskom Trzine prešla premenou na moderné a udržateľné pracovisko. Architekti kládli dôraz...

Konferencia Xella Dialóg predstaví novinky a trendy v stavebníctve

Mottom šiesteho ročníku on-line konferencie odborníkov Xella Dialóg je Efektívny návrh budov 2025+: zmeny a riešenia

Dom Veža, Čižice (ČR)

Odvážny vežový koncept s minimálnou zastavanou plochou pozemku, špecifické riešenie na mieru. Obytná veža vystupujúca zo záhrady zachytáva slnko, ktoré by bolo inak tienené okolitými stromami. Na najvyššom podlaží je situovaná pracovňa fotografa, ktorá je zároveň vyhliadkou.
Diela
Red 402.11.2018
36620+35
Dom Veža, Čižice (ČR)
Autori: Ing. arch. Tereza Nová, Ing. arch. Jiří ZábranSpolupráca: Josef Houška (Projektant)Plocha pozemku: 1 348m2Zastavaná plocha: 107m2Podlažná plocha: 123m2Návrh: 2013 - 2013Realizácia: 2013 - 2015Adresa: Čižice, Česká republikaPublikované: 2. november 2018

Dielo sa dostalo do užšieho výberu poroty v aktuálnom ročníku Českej ceny za architektúru.

Bývanie na štyroch podlažiach nie je typickým riešením, či požiadavkou klienta. V tomto prípade však dom vznikal v neobvyklom kontexte, ktorý bol podnetom pre osobitý a nie celkom obvyklý návrh. Investor sa vzdal určitej časti komfortu, naproti tomu však získal denné svetlo a nerušený výhľad do krajiny. Krásne riešenie pre obyvateľov so zdravými nohami :-)

Jednogeneračný rodinný dom sa nachádza na okraji obce Čižice v blízkosti Plzne. Na pozemku, na hranici zalesneného svahu, stála pôvodne jednoduchá chatka. Nový dom navrhli architekti pre investora, ktorý trávi množstvo času pozorovaním prírody. „Na hranici lesa nad vsí jsme chtěli raději posed než vesnický dům. Raději dřevo než cihlu. Raději vertikálu než horizontálu,“ objasňujú svoj tvorivý prístup architekti.

Foto: Labuťová
Foto: Labuťová
Foto: Labuťová
Foto: Labuťová
Foto: Labuťová

V interiéri sa architekti sústredili na prácu so svetlom. Dom s východnou orientáciou vďaka vežovej časti zachytáva západné slnko, ktoré by bolo inak tienené vysokými stromami. Obytné priestory sú situované vo viacpodlažnej časti, zázemie je čiastočne zapustené do svahu. Objekt tak pôsobí subtílne, hlavne pri pohľade smerom od lesa. Korunou domu je strešná pracovňa, ktorá je zároveň vyhliadkou.

Koncept návrhu
Koncept návrhuZábran Nová architekti
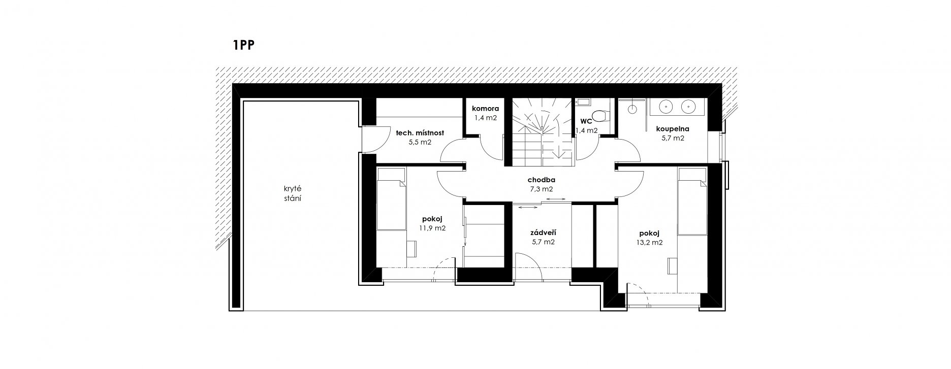
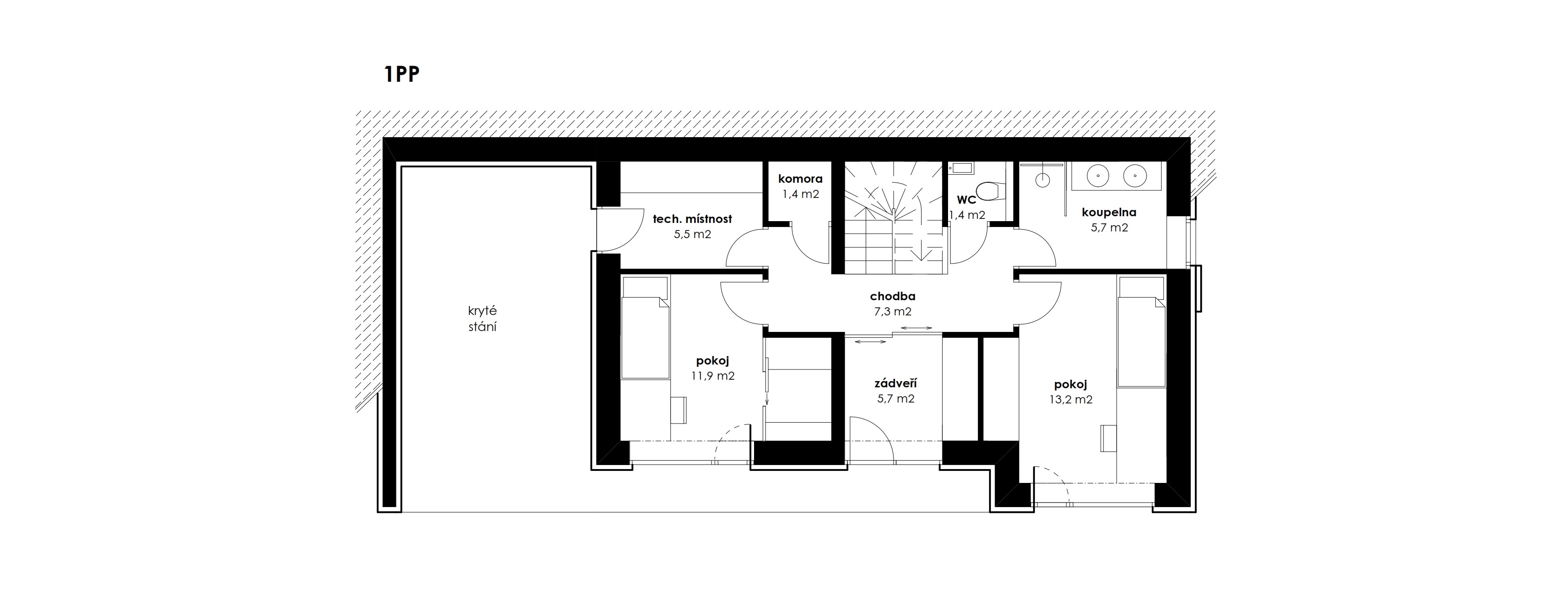
Pôdorys 1. PP
Pôdorys 1. PPZábran Nová architekti
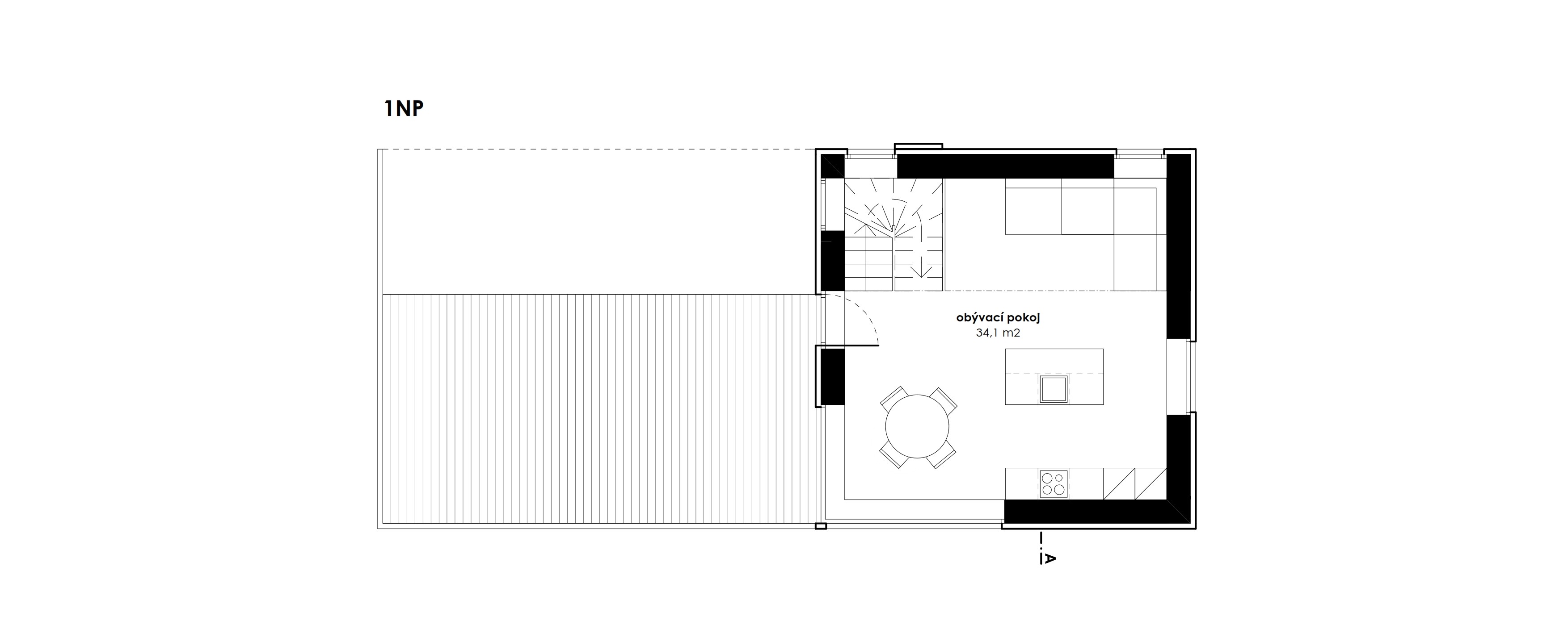
Pôdorys 1. NP
Pôdorys 1. NPZábran Nová architekti
Pôdorys 2. NP
Pôdorys 2. NPZábran Nová architekti
Pôdorys 3. NP
Pôdorys 3. NPZábran Nová architekti
Rez
RezZábran Nová architekti
Pohľad
PohľadZábran Nová architekti
Pohľad
PohľadZábran Nová architekti
Pohľad
PohľadZábran Nová architekti
Pohľad
PohľadZábran Nová architekti

Hlavným materiálom použitým pri stavbe domu je smrekové drevo. Nosná konštrukcia zo smrekových hranolov je z exteriéru obložena obložená impregnovanými doskami, pohľadovú vrstvu v interiéri tvoria bielené biodosky.

Foto: Labuťová
Foto: Labuťová
Foto: Labuťová
Foto: Labuťová
Foto: Labuťová
Foto: Labuťová
Fotografia modelu
Fotografia modelu
Fotografia modelu
Fotografia modelu

Poloha diela

Ing. arch. Tereza Nová
Ing. arch. Jiří Zábran

Súvisiace články

Vložené
23. október 2018
0
3662
Hlavný obsahHlavný obsah
Čakajte prosím