Advertorial

Okná Internorm za minuloročné ceny + hliníkový kryt zdarma!

Využite špeciálnu akciu Internorm: okná za minuloročné ceny a hliníkový kryt úplne zadarmo. Ponuka je časovo obmedzená!

Pozvánka na 2. ročník stavebného veľtrhu BigMarket na Slovensku

Na podujatí sa predstaví až 37 vystavovateľov - popredných dodávateľov stavebných materiálov a inovácií s prezentáciou...

Moderné plynové technológie: Efektivita a inovácie pre 21. storočie

Sumarizácia najdôležitejších inovácií, ktoré redefinujúcich využitie tohto energetického zdroja.

Utesňovanie spodných stavieb pomocou hydro-aktívnej fólie AMPHIBIA.

AMPHIBIA 3000 GRIP 1.3 od spoločnosti ATRO predstavuje modernú hydroizolačnú technológiu, ktorá spája vysokú odolnosť,...

Dekarbonizácia individuálneho vykurovania domácností – Green Deal evolučne a nie revolučne

Ambiciózne plány EK narazili na ekonomické možnosti domácností v jednotlivých členských štátoch –...

Minimalistické dvere IDEA – technická precíznosť a čistota prevedenia

IDEA DOOR od spoločnosti JAP prináša do interiéru čistý minimalistický vzhľad vďaka bezrámovému riešeniu a precíznej...

Dom s výhľadom na údolie, Dlouhý Most (ČR)

Kontinuita riešenia od vonkajšieho obkladu až po kovania a kľučky.

Schell Vitus – osvedčené riešenie pre sprchy a umývadlá vo verejnom sektore s viac ako desaťročnou tradíciou

Nástenné nadomietkové armatúry Vitus sú mimoriadne vhodné pre rýchlu a efektívnu...

Kompozitné okná predstavujú súčasnosť a budúcnosť

Okenné profily z kompozitného materiálu RAU-FIPRO X od spoločnosti Rehau sú v porovnaní s tradičnými plastovými profilmi mnohonásobne...

Myotis - stoly 2025

Najnovší sortiment stolov pre zariadenie interiérov...

Priemyselné sklenené priečky Dorsis Digero: svetelné rozhranie pre moderné interiéry

Spojenie moderného dizajnu, funkčnosti a svetla do harmonického architektonického prvku.

Význam prirodzeného svetla pre moderné a flexibilné pracovné prostredie

Kancelárska budova Baumit v slovinskom Trzine prešla premenou na moderné a udržateľné pracovisko. Architekti kládli dôraz...

Konferencia Xella Dialóg predstaví novinky a trendy v stavebníctve

Mottom šiesteho ročníku on-line konferencie odborníkov Xella Dialóg je Efektívny návrh budov 2025+: zmeny a riešenia

Murovací robot WLTR stavia svoj prvý dom na Slovensku

Robot WLTR predstavuje moderný prístup k murovaným konštrukciám. Vďaka automatizácii dokáže rýchlo, presne a bezpečne realizovať...

Nová éra bezpečnosti s I-tec Secure od Internorm

Okrem bezpečnosti majú okná aj elegantný vzhľad, pretože nie sú viditeľné žiadne uzamykacie časti kovania.

Rodinný dom Vrakuňa, Bratislava, Plusminusarchitects

Neokázalý dom s vysokou pridanou hodnotou.
Diela
Red 124.11.2015
59060+34
Rodinný dom Vrakuňa, Bratislava, Plusminusarchitects
Autori: Ing.arch. Maroš Fečík, Ing. arch. Andrej OláhInvestor: Súkromná osobaPlocha pozemku: 579 m2Zastavaná plocha: 202 m2Podlažná plocha: 255 m2Obostavaný objem: 1405 m3Návrh: 2012 - 2012Realizácia: 2012 - 2014Adresa: Vrakuňa , Bratislava, SlovenskoPublikované: 24. november 2015

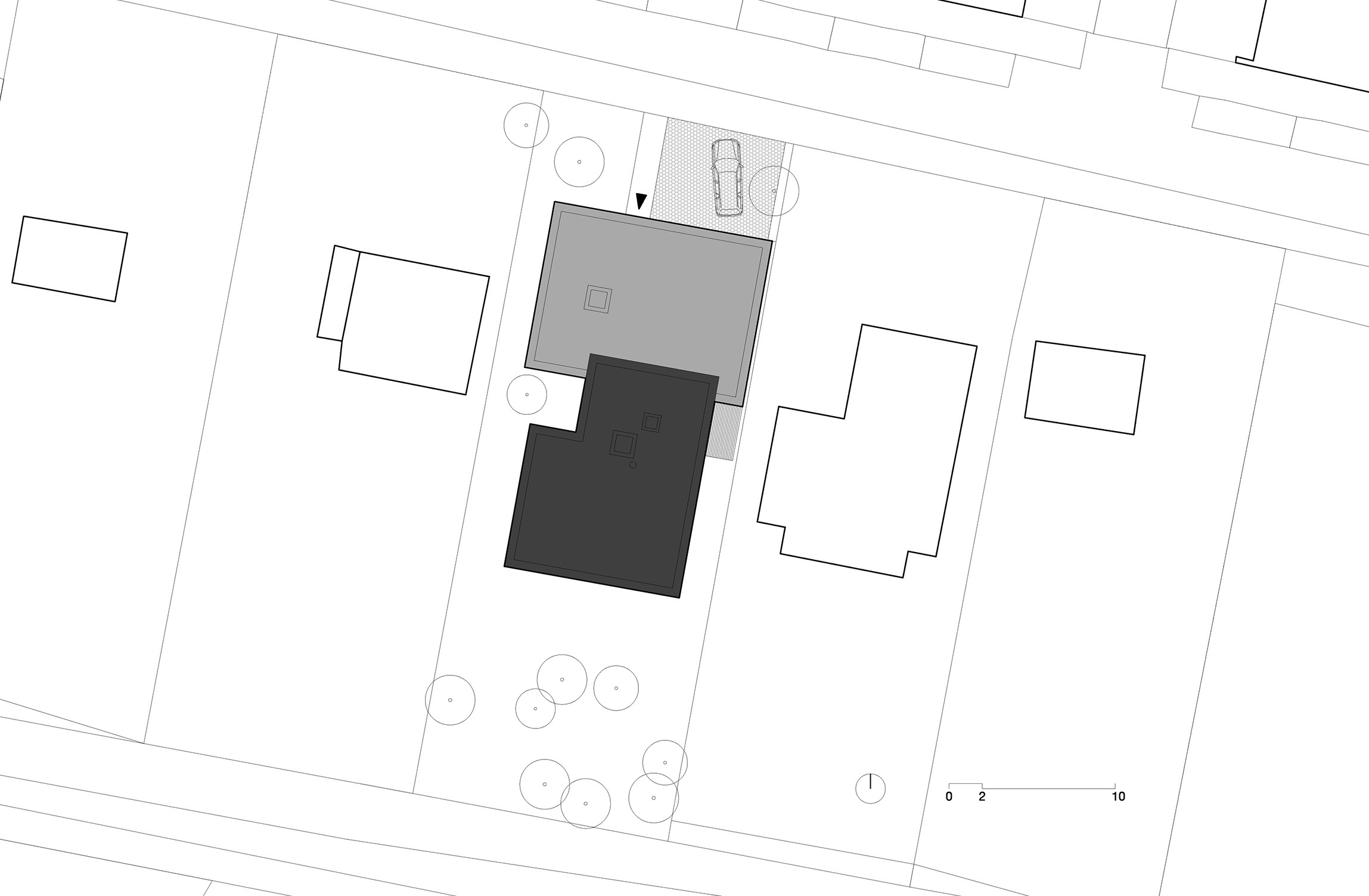
Pozemok pre výstavbu rodinného domu sa nachádza na severovýchodnom okraji Bratislavy a je súčasťou pôvodnej záhradkárskej kolónie. Priame dopravné napojenie je zabezpečené cez ulice Anízova a Rascová. Pozemok je mierne svažitý(133,50 m n.m. – 131,50 m n.m.) s rozmermi približne 15,5x37m/579m2/.
Pôvodne slúžil ako úžitková záhrada so záhradnou chatkou.

Priečelie už nemôže byť jednoduchšie.
Priečelie už nemôže byť jednoduchšie.
Formu tvoria elementárne a čisté plochy.
Formu tvoria elementárne a čisté plochy.
Osadenie domu na pozemku.
Osadenie domu na pozemku.

Výstavba bola regulovaná ochranným pásmom vzletového a približovacieho priestoru(uhol 1:70), ktorým je obmedzená výška zástavby od 140,0 m n.m. smerom od Hradskej cesty po výšku 143,8 m n.m. na Priehradnej ulici.
Navrhovaný rodinný dom je nepodpivničený, dvojpodlažný.

Architekti využili terénny sklon. Intímny slnečný priestor smerom do záhrady je dvojpodlažný.
Architekti využili terénny sklon. Intímny slnečný priestor smerom do záhrady je dvojpodlažný.
Pozdĺžny rez priblužuje prácu s objemami a výškovým zónovaním.
Pozdĺžny rez priblužuje prácu s objemami a výškovým zónovaním.
Priečny rez cez dvojpodlažnú časť.
Priečny rez cez dvojpodlažnú časť.
Axonometria približuje objemovú kompozíciu objektu.
Axonometria približuje objemovú kompozíciu objektu.
Vonkajšia skladba hmôt.
Vonkajšia skladba hmôt.

Dom je na pozemku osadený tak, aby poskytol maximálny komfort užívateľom – orientácia k slnku a svetlu, dimenzie komunikačných priestorov, kontakt so záhradou… Uzatvorenosť smerom do ulice, maximálne otvorenie smerom do záhrady.

Denná chránená časť priamo v kontakte so záhradou je príjemným miestom pre trávenie nielen voľnočasových aktivít.
Denná chránená časť priamo v kontakte so záhradou je príjemným miestom pre trávenie nielen voľnočasových aktivít.
Terasa je chráneným miestom a prirodzeným rozšírením obytnej časti do exteriéru.
Terasa je chráneným miestom a prirodzeným rozšírením obytnej časti do exteriéru.

Dispozično-prevádzkové riešenie rešpektuje lokalitný program investora.
Dom je orientovaný smerom do ulice(sever) svojou technicko-obslužnou časťou/garáž, fitko/.
Na vstupnú halu nadväzujú relaxačné priestory – telocvičňa, sauna, hygiena a hosťovská izba. Cez priamočiare schodisko na sú na výškovej úrovni -1,450(1.PP) prístupné denné priestory domu/kuchyňa, jedáleň, obývacia izba, prekrytá terasa a vybavenie domu – komora, práčovňa/sušiareň a technická miestnosť. Nočná čast domu - izby detí a rodičov, hygienické vybavenie a spoločenský priestor sú umiestnené na 2.NP.
Obývacia izba, jedáleň a kuchyňa majú priamy bezbariérový prístup do záhrady. Pocit otvorenosti je podporovaný perforáciami na východnej, južnej a západnej strane.

Pôdorys prízemia - vstupné podlažie plynule prebieha cez terénny zlom prostredníctvom krátkeho schodiska až do záhrady.
Pôdorys prízemia - vstupné podlažie plynule prebieha cez terénny zlom prostredníctvom krátkeho schodiska až do záhrady.
Pôdorys horného podlažia (nočnej časti).
Pôdorys horného podlažia (nočnej časti).

Dom je z konštrukčného hľadiska navrhnutý ako kombinovaný systém – oceľobetónové horizontálne/čiastočne aj vertikálne/ konštrukcie a murované vertikálne konštrukcie.
Plochá strecha má obrátené poradie vrstiev, je ukončená riečnym štrkom. Zateplenie objektu je realizované minerálnou vlnou. Vnútorné a vonkajšie povrchy sú ukončené omietkou, resp.drevenou prevetrávanou fasádou.
Okná a zasklené steny sú hliníkové s izolačným trojsklom. Ochranu pred nadmerným slnečným žiarením zabezpečujú elektricky ovládané exteriérové hliníkové žalúzie.

Pohľad do patia/atria, ktoré prináša prirodzené svetlo do stredu dispozície.
Pohľad do patia/atria, ktoré prináša prirodzené svetlo do stredu dispozície.
Centrálny obytný priestor.
Centrálny obytný priestor.

Viac o objekte, ktorý je bravúrnou ukážkou výbornej architektúry napovedia ďalšie obrázky. Dom bol medzinárodnou porotou nominovaný na na Cenu Dušana Jurkoviča 2015.

Poloha diela

Ing.arch. Maroš Fečík
Ing. arch. Andrej Oláh

Súvisiace články

Vložené
24. november 2015
0
5906
Hlavný obsahHlavný obsah
Čakajte prosím