Advertorial

Hotel Hirschen Spa House, Rakúsko

Novotvar v prostredí alpskej obce.

Vytvorte si kúpeľňu snov: dizajnové riešenie od značky hansgrohe

Hansgrohe - prémiová značka kúpeľňových riešení, ponúka nadčasový dizajn, technickú precíznosť a udržateľné inovácie...

Okná Internorm za minuloročné ceny + hliníkový kryt zdarma!

Využite špeciálnu akciu Internorm: okná za minuloročné ceny a hliníkový kryt úplne zadarmo. Ponuka je časovo obmedzená!

Pozvánka na 2. ročník stavebného veľtrhu BigMarket na Slovensku

Na podujatí sa predstaví až 37 vystavovateľov - popredných dodávateľov stavebných materiálov a inovácií s prezentáciou...

Moderné plynové technológie: Efektivita a inovácie pre 21. storočie

Sumarizácia najdôležitejších inovácií, ktoré redefinujúcich využitie tohto energetického zdroja.

Utesňovanie spodných stavieb pomocou hydro-aktívnej fólie AMPHIBIA.

AMPHIBIA 3000 GRIP 1.3 od spoločnosti ATRO predstavuje modernú hydroizolačnú technológiu, ktorá spája vysokú odolnosť,...

Dekarbonizácia individuálneho vykurovania domácností – Green Deal evolučne a nie revolučne

Ambiciózne plány EK narazili na ekonomické možnosti domácností v jednotlivých členských štátoch –...

Minimalistické dvere IDEA – technická precíznosť a čistota prevedenia

IDEA DOOR od spoločnosti JAP prináša do interiéru čistý minimalistický vzhľad vďaka bezrámovému riešeniu a precíznej...

Dom s výhľadom na údolie, Dlouhý Most (ČR)

Kontinuita riešenia od vonkajšieho obkladu až po kovania a kľučky.

Schell Vitus – osvedčené riešenie pre sprchy a umývadlá vo verejnom sektore s viac ako desaťročnou tradíciou

Nástenné nadomietkové armatúry Vitus sú mimoriadne vhodné pre rýchlu a efektívnu...

Kompozitné okná predstavujú súčasnosť a budúcnosť

Okenné profily z kompozitného materiálu RAU-FIPRO X od spoločnosti Rehau sú v porovnaní s tradičnými plastovými profilmi mnohonásobne...

Myotis - stoly 2025

Najnovší sortiment stolov pre zariadenie interiérov...

Priemyselné sklenené priečky Dorsis Digero: svetelné rozhranie pre moderné interiéry

Spojenie moderného dizajnu, funkčnosti a svetla do harmonického architektonického prvku.

Význam prirodzeného svetla pre moderné a flexibilné pracovné prostredie

Kancelárska budova Baumit v slovinskom Trzine prešla premenou na moderné a udržateľné pracovisko. Architekti kládli dôraz...

Konferencia Xella Dialóg predstaví novinky a trendy v stavebníctve

Mottom šiesteho ročníku on-line konferencie odborníkov Xella Dialóg je Efektívny návrh budov 2025+: zmeny a riešenia

FLAT M13, Bratislava

Prestavba štvorizbového bytu na prízemí rodinného domu zo sedemdesiatych rokov.
Diela
Red 310.05.2019
51850+34
FLAT M13, Bratislava
Autori: GRAU, Ing. arch. Andrej Olah, Ing. arch. Filip MarčákSpolupráca: Ing. arch. Matej Kurajda, Ing.arch. Jana FilípkováNávrh: 2017 - 2018Realizácia: 2018 - 2019Adresa: Bratislava, SlovenskoPublikované: 10. máj 2019

Napriek svojmu veku má Andrej Olah za sebou pôsobivé portfólio prác. Z veľkej časti ide o rekonštrukcie, retrofit novej náplne do jestvujúcich priestorov. Sú to zadania, kde sa naplno ukáže cit architekta pre miesto kontext. Na rozdiel od oceňovanej Slávice bolo v tomto prípade zadanie značne prozaickejšie. 

Rekonštrukcia znamenala výraznú zmenu dispozície. Zásahy sú jasne čitateľné. Neomietnuté tehlové steny zjednotené bielym náterom odhaľujú modifikácie pôvodných konštrukcií. V pohľade sú priznané nové oceľové prievlaky.

Do očisteného a otvoreného stavebného rámca zapadajú precízne stolárske prvky, ktoré zabezpečujú logické členenie priestoru a pokrývajú individuálne požiadavky užívateľov. Každý kus je originál. Výsledkom je obohacujúca jednoduchosť. Menej prvkov. Viac rozumu. Lepšie využitie. Strohú materiálovú a farebnú paletu dopĺňa výrazná kuchynská linka a hravé zariadenie bytu.

Foto: Nora a Jakub Čaprnkovci
Foto: Nora a Jakub Čaprnkovci
Foto: Nora a Jakub Čaprnkovci

Realizáciu bližšie predstaví samotný autor:

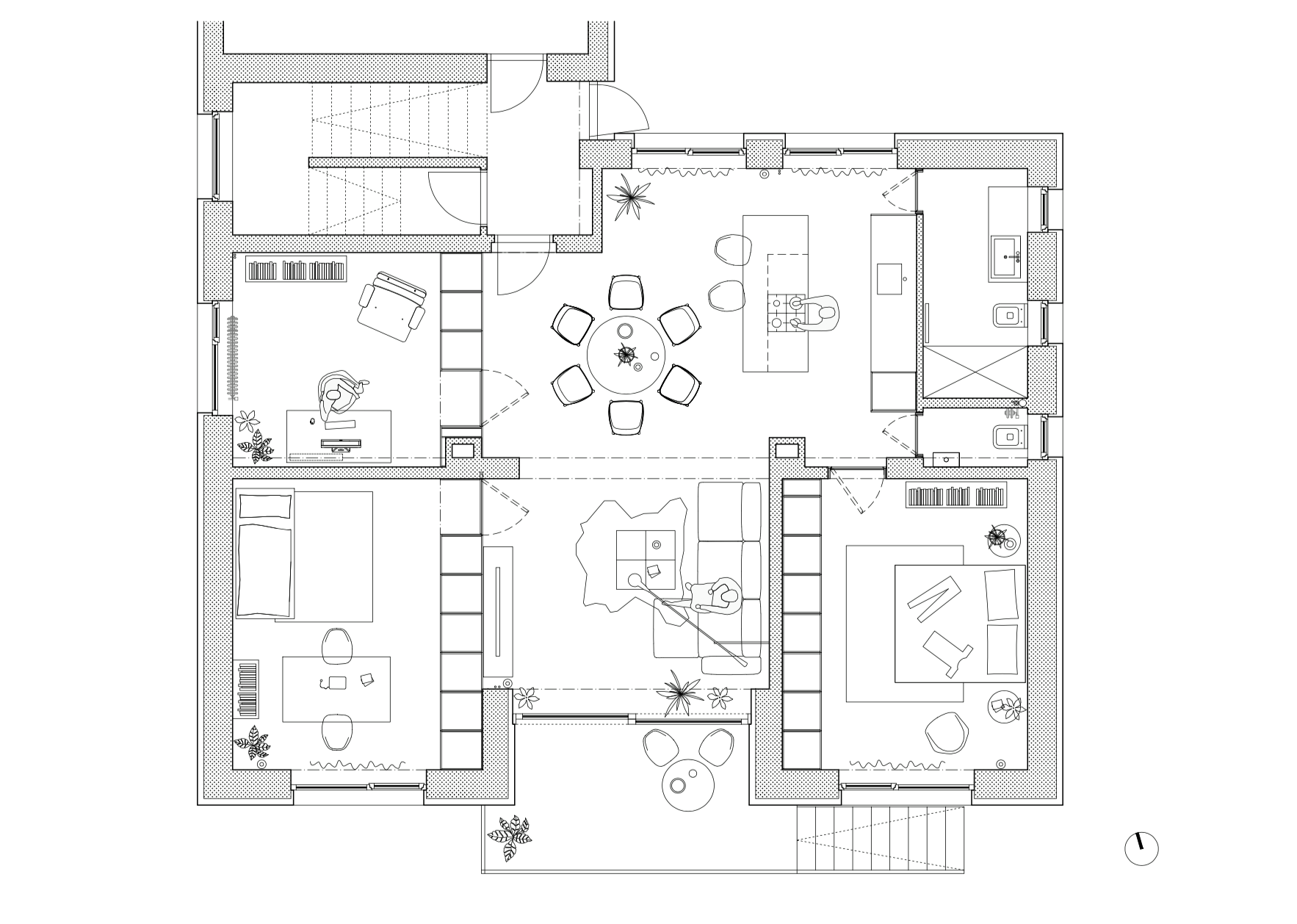
Štvorizbový byt sa nachádza na prízemí rodinného domu zo sedemdesiatych rokov. Aktuálna prestavba znamenala výraznú zmenu pôvodnej dispozície. Pôvodne uzatvorený byt sme prepojili so záhradou znížením parapetov okien až na úroveň podlahy.

Odstránili sme nosnú stenu ktorá oddeľovala severnú vstupnú halu od južnej obývacej izby a vytvorili tak otvorený preplávajúci priestor spojený s kuchyňou a jedálňou.

Eliminovali sme chodby, aby čo najviac plochy zostalo na bývanie a minimalizovali murované konštrukcie, priestor sme predelili materiálovou stenou - jaseňovou skriňou, ktorá poskytuje väčšinu úložných priestorov bytu. Zároveň je reverzibilná a byt je tak v budúcnosti možné preprogramovať.

Centrálnym prvkom bytu je kuchyňa, za ktorú je vložená hygiena. Farebnosť bytu je postavená na poctivej materialite základných prvkov - bielej farby stien, dubovej podlahy, jaseňovej dyhy vloženej steny a zelenej farby kuchynskej linky.

Pôdorys
PôdorysAutor: GRAU
Axonometria
AxonometriaAutor: GRAU
Foto: Nora a Jakub Čaprnkovci
Foto: Nora a Jakub Čaprnkovci
Foto: Nora a Jakub Čaprnkovci
Foto: Nora a Jakub Čaprnkovci
Foto: Nora a Jakub Čaprnkovci
Foto: Nora a Jakub Čaprnkovci
Foto: Nora a Jakub Čaprnkovci
Foto: Nora a Jakub Čaprnkovci
Foto: Nora a Jakub Čaprnkovci
Foto: Nora a Jakub Čaprnkovci
Foto: Nora a Jakub Čaprnkovci
Foto: Nora a Jakub Čaprnkovci
Foto: Nora a Jakub Čaprnkovci
Foto: Nora a Jakub Čaprnkovci
Foto: Nora a Jakub Čaprnkovci
Foto: Nora a Jakub Čaprnkovci
Foto: Nora a Jakub Čaprnkovci
Foto: Nora a Jakub Čaprnkovci
Foto: Nora a Jakub Čaprnkovci
Foto: Nora a Jakub Čaprnkovci
Foto: Nora a Jakub Čaprnkovci
Foto: Nora a Jakub Čaprnkovci
Foto: Nora a Jakub Čaprnkovci

Podklady: GRAU, Fotografie: Nora a Jakub Čaprnkovci

Poloha diela

GRAU
Ing. arch. Andrej Olah
Ing. arch. Filip Marčák

Súvisiace články

Vložené
7. máj 2019
0
5185
Hlavný obsahHlavný obsah
Čakajte prosím