Advertorial

Pozvánka na 2. ročník stavebného veľtrhu BigMarket na Slovensku

Na podujatí sa predstaví až 37 vystavovateľov - popredných dodávateľov stavebných materiálov a inovácií s prezentáciou...

Hotel Hirschen Spa House, Rakúsko

Novotvar v prostredí alpskej obce.

Vytvorte si kúpeľňu snov: dizajnové riešenie od značky hansgrohe

Hansgrohe - prémiová značka kúpeľňových riešení, ponúka nadčasový dizajn, technickú precíznosť a udržateľné inovácie...

Okná Internorm za minuloročné ceny + hliníkový kryt zdarma!

Využite špeciálnu akciu Internorm: okná za minuloročné ceny a hliníkový kryt úplne zadarmo. Ponuka je časovo obmedzená!

Moderné plynové technológie: Efektivita a inovácie pre 21. storočie

Sumarizácia najdôležitejších inovácií, ktoré redefinujúcich využitie tohto energetického zdroja.

Utesňovanie spodných stavieb pomocou hydro-aktívnej fólie AMPHIBIA.

AMPHIBIA 3000 GRIP 1.3 od spoločnosti ATRO predstavuje modernú hydroizolačnú technológiu, ktorá spája vysokú odolnosť,...

Dekarbonizácia individuálneho vykurovania domácností – Green Deal evolučne a nie revolučne

Ambiciózne plány EK narazili na ekonomické možnosti domácností v jednotlivých členských štátoch –...

Minimalistické dvere IDEA – technická precíznosť a čistota prevedenia

IDEA DOOR od spoločnosti JAP prináša do interiéru čistý minimalistický vzhľad vďaka bezrámovému riešeniu a precíznej...

Dom s výhľadom na údolie, Dlouhý Most (ČR)

Kontinuita riešenia od vonkajšieho obkladu až po kovania a kľučky.

Schell Vitus – osvedčené riešenie pre sprchy a umývadlá vo verejnom sektore s viac ako desaťročnou tradíciou

Nástenné nadomietkové armatúry Vitus sú mimoriadne vhodné pre rýchlu a efektívnu...

Kompozitné okná predstavujú súčasnosť a budúcnosť

Okenné profily z kompozitného materiálu RAU-FIPRO X od spoločnosti Rehau sú v porovnaní s tradičnými plastovými profilmi mnohonásobne...

Myotis - stoly 2025

Najnovší sortiment stolov pre zariadenie interiérov...

Priemyselné sklenené priečky Dorsis Digero: svetelné rozhranie pre moderné interiéry

Spojenie moderného dizajnu, funkčnosti a svetla do harmonického architektonického prvku.

Význam prirodzeného svetla pre moderné a flexibilné pracovné prostredie

Kancelárska budova Baumit v slovinskom Trzine prešla premenou na moderné a udržateľné pracovisko. Architekti kládli dôraz...

Konferencia Xella Dialóg predstaví novinky a trendy v stavebníctve

Mottom šiesteho ročníku on-line konferencie odborníkov Xella Dialóg je Efektívny návrh budov 2025+: zmeny a riešenia

Optika Eyerim, Bratislava

Flexibilný rámec pre novú sieť predajní.
Diela
Red 310.05.2024
13110+52
Optika Eyerim, Bratislava
Autori: Ing. arch. Andrej Olah, Ing. arch. Filip Marčák, Ing. arch. Matej KurajdaPodlažná plocha: 120 m2Návrh: 2023 - 2023Realizácia: 2023 - 2023Adresa: Blumentálska 25, Bratislava, SlovenskoPublikované: 10. máj 2024

Realizácia ateliéru GRAU v partri nového bloku na Blumentálskej ulici. Rôznorodá štruktúra a farebnosť panelov, rozmiestnených po obvode otvoreného priestoru, vytvára adaptívnu kulisu pre vystavené produkty.

 

Viac povedia architekti z ateliéru GRAU:

Očná optika Eyerim na Blumentálskej ulici je prvou pilotnou prevádzkou rozvíjajúceho sa konceptu predajní tejto inak online optickej siete.

Základným princípom pri návrhu a riešení kamennej prevádzky Eyerim bolo vytvorenie funkčného spôsobu vystavovania optických rámov, ktorý by bolo možné použiť v rôznorodých priestoroch a flexibilne tak na ne reagovať.

Priestor staviame na vložených paneloch. Panely vnímame ako kulisu ktorú môžeme meniť a zároveň aplikovať v ďalších nových prevádzkach, no zároveň je možné už existujúcu prevádzku recyklovať v iných priestoroch jej novým usporiadaním. Vytvárame jednotný architektonický, priestorový vizuálny element a jazyk pre všetky budúce kamenné predajne Eyerim.

Pracujeme s prirodzenou materialitou panelov ako DTD, MDF, MFP ktoré zjednocujeme jemným bielením a dopĺňame o nerezové panely či pásy zrkadla. Vďaka tejto rôznorodej materialite je možné vizuálne definovať nie len priestor ale aj jednotlivé značky, ktoré je potrebné od seba odlíšiť.

Využívame maximálnym výrobným rozmer materiálu a redukujeme tak množstvo odpadu pri jeho formátovaní. Túto základnú štruktúru panelov vkladáme do surového priestoru s minimom zásahov. Pracujeme s betónovou podlahou či priznanými sádrovými omietkami bez finálnej úpravy. Priestor prirodzene delíme vloženou translucentnou stenou oddeľujúcou zázemie a vyšetrovňu od samotnej predajne. Nenarúšame tak hĺbku priestoru a zároveň si vzájomne presvetľujeme obe časti. Vzhľadom na hĺbku dispozície a nedostatok prirodzeného svetla pracujeme so sekundárne nasvieteným stropom so striebornou fóliou, ktorá nám ho rozptyľuje prirodzene do celého interiéru. Priestor dopĺňame transparentným skleneným mobiliárom ako pult či výstavné stolíky v niekoľkých farbách, ktoré vytvárajú rôzne reflexie svetla tak ako šošovky v okuliaroch.

Práca so svetlom, tieňom, priesvitom či odrazom definuje ústredný motív tohto projektu, spoločne so spomínanou flexibilitou.

Foto: Matej Hakár
Foto: Matej Hakár
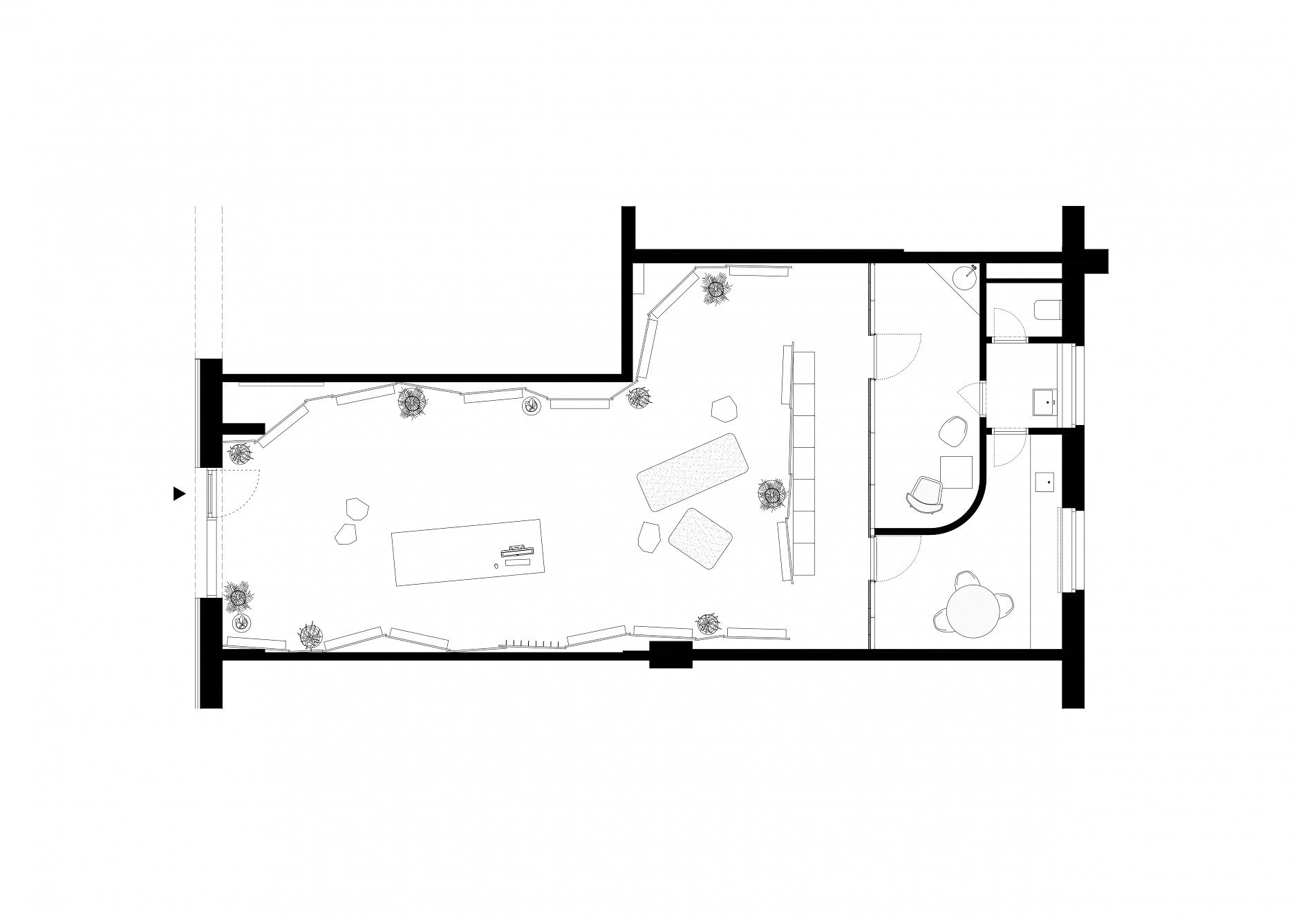
Pôdorys
PôdorysAutor: GRAU
Axonometria
AxonometriaAutor: GRAU
Foto: Matej Hakár
Foto: Matej Hakár
Foto: Matej Hakár
Foto: Matej Hakár
Foto: Matej Hakár
Foto: Matej Hakár
Foto: Matej Hakár
Foto: Matej Hakár
Foto: Matej Hakár
Foto: Matej Hakár
Foto: Matej Hakár
Foto: Matej Hakár
Foto: Matej Hakár
Foto: Matej Hakár
Foto: Matej Hakár
Foto: Matej Hakár
Foto: Matej Hakár
Foto: Matej Hakár
Foto: Matej Hakár
Foto: Matej Hakár
Foto: Matej Hakár
Foto: Matej Hakár
Foto: Matej Hakár
Foto: Matej Hakár
Foto: Matej Hakár

Koláže:

Koláž
KolážAutor: GRAU
Koláž
KolážAutor: GRAU

Autor: GRAU 
Fotografie: Matej Hakár

Poloha diela

Ing. arch. Andrej Olah
Ing. arch. Filip Marčák
Ing. arch. Matej Kurajda

Súvisiace články

Matej HakárSKBratislava
Vložené
11. apríl 2024
0
1311
Hlavný obsahHlavný obsah
Čakajte prosím