Advertorial

Hotel Hirschen Spa House, Rakúsko

Novotvar v prostredí alpskej obce.

Vytvorte si kúpeľňu snov: dizajnové riešenie od značky hansgrohe

Hansgrohe - prémiová značka kúpeľňových riešení, ponúka nadčasový dizajn, technickú precíznosť a udržateľné inovácie...

Okná Internorm za minuloročné ceny + hliníkový kryt zdarma!

Využite špeciálnu akciu Internorm: okná za minuloročné ceny a hliníkový kryt úplne zadarmo. Ponuka je časovo obmedzená!

Pozvánka na 2. ročník stavebného veľtrhu BigMarket na Slovensku

Na podujatí sa predstaví až 37 vystavovateľov - popredných dodávateľov stavebných materiálov a inovácií s prezentáciou...

Moderné plynové technológie: Efektivita a inovácie pre 21. storočie

Sumarizácia najdôležitejších inovácií, ktoré redefinujúcich využitie tohto energetického zdroja.

Utesňovanie spodných stavieb pomocou hydro-aktívnej fólie AMPHIBIA.

AMPHIBIA 3000 GRIP 1.3 od spoločnosti ATRO predstavuje modernú hydroizolačnú technológiu, ktorá spája vysokú odolnosť,...

Dekarbonizácia individuálneho vykurovania domácností – Green Deal evolučne a nie revolučne

Ambiciózne plány EK narazili na ekonomické možnosti domácností v jednotlivých členských štátoch –...

Minimalistické dvere IDEA – technická precíznosť a čistota prevedenia

IDEA DOOR od spoločnosti JAP prináša do interiéru čistý minimalistický vzhľad vďaka bezrámovému riešeniu a precíznej...

Dom s výhľadom na údolie, Dlouhý Most (ČR)

Kontinuita riešenia od vonkajšieho obkladu až po kovania a kľučky.

Schell Vitus – osvedčené riešenie pre sprchy a umývadlá vo verejnom sektore s viac ako desaťročnou tradíciou

Nástenné nadomietkové armatúry Vitus sú mimoriadne vhodné pre rýchlu a efektívnu...

Kompozitné okná predstavujú súčasnosť a budúcnosť

Okenné profily z kompozitného materiálu RAU-FIPRO X od spoločnosti Rehau sú v porovnaní s tradičnými plastovými profilmi mnohonásobne...

Myotis - stoly 2025

Najnovší sortiment stolov pre zariadenie interiérov...

Priemyselné sklenené priečky Dorsis Digero: svetelné rozhranie pre moderné interiéry

Spojenie moderného dizajnu, funkčnosti a svetla do harmonického architektonického prvku.

Význam prirodzeného svetla pre moderné a flexibilné pracovné prostredie

Kancelárska budova Baumit v slovinskom Trzine prešla premenou na moderné a udržateľné pracovisko. Architekti kládli dôraz...

Konferencia Xella Dialóg predstaví novinky a trendy v stavebníctve

Mottom šiesteho ročníku on-line konferencie odborníkov Xella Dialóg je Efektívny návrh budov 2025+: zmeny a riešenia

Byt P, Bratislava

Byt v bratislavskom Starom meste s vysokými stropmi a obytnou plochou 105 m2. Interiér bol citlivo očistený až na stavebnú podstatu. Dispozičné riešenie sa menilo len minimálne, tak aby reflektovalo potreby majiteľov.
Diela
Red 326.09.2016
39110+19
Byt P, Bratislava
Autori: Ing. arch. Andrej Olah, Msc(arch) Katarína LabáthováPodlažná plocha: 105 m2Návrh: 2015 - 2015Realizácia: 2015 - 2016Adresa: Staré mesto , Bratislava, SlovenskoPublikované: 26. september 2016

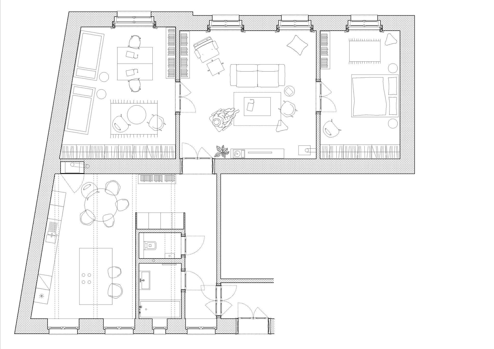
Majitelia kúpili byt v stave, keď mal za sebou už niekoľko výraznejších stavebných zásahov. Pôvodná dispozícia už nebola čitateľná, takisto nebola známa ani historická podoba bytu. Architekti sa preto rozhodli priestor bytu značne otvoriť a sprehľadniť. Stavebné úpravy sa týkali hlavne obslužnej časti bytu, ktorá je orientovaná do dvora. Obytná časť, ktorú tvoria tri samostatné miestnosti bola de facto ponechaná v pôvodnom stave. Veľká svetlá výška a rozmerné okenné otvory sú hlavnou devízou týchto priestorov.  

Foto: Martin Šveda

Izby sú prepojené širokými, dvojkrídlovými dverami, ktoré sú umiestnené v osi miestnosti. Pri rekonštrukcii boli zachované pôvodné drevené okná a dvere. Odhalené boli aj parkety, ktoré predchádzajúci majitelia zakryli laminátovými podlahami.

Foto: Martin Šveda
Foto: Martin Šveda

Byt má štyri plnohodnotné izby, pričom dve menšie miestnosti - kúpeľňa a WC našli svoje miesto v "boxe" vloženom v obslužnej časti bytu. Celková plocha 105 m2 umožňuje priestorovú veľkorysosť. Tá je zrejmá predovšetkým v obývačke a kuchyni. Ako sme už spomínali, návrh je založený na rozdelení bytu do dvoch funkčných zón: na "panskú" časť orientovanú do ulice (tri obytné izby) a obslužnú časť (kuchyňa, chodba, kúpeľňa a chodba) otočenú do dvora. 

Priestorová schéma
Priestorová schéma
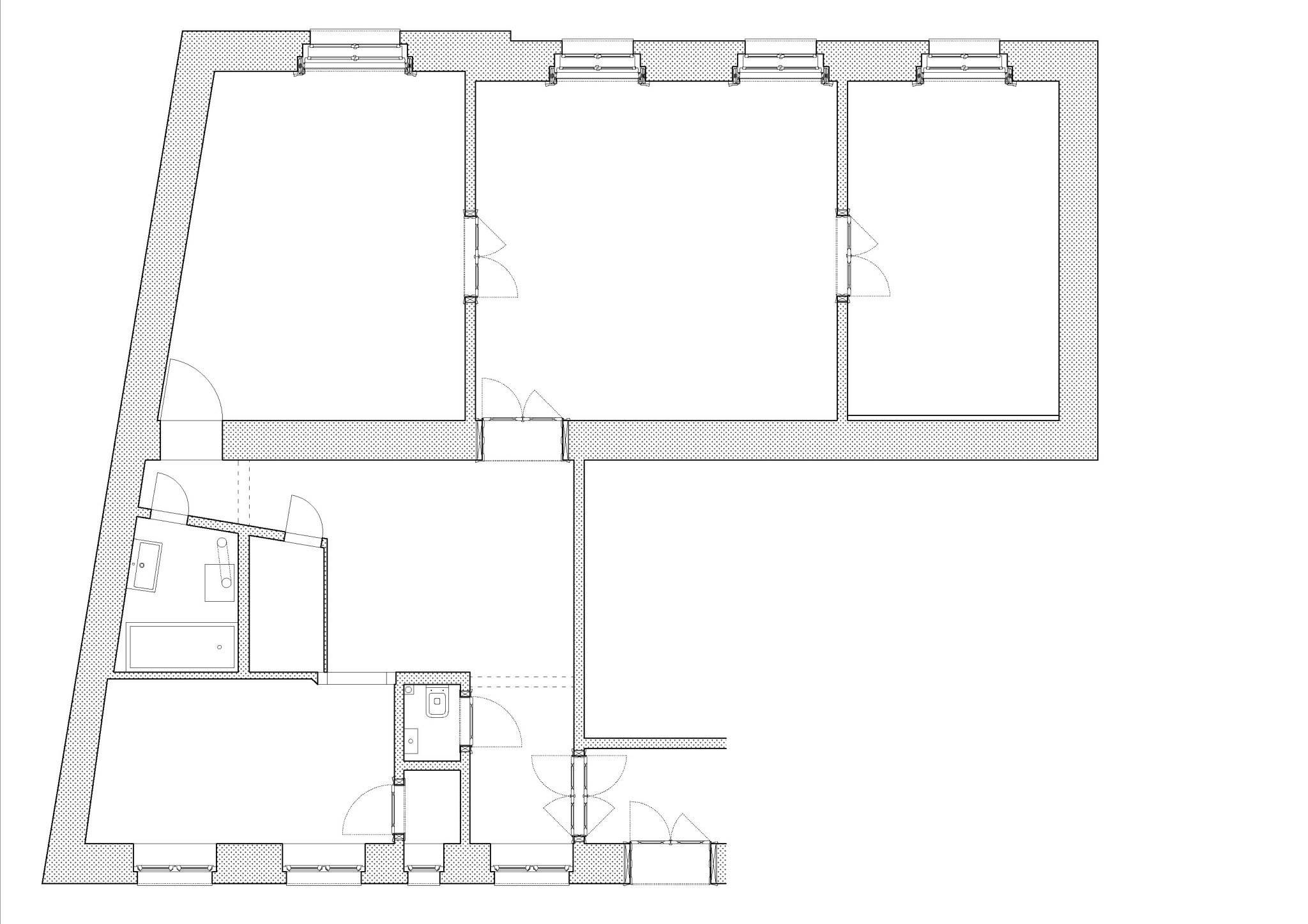
Pôdorys pôvodného bytu pred stavebnými úpravami
Pôdorys pôvodného bytu pred stavebnými úpravami
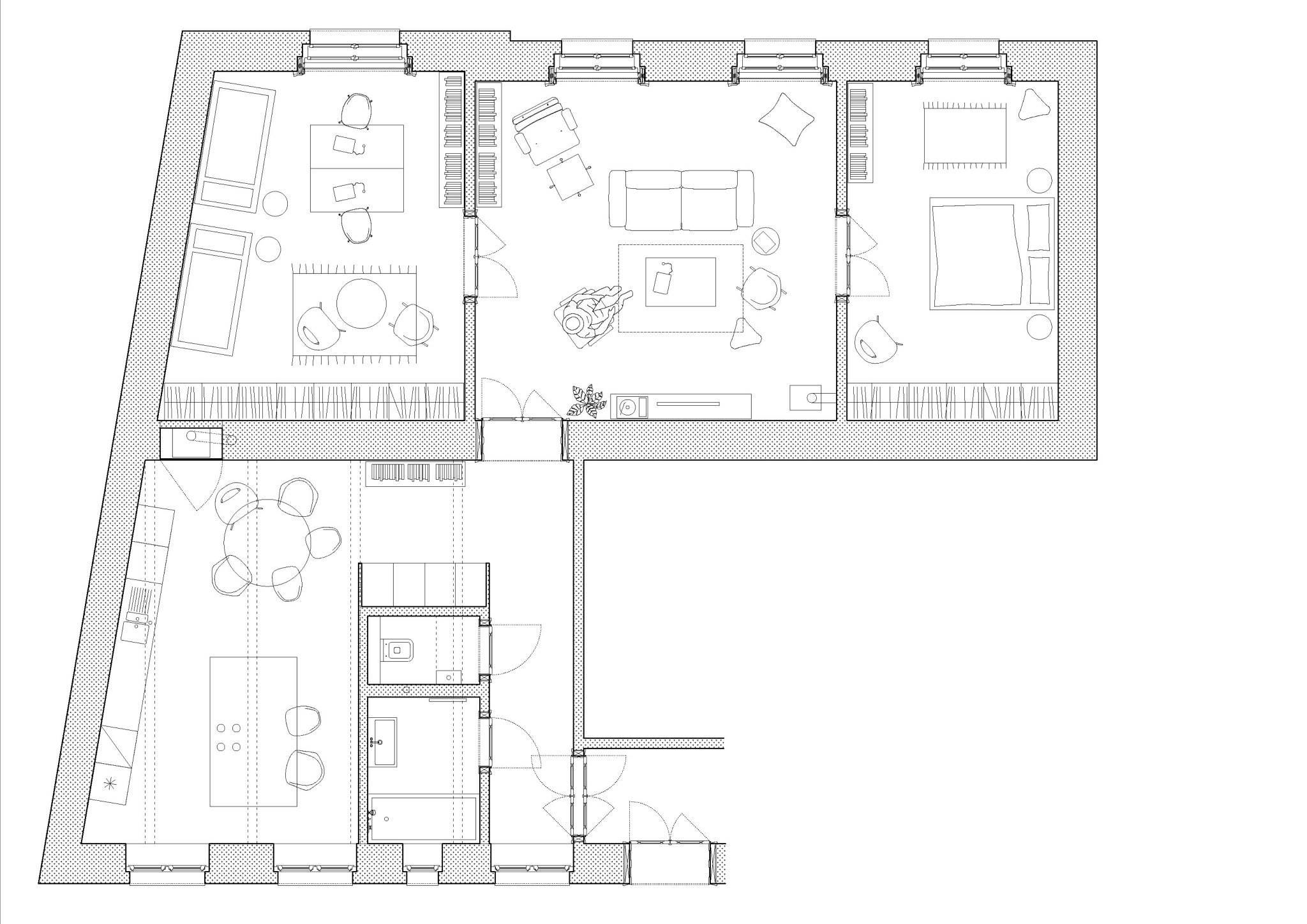
Pôdorys po rekonštrukcii
Pôdorys po rekonštrukcii

V obslužnej časti bytu boli vybúrané nepôvodné konštrukcie a čiastočne sa zasahovalo aj do pôvodných priečok, tak aby vynikol celkový priestor. Klenbový tehlový strop je priznaný a očistený od všetkých predchádzajúcich nánosov. Pôvodná podlaha bola v tejto časti nahradená novými parketami z dôvodu jej nevyhovujúceho stavu. 

Foto: Martin Šveda

Do priestoru je vložený box s hygienou, ktorý zároveň oddeľuje vstupnú chodbu od kuchyne. Tento priestorový prvok nesiaha až po strop, čím necháva vyniknúť veľkorysý priestor a tehlový strop. Celú jednu stenu boxu tvoria skryté úložné priestory. Zaujímavosťou je nové použitie zachovaných dverných krídel pri vstupe do kúpeľne a WC. 

Foto: Martin Šveda

Kuchyňu tvorí rozmerná kuchynská linka a voľne stojaci kuchynský ostrov.

Foto: Martin Šveda
Foto: Martin Šveda
Foto: Martin Šveda

Byt ešte nie je plne zariadený, postupne pribudnú viaceré nábytkové prvky a nový mobiliár.

Foto: Martin Šveda
Foto: Martin Šveda
Foto: Martin Šveda
Foto: Martin Šveda
Foto: Martin Šveda
Foto: Martin Šveda
Vizualizácia
Vizualizácia
Fotografia bytu pred začatím rekonštrukcie
Fotografia bytu pred začatím rekonštrukcie
Fotografia počas výstavby
Fotografia počas výstavby

Podklady: GRAU

Poloha diela

Ing. arch. Andrej Olah
Msc(arch) Katarína Labáthová

Súvisiace články

Vložené
22. september 2016
0
3911
Hlavný obsahHlavný obsah
Čakajte prosím