Advertorial

Hotel Hirschen Spa House, Rakúsko

Novotvar v prostredí alpskej obce.

Vytvorte si kúpeľňu snov: dizajnové riešenie od značky hansgrohe

Hansgrohe - prémiová značka kúpeľňových riešení, ponúka nadčasový dizajn, technickú precíznosť a udržateľné inovácie...

Okná Internorm za minuloročné ceny + hliníkový kryt zdarma!

Využite špeciálnu akciu Internorm: okná za minuloročné ceny a hliníkový kryt úplne zadarmo. Ponuka je časovo obmedzená!

Pozvánka na 2. ročník stavebného veľtrhu BigMarket na Slovensku

Na podujatí sa predstaví až 37 vystavovateľov - popredných dodávateľov stavebných materiálov a inovácií s prezentáciou...

Moderné plynové technológie: Efektivita a inovácie pre 21. storočie

Sumarizácia najdôležitejších inovácií, ktoré redefinujúcich využitie tohto energetického zdroja.

Utesňovanie spodných stavieb pomocou hydro-aktívnej fólie AMPHIBIA.

AMPHIBIA 3000 GRIP 1.3 od spoločnosti ATRO predstavuje modernú hydroizolačnú technológiu, ktorá spája vysokú odolnosť,...

Dekarbonizácia individuálneho vykurovania domácností – Green Deal evolučne a nie revolučne

Ambiciózne plány EK narazili na ekonomické možnosti domácností v jednotlivých členských štátoch –...

Minimalistické dvere IDEA – technická precíznosť a čistota prevedenia

IDEA DOOR od spoločnosti JAP prináša do interiéru čistý minimalistický vzhľad vďaka bezrámovému riešeniu a precíznej...

Dom s výhľadom na údolie, Dlouhý Most (ČR)

Kontinuita riešenia od vonkajšieho obkladu až po kovania a kľučky.

Schell Vitus – osvedčené riešenie pre sprchy a umývadlá vo verejnom sektore s viac ako desaťročnou tradíciou

Nástenné nadomietkové armatúry Vitus sú mimoriadne vhodné pre rýchlu a efektívnu...

Kompozitné okná predstavujú súčasnosť a budúcnosť

Okenné profily z kompozitného materiálu RAU-FIPRO X od spoločnosti Rehau sú v porovnaní s tradičnými plastovými profilmi mnohonásobne...

Myotis - stoly 2025

Najnovší sortiment stolov pre zariadenie interiérov...

Priemyselné sklenené priečky Dorsis Digero: svetelné rozhranie pre moderné interiéry

Spojenie moderného dizajnu, funkčnosti a svetla do harmonického architektonického prvku.

Význam prirodzeného svetla pre moderné a flexibilné pracovné prostredie

Kancelárska budova Baumit v slovinskom Trzine prešla premenou na moderné a udržateľné pracovisko. Architekti kládli dôraz...

Konferencia Xella Dialóg predstaví novinky a trendy v stavebníctve

Mottom šiesteho ročníku on-line konferencie odborníkov Xella Dialóg je Efektívny návrh budov 2025+: zmeny a riešenia

Flat N

Interiér radového rodinného domu v Bratislave.
Diela
Red 304.08.2018
23990+15
Flat N
Autori: Ing. arch. Andrej Olah, Ing. arch. Filip Marčák, Ing. arch. Vladimír SchmidtNávrh: 2016 - 2016Realizácia: 2017 - 20187Adresa: Petržalka , Bratislva, SlovenskoPublikované: 4. august 2018

Prestavba petržalskej novostavby. Nie však bezdôvodná. "Pôvodnú dispozíciu sme upravili a zracionálnili, podľa zadania mladých majiteľov. Tí už byt medzičasom stihli poriadne zabývať." Netradičnej úlohy sa architekti z ateliéru GRAU zhostili na výbornú. 

Realizáciu nám bližšie predstavil Andrej Olah:

Oslovila nás kamarátka s ktorou som sa poznal z iného projektu. Zadaním bolo vytvoriť obytný priestor pre mladú rodinu. Klienti boli veľmi otvorení, mali sme de facto voľnú ruku. 

Interiér sa nachádza v Petržalke, v dvojpodlažnom rodinnom dome. Prostredie je príjemné, na kraji lesa, v kľudnej lokalite.

Foto: Nora a Jakub Čaprnka
Foto: Nora a Jakub Čaprnka

Rodinné domy v tejto lokalite sú postavené veľmi ekonomicky, ale v zásade dobre. Dispozične nám však niektoré veci nesedeli, preto sme sa pustili do ich úpravy. Bolo zaujímavé riešiť interiér v dome, ktorý sme nenavrhovali.

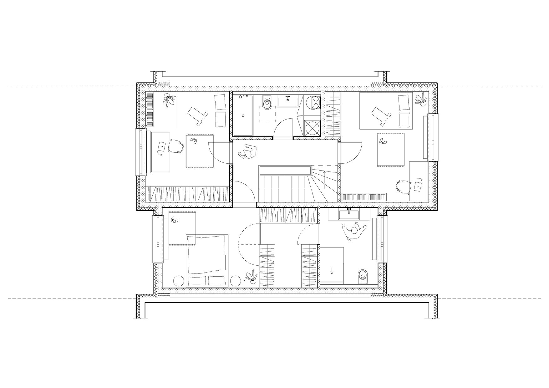
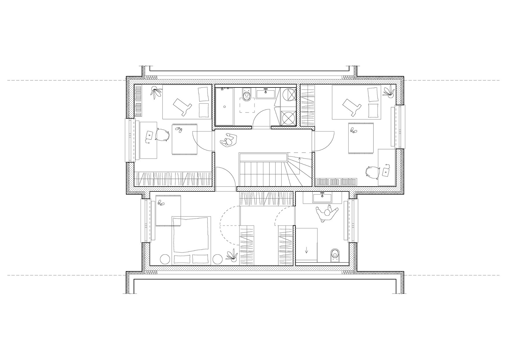
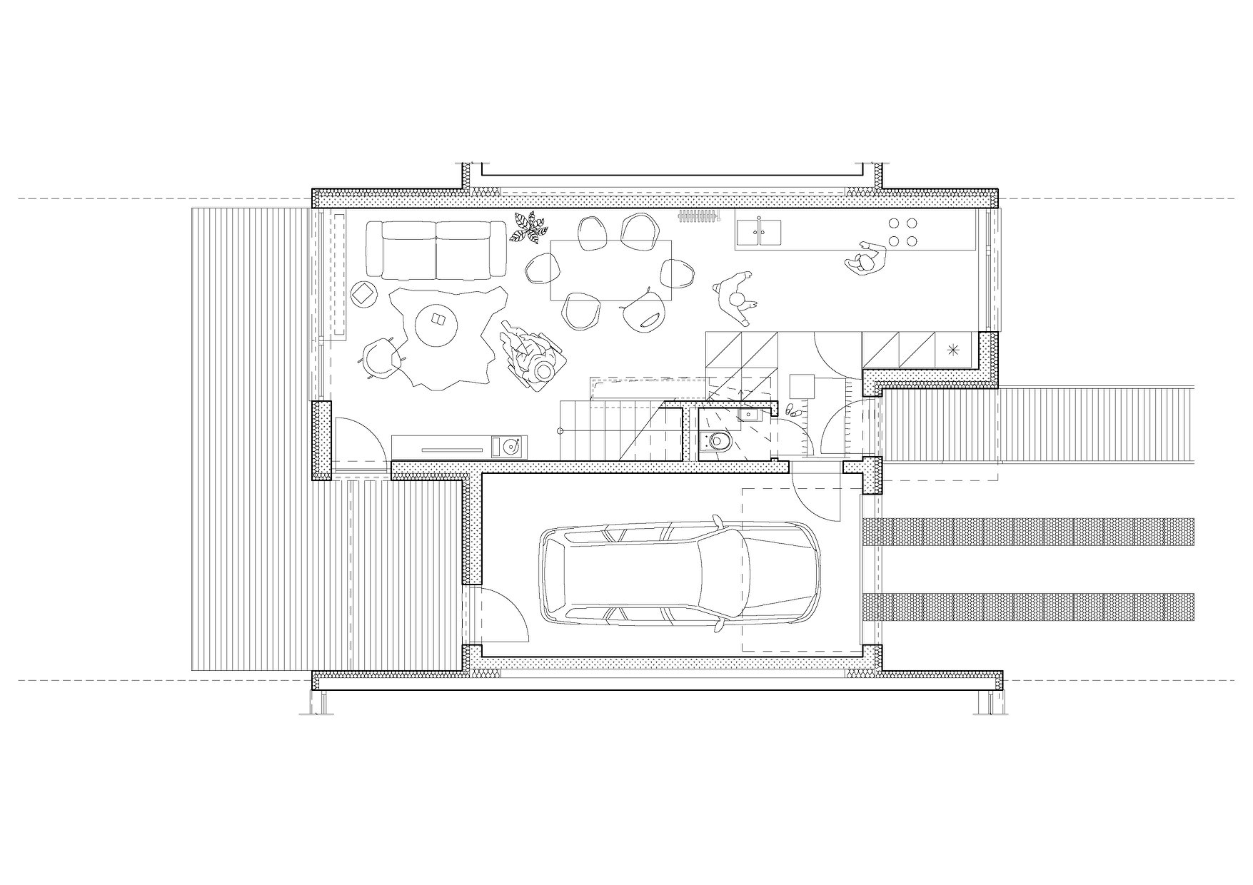
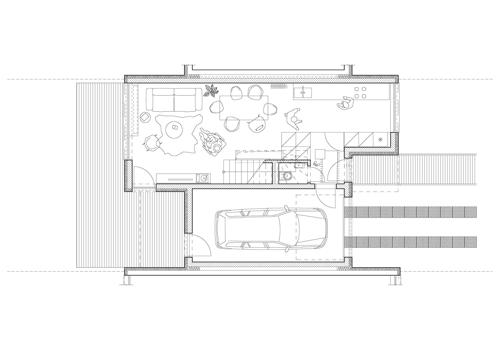
Asi najväčšou zmenou bolo vybúranie steny medzi dvoma izbami. Vytvorili sme z tohto priestoru veľkú spálňu s prechodným šatníkom a vlastnou kúpeľňou. Úpravou prešiel aj vstup, kde sme odstránili niektoré priečky. Zjednodušili sme schodisko, ktoré malo predtým medzipodestu a dva schody otočené smerom do obývacej izby, čo značne zmenšovalo obytný priestor a vytváralo zbytočnú bariéru.

Pôdorys prízemia
Pôdorys prízemiaAutor: GRAU
Pôdorys poschodia
Pôdorys poschodiaAutor: GRAU

Je to poctivo remeselne prevedený interiér, nábytok je vyrobený na mieru. Praktická je “zavesená” kuchynská linka kotvená do steny. Schodiskové zábradlie bolo náročné na výrobu a zameranie, keďže každý stupeň bol mierne odlišný.

Foto: Nora a Jakub Čaprnka
Foto: Nora a Jakub Čaprnka
Foto: Nora a Jakub Čaprnka
Foto: Nora a Jakub Čaprnka
Foto: Nora a Jakub Čaprnka
Foto: Nora a Jakub Čaprnka
Foto: Nora a Jakub Čaprnka
Foto: Nora a Jakub Čaprnka

Realizácia prebiehala relatívne plynulo, bez veľkých komplikácií. Samozrejme sa niektoré veci nepodarili na prvý krát, ako napríklad spomínané zábradlie ale aj liate podlahy v kúpeľniach, to ale asi k navrhovaniu na mieru patrí.

Podklady: GRAU

Poloha diela

Ing. arch. Andrej Olah
Ing. arch. Filip Marčák
Ing. arch. Vladimír Schmidt

Súvisiace články

Vložené
6. júl 2018
0
2399
Hlavný obsahHlavný obsah
Čakajte prosím