Advertorial

Okná Internorm za minuloročné ceny + hliníkový kryt zdarma!

Využite špeciálnu akciu Internorm: okná za minuloročné ceny a hliníkový kryt úplne zadarmo. Ponuka je časovo obmedzená!

Pozvánka na 2. ročník stavebného veľtrhu BigMarket na Slovensku

Na podujatí sa predstaví až 37 vystavovateľov - popredných dodávateľov stavebných materiálov a inovácií s prezentáciou...

Moderné plynové technológie: Efektivita a inovácie pre 21. storočie

Sumarizácia najdôležitejších inovácií, ktoré redefinujúcich využitie tohto energetického zdroja.

Utesňovanie spodných stavieb pomocou hydro-aktívnej fólie AMPHIBIA.

AMPHIBIA 3000 GRIP 1.3 od spoločnosti ATRO predstavuje modernú hydroizolačnú technológiu, ktorá spája vysokú odolnosť,...

Dekarbonizácia individuálneho vykurovania domácností – Green Deal evolučne a nie revolučne

Ambiciózne plány EK narazili na ekonomické možnosti domácností v jednotlivých členských štátoch –...

Minimalistické dvere IDEA – technická precíznosť a čistota prevedenia

IDEA DOOR od spoločnosti JAP prináša do interiéru čistý minimalistický vzhľad vďaka bezrámovému riešeniu a precíznej...

Dom s výhľadom na údolie, Dlouhý Most (ČR)

Kontinuita riešenia od vonkajšieho obkladu až po kovania a kľučky.

Schell Vitus – osvedčené riešenie pre sprchy a umývadlá vo verejnom sektore s viac ako desaťročnou tradíciou

Nástenné nadomietkové armatúry Vitus sú mimoriadne vhodné pre rýchlu a efektívnu...

Kompozitné okná predstavujú súčasnosť a budúcnosť

Okenné profily z kompozitného materiálu RAU-FIPRO X od spoločnosti Rehau sú v porovnaní s tradičnými plastovými profilmi mnohonásobne...

Myotis - stoly 2025

Najnovší sortiment stolov pre zariadenie interiérov...

Priemyselné sklenené priečky Dorsis Digero: svetelné rozhranie pre moderné interiéry

Spojenie moderného dizajnu, funkčnosti a svetla do harmonického architektonického prvku.

Význam prirodzeného svetla pre moderné a flexibilné pracovné prostredie

Kancelárska budova Baumit v slovinskom Trzine prešla premenou na moderné a udržateľné pracovisko. Architekti kládli dôraz...

Konferencia Xella Dialóg predstaví novinky a trendy v stavebníctve

Mottom šiesteho ročníku on-line konferencie odborníkov Xella Dialóg je Efektívny návrh budov 2025+: zmeny a riešenia

Murovací robot WLTR stavia svoj prvý dom na Slovensku

Robot WLTR predstavuje moderný prístup k murovaným konštrukciám. Vďaka automatizácii dokáže rýchlo, presne a bezpečne realizovať...

Nová éra bezpečnosti s I-tec Secure od Internorm

Okrem bezpečnosti majú okná aj elegantný vzhľad, pretože nie sú viditeľné žiadne uzamykacie časti kovania.

FLAT H, Bratislava

Adaptácia staršieho bytu s komplikovanou pôdorysnou stopou.
Diela
Red 325.01.2020
44080+45
FLAT H, Bratislava
Autori: GRAU, Ing. arch. Andrej Olah, Ing. arch. Filip Marčák, Ing. arch. Matej Kurajda, Ing.arch. Jana FilípkováNávrh: 2018 - 2019Realizácia: 2019 - 2019Adresa: Medená ulica , Bratislava, SlovenskoPublikované: 25. január 2020

Byt v bratislavskom Starom meste. "Otvorenie" obytnej plochy a "preusporiadanie" dispozície sa zaobišlo bez výrazných zásahov do pôvodných deliacich konštrukcií. Zrejmý je dôraz na praktickú a funkčnú stránku návrhu, z ktorej vychádza aj nová v architektonická a výtvarná podoba. Do vyčisteného priestoru zapadajú precízne stolárske prvky, zhotovené na mieru novej prevádzky. Ateliéru GRAU rekonštrukcie jednoducho idú (stačí sa pozrieť na súvisiace články na konci prezentácie).

Foto: Nora a Jakub Čaprnkovci

Realizáciu predstavia autori:

Byt na Medenej ulici, v bytovom dome zo 40. rokov, v sebe nenesie ducha okolitých prvorepublikových domov s vysokými stropmi a prevládajúcou osovou emfiládou. Aj napriek tomu, byt s racionálnou dispoziciu čiastočne preberá tento princíp. Pôvodná chodba smerovala osovo od vstupu, po dĺžke bytu, až do obývacej časti. Následne pokračovala cez presklené dvojkrídlové dvere až do izby. Obytný priestor si tak ponechal staromestského ducha, aj pri svojich rozmeroch a orientácii od ulice do vnútrobloku.

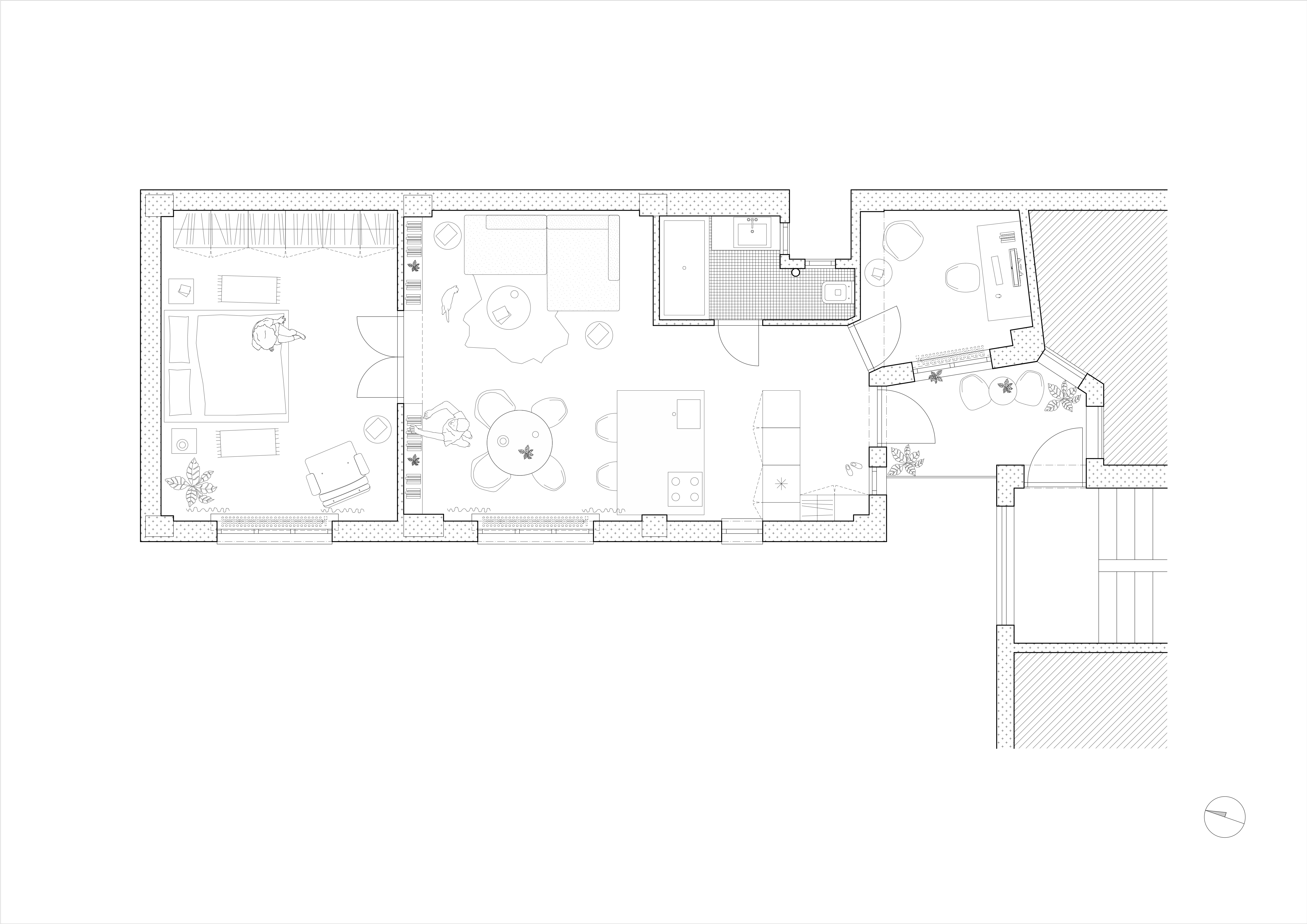
Pôdorys
PôdorysAutor: GRAU

Zväčšením obývačky o pôvodnú slúžkovskú izbu sme získali miesto pre kuchyňu, ktorá sa stala jej súčasťou. Od vstupu tento priestor oddeľuje šatníková skriňa. Pri prechode zo zádveria, do obývacej časti s kuchyňou, sa dostávame do osového priehľadu celým bytom. Od začiatku až po koniec. Vložený objem kuchyne, ako jediný materiálový a farebný objem v byte, opticky vyvažuje priehľad a odkazuje na pôvodné priečky a dvere v obývacej izbe. Kuchynský pult presahuje do obývacej časti a stáva sa jej súčasťou. Z pôvodnej kuchyne sa stala malá pracovňa.

Axonometria
AxonometriaAutor: GRAU

V interiéri prevažuje biela farba, doplnená o farebný akcent kuchynského pultu a jaseňovú šatníkovú skriňu. Kompozíciu dopĺňa svetlé terrazzo na podlahe. Ten istý princíp materiality preberá aj kúpeľňa. Zvyšná časť bytu je opakom tejto koncepcie - na drevených parketách je uložený biely nábytok s objektmi z dreveného masívu.

Foto: Nora a Jakub Čaprnkovci
Foto: Nora a Jakub Čaprnkovci
Foto: Nora a Jakub Čaprnkovci
Foto: Nora a Jakub Čaprnkovci
Foto: Nora a Jakub Čaprnkovci
Foto: Nora a Jakub Čaprnkovci
Foto: Nora a Jakub Čaprnkovci
Foto: Nora a Jakub Čaprnkovci
Foto: Nora a Jakub Čaprnkovci
Foto: Nora a Jakub Čaprnkovci
Foto: Nora a Jakub Čaprnkovci
Foto: Nora a Jakub Čaprnkovci
Foto: Nora a Jakub Čaprnkovci

Varianty riešenia:

Varianty riešenia
Varianty riešeniaAutor: GRAU

Podklady: GRAU, fotografie: Nora a Jakub Čaprnkovci

Poloha diela

GRAU
Ing. arch. Andrej Olah
Ing. arch. Filip Marčák
Ing. arch. Matej Kurajda
Ing.arch. Jana Filípková

Súvisiace články

Vložené
24. január 2020
0
4408
Hlavný obsahHlavný obsah
Čakajte prosím