Advertorial

Hotel Hirschen Spa House, Rakúsko

Novotvar v prostredí alpskej obce.

Vytvorte si kúpeľňu snov: dizajnové riešenie od značky hansgrohe

Hansgrohe - prémiová značka kúpeľňových riešení, ponúka nadčasový dizajn, technickú precíznosť a udržateľné inovácie...

Okná Internorm za minuloročné ceny + hliníkový kryt zdarma!

Využite špeciálnu akciu Internorm: okná za minuloročné ceny a hliníkový kryt úplne zadarmo. Ponuka je časovo obmedzená!

Pozvánka na 2. ročník stavebného veľtrhu BigMarket na Slovensku

Na podujatí sa predstaví až 37 vystavovateľov - popredných dodávateľov stavebných materiálov a inovácií s prezentáciou...

Moderné plynové technológie: Efektivita a inovácie pre 21. storočie

Sumarizácia najdôležitejších inovácií, ktoré redefinujúcich využitie tohto energetického zdroja.

Utesňovanie spodných stavieb pomocou hydro-aktívnej fólie AMPHIBIA.

AMPHIBIA 3000 GRIP 1.3 od spoločnosti ATRO predstavuje modernú hydroizolačnú technológiu, ktorá spája vysokú odolnosť,...

Dekarbonizácia individuálneho vykurovania domácností – Green Deal evolučne a nie revolučne

Ambiciózne plány EK narazili na ekonomické možnosti domácností v jednotlivých členských štátoch –...

Minimalistické dvere IDEA – technická precíznosť a čistota prevedenia

IDEA DOOR od spoločnosti JAP prináša do interiéru čistý minimalistický vzhľad vďaka bezrámovému riešeniu a precíznej...

Dom s výhľadom na údolie, Dlouhý Most (ČR)

Kontinuita riešenia od vonkajšieho obkladu až po kovania a kľučky.

Schell Vitus – osvedčené riešenie pre sprchy a umývadlá vo verejnom sektore s viac ako desaťročnou tradíciou

Nástenné nadomietkové armatúry Vitus sú mimoriadne vhodné pre rýchlu a efektívnu...

Kompozitné okná predstavujú súčasnosť a budúcnosť

Okenné profily z kompozitného materiálu RAU-FIPRO X od spoločnosti Rehau sú v porovnaní s tradičnými plastovými profilmi mnohonásobne...

Myotis - stoly 2025

Najnovší sortiment stolov pre zariadenie interiérov...

Priemyselné sklenené priečky Dorsis Digero: svetelné rozhranie pre moderné interiéry

Spojenie moderného dizajnu, funkčnosti a svetla do harmonického architektonického prvku.

Význam prirodzeného svetla pre moderné a flexibilné pracovné prostredie

Kancelárska budova Baumit v slovinskom Trzine prešla premenou na moderné a udržateľné pracovisko. Architekti kládli dôraz...

Konferencia Xella Dialóg predstaví novinky a trendy v stavebníctve

Mottom šiesteho ročníku on-line konferencie odborníkov Xella Dialóg je Efektívny návrh budov 2025+: zmeny a riešenia

Bistro Soho Aupark

Poctivý interiér v nákupnom centre. Prosté architektonické riešenie, priznané odolné materiály a variabilný koncept.
Diela
Red 416.07.2017
45130+18
Bistro Soho Aupark
Ateliér: GutgutAutori: Ing. arch. Lukáš Kordík, Ing. arch. Štefan Polakovič, Ing. arch. Andrej OlahPodlažná plocha: 163 m2 + 100 m2 zázemieNávrh: 2015 - 2016Realizácia: 2016 - 2016Adresa: Einsteinova 18, Bratislava, SlovenskoPublikované: 16. júl 2017

Ateliéry GutGut a GRAU navrhli pre etablujúcu sa značku už tretiu bratislavskú prevádzku. Nedávno sme písali o interiéri na Dunajskej ulici, dnes predstavíme bistro v priestoroch nákupného centra Aupark. Prevádzka na najvyššom podlaží objektu je veľmi ľahko identifikovateľná. Od korporátnej identity zóny food courtu, ktorá sa vyznačuje farebnými banermi a imitáciou dreveného obkladu sa Soho líši svojim minimalistickým poňatím.

Čierny box je vstavaný v skosenom nároží poschodia. Pri pohľade z priestoru nákupného centra je objekt kompozíciou plných a otvorených plôch. Kulisa monochromatických pevných častí  je v nároží prerušená rozmernými vstupnými otvormi. Nosná oceľová konštrukcia vonkajších stien je otočená do interiéru reštaurácie, kde je aj vizuálne priznaná. V otvorených častiach pod stropom ju môžeme vnímať aj z vonkajšej strany. Na toto miesto je umiestnené kontrastné logo prevádzky, ktoré vyniká v tmavom priestore.

Foto: Juraj Chlpík

V interiéri bistra neboli použité podhľady, interiér tak pôsobí priestornejšie. Technické konštrukcie a infraštruktúra je potlačená tmavou farbou. Autorský kolektív navrhoval pre Soho už tretiu bratislavskú prevádzku. Tak ako v predchádzajúcich prípadoch, aj tu autori kladú dôraz na stenu ako jednotiaci a výrazový prvok interiéru. Na neutrálnom pozadí je použitý ako hlavný motív hliníkový vlnitý plech. Lesklá stena technického zázemia reštaurácie tvorí pozadie nízkeho barového pultu. Zaujímavým prvkom je pult samotný. Pri pohľade z diaľky pôsobí takmer ako súčasť steny. Pri bližšom preskúmaní zistíme že ide o betónový prvok, ktorý bol odliaty do formy z profilovaného plechu.

Foto: Juraj Chlpík
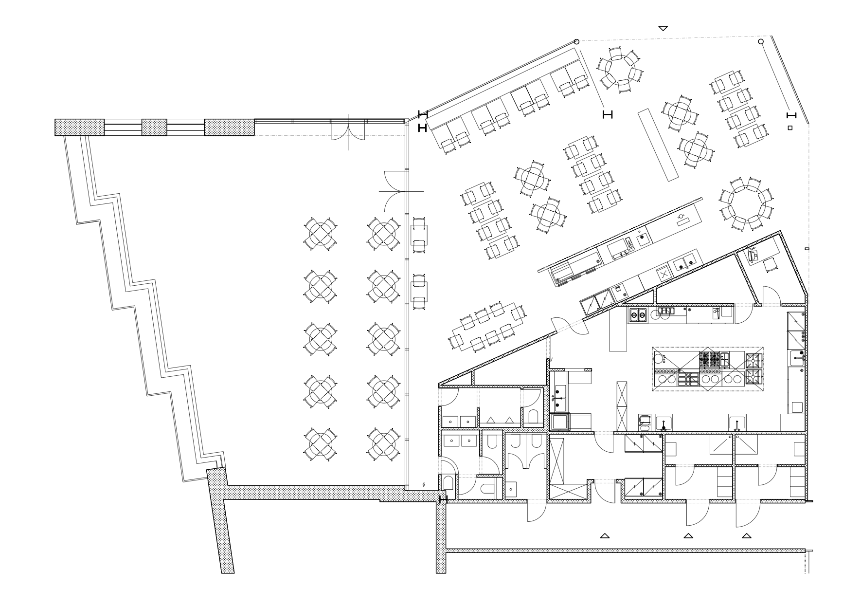
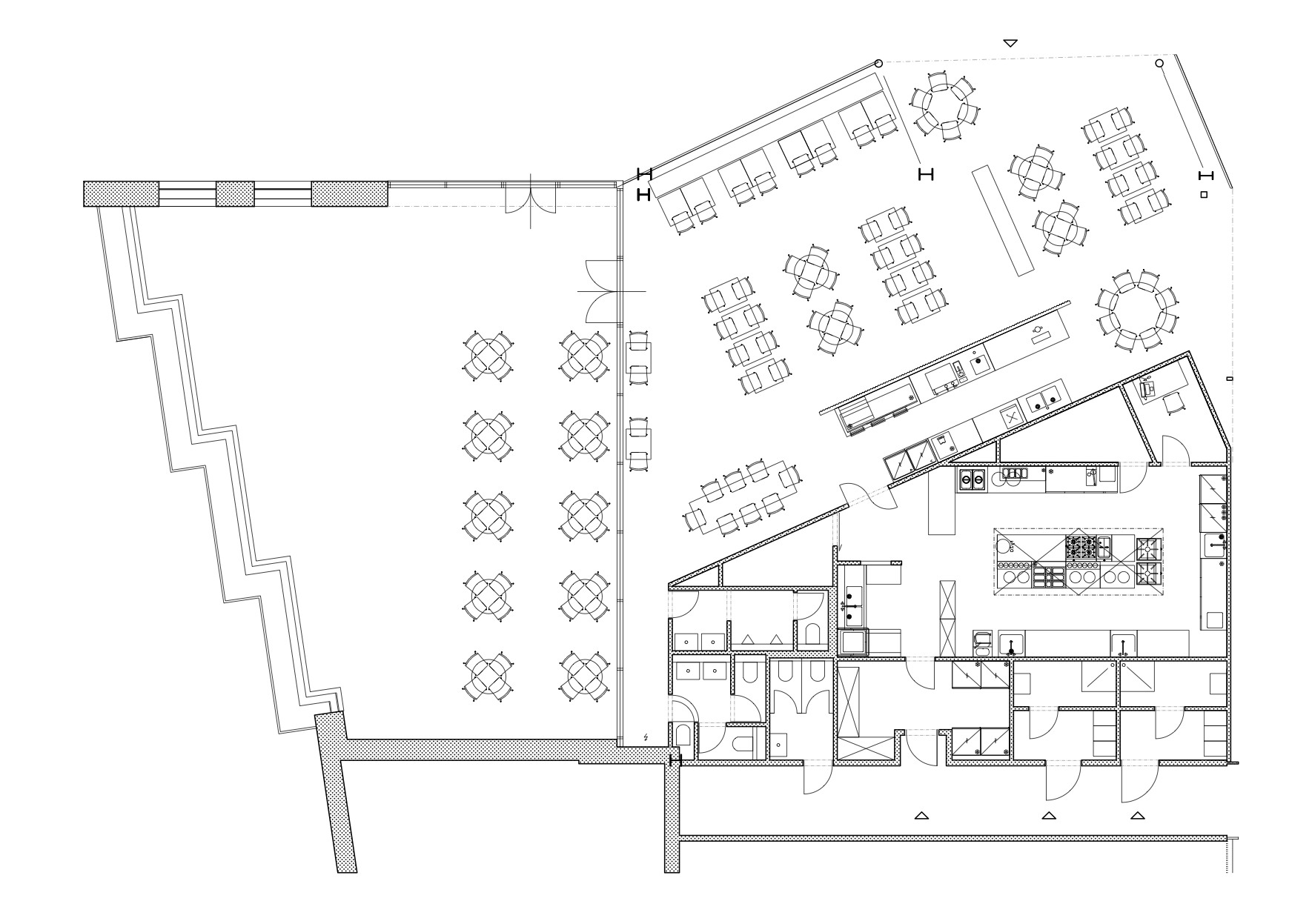
Pôdorys
PôdorysAutor: gutgut + GRAU
Foto: Juraj Chlpík
Foto: Juraj Chlpík

Strohé riešenie interiéru prispieva k životnosti celku a vytvára predpoklad na dlhodobé fungovanie bez potreby redizajnu. Jedáleň je zariadená jednoduchými drevenými stolami a stoličkami, ktoré ladia s kvalitnou drevenou podlahou. S nábytkom sa ľahko manipuluje, interiér je možné prispôsobiť aktuálnej potrebe. Atmosféru reštaurácie dopĺňa osvetlenie. Žiarkovky sú v priestore rozvešané na farebných kábloch. Súčasťou prevádzky je aj rozsiahla terasa využívaná najmä v letných mesiacoch.

Foto: Juraj Chlpík
Foto: Juraj Chlpík
Foto: Juraj Chlpík
Foto: Juraj Chlpík
Foto: Juraj Chlpík
Foto: Juraj Chlpík

Podklady: GutGut + GRAU

Ateliér

Poloha diela

Ing. arch. Lukáš Kordík
Ing. arch. Štefan Polakovič
Ing. arch. Andrej Olah

Súvisiace články

Vložené
28. jún 2017
0
4513
Hlavný obsahHlavný obsah
Čakajte prosím