Advertorial

Hotel Hirschen Spa House, Rakúsko

Novotvar v prostredí alpskej obce.

Vytvorte si kúpeľňu snov: dizajnové riešenie od značky hansgrohe

Hansgrohe - prémiová značka kúpeľňových riešení, ponúka nadčasový dizajn, technickú precíznosť a udržateľné inovácie...

Okná Internorm za minuloročné ceny + hliníkový kryt zdarma!

Využite špeciálnu akciu Internorm: okná za minuloročné ceny a hliníkový kryt úplne zadarmo. Ponuka je časovo obmedzená!

Pozvánka na 2. ročník stavebného veľtrhu BigMarket na Slovensku

Na podujatí sa predstaví až 37 vystavovateľov - popredných dodávateľov stavebných materiálov a inovácií s prezentáciou...

Moderné plynové technológie: Efektivita a inovácie pre 21. storočie

Sumarizácia najdôležitejších inovácií, ktoré redefinujúcich využitie tohto energetického zdroja.

Utesňovanie spodných stavieb pomocou hydro-aktívnej fólie AMPHIBIA.

AMPHIBIA 3000 GRIP 1.3 od spoločnosti ATRO predstavuje modernú hydroizolačnú technológiu, ktorá spája vysokú odolnosť,...

Dekarbonizácia individuálneho vykurovania domácností – Green Deal evolučne a nie revolučne

Ambiciózne plány EK narazili na ekonomické možnosti domácností v jednotlivých členských štátoch –...

Minimalistické dvere IDEA – technická precíznosť a čistota prevedenia

IDEA DOOR od spoločnosti JAP prináša do interiéru čistý minimalistický vzhľad vďaka bezrámovému riešeniu a precíznej...

Dom s výhľadom na údolie, Dlouhý Most (ČR)

Kontinuita riešenia od vonkajšieho obkladu až po kovania a kľučky.

Schell Vitus – osvedčené riešenie pre sprchy a umývadlá vo verejnom sektore s viac ako desaťročnou tradíciou

Nástenné nadomietkové armatúry Vitus sú mimoriadne vhodné pre rýchlu a efektívnu...

Kompozitné okná predstavujú súčasnosť a budúcnosť

Okenné profily z kompozitného materiálu RAU-FIPRO X od spoločnosti Rehau sú v porovnaní s tradičnými plastovými profilmi mnohonásobne...

Myotis - stoly 2025

Najnovší sortiment stolov pre zariadenie interiérov...

Priemyselné sklenené priečky Dorsis Digero: svetelné rozhranie pre moderné interiéry

Spojenie moderného dizajnu, funkčnosti a svetla do harmonického architektonického prvku.

Význam prirodzeného svetla pre moderné a flexibilné pracovné prostredie

Kancelárska budova Baumit v slovinskom Trzine prešla premenou na moderné a udržateľné pracovisko. Architekti kládli dôraz...

Konferencia Xella Dialóg predstaví novinky a trendy v stavebníctve

Mottom šiesteho ročníku on-line konferencie odborníkov Xella Dialóg je Efektívny návrh budov 2025+: zmeny a riešenia

Apartment SO, Bratislava

Moderné retro v prvorepublikovom dome.
Diela
Red 322.04.2023
42130+70
Apartment SO, Bratislava
Autori: Ing. arch. Andrej Olah, Ing. arch. Filip Marčák, Ing.arch. Jana Filípková, Ing. arch. Matej KurajdaPodlažná plocha: 75 m2Návrh: 2021 - 2021Realizácia: 2022 - 2022Adresa: Šoltésova ulica , Bratislava, SlovenskoPublikované: 22. apríl 2023

Rošáda v dispozícii staromestského bytu umožnila s minimálnymi stavebnými úpravami výrazné rozšírenie a scelenie dennej zóny bytu. Nové dvojkrídlové dvere umožňujú flexibilné otvorenie/delenie interiéru. Rukopis ateliéru GRAU je jasne čitateľný v návrhu výrazných autorských nábytkových solitérov, ktoré dopĺňajú pôvodné repasované kusy, prvky a povrchy. 

Realizáciu bližšie predstavujú autori:

Byt na Šoltésovej ulici sa nachádza v tehlovom bytovom dome z roku 1928 od architektov Klimeša a Merganca. Dispozične sa radikálne nemení. Z kuchyne orientovanej do tichého vnútrobloku sa stáva spálňa. Kuchyňa sa presúva do priestoru prepojeného s obývačkou, ktorý možno využiť aj ako hosťovskú izbu. Obe miestnosti sú presvetlené pôvodnými rozmernými kastlovými oknami, orientovanými  do ulice.

Samotná koncepcia interiéru je postavená na vizuálne solitérnych nábytkoch. Neutrálne materiály ako biela farba stien a nábytkov, jaseňová dyha, dubové parkety v rybinovom vzore, nerezové povrchy a terrazzo dopĺňa oceľovo modrá kuchyňa a kúpeľňa. Vďaka zachovaným kastlovým oknám, dreveným parketám a terazzu si interiér ponechováva pôvodnú atmosféru.

Srdce bytu tvorí kuchyňa s veľkým jedálenským stolom, v ktorej sa ma odohrávať spoločenský život, návštevy kamarátov či hranie spoločenských hier. S obývacou izbou ju prepájajú dvojkrídlové posuvné dvere. Priestor vďaka divánu dostáva multifunkčný charakter.

Dominantným prvkom interiéru je tiež veľká knižnica, navodzujúca pocit deliacej steny. V interiéri je využitých viacero pôvodných prvkov zariadenia, ako stoličky, kreslo, botník, či svietidlá.. Medzi zaujímavosti patrí pôvodné okno svetlíka, využité v kúpeľni ako zrkadlo. 

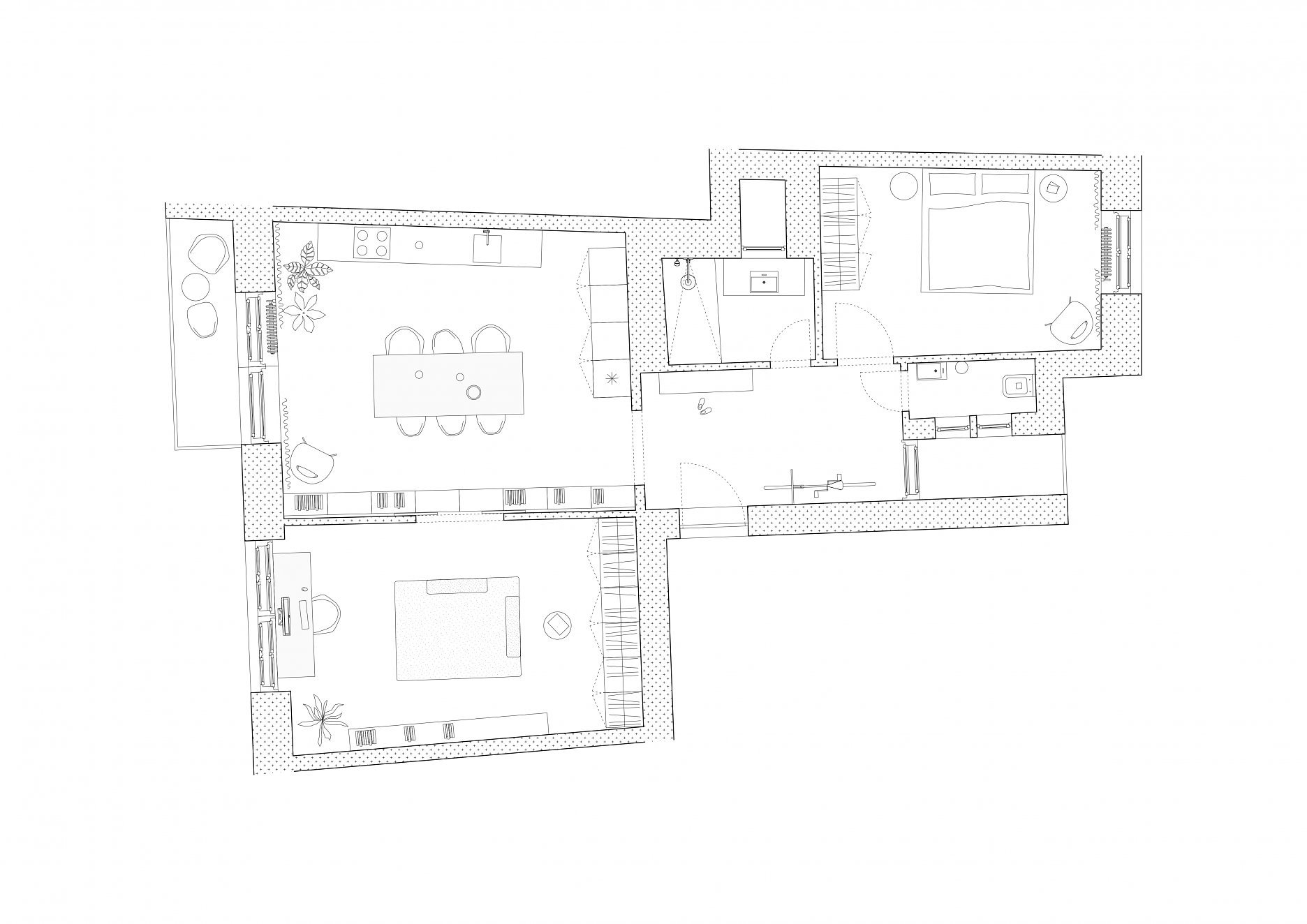
Pôdorys - východiskový stav
Pôdorys - východiskový stavAutor: GRAU
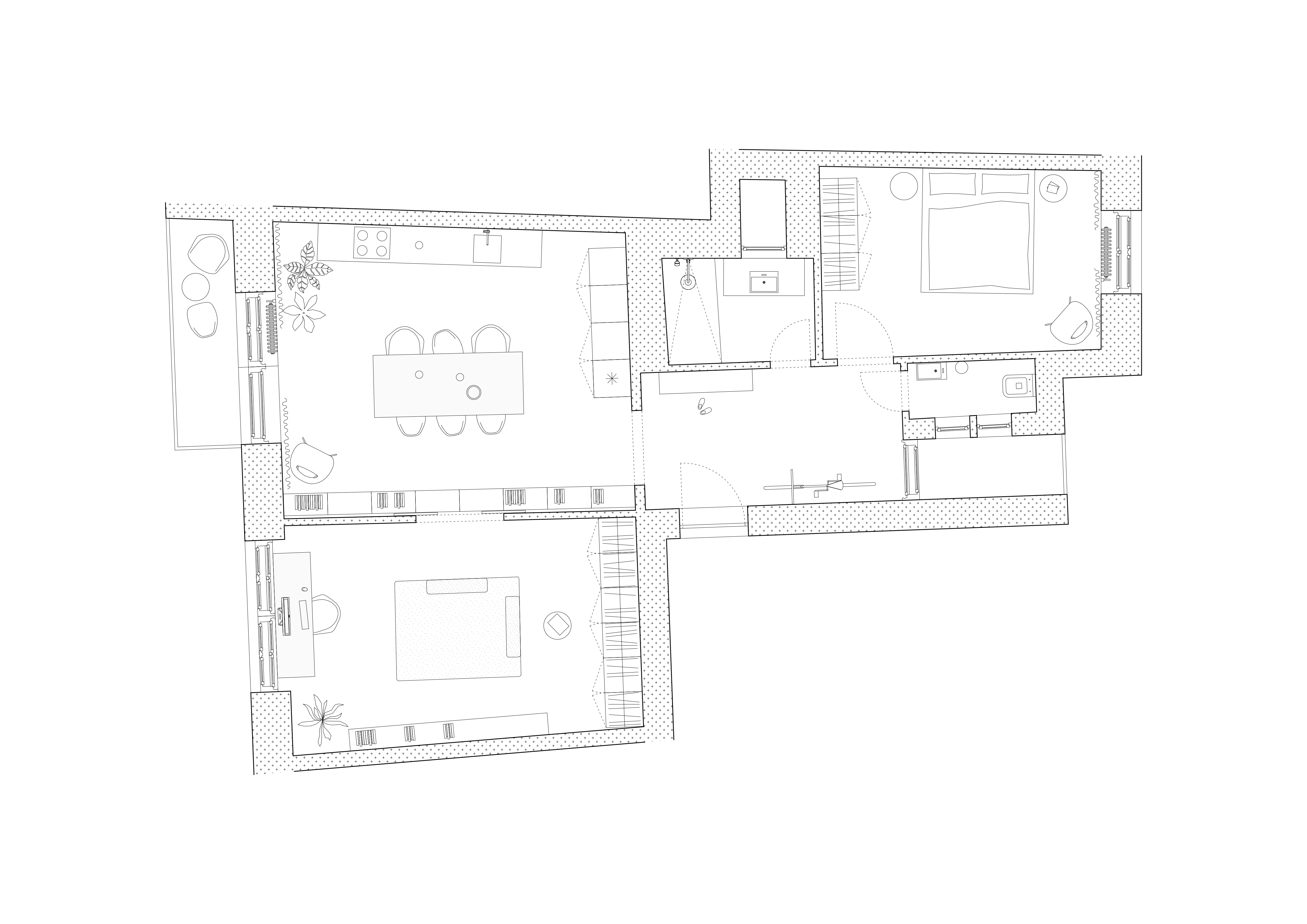
Pôdorys - nový stav
Pôdorys - nový stavAutor: GRAU
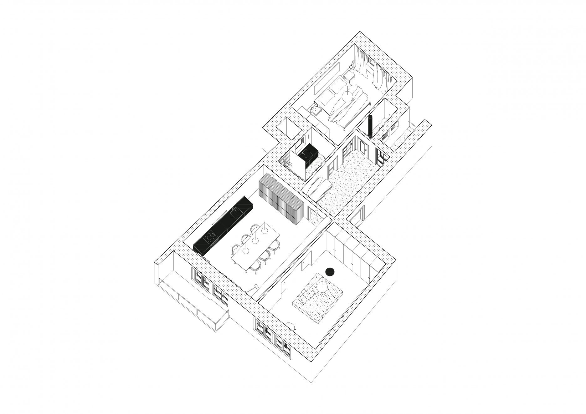
Axonometria - nový stav
Axonometria - nový stavAutor: GRAU
Foto: Matej Hakár
Foto: Matej Hakár
Foto: Matej Hakár
Foto: Matej Hakár
Foto: Matej Hakár
Foto: Matej Hakár
Foto: Matej Hakár

Koláže:

Koláž
KolážAutor: GRAU
Koláž
KolážAutor: GRAU

Autor: GRAU 
Fotografie: Matej Hakár

Poloha diela

Ing. arch. Andrej Olah
Ing. arch. Filip Marčák
Ing.arch. Jana Filípková
Ing. arch. Matej Kurajda

Súvisiace články

Matej HakárSKBratislava
Vložené
18. apríl 2023
0
4213
Hlavný obsahHlavný obsah
Čakajte prosím