Advertorial

Pozvánka na 2. ročník stavebného veľtrhu BigMarket na Slovensku

Na podujatí sa predstaví až 37 vystavovateľov - popredných dodávateľov stavebných materiálov a inovácií s prezentáciou...

Hotel Hirschen Spa House, Rakúsko

Novotvar v prostredí alpskej obce.

Vytvorte si kúpeľňu snov: dizajnové riešenie od značky hansgrohe

Hansgrohe - prémiová značka kúpeľňových riešení, ponúka nadčasový dizajn, technickú precíznosť a udržateľné inovácie...

Okná Internorm za minuloročné ceny + hliníkový kryt zdarma!

Využite špeciálnu akciu Internorm: okná za minuloročné ceny a hliníkový kryt úplne zadarmo. Ponuka je časovo obmedzená!

Moderné plynové technológie: Efektivita a inovácie pre 21. storočie

Sumarizácia najdôležitejších inovácií, ktoré redefinujúcich využitie tohto energetického zdroja.

Utesňovanie spodných stavieb pomocou hydro-aktívnej fólie AMPHIBIA.

AMPHIBIA 3000 GRIP 1.3 od spoločnosti ATRO predstavuje modernú hydroizolačnú technológiu, ktorá spája vysokú odolnosť,...

Dekarbonizácia individuálneho vykurovania domácností – Green Deal evolučne a nie revolučne

Ambiciózne plány EK narazili na ekonomické možnosti domácností v jednotlivých členských štátoch –...

Minimalistické dvere IDEA – technická precíznosť a čistota prevedenia

IDEA DOOR od spoločnosti JAP prináša do interiéru čistý minimalistický vzhľad vďaka bezrámovému riešeniu a precíznej...

Dom s výhľadom na údolie, Dlouhý Most (ČR)

Kontinuita riešenia od vonkajšieho obkladu až po kovania a kľučky.

Schell Vitus – osvedčené riešenie pre sprchy a umývadlá vo verejnom sektore s viac ako desaťročnou tradíciou

Nástenné nadomietkové armatúry Vitus sú mimoriadne vhodné pre rýchlu a efektívnu...

Kompozitné okná predstavujú súčasnosť a budúcnosť

Okenné profily z kompozitného materiálu RAU-FIPRO X od spoločnosti Rehau sú v porovnaní s tradičnými plastovými profilmi mnohonásobne...

Myotis - stoly 2025

Najnovší sortiment stolov pre zariadenie interiérov...

Priemyselné sklenené priečky Dorsis Digero: svetelné rozhranie pre moderné interiéry

Spojenie moderného dizajnu, funkčnosti a svetla do harmonického architektonického prvku.

Význam prirodzeného svetla pre moderné a flexibilné pracovné prostredie

Kancelárska budova Baumit v slovinskom Trzine prešla premenou na moderné a udržateľné pracovisko. Architekti kládli dôraz...

Konferencia Xella Dialóg predstaví novinky a trendy v stavebníctve

Mottom šiesteho ročníku on-line konferencie odborníkov Xella Dialóg je Efektívny návrh budov 2025+: zmeny a riešenia

Súťažný návrh dovolenkového rezortu v trópoch - ateliér GRAU

Raz za čas sa naše ateliéry dostanú aj k exotickému zadaniu.
Diela
Red 315.05.2016
15000+12
Súťažný návrh dovolenkového rezortu v trópoch - ateliér GRAU
Autori: Ing. arch. Andrej Olah, Ing. arch. Martin Hložka, Bc. Filip Marčák, Ing. Arch. Matej KurajdaNávrh: 2016 - 2016Adresa: Big Corn Island , NikaraguaPublikované: 15. máj 2016

Prezentované dielo je jeden z návrhov návrhov vyzvanej architektonickej súťaže, ktorú vypísal súkromný investor na návrh dovolenkového rezortu na ostrove v stredoamerickej Nikarague.

Concept

When analyzing assignment of this very characteristic and beautiful site on Big Corn Island in Nicaragua, we focused to find the form which will fit with the environment, will be significant and will meet all of practical and technical issues, such as dealing with rain water, shading and creating naturally ventilated space. We took the inspiration from traditional village houses and we basically used this classic shape, but with some design upgrade. The roof is cantilevered to all sides to provide shading and also rain protection.

All objects have steel beam frame, which is light, easy and fast to build and it is durable to withstand climate conditions on island. It is also flexible, as all the buildings are based on module structure and can be expanded or shrunk by adding or removing modules, so it can adapt to actual need. The other material is local tropical wood which works well with steel frame structure. Roofs are covered by light metal sheet.

Exterior and interior of houses is divided by three layers structure, from outside to inside there are slidable wooden panels which are providing shading and some intimity, when used in interior, dividing different spaces. Second layer is double glazed windows provided by Skyframe, again slidable and very light thanks to special thin frame structure, which are providing different climate inside and outside when using AC. Third layer is light and soft curtain which creates cozy atmosphere of the lodge.

Eco concept is based on low-tech and simple principles. It has a double roof structure providing natural air ventilation which helps to keep mild temperature inside even without air condition. The important material which we are using is tropical wood, local building material that perfectly fit in this environment. Most of the objects are placed on steel pillars with only small concrete foundations, which makes the minimal impact to the ground and is quite easy to move or remove in the case of need. All pedestrian and driveable paths are made by natural compressed material such as gravel or treshing — floor which deals with the rain without any technical supply and naturally soaks it in. The main goal for us was to create cozy environment which makes people to slow down a bit from their normal life and enjoy this magic land near the sea and nature.

Site

The site for this eco lodge hotel is situated in the most beautiful part of island and lies on a bit sloppy hill, which creates great overviews from the upper lodges and main building. We divided it into three different areas, the bottom area with Beach House, which works as first checkpoint for guests but is also open for public, accessible directly from main road and connected with the beach. The other part is Main House area with restaurant, reception and other services accessible by the footbridge through the swamp. It is also accessible by a golf car which provides easy access for supplying, because this building covers also spaces of technical background. Third part is the most private area of lodges which is set in the natural environment of the Wild Forest“. Placing lodges in the upper part of the site is based on optimalizating of distances between houses to achieve optimal level of privacy. Access to lodges is made by natural paths through the forest and it suppose to be a nice little walk in the natural environment. Every lodge has its own small path going from the main pathway.

Area axonometry
Area axonometry
Site plan
Site plan

For now we are working with two different versions of accessibility of the site.

Version A leaves to public access only Beach House, other parts such as Main House and Lodge area are only for guests of eco lodge hotel. In version B we are opening to public Main House area as well, so visitors can freely walk to the restaurant and bar situated in Main House, or attend the yoga classes here.

Area section
Area section

Lodge

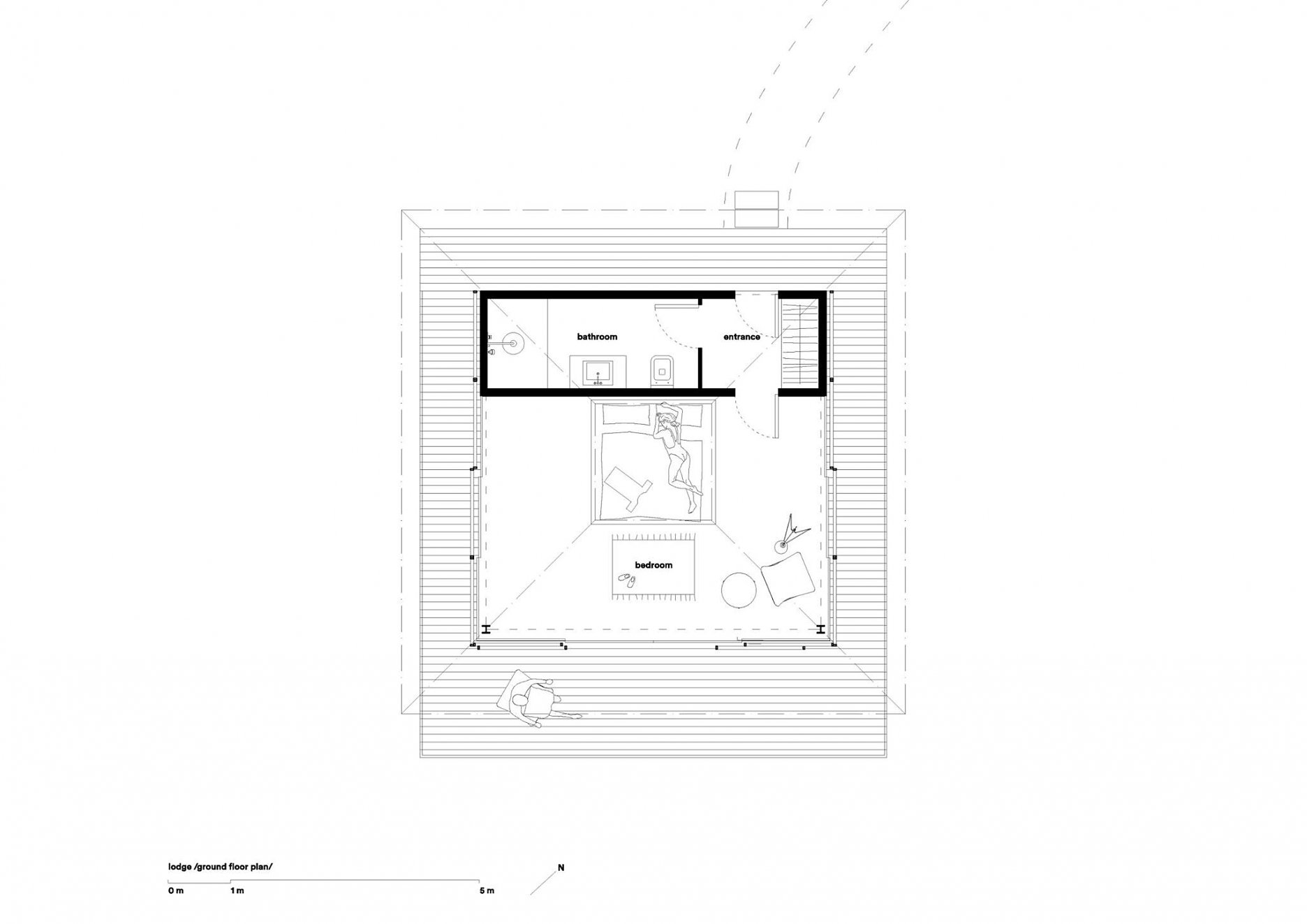
Concept of Lodge is based on creating intimate cosy space maximally open to the nature with possibility to set the level of privacy which is set by slidable wooden panels and by light curtain. Privacy is even optimalized by placing the lodges on site with adequate distance from each other. It has a small terrace around the room and cantilevered roof to help shading. Each lodge is designed in four star hotel standard but we wanted to keep it quite small to contain only necessary things in the room. One of the core element is large roof window which, when lying in bed provides magnificent view to the sky. The bed is also surrounded by mosquito net helping to protect from bugs and creating space in space.

Area axonometry
Area axonometry
Lodge - ground floor plan
Lodge - ground floor plan
Lodge axonometry
Lodge axonometry
Lodge - axonometric section
Lodge - axonometric section
Lodge roof window view
Lodge roof window view

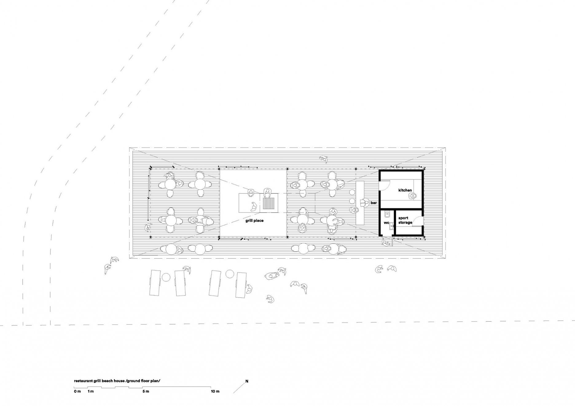
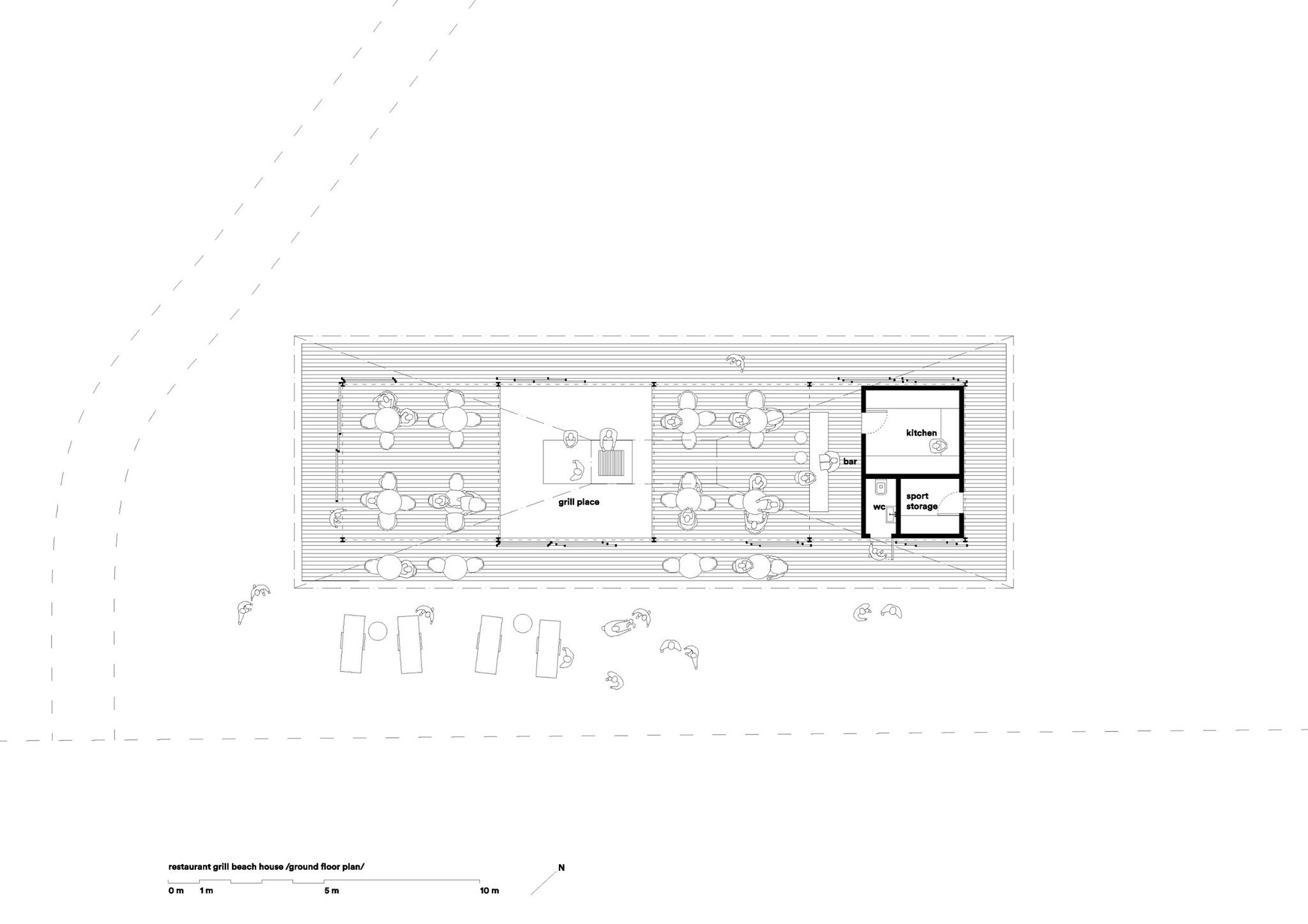
Beach house

It is an open bar with simple kitchen based on grill, well accessible from the beach and public road. Open for wide public and provides background and storage for beach activities such as surfing, diving and many others. It is the first welcoming point for guests from where they continue over wooden bridge through the protected swamp by a small golf car to the main building. It provides the facility for guests who can prepare their self snared fishes on the grill in care of the chef. It is based on very friendly and familiar atmosphere, but it is also open to other visitors who can enjoy a drink in the shade with overview to the sea and sunset. There is also possibility to add small pier for boats on the beach in front of Beach House.

Area axonometry
Area axonometry
Restaurant grill beach bar - ground floor plan
Restaurant grill beach bar - ground floor plan
Beach house axonometry
Beach house axonometry
Beach house axonometric section
Beach house axonometric section

Main house

This building provides spaces for the majority of services and facilities for guests. It is placed in the upper fold of the steep slope behind the swamp with the overview to the sea. The most impressive moment of this house is the view to the sea through terrace and infinite surface of the pool. Main house is vertically divided to the part of technical facilities in lower floor and the part set for visitors in upper level. Upper floor is based on large open space which contains restaurant, reception, yoga room and three smaller boxes. Two of them for the kitchen and one for the massage room. Main volume is divided by slidable wooden panels to smaller spaces containing different program, but by sliding them it makes the opportunity to merge those spaces into one large open space in case of bigger events, such as wedding etc. The lower level is set for the technical support as pool technology, storage's, laundry and other facilities. This technical floor has its own entrance situated from side to divide stuff members and service from guests, who have the main entrance from other side of main building. Main volume space also benefits from large courtyard with trees and vegetation and there is a roof window situated over it to bring natural light to the interior.

Area axonometry
Area axonometry
Main house - ground floor plan
Main house - ground floor plan
Main house - basement floor plan
Main house - basement floor plan
Main house axonometry
Main house axonometry
Main house - axonometric section
Main house - axonometric section

Autori návrhu: GRAU

Poloha diela

Ing. arch. Andrej Olah
Ing. arch. Martin Hložka
Bc. Filip Marčák
Ing. Arch. Matej Kurajda

Súvisiace články

Vložené
15. máj 2016
0
1500
Hlavný obsahHlavný obsah
Čakajte prosím