Advertorial

Hotel Hirschen Spa House, Rakúsko

Novotvar v prostredí alpskej obce.

Vytvorte si kúpeľňu snov: dizajnové riešenie od značky hansgrohe

Hansgrohe - prémiová značka kúpeľňových riešení, ponúka nadčasový dizajn, technickú precíznosť a udržateľné inovácie...

Okná Internorm za minuloročné ceny + hliníkový kryt zdarma!

Využite špeciálnu akciu Internorm: okná za minuloročné ceny a hliníkový kryt úplne zadarmo. Ponuka je časovo obmedzená!

Pozvánka na 2. ročník stavebného veľtrhu BigMarket na Slovensku

Na podujatí sa predstaví až 37 vystavovateľov - popredných dodávateľov stavebných materiálov a inovácií s prezentáciou...

Moderné plynové technológie: Efektivita a inovácie pre 21. storočie

Sumarizácia najdôležitejších inovácií, ktoré redefinujúcich využitie tohto energetického zdroja.

Utesňovanie spodných stavieb pomocou hydro-aktívnej fólie AMPHIBIA.

AMPHIBIA 3000 GRIP 1.3 od spoločnosti ATRO predstavuje modernú hydroizolačnú technológiu, ktorá spája vysokú odolnosť,...

Dekarbonizácia individuálneho vykurovania domácností – Green Deal evolučne a nie revolučne

Ambiciózne plány EK narazili na ekonomické možnosti domácností v jednotlivých členských štátoch –...

Minimalistické dvere IDEA – technická precíznosť a čistota prevedenia

IDEA DOOR od spoločnosti JAP prináša do interiéru čistý minimalistický vzhľad vďaka bezrámovému riešeniu a precíznej...

Dom s výhľadom na údolie, Dlouhý Most (ČR)

Kontinuita riešenia od vonkajšieho obkladu až po kovania a kľučky.

Schell Vitus – osvedčené riešenie pre sprchy a umývadlá vo verejnom sektore s viac ako desaťročnou tradíciou

Nástenné nadomietkové armatúry Vitus sú mimoriadne vhodné pre rýchlu a efektívnu...

Kompozitné okná predstavujú súčasnosť a budúcnosť

Okenné profily z kompozitného materiálu RAU-FIPRO X od spoločnosti Rehau sú v porovnaní s tradičnými plastovými profilmi mnohonásobne...

Myotis - stoly 2025

Najnovší sortiment stolov pre zariadenie interiérov...

Priemyselné sklenené priečky Dorsis Digero: svetelné rozhranie pre moderné interiéry

Spojenie moderného dizajnu, funkčnosti a svetla do harmonického architektonického prvku.

Význam prirodzeného svetla pre moderné a flexibilné pracovné prostredie

Kancelárska budova Baumit v slovinskom Trzine prešla premenou na moderné a udržateľné pracovisko. Architekti kládli dôraz...

Konferencia Xella Dialóg predstaví novinky a trendy v stavebníctve

Mottom šiesteho ročníku on-line konferencie odborníkov Xella Dialóg je Efektívny návrh budov 2025+: zmeny a riešenia

Byt R, Bratislava - Petržalka

Svetlo do hlbokej dispozície bytu.
Diela
Red 320.06.2022
35590+65
Byt R, Bratislava - Petržalka
Autori: Ing. arch. Andrej Olah, Ing. arch. Filip Marčák, Ing. arch. Jana Filípková, Ing. arch. Matej KurajdaPodlažná plocha: 65 m2Návrh: 2020 - 2021Realizácia: 2021 - 2021Adresa: Černyševského , Bratislava - Petržalka, SlovenskoPublikované: 20. jún 2022

Bývanie pre kreatívny pár muzikanta a kameramanky, ktorí žijú čiastočne v Prahe a čiastočne v Bratislave.

Vybúranie priečok (pevné konštrukcie oddeľujú iba hygienické jadro) otvorilo a presvetlilo pôvodnú tunelovú dispozíciu preplávajúceho bytu. Priestory po novom ohraničuje iba nábytková stena a závesy, ktoré prepúšťajú svetlo a umožňujú flexibilné otvorenie/delenie interiéru. Každú funkčnú zónu bytu charakterizuje farebný akcent, alebo výrazný autorský solitér.

Foto: Matej Hakár

Realizáciu predstavia autori z ateliéru GRAU:

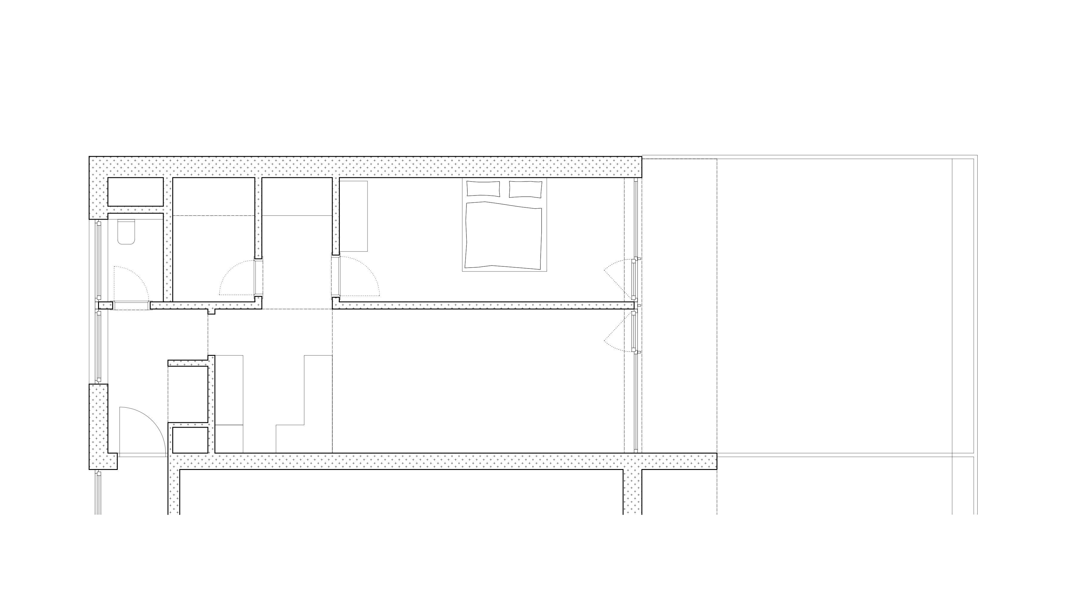
Pôvodný dvojizbový byt so vstupom z pavlače svojou hĺbkou a pôvodnou dispozíciou vytváral dva pozdĺžne tmavé priestory s vyústením na veľkú terasu.

interiér sme vyčistili od zbytočných priečok, čím sme z pozdĺžneho členenia vytvorili priečne, delené iba závesmi

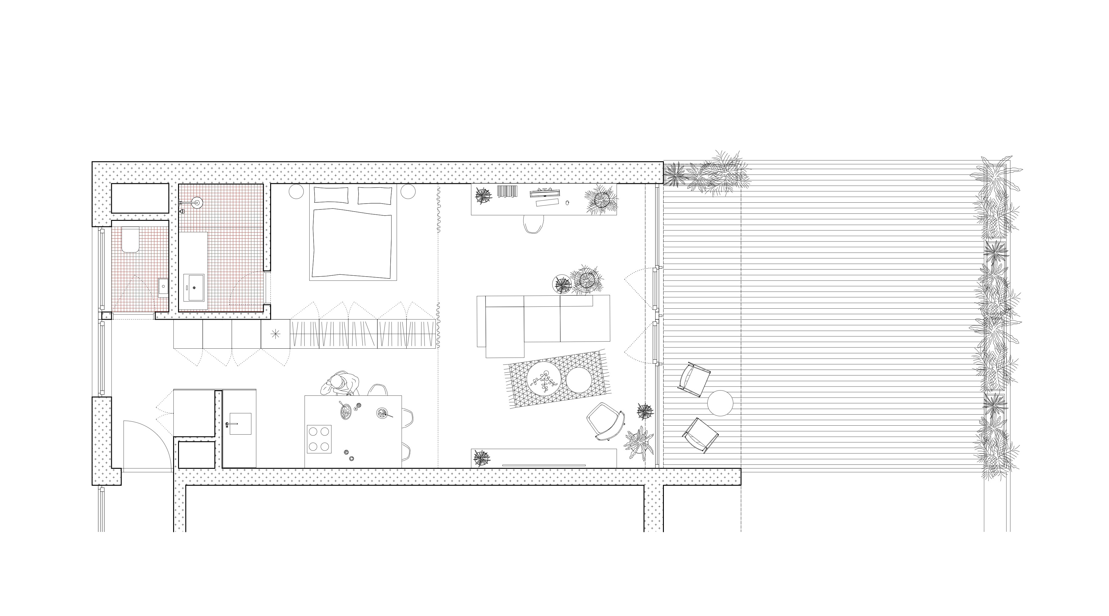
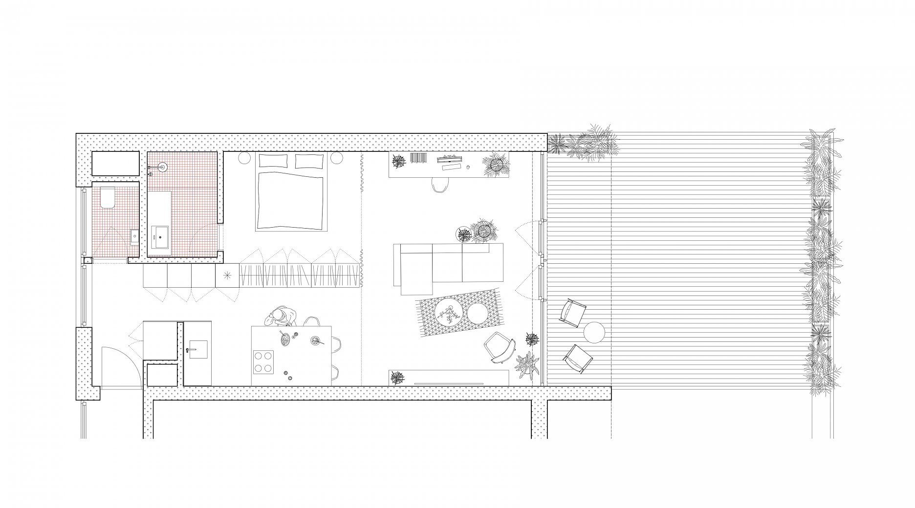
Hlavnú obývaciu zónu sme otvorili k terase na celú šírku bytu v prvom pláne. V druhom pláne sme umiestnili kuchyňu a spálňu, ktoré zdieľajú rovnaký výhľad na terasu cez obývaciu časť. 

Hygienu a WC sme nechali na pôvodnom mieste. Celý priestor sme smerom od terasy vnímali ako scénu s funkčnými vrstvami. Prvou časťou je javisko - obývacia zóna s pracovným kútom. Druhú scénu tvorí kuchyňa a spálňa, ktoré sú predelené nábytkovou priečkou. Poslednou vrstvou je vstupná časť a hygiena. Tieto priečne vrstvy rozdeľujeme ťažkými závesmi, ktoré vytvárajú priehľady medzi scénami bytu. 

Každé z týchto zákutí má svoje špecifické priestorové elementy. Kuchyňu akcentujeme farebným kuchynským pultom, v spálni akcentujeme priestor posteľou s výrazným polkruhovým čelom a  nohami. Celý byt je komponovaný ako scéna objektov v rôznych vrstvách, ktorá sa počas dňa prirodzene mení. 

Pôdorys - východiskový stav
Pôdorys - východiskový stavAutor: GRAU
Pôdorys - nový stav
Pôdorys - nový stavAutor: GRAU
Priestorová schéma - nový stav
Priestorová schéma - nový stavAutor: GRAU
Foto: Matej Hakár
Foto: Matej Hakár
Foto: Matej Hakár
Foto: Matej Hakár
Foto: Matej Hakár
Foto: Matej Hakár
Foto: Matej Hakár
Foto: Matej Hakár
Foto: Matej Hakár
Foto: Matej Hakár
Foto: Matej Hakár
Foto: Matej Hakár
Foto: Matej Hakár
Foto: Matej Hakár
Foto: Matej Hakár
Foto: Matej Hakár
Foto: Matej Hakár

Koláže:

Autor: GRAU
Autor: GRAU
Autor: GRAU

Byt pred rekonštrukciou:

Autor: GRAU 
Fotografie: Matej Hakár

Poloha diela

Ing. arch. Andrej Olah
Ing. arch. Filip Marčák
Ing. arch. Jana Filípková
Ing. arch. Matej Kurajda

Súvisiace články

Matej HakárSKBratislava
Vložené
14. jún 2022
0
3559
Hlavný obsahHlavný obsah
Čakajte prosím