Advertorial

Pozvánka na 2. ročník stavebného veľtrhu BigMarket na Slovensku

Na podujatí sa predstaví až 37 vystavovateľov - popredných dodávateľov stavebných materiálov a inovácií s prezentáciou...

Hotel Hirschen Spa House, Rakúsko

Novotvar v prostredí alpskej obce.

Vytvorte si kúpeľňu snov: dizajnové riešenie od značky hansgrohe

Hansgrohe - prémiová značka kúpeľňových riešení, ponúka nadčasový dizajn, technickú precíznosť a udržateľné inovácie...

Okná Internorm za minuloročné ceny + hliníkový kryt zdarma!

Využite špeciálnu akciu Internorm: okná za minuloročné ceny a hliníkový kryt úplne zadarmo. Ponuka je časovo obmedzená!

Moderné plynové technológie: Efektivita a inovácie pre 21. storočie

Sumarizácia najdôležitejších inovácií, ktoré redefinujúcich využitie tohto energetického zdroja.

Utesňovanie spodných stavieb pomocou hydro-aktívnej fólie AMPHIBIA.

AMPHIBIA 3000 GRIP 1.3 od spoločnosti ATRO predstavuje modernú hydroizolačnú technológiu, ktorá spája vysokú odolnosť,...

Dekarbonizácia individuálneho vykurovania domácností – Green Deal evolučne a nie revolučne

Ambiciózne plány EK narazili na ekonomické možnosti domácností v jednotlivých členských štátoch –...

Minimalistické dvere IDEA – technická precíznosť a čistota prevedenia

IDEA DOOR od spoločnosti JAP prináša do interiéru čistý minimalistický vzhľad vďaka bezrámovému riešeniu a precíznej...

Dom s výhľadom na údolie, Dlouhý Most (ČR)

Kontinuita riešenia od vonkajšieho obkladu až po kovania a kľučky.

Schell Vitus – osvedčené riešenie pre sprchy a umývadlá vo verejnom sektore s viac ako desaťročnou tradíciou

Nástenné nadomietkové armatúry Vitus sú mimoriadne vhodné pre rýchlu a efektívnu...

Kompozitné okná predstavujú súčasnosť a budúcnosť

Okenné profily z kompozitného materiálu RAU-FIPRO X od spoločnosti Rehau sú v porovnaní s tradičnými plastovými profilmi mnohonásobne...

Myotis - stoly 2025

Najnovší sortiment stolov pre zariadenie interiérov...

Priemyselné sklenené priečky Dorsis Digero: svetelné rozhranie pre moderné interiéry

Spojenie moderného dizajnu, funkčnosti a svetla do harmonického architektonického prvku.

Význam prirodzeného svetla pre moderné a flexibilné pracovné prostredie

Kancelárska budova Baumit v slovinskom Trzine prešla premenou na moderné a udržateľné pracovisko. Architekti kládli dôraz...

Konferencia Xella Dialóg predstaví novinky a trendy v stavebníctve

Mottom šiesteho ročníku on-line konferencie odborníkov Xella Dialóg je Efektívny návrh budov 2025+: zmeny a riešenia

Mimóza gelato, Bratislava

Zmrzlináreň na Dunajskej ulici.
Diela
Red 315.05.2024
19090+71
Mimóza gelato, Bratislava
Autori: Ing. arch. Andrej Olah, Ing. arch. Filip Marčák, Ing. arch. Matej Kurajda, Ing. arch. Alexandra MájskaPodlažná plocha: 96 m2Návrh: 2023 - 2023Realizácia: 2023 - 2023Adresa: Dunajská 7114/15, Bratislava, SlovenskoPublikované: 15. máj 2024

Interiér z dielne ateliéru GRAU, v partri eklektického domu z prelomu tisícročí. 

Návrh zjednocuje jemná farebnosť cementovej stierky na podlahách stenách aj strope. Neutrálny materiálový rámec a absencia výrazných grafických prvkov a pútačov umožňuje pri pohľade cez presklené nárožie vnímanie samotnej prevádzky a obsahu interiéru. Ako protiklad k tlmenej farebnosti pôsobia farebné akcenty organicky tvarovaného sedenia. 

Foto: Matej Hakár
Foto: Matej Hakár
Foto: Matej Hakár

Viac povedia architekti z ateliéru GRAU:

Mimóza, prevádzka nachádzajúca sa na Dunajskej ulici v Bratislave umiestnená v polyfunkčnom objekte z roku 2003. Budova je známa svojou sochou Júliusa Satinského pred vstupom ukazujúceho na dekoratívny prvok v tvare ľudského ucha na fasáde. Objekt je špecifický pre obdobie návrhu a realizácie. Má prvky, výrazného charakteru a rôznych tvarov spájaných na fasáde. Akcenty a viaceré kombinácie materiálov rozbíjajú kompaktnosť a jednotný charakter.

Uvažujeme preto nad jednoduchosťou a čistotou priestoru s presklenou fasádou, ktorý komunikuje cez roh so svojím okolím. Do najvzdialenejšej pozície umiestňujeme výrobu a zázemie. Odbytovú časť zo zadným traktom delíme uskakovanou stenou v jemnom pôdorysnom sklone, ako podklad či obraz celej scény priestoru. Je to parafráza komplikovanosti objektu. Základ materiality je jednoduchý. Cementovou stierkou v jemnom tóne ružovej farby obaľujeme celý priestor - podlaha, steny, strop aj lavica na sedenie.

Bar, pracovný pult za barom a stoly pri lavici charakterizuje priznaná materialita nerezového plechu a nerezovej konštrukcie. Farebný akcent vo fialovom tóne z koncepcie grafického dizajnu prevádzky vytvárame malými objektmi na sedenie, vychádzajúc z tvaru "kopčeka zmrzliny".

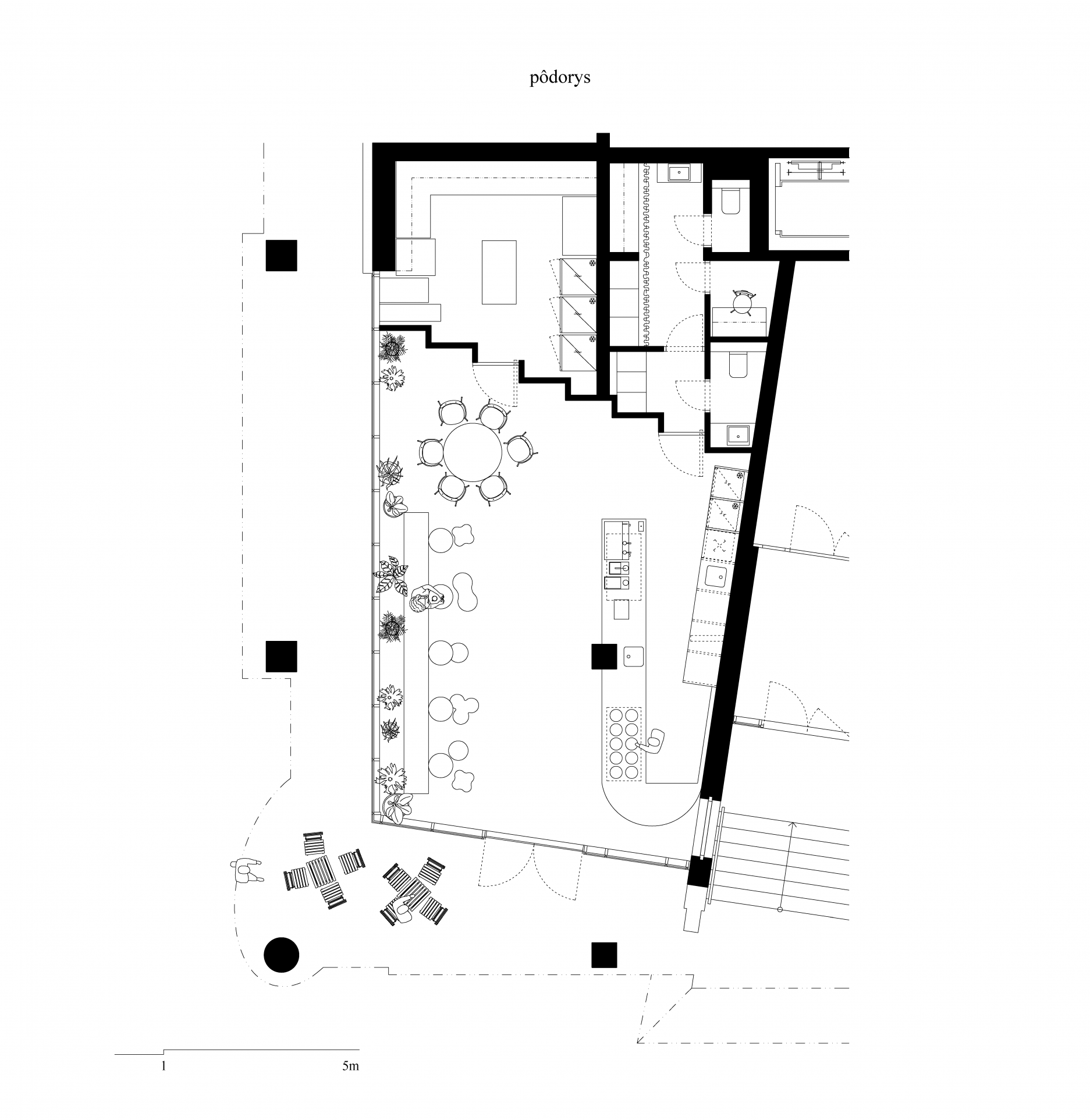
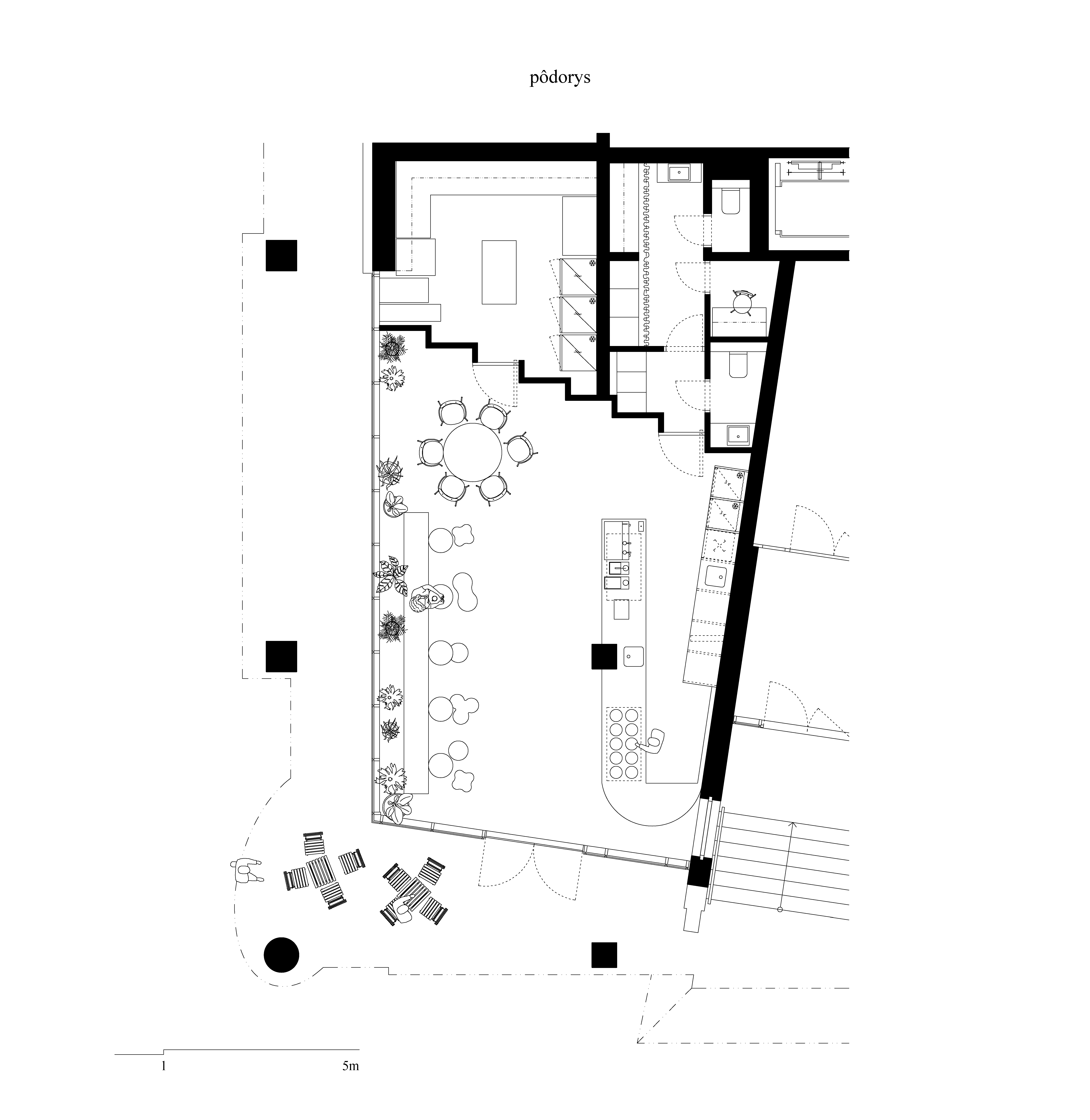
Pôdorys
PôdorysAutor: GRAU
Axonometria
AxonometriaAutor: GRAU
Koláž
KolážAutor: GRAU
Foto: Matej Hakár
Foto: Matej Hakár
Foto: Matej Hakár
Foto: Matej Hakár
Foto: Matej Hakár
Foto: Matej Hakár
Foto: Matej Hakár
Foto: Matej Hakár
Foto: Matej Hakár
Foto: Matej Hakár
Foto: Matej Hakár
Foto: Matej Hakár
Foto: Matej Hakár
Foto: Matej Hakár
Foto: Matej Hakár
Foto: Matej Hakár
Foto: Matej Hakár
Foto: Matej Hakár
Foto: Matej Hakár
Foto: Matej Hakár

Autor: GRAU 
Fotografie: Matej Hakár

Poloha diela

Ing. arch. Andrej Olah
Ing. arch. Filip Marčák
Ing. arch. Matej Kurajda
Ing. arch. Alexandra Májska

Súvisiace články

Matej HakárSKBratislava
Vložené
15. apríl 2024
0
1909
Hlavný obsahHlavný obsah
Čakajte prosím