Advertorial

Hotel Hirschen Spa House, Rakúsko

Novotvar v prostredí alpskej obce.

Vytvorte si kúpeľňu snov: dizajnové riešenie od značky hansgrohe

Hansgrohe - prémiová značka kúpeľňových riešení, ponúka nadčasový dizajn, technickú precíznosť a udržateľné inovácie...

Okná Internorm za minuloročné ceny + hliníkový kryt zdarma!

Využite špeciálnu akciu Internorm: okná za minuloročné ceny a hliníkový kryt úplne zadarmo. Ponuka je časovo obmedzená!

Pozvánka na 2. ročník stavebného veľtrhu BigMarket na Slovensku

Na podujatí sa predstaví až 37 vystavovateľov - popredných dodávateľov stavebných materiálov a inovácií s prezentáciou...

Moderné plynové technológie: Efektivita a inovácie pre 21. storočie

Sumarizácia najdôležitejších inovácií, ktoré redefinujúcich využitie tohto energetického zdroja.

Utesňovanie spodných stavieb pomocou hydro-aktívnej fólie AMPHIBIA.

AMPHIBIA 3000 GRIP 1.3 od spoločnosti ATRO predstavuje modernú hydroizolačnú technológiu, ktorá spája vysokú odolnosť,...

Dekarbonizácia individuálneho vykurovania domácností – Green Deal evolučne a nie revolučne

Ambiciózne plány EK narazili na ekonomické možnosti domácností v jednotlivých členských štátoch –...

Minimalistické dvere IDEA – technická precíznosť a čistota prevedenia

IDEA DOOR od spoločnosti JAP prináša do interiéru čistý minimalistický vzhľad vďaka bezrámovému riešeniu a precíznej...

Dom s výhľadom na údolie, Dlouhý Most (ČR)

Kontinuita riešenia od vonkajšieho obkladu až po kovania a kľučky.

Schell Vitus – osvedčené riešenie pre sprchy a umývadlá vo verejnom sektore s viac ako desaťročnou tradíciou

Nástenné nadomietkové armatúry Vitus sú mimoriadne vhodné pre rýchlu a efektívnu...

Kompozitné okná predstavujú súčasnosť a budúcnosť

Okenné profily z kompozitného materiálu RAU-FIPRO X od spoločnosti Rehau sú v porovnaní s tradičnými plastovými profilmi mnohonásobne...

Myotis - stoly 2025

Najnovší sortiment stolov pre zariadenie interiérov...

Priemyselné sklenené priečky Dorsis Digero: svetelné rozhranie pre moderné interiéry

Spojenie moderného dizajnu, funkčnosti a svetla do harmonického architektonického prvku.

Význam prirodzeného svetla pre moderné a flexibilné pracovné prostredie

Kancelárska budova Baumit v slovinskom Trzine prešla premenou na moderné a udržateľné pracovisko. Architekti kládli dôraz...

Konferencia Xella Dialóg predstaví novinky a trendy v stavebníctve

Mottom šiesteho ročníku on-line konferencie odborníkov Xella Dialóg je Efektívny návrh budov 2025+: zmeny a riešenia

Byt S, Bratislava

Konverzia bytu v Starom Meste pre mladú rodinu.
Diela
Red 315.07.2020
68200+42
Byt S, Bratislava
Autori: Ing. arch. Andrej Olah, Ing. arch. Filip Marčák, Ing. arch. Matej KurajdaPodlažná plocha: 83,3 m2Návrh: 2018 - 2019Realizácia: 2019 - 2019Adresa: Staré Mesto , Bratislava, SlovenskoPublikované: 15. júl 2020

Ďalší z vydarených staromestských interiérov ateliéru GRAU. "Upratanie" obslužných funkcií, otvorenie dennej zóny a prepojenie obývacej izby so zádverím a balkónom eliminovalo rutinu bývania na štruktúrovanom pôdoryse. Kvalitnému návrhu zodpovedá materiálové a remeselné vyhotovenie. Odhaleným stropom, ktoré zdôrazňujú vzdušnosť priestoru, sekundujú parkety v obytných miestnostiach a terrazzo na podlahe kúpeľní. Zrejmý je dôraz na praktickú a funkčnú stránku návrhu, z ktorej vychádza aj nová architektonická a výtvarná podoba. Vyčistený priestor dotvárajú stolárske prvky, zhotovené na mieru novej prevádzky. 

Foto: Dominik Sepp
Foto: Dominik Sepp
Foto: Dominik Sepp
Autor: GRAU

Slovo autorov:

Pričlenením izby z vedľajšej bytovej jednotky sa z bytu stáva trojizbový. Odstránením všetkých objemov z obývacej časti sme vytvorili ucelený veľkorysý priestor obývacej izby, ktorá sa tak stáva prirodzeným centrom bytu. Strhnutím vrstiev obnažujeme jestvujúce konštrukcie a priznávame ich. Vložená nábytková priečka so zapustenými posuvnými dverami ponecháva zádverie, zároveň však umožňuje pričleniť balkón k obývacej izbe, ktorá tak získava novú kvalitu a zároveň lepšie presvetlenie. Premiestnenie kúpeľne vytvorilo jasne definované zóny bytu.

Autor: GRAU
Autor: GRAU
Foto: Dominik Sepp
Foto: Dominik Sepp
Foto: Dominik Sepp
Foto: Dominik Sepp
Foto: Dominik Sepp
Foto: Dominik Sepp
Foto: Dominik Sepp
Foto: Dominik Sepp
Foto: Dominik Sepp
Foto: Dominik Sepp
Foto: Dominik Sepp
Foto: Dominik Sepp
Foto: Dominik Sepp
Foto: Dominik Sepp
Foto: Dominik Sepp

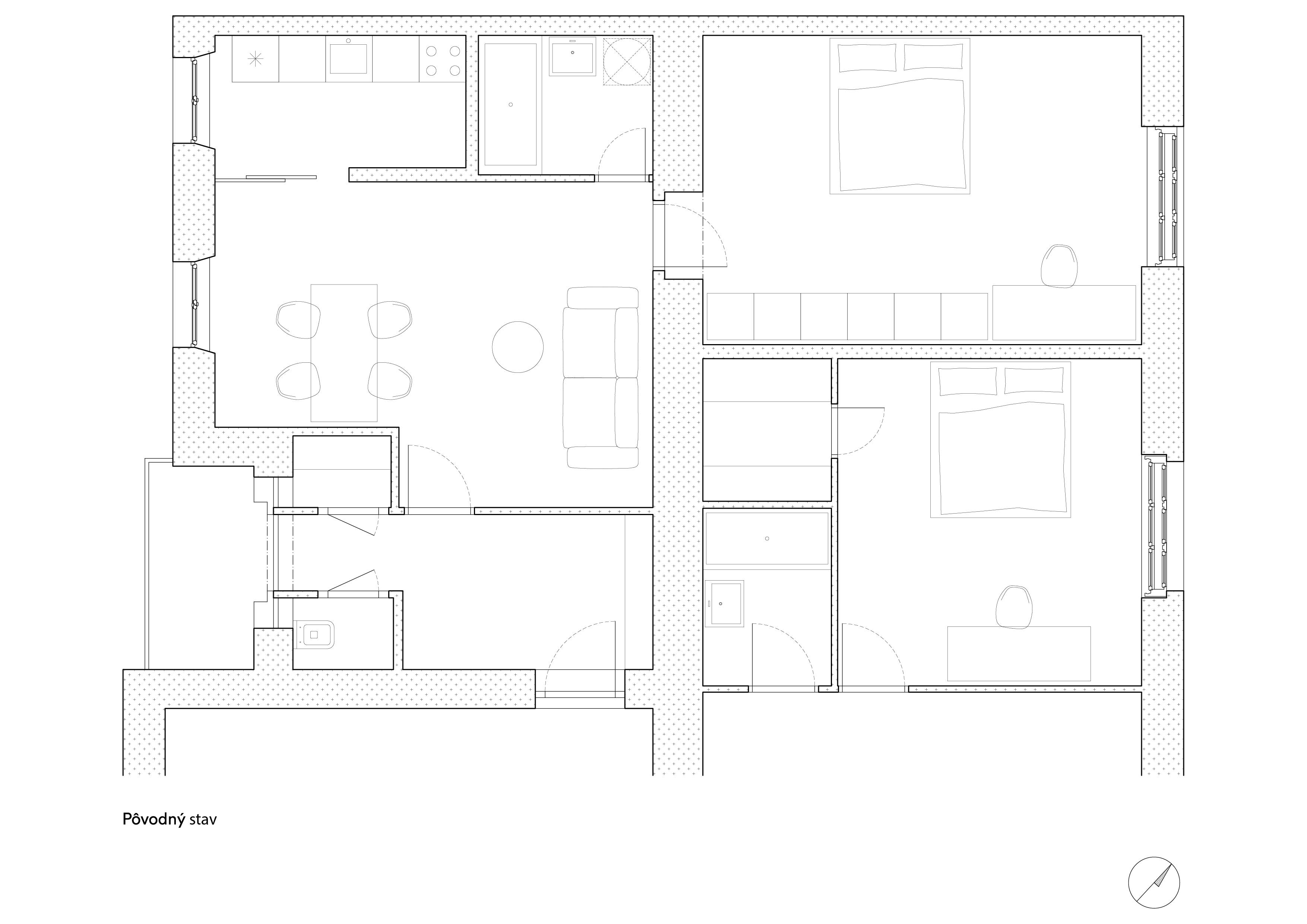
Byt pred rekonštrukciou:

Foto: archív autorov
Foto: archív autorov

Podklady: GRAU, fotografie: Dominik Sepp

Poloha diela

Ing. arch. Andrej Olah
Ing. arch. Filip Marčák
Ing. arch. Matej Kurajda

Súvisiace články

Vložené
14. júl 2020
0
6820
Hlavný obsahHlavný obsah
Čakajte prosím