Advertorial

Pozvánka na 2. ročník stavebného veľtrhu BigMarket na Slovensku

Na podujatí sa predstaví až 37 vystavovateľov - popredných dodávateľov stavebných materiálov a inovácií s prezentáciou...

Hotel Hirschen Spa House, Rakúsko

Novotvar v prostredí alpskej obce.

Vytvorte si kúpeľňu snov: dizajnové riešenie od značky hansgrohe

Hansgrohe - prémiová značka kúpeľňových riešení, ponúka nadčasový dizajn, technickú precíznosť a udržateľné inovácie...

Okná Internorm za minuloročné ceny + hliníkový kryt zdarma!

Využite špeciálnu akciu Internorm: okná za minuloročné ceny a hliníkový kryt úplne zadarmo. Ponuka je časovo obmedzená!

Moderné plynové technológie: Efektivita a inovácie pre 21. storočie

Sumarizácia najdôležitejších inovácií, ktoré redefinujúcich využitie tohto energetického zdroja.

Utesňovanie spodných stavieb pomocou hydro-aktívnej fólie AMPHIBIA.

AMPHIBIA 3000 GRIP 1.3 od spoločnosti ATRO predstavuje modernú hydroizolačnú technológiu, ktorá spája vysokú odolnosť,...

Dekarbonizácia individuálneho vykurovania domácností – Green Deal evolučne a nie revolučne

Ambiciózne plány EK narazili na ekonomické možnosti domácností v jednotlivých členských štátoch –...

Minimalistické dvere IDEA – technická precíznosť a čistota prevedenia

IDEA DOOR od spoločnosti JAP prináša do interiéru čistý minimalistický vzhľad vďaka bezrámovému riešeniu a precíznej...

Dom s výhľadom na údolie, Dlouhý Most (ČR)

Kontinuita riešenia od vonkajšieho obkladu až po kovania a kľučky.

Schell Vitus – osvedčené riešenie pre sprchy a umývadlá vo verejnom sektore s viac ako desaťročnou tradíciou

Nástenné nadomietkové armatúry Vitus sú mimoriadne vhodné pre rýchlu a efektívnu...

Kompozitné okná predstavujú súčasnosť a budúcnosť

Okenné profily z kompozitného materiálu RAU-FIPRO X od spoločnosti Rehau sú v porovnaní s tradičnými plastovými profilmi mnohonásobne...

Myotis - stoly 2025

Najnovší sortiment stolov pre zariadenie interiérov...

Priemyselné sklenené priečky Dorsis Digero: svetelné rozhranie pre moderné interiéry

Spojenie moderného dizajnu, funkčnosti a svetla do harmonického architektonického prvku.

Význam prirodzeného svetla pre moderné a flexibilné pracovné prostredie

Kancelárska budova Baumit v slovinskom Trzine prešla premenou na moderné a udržateľné pracovisko. Architekti kládli dôraz...

Konferencia Xella Dialóg predstaví novinky a trendy v stavebníctve

Mottom šiesteho ročníku on-line konferencie odborníkov Xella Dialóg je Efektívny návrh budov 2025+: zmeny a riešenia

Bory home III - štúdia obytného komplexu

Dnes a zajtra predstavíme dva rezidenčné projekty ateliéru GutGut. Prvým z nich je návrh tretej etapy výstavby v rámci rozsiahleho projektu novej štvrte v západnej časti územia Bory (pri Bratislave). Štúdia je vstupom autorského kolektívu do vyzvanej developerskej súťaže.
Diela
Red 105.08.2017
49280+29
Bory home III - štúdia obytného komplexu
Ateliér: Marko & Placemakers, GutgutAutori: Ing. arch. Štefan Polakovič, Ing. arch. Lukáš Kordík, Ing. arch Ivan Príkopský, Ing. arch Tomáš Szőke, Igor Marko, Ing. Michal MarcinovNávrh: 2017 - 2017Adresa: Bory , Bratislava, SlovenskoPublikované: 5. august 2017

Priestorový koncept sa skladá z dvoch rozlične koncipovaných častí vnútornej a vonkajšej krajiny nad ktorou plávajú obytné bloky voľnej kompozície. Uvoľnením kompozície sme vytvorili množstvo scénických pohľadových kombinácii rôznej mierky. Obidve krajiny sú oddelené a zároveň prepojené priestorovou optickou membránou. Aktívny kontakt s objektami je koncentrovaný do vnútornej krajiny, kde parkovacie plochy sú v bezkonfliktnej zóne vnútorného obvodu. Vnútorný komunitný priestor je kontinuálny, hravý a mierne zvlneným charakterom tvarovo výrazný. Aktivity je možné obsahovo prispôsobovať a programovať, čím sa otvára možnosť celoročného zdieľaného využitia. Vonkajší krajinný priestor je charakterovo rozdielny a má verejnú funkciu kontinuálneho parku, ktorý po obvode prepája ale aj opticky izoluje nesúrodý kontext.

Ideová skica - koncept
Ideová skica - koncept
Skica: formálne definovanie zástavby a tvarovanie na základe vonkajších vplyvov
Skica: formálne definovanie zástavby a tvarovanie na základe vonkajších vplyvov

Urbanizmus

Súbor obytných blokov s bytovými domami využíva danosti mierne svahovitého pozemku. Urbanistická štruktúra je ľahko čitateľná. Rôznym výškovým osadením objektov a použitím dvoch typov bytových domov (štvorcový pôdorys a pravidelný obdĺžnikový pôdorys) s 5 až 6 nadzemnými podlažiami, ktoré sú osadené nad parkovaním, boli dosiahnuté zaujímavé priehľady z jednotlivých objektov, aj v rámci celého územia. Veľký dôraz je kladený na riešenie nespevnených plôch. Ku každému objektu je navrhnutý prislúchajúci počet parkovacích miest, časť parkovacích miest je navrhnutá pod jednotlivými obytnými blokmi, ostatné sú umiestnené na teréne. Spevnené parkovacie plochy sú čiastočne prestrešené konštrukciou s porastom.

Schéma: organizácia a tvarovanie obytných súborov
Schéma: organizácia a tvarovanie obytných súborov
Schéma parkovania
Schéma parkovania
Skice: prvotná koncepcia štruktúry vo vzťahu k systému parkovania
Skice: prvotná koncepcia štruktúry vo vzťahu k systému parkovania

Koncept krajiny - verejné priestory

Navrhované obytné domy v rámci zóny Bory home sa nachádzajú v exponovanej polohe voči objektom občianskej vybavenosti v zóne Bory Retail zone. Sú konfrontované  s odlišnou mierkou a vizuálnou kvalitou. Narábanie s krajinou a jej elementami sa tak pre nás stáva kľúčovým. Zámerom návrhu je podporiť v území rastlú schopnosť krajiny, ktorú chceme do územia, presnejšie do jeho voľných a prázdnych miest pustiť. Riešenie je postavené na založení inkluzívnych dvorov a dažďových záhrad po ich obvode.

Schéma tvorby krajiny
Schéma tvorby krajiny
Skice: integrácia zelene a bývania
Skice: integrácia zelene a bývania

Architektúra

Kvalitná a plnohodnotná obsahová ponuka mestského bývania sú hlavnými kritériami architektonicko-urbanistického riešenia novej mikroštvrte v lokalite Bory. Vytváranie nového mesta a miesta je v tejto dynamicky sa rozvíjajúcej lokalite na okraji mesta vždy komplikovanou úlohou, ktorá nie je len priestorovým cvičením. Návrh sa zameral na vytvorenie miesta, ktoré má predpoklady ďalej sa autonómne rozvíjať a adaptovať podľa potrieb budúcich užívateľov. Navrhované riešenie má tiež vytvárať predpoklady otvoreného a pozitívneho spojenia užívateľa s novým mestským prostredím. Návrh rieši niekoľko výziev súčasne. V prvom rade prepája rozdielne prostredia a zároveň vytvára unikátny samostatne fungujúci rezidenčný súbor.

V rámci riešených pozemkov sú navrhnuté 2 obytné súbory. Obytný blok 1. pozostáva z 8 bytových domov, ktoré sú osadené nad parkingom, nad ním sú osadené bytové domy obdĺžnikového pôdorysu. Obytný blok 2 pozostáva z 5 bytových domov, ktoré sú osadené nad parkovaním, nad ním sú osadené päť až šesť-podlažné bytové domy štvorcového pôdorysu.

Geometria budov vytvára podmienky na správne preslnenie a presvetlenie bytov. Pri tvorbe konceptu sme sa snažili v maximálnej miere využívať optimálnu orientáciu na svetové strany pre bývanie. Preto je väčšina obytných objektov orientovaná na východ/západ. To nám umožňuje vytvoriť jednostranne orientované byty. Jednotlivé bytové domy sú umiestnené na podnožiach, ktoré prekrývajú jedno podlažie nadzemných parkovísk. Bezbariérový prístup, funkčné a optické prepojenie je zabezpečené pros-tredníctvom svahovania, terénnych rámp a vonkajších schodísk.

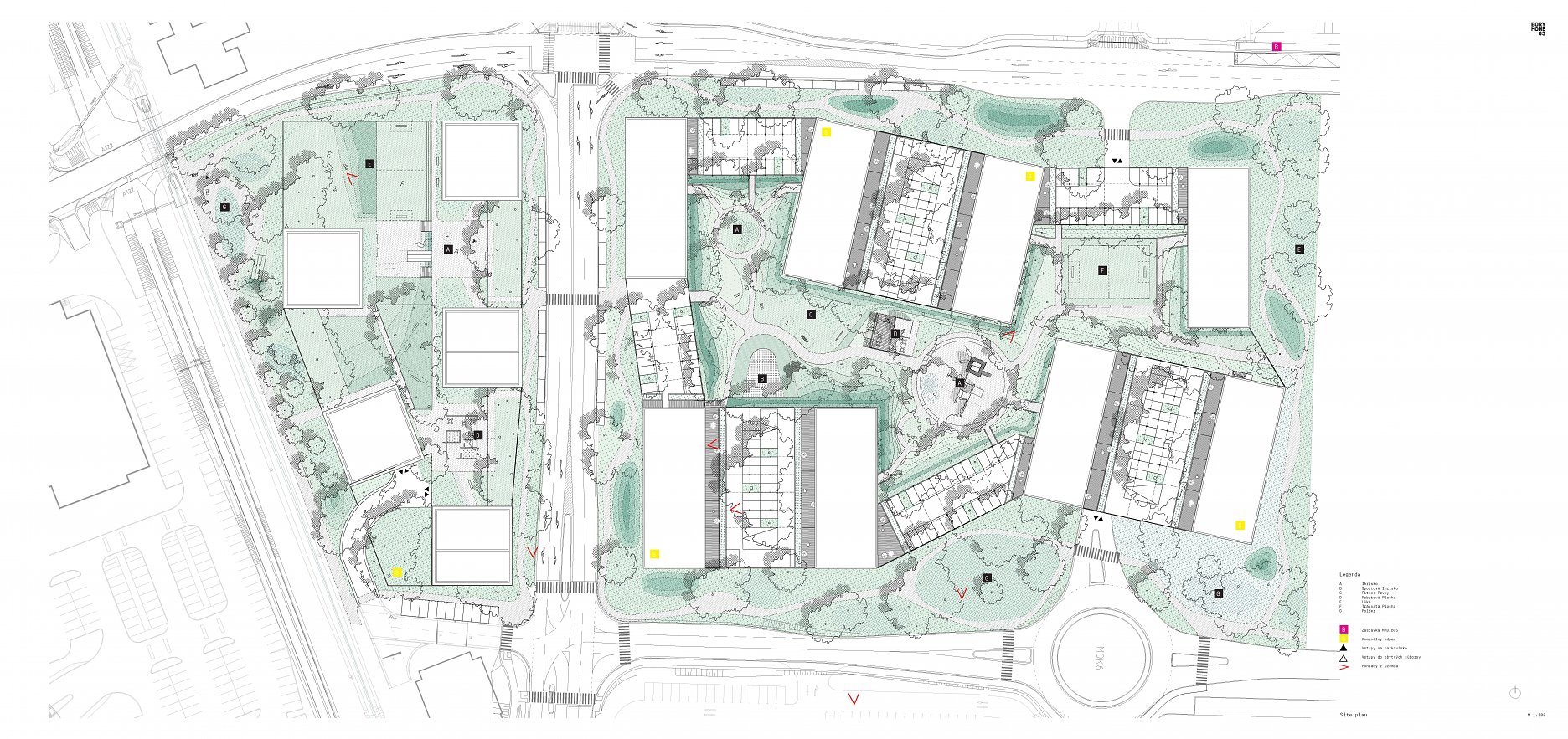
Situácia
Situácia
Pôdorysy vstupných podlaží
Pôdorysy vstupných podlaží
Pôdorysy typických podlaží
Pôdorysy typických podlaží
Parkovanie
Parkovanie
Garáž
Garáž
Dopravná situácia - užšie vzťahy
Dopravná situácia - užšie vzťahy
Rezopohľady
Rezopohľady
Rezopohľady
Rezopohľady
Vizualizácia: vonkajší krajinný priestor je charakterovo rozdielny a má verejnú funkciu kontinuálneho parku, ktorý po obvode prepája a aj opticky izoluje nesúrodý kontext
Vizualizácia: vonkajší krajinný priestor je charakterovo rozdielny a má verejnú funkciu kontinuálneho parku, ktorý po obvode prepája a aj opticky izoluje nesúrodý kontext
Vizualizácia: parkovacie plochy sú v bezkonfliktnej zóne vnútorného obvodu prkryté ľahkou konštrukciou s porastom
Vizualizácia: parkovacie plochy sú v bezkonfliktnej zóne vnútorného obvodu prkryté ľahkou konštrukciou s porastom
Vizualizácia: krajina terás na úrovni prízemia objektov zabraňuje optickým kontaktom s parkovacími plochami
Vizualizácia: krajina terás na úrovni prízemia objektov zabraňuje optickým kontaktom s parkovacími plochami
Vizualizácia: vnútorný komunitný priestor je kontinuálny, hravý a mierne zvlneným charakterom tvarovo výrazný
Vizualizácia: vnútorný komunitný priestor je kontinuálny, hravý a mierne zvlneným charakterom tvarovo výrazný
Vizualizácia: strešná krajina vnútorného komunitného priestoru bloku 2
Vizualizácia: strešná krajina vnútorného komunitného priestoru bloku 2
Vizualizácia: vonkajšia krajina nad ktorou plávajú obytné bloky voľnej kompozície
Vizualizácia: vonkajšia krajina nad ktorou plávajú obytné bloky voľnej kompozície
Vizualizácia: dva obytné bloky formujú nový priestor ulice, pohľadová priepustnosť parteru blokov umožňuje vizuálny kontakt s ich vnútornúm prostredím
Vizualizácia: dva obytné bloky formujú nový priestor ulice, pohľadová priepustnosť parteru blokov umožňuje vizuálny kontakt s ich vnútornúm prostredím

Skladba bytov

V území sú zastúpené dva typy domov - štvorcový pôdorys a pravidelný obdĺžnikový pôdorys. Na jedno jadro tak pripadá 6 a 10 bytových jednotiek. Na východnú a západnú fasádu sú situované jedno a dvojizbové jednostranne orientované byty, v koncových polohách sekcií sú situované trojizbové a štvorizbové rohové byty.

Všetky byty vychádzajú z konštrukčného systému preberajúceho modul podzemných garáží. Sú modulovateľné a dajú sa spájať, prípadne rozdeľovať do menších sekcií. 

Dispozície
Dispozície

Podklady: GutGut

Poloha diela

Ing. arch. Štefan Polakovič
Ing. arch. Lukáš Kordík
Ing. arch Ivan Príkopský
Ing. arch Tomáš Szőke
Igor Marko
Ing. Michal Marcinov

Súvisiace články

Vložené
3. august 2017
0
4928
Hlavný obsahHlavný obsah
Čakajte prosím