Novotvar v prostredí alpskej obce.
Hansgrohe - prémiová značka kúpeľňových riešení, ponúka nadčasový dizajn, technickú precíznosť a udržateľné inovácie...
Využite špeciálnu akciu Internorm: okná za minuloročné ceny a hliníkový kryt úplne zadarmo. Ponuka je časovo obmedzená!
Na podujatí sa predstaví až 37 vystavovateľov - popredných dodávateľov stavebných materiálov a inovácií s prezentáciou...
Sumarizácia najdôležitejších inovácií, ktoré redefinujúcich využitie tohto energetického zdroja.
AMPHIBIA 3000 GRIP 1.3 od spoločnosti ATRO predstavuje modernú hydroizolačnú technológiu, ktorá spája vysokú odolnosť,...
Ambiciózne plány EK narazili na ekonomické možnosti domácností v jednotlivých členských štátoch –...
IDEA DOOR od spoločnosti JAP prináša do interiéru čistý minimalistický vzhľad vďaka bezrámovému riešeniu a precíznej...
Kontinuita riešenia od vonkajšieho obkladu až po kovania a kľučky.
Nástenné nadomietkové armatúry Vitus sú mimoriadne vhodné pre rýchlu a efektívnu...
Okenné profily z kompozitného materiálu RAU-FIPRO X od spoločnosti Rehau sú v porovnaní s tradičnými plastovými profilmi mnohonásobne...
Najnovší sortiment stolov pre zariadenie interiérov...
Spojenie moderného dizajnu, funkčnosti a svetla do harmonického architektonického prvku.
Kancelárska budova Baumit v slovinskom Trzine prešla premenou na moderné a udržateľné pracovisko. Architekti kládli dôraz...
Mottom šiesteho ročníku on-line konferencie odborníkov Xella Dialóg je Efektívny návrh budov 2025+: zmeny a riešenia

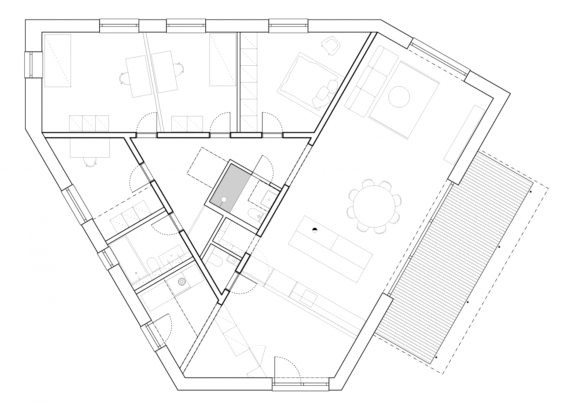
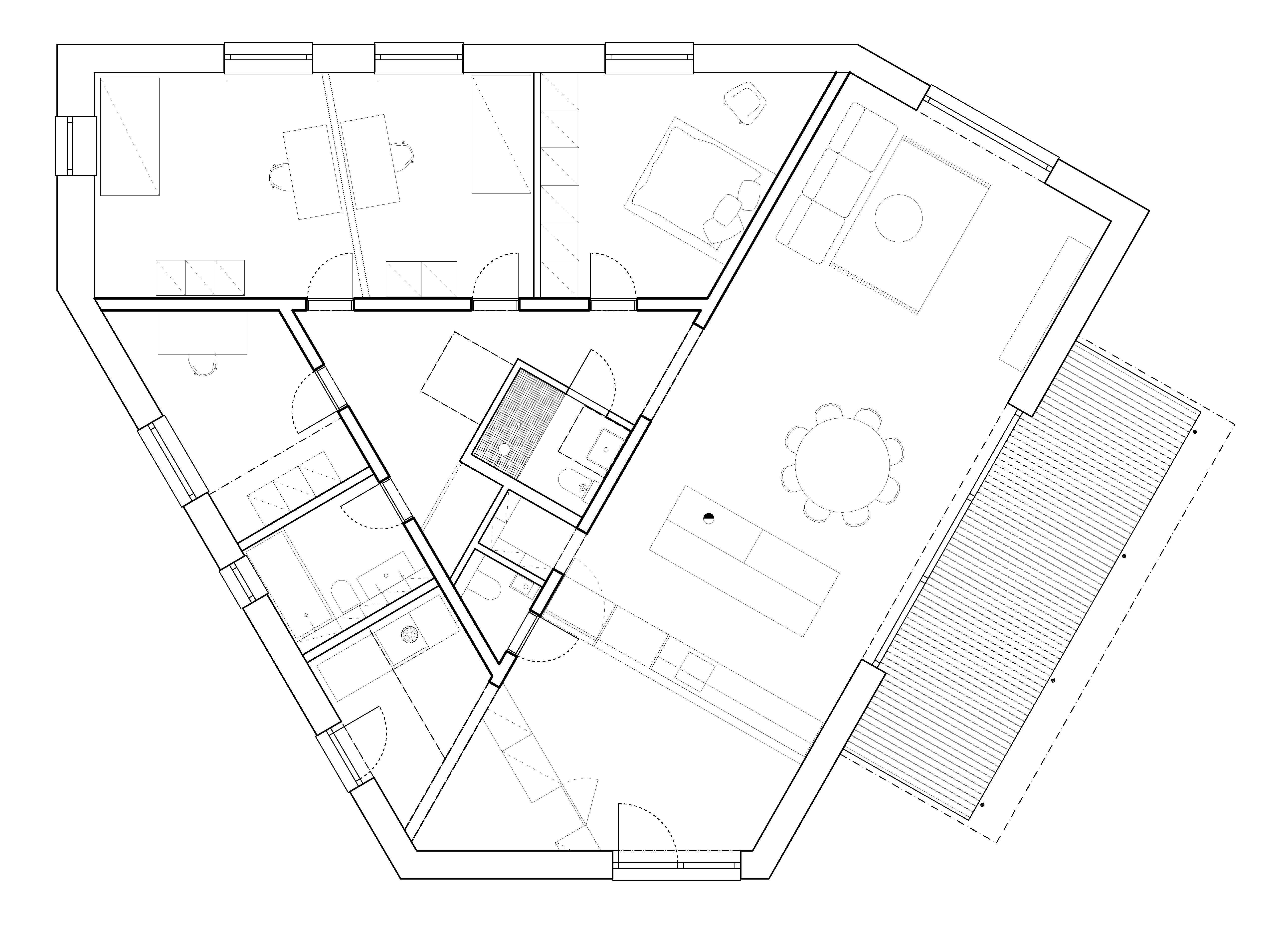
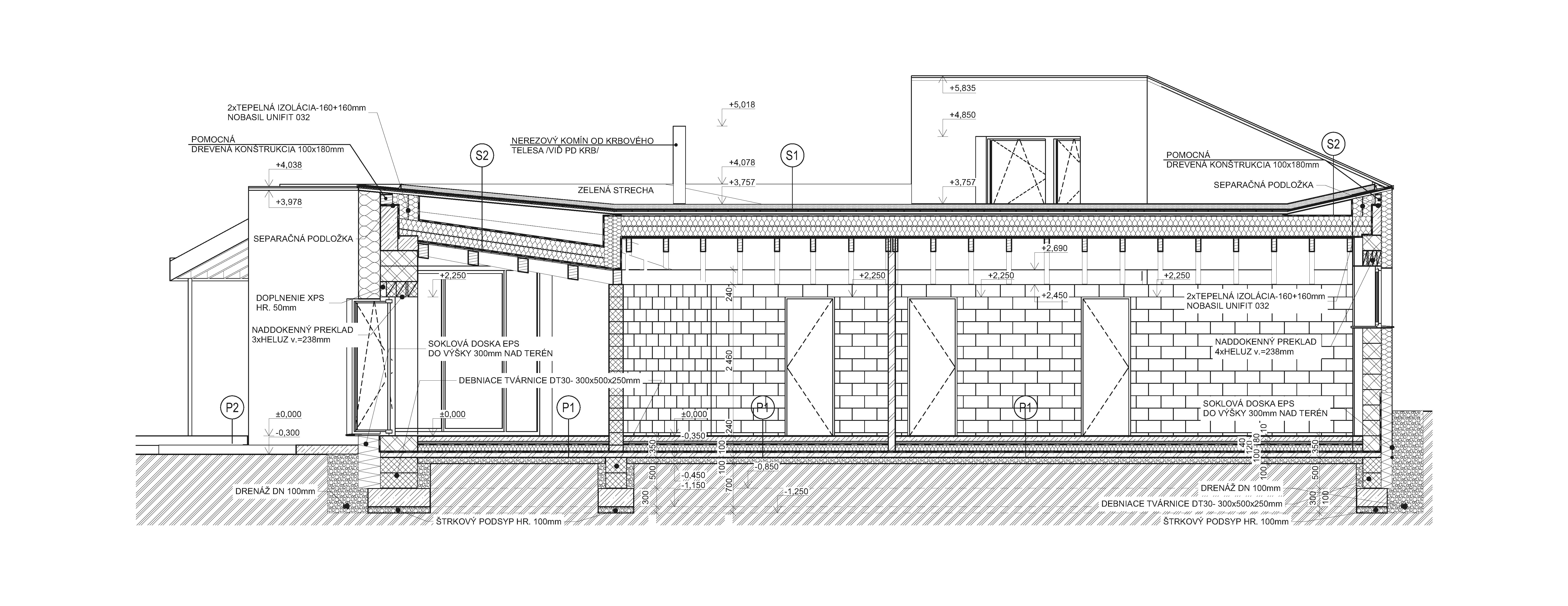
Architektonický koncept je odpoveďou na komplikované východiskové podmienky. Dom na svahovitej trojuholníkovej parcele, v “objatí” susediacej zástavby. Z vonkajšej strany jednoduchý prízemný objekt. V interiéri značne pestrejší priestorový zážitok.
Dôležitou súčasťou návrhového konceptu je usporiadanie a členenie záhrady. Hmota domu delí pozemok na tri funkčné zóny. Vrchný cíp s parkovaním a miestom pre záhradný domček, južný výbežok s terasou a výhľadom do prislúchajúceho ovocného sadu a napokon východný roh s posedením pod vysokou borovicou. Architekti sa vyhli "splanírovaniu" parcely. Terén nechávajú plynúť v prirodzenom spáde.
Dispozícia odráža potreby päťčlennej rodiny. Dom má pôdorysný tvar nepravidelného šesťuholníka, obytné miestnosti sú radené po obvode pôdorysu. Trojicu rozdielne hlbokých traktov prepája centrálna trojuholníková hala so svetlíkom. Na vstup nadväzuje (do krajiny otvorený) blok jedálne a obývačky. Dopĺňa ho východne orientovaný spálňový trakt a technicko-hygienické zázemie s pracovňou, prebiehajúce pozdĺž severozápadnej fasády.
Priznaná materialita vnútorných konštrukcií je nosnou vrstvou interiéru domu. Presné betónové tvárnice, drevený trámový strop a drevené rámy okien dopňajú hladké omietané biele steny obvodových múrov.
Podklady: GutGut
Fotografie: Nora a Jakub Čaprnkovci