Advertorial

Pozvánka na 2. ročník stavebného veľtrhu BigMarket na Slovensku

Na podujatí sa predstaví až 37 vystavovateľov - popredných dodávateľov stavebných materiálov a inovácií s prezentáciou...

Hotel Hirschen Spa House, Rakúsko

Novotvar v prostredí alpskej obce.

Vytvorte si kúpeľňu snov: dizajnové riešenie od značky hansgrohe

Hansgrohe - prémiová značka kúpeľňových riešení, ponúka nadčasový dizajn, technickú precíznosť a udržateľné inovácie...

Okná Internorm za minuloročné ceny + hliníkový kryt zdarma!

Využite špeciálnu akciu Internorm: okná za minuloročné ceny a hliníkový kryt úplne zadarmo. Ponuka je časovo obmedzená!

Moderné plynové technológie: Efektivita a inovácie pre 21. storočie

Sumarizácia najdôležitejších inovácií, ktoré redefinujúcich využitie tohto energetického zdroja.

Utesňovanie spodných stavieb pomocou hydro-aktívnej fólie AMPHIBIA.

AMPHIBIA 3000 GRIP 1.3 od spoločnosti ATRO predstavuje modernú hydroizolačnú technológiu, ktorá spája vysokú odolnosť,...

Dekarbonizácia individuálneho vykurovania domácností – Green Deal evolučne a nie revolučne

Ambiciózne plány EK narazili na ekonomické možnosti domácností v jednotlivých členských štátoch –...

Minimalistické dvere IDEA – technická precíznosť a čistota prevedenia

IDEA DOOR od spoločnosti JAP prináša do interiéru čistý minimalistický vzhľad vďaka bezrámovému riešeniu a precíznej...

Dom s výhľadom na údolie, Dlouhý Most (ČR)

Kontinuita riešenia od vonkajšieho obkladu až po kovania a kľučky.

Schell Vitus – osvedčené riešenie pre sprchy a umývadlá vo verejnom sektore s viac ako desaťročnou tradíciou

Nástenné nadomietkové armatúry Vitus sú mimoriadne vhodné pre rýchlu a efektívnu...

Kompozitné okná predstavujú súčasnosť a budúcnosť

Okenné profily z kompozitného materiálu RAU-FIPRO X od spoločnosti Rehau sú v porovnaní s tradičnými plastovými profilmi mnohonásobne...

Myotis - stoly 2025

Najnovší sortiment stolov pre zariadenie interiérov...

Priemyselné sklenené priečky Dorsis Digero: svetelné rozhranie pre moderné interiéry

Spojenie moderného dizajnu, funkčnosti a svetla do harmonického architektonického prvku.

Význam prirodzeného svetla pre moderné a flexibilné pracovné prostredie

Kancelárska budova Baumit v slovinskom Trzine prešla premenou na moderné a udržateľné pracovisko. Architekti kládli dôraz...

Konferencia Xella Dialóg predstaví novinky a trendy v stavebníctve

Mottom šiesteho ročníku on-line konferencie odborníkov Xella Dialóg je Efektívny návrh budov 2025+: zmeny a riešenia

Mladá rodinná usadlosť, Budmerice

Dom ktorý rastie s rodinou.
Diela
Red 410.12.2018
95290+39
Mladá rodinná usadlosť, Budmerice
Autori: Ing. arch. Katarína Príkopská, Ing. arch. Ivan Príkopský, Ing. arch. Tomáš SzőkePodlažná plocha: 148 m2Návrh: 2013 - 2014Realizácia: 2014 - 2018Adresa: Budmerice, SlovenskoPublikované: 10. december 2018

Bývanie mimo štandardného dispozičného rámca, priestorového usporiadania, rozpočtu, zaužívaných vzťahov a predstáv... Premyslený koncept, ktorý je schopný ďalšieho rozvoja, rastu a prispôsobenia. Vopred definovaná osnova jasne a koncepčne určuje využitie pozemku.

Pri zvažovaní možností bývania v našich končinách sa investori často snažia naplniť svoje nemalé ambície. Energeticky náročné predimenzované domy so zlou dispozíciou sú stále realitou novej zástavby. Naviac sú ťažko (ak vôbec) adaptovateľné a pripravené na budúce zmeny. O to sympatickejší je počin ateliéru TOITO. Rodinný dom vďaka zaujímavej hre s otvoreným priestorom, ktorý sa odvíja od vstavaného centrálneho kubusu, poskytuje na 95 metroch štvorcovýh dostatok miesta pre život mladej rodiny. Dobrý štartovací bod. K bývaniu pribudla práca, parkovanie, domček pre rastúce deti... Všetko bolo vopred projektovo pripravené. Sympatická je prezentácia usadlosti už po poriadnom "zabývaní". Architekti vytvorili rámec, zvyšok ostal v kompetencii rodiny. Aj o tom je architektúra.

"Klient bol už v zadaní naklonený otvorenému priestorovo-zložitejšiemu riešeniu. Výsledkom je návrh súboru menších objektov - usadlosť," približujú koncept architekti a pokračujú: "Do domu je vložené teleso z murovaných tehál a masívneho dreva. V ňom sa nachádza komora, wc, kúpeľne, spálňa, čitáreň, schodisko. Okolo vstavby sa v otvorenom kruhu odvíja vstup, kuchyňa, denná časť, nočná časť rodičov, šatník a opäť vstup. Na poschodí je priestor pre deti. Zhora sledujú kuchyňu a tak trochu rodičov. Vložený živelný objekt do nudného obalu dáva do pohybu udalosti dňa."

Foto: Katarína Príkopská
Foto: Katarína Príkopská

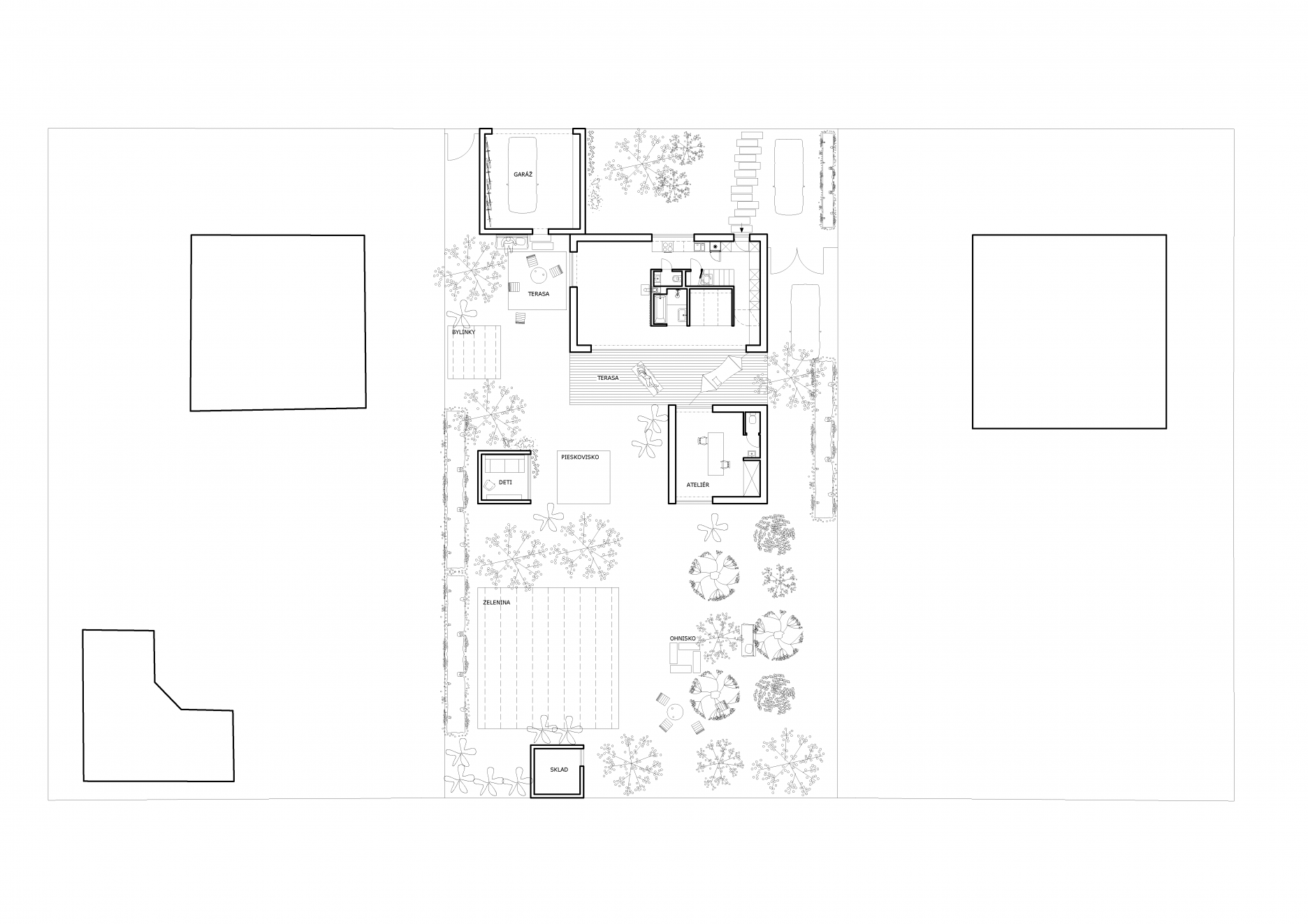
Rodinný dom s ateliérom a garážou v obci Budmerice je navrhnutý v novo vznikajúcej štvrti rodinných domov v blízkosti kaštieľa, na severozápadnom okraji obce. 

širšie vzťahy
širšie vzťahyAutor: TOITO architekti

Jednoduchý obdĺžnikový tvar s pultovou strechou je osadený tak, aby dom poskytoval dostatok súkromia na záhrade. Štít strechy je otočený smerom k ulici, aby dom pôsobil menší. Rozdelenie do troch menších stavebných objektov s pultovou strechou zmenšuje celkový pocit mierky a tak sa blíži k vidieckej štruktúre zástavby. Dom pôsobí ako malá vidiecka usadlosť.

Situácia
SituáciaAutor: TOITO architekti
Foto: Katarína Príkopská
Foto: Katarína Príkopská
Foto: Katarína Príkopská
Foto: Katarína Príkopská

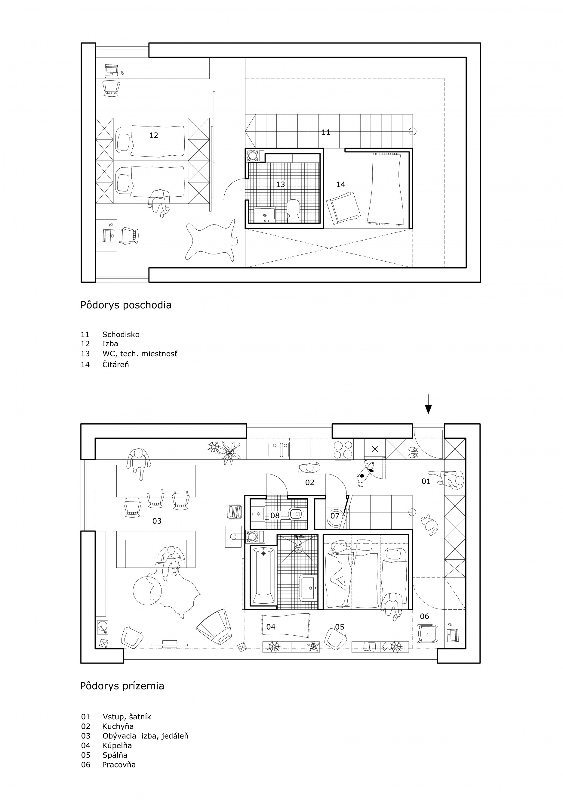
Malý dom má namiesto izieb s jasne definovanými funkciami rôznorodé priestory s prelínajúcimi sa náplňami. Izby majú nezvyčajné proporcie, avšak pri zachovaní bežných objemov. Dom s priečnym prevetraním a otvorenou dispozíciou, je navrhnutý ako jednopodlažný s obytným podkrovím. Prízemie tvorí aktívnu časť domu, poschodie slúži pre deti. Do interiéru sa vstupuje cez otvorené zádverie.

Pôdorysy
PôdorysyAutor: TOITO architekti

Dispozícia domu sa "točí" okolo centrálneho kubusu, kde je umiestnené wc, kúpeľňa, nika na spanie a schodisko. 

Priestorová schéma
Priestorová schémaAutor: TOITO architekti
Foto: Katarína Príkopská
Foto: Katarína Príkopská
Foto: Katarína Príkopská
Foto: Katarína Príkopská
Foto: Katarína Príkopská
Foto: Katarína Príkopská
Foto: Katarína Príkopská
Foto: Katarína Príkopská
Foto: Katarína Príkopská
Foto: Katarína Príkopská
Foto: Katarína Príkopská
Foto: Katarína Príkopská
Foto: Katarína Príkopská
Foto: Katarína Príkopská
Foto: Katarína Príkopská
Foto: Katarína Príkopská
Foto: Katarína Príkopská
Foto: Katarína Príkopská
Autor: TOITO architekti

Malý rodinný dom s ateliérom: 6x okno, 2x dvere, Xx dom
Úžitková plocha - Rodinný dom: 95 m2, Garáž: 29 m2, Ateliér: 24 m2

Podklady: TOITO architekti

Poloha diela

Ing. arch. Katarína Príkopská
Ing. arch. Ivan Príkopský
Ing. arch. Tomáš Szőke

Súvisiace články

Vložené
6. december 2018
0
9529
Hlavný obsahHlavný obsah
Čakajte prosím