Advertorial

Pozvánka na 2. ročník stavebného veľtrhu BigMarket na Slovensku

Na podujatí sa predstaví až 37 vystavovateľov - popredných dodávateľov stavebných materiálov a inovácií s prezentáciou...

Hotel Hirschen Spa House, Rakúsko

Novotvar v prostredí alpskej obce.

Vytvorte si kúpeľňu snov: dizajnové riešenie od značky hansgrohe

Hansgrohe - prémiová značka kúpeľňových riešení, ponúka nadčasový dizajn, technickú precíznosť a udržateľné inovácie...

Okná Internorm za minuloročné ceny + hliníkový kryt zdarma!

Využite špeciálnu akciu Internorm: okná za minuloročné ceny a hliníkový kryt úplne zadarmo. Ponuka je časovo obmedzená!

Moderné plynové technológie: Efektivita a inovácie pre 21. storočie

Sumarizácia najdôležitejších inovácií, ktoré redefinujúcich využitie tohto energetického zdroja.

Utesňovanie spodných stavieb pomocou hydro-aktívnej fólie AMPHIBIA.

AMPHIBIA 3000 GRIP 1.3 od spoločnosti ATRO predstavuje modernú hydroizolačnú technológiu, ktorá spája vysokú odolnosť,...

Dekarbonizácia individuálneho vykurovania domácností – Green Deal evolučne a nie revolučne

Ambiciózne plány EK narazili na ekonomické možnosti domácností v jednotlivých členských štátoch –...

Minimalistické dvere IDEA – technická precíznosť a čistota prevedenia

IDEA DOOR od spoločnosti JAP prináša do interiéru čistý minimalistický vzhľad vďaka bezrámovému riešeniu a precíznej...

Dom s výhľadom na údolie, Dlouhý Most (ČR)

Kontinuita riešenia od vonkajšieho obkladu až po kovania a kľučky.

Schell Vitus – osvedčené riešenie pre sprchy a umývadlá vo verejnom sektore s viac ako desaťročnou tradíciou

Nástenné nadomietkové armatúry Vitus sú mimoriadne vhodné pre rýchlu a efektívnu...

Kompozitné okná predstavujú súčasnosť a budúcnosť

Okenné profily z kompozitného materiálu RAU-FIPRO X od spoločnosti Rehau sú v porovnaní s tradičnými plastovými profilmi mnohonásobne...

Myotis - stoly 2025

Najnovší sortiment stolov pre zariadenie interiérov...

Priemyselné sklenené priečky Dorsis Digero: svetelné rozhranie pre moderné interiéry

Spojenie moderného dizajnu, funkčnosti a svetla do harmonického architektonického prvku.

Význam prirodzeného svetla pre moderné a flexibilné pracovné prostredie

Kancelárska budova Baumit v slovinskom Trzine prešla premenou na moderné a udržateľné pracovisko. Architekti kládli dôraz...

Konferencia Xella Dialóg predstaví novinky a trendy v stavebníctve

Mottom šiesteho ročníku on-line konferencie odborníkov Xella Dialóg je Efektívny návrh budov 2025+: zmeny a riešenia

Dom H212, Bratislava

Pohľad architektov na rekonštrukciu bývania v okrajovej časti Bratislavy. Zaujme celkový koncept i drobnokresba.
Diela
Red 321.01.2022
72510+76
Dom H212, Bratislava
Autori: Ing. arch. Ivan Príkopský, Ing. arch. Katarína Príkopská, Ing. arch. Tomáš SzőkeSpolupráca: Miroslava Mišurová, Romana Klimeková (interiér), Ing. Eugen Guldan, PhD. (ZÁHRADA)Návrh: 2018 - 2018Realizácia: 2018 - 2021Adresa: Bratislava, SlovenskoPublikované: 21. január 2022

Realizácia je podnetným príkladom v aktuálnom kontexte Plánu obnovy.

Dá sa klasická "obytná kocka" pretransformovať na súčasné bývanie? Dá sa zrekonštruovať tak, aby sa zmenila na komfortný a úsporný moderný dom, spĺňajúci aktuálne požiadavky kladené na bývanie? Pred časom sme publikovali puristickú rekonštrukciu rodinného domu v Šali. Dnes predstavíme bratislavskú realizáciu ateliéru TOITO architekti, ktorá vznikla v spolupráci s Romanou Klimekovou (interiér)  a Eugenom Guldanom (záhradná architektúra). 

Východiskom bol do dom s pôdorysom ~10x10 metrov a množstvom neskorších zásahov. Architekti zjednotili obvodový plášť materiálovo strohým rámcom, doplneným o reliéfne prvky lemovania okien. Dôležitou súčasťou bývania sa stala záhrada a prepojenie obytnej plochy s exteriérom. 

Foto: Matej Hakár
Foto: Matej Hakár
Foto: Matej Hakár
Foto: Matej Hakár
Foto: Matej Hakár
Foto: Matej Hakár
Foto: Matej Hakár
Foto: Matej Hakár

"Rekonštrukcia rodinného domu prebehla zbavením nánosov a otvorením plánu. Každé podlažie je navrhnuté ako jedna izba delená čiastočne nosnou stenou. Prízemie je denná časť s terasou, poschodie je pre rodičov a podkrovie pre najmenších," vysvetľujú koncept v skratke architekti. 

Architekti výrazne zoptimalizovali dispozíciu. Pôvodné priečky nahradili vstavané nábytkové prvky a transparentné deliace konštrukcie. 

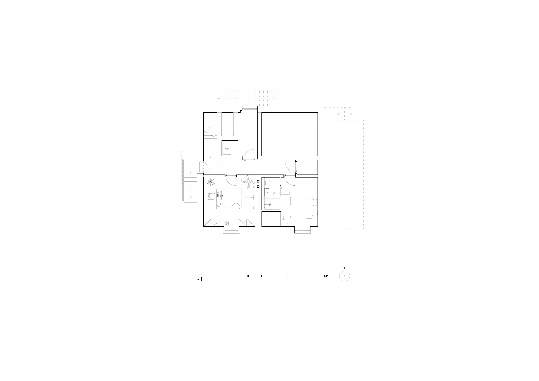
Pôdorys suterénu
Pôdorys suterénuAutor: TOITO architekti
Pôdorys prízemia
Pôdorys prízemiaAutor: TOITO architekti
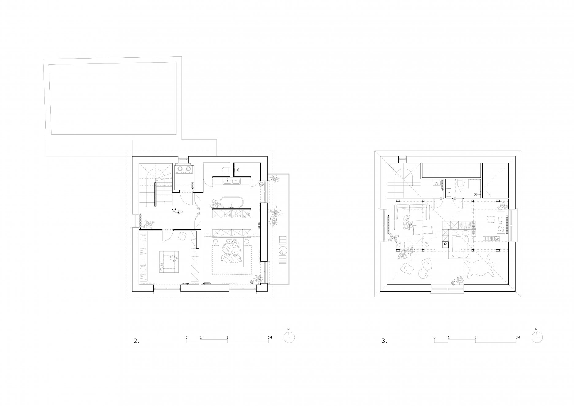
Pôdorys poschodí
Pôdorys poschodíAutor: TOITO architekti

Hlavnú úlohu v interiéri zohrávajú poctivé materiály a zariadenie riešené na mieru, ktoré nahradili pôvodný dekor a zdobné prvky. 

Foto: Matej Hakár
Foto: Matej Hakár
Foto: Matej Hakár
Foto: Matej Hakár
Foto: Matej Hakár
Foto: Matej Hakár
Foto: Matej Hakár
Foto: Matej Hakár
Foto: Matej Hakár
Foto: Matej Hakár

Skice:

Skica
SkicaAutor: TOITO architekti
Skica
SkicaAutor: TOITO architekti

Pôvodný stav:

Poloha diela

Ing. arch. Ivan Príkopský
Ing. arch. Katarína Príkopská
Ing. arch. Tomáš Szőke

Súvisiace články

Matej HakárSKBratislava
Vložené
17. január 2022
0
7251
Hlavný obsahHlavný obsah
Čakajte prosím