Advertorial

Hotel Hirschen Spa House, Rakúsko

Novotvar v prostredí alpskej obce.

Vytvorte si kúpeľňu snov: dizajnové riešenie od značky hansgrohe

Hansgrohe - prémiová značka kúpeľňových riešení, ponúka nadčasový dizajn, technickú precíznosť a udržateľné inovácie...

Okná Internorm za minuloročné ceny + hliníkový kryt zdarma!

Využite špeciálnu akciu Internorm: okná za minuloročné ceny a hliníkový kryt úplne zadarmo. Ponuka je časovo obmedzená!

Pozvánka na 2. ročník stavebného veľtrhu BigMarket na Slovensku

Na podujatí sa predstaví až 37 vystavovateľov - popredných dodávateľov stavebných materiálov a inovácií s prezentáciou...

Moderné plynové technológie: Efektivita a inovácie pre 21. storočie

Sumarizácia najdôležitejších inovácií, ktoré redefinujúcich využitie tohto energetického zdroja.

Utesňovanie spodných stavieb pomocou hydro-aktívnej fólie AMPHIBIA.

AMPHIBIA 3000 GRIP 1.3 od spoločnosti ATRO predstavuje modernú hydroizolačnú technológiu, ktorá spája vysokú odolnosť,...

Dekarbonizácia individuálneho vykurovania domácností – Green Deal evolučne a nie revolučne

Ambiciózne plány EK narazili na ekonomické možnosti domácností v jednotlivých členských štátoch –...

Minimalistické dvere IDEA – technická precíznosť a čistota prevedenia

IDEA DOOR od spoločnosti JAP prináša do interiéru čistý minimalistický vzhľad vďaka bezrámovému riešeniu a precíznej...

Dom s výhľadom na údolie, Dlouhý Most (ČR)

Kontinuita riešenia od vonkajšieho obkladu až po kovania a kľučky.

Schell Vitus – osvedčené riešenie pre sprchy a umývadlá vo verejnom sektore s viac ako desaťročnou tradíciou

Nástenné nadomietkové armatúry Vitus sú mimoriadne vhodné pre rýchlu a efektívnu...

Kompozitné okná predstavujú súčasnosť a budúcnosť

Okenné profily z kompozitného materiálu RAU-FIPRO X od spoločnosti Rehau sú v porovnaní s tradičnými plastovými profilmi mnohonásobne...

Myotis - stoly 2025

Najnovší sortiment stolov pre zariadenie interiérov...

Priemyselné sklenené priečky Dorsis Digero: svetelné rozhranie pre moderné interiéry

Spojenie moderného dizajnu, funkčnosti a svetla do harmonického architektonického prvku.

Význam prirodzeného svetla pre moderné a flexibilné pracovné prostredie

Kancelárska budova Baumit v slovinskom Trzine prešla premenou na moderné a udržateľné pracovisko. Architekti kládli dôraz...

Konferencia Xella Dialóg predstaví novinky a trendy v stavebníctve

Mottom šiesteho ročníku on-line konferencie odborníkov Xella Dialóg je Efektívny návrh budov 2025+: zmeny a riešenia

KZM - byt vo vile Stein, Bratislava

Interiér bytu v nájomnej vile na Kuzmányho ulici. Tvorba v prostredí diela klasikov slovenskej moderny.
Diela
Red 312.09.2018
62830+47
KZM - byt vo vile Stein, Bratislava
Ateliér: JRKVCAutori: Ing. arch. Peter Jurkovič, Ing. arch. Kristína TomanováPlocha pozemku: 110 m2Zastavaná plocha: 72m2Podlažná plocha: 47 m2Návrh: 2014 - 2015Realizácia: 2016 - 2016Adresa: Kuzmányho 5, Bratislava, SlovenskoPublikované: 12. september 2018

"V striktne neprogresívnom návrhu sme sa snažili rešpektovať ducha doby. Byt slúži mladému, bezdetnému páru a tak si mohol ponechať čo to z panských manierov," komentuje realizáciu Peter Jurkovič.

Pri pohľade na vilu by človek sotva tipoval, že bola dokončená pred 85 rokmi. Pre podnikateľa Steina ju navrhli v prvej polovici 20. storočia architekti Friedrich Weinwurm a Ignác Vécsei (okrem iného autori obytných súborov Unitas a Nová doba). Moderná trojpodlažná vila s nájomnými bytmi dokončená v roku 1933 ostro kontrastuje so susediacimi eklektickými mestskými domami. Na prízemí sa pôvodne nachádzal byt Huga Steina (vtedajšieho vlastníka bratislavského pivovaru) a spoločné priestory. Na každom z vyšších poschodí boli dva byty. 

Foto: Nora & Jakub Čaprnka
Foto: Nora & Jakub Čaprnka

Nájomné jednotky mali kuchynskú časť so zázemím a slúžkovskou izbou orientovanú do záhrady, hlavné obytné priestory smerovali do ulice. Konštrukčné riešenie umožnilo architektom eliminovať nosné prvky zasahujúce do dispozície bytu. Z tejto priestorovej variability ťažili aj autori nedávnej rekonštrukcie bytu s úžitkovou plochou 110 m2.

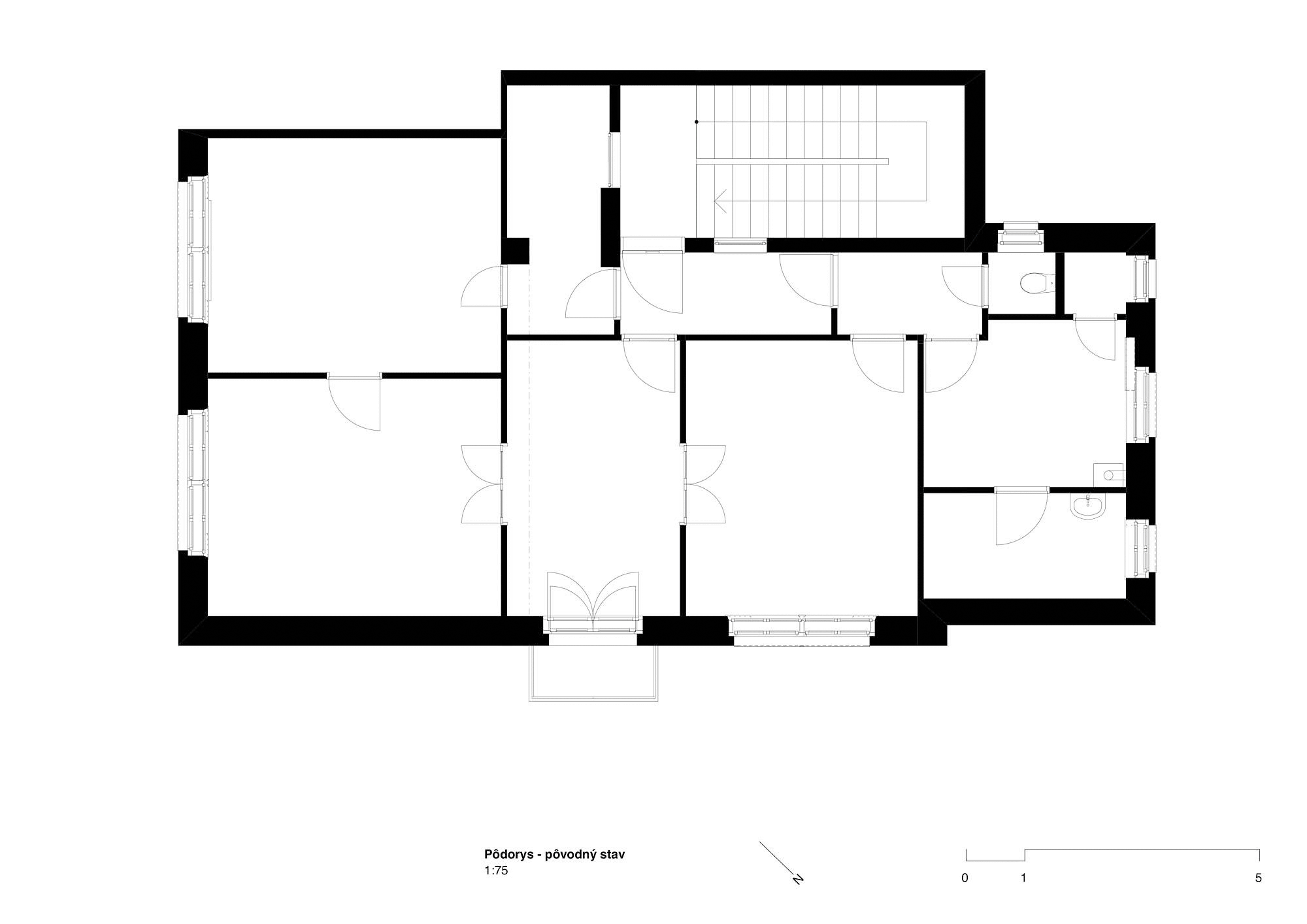
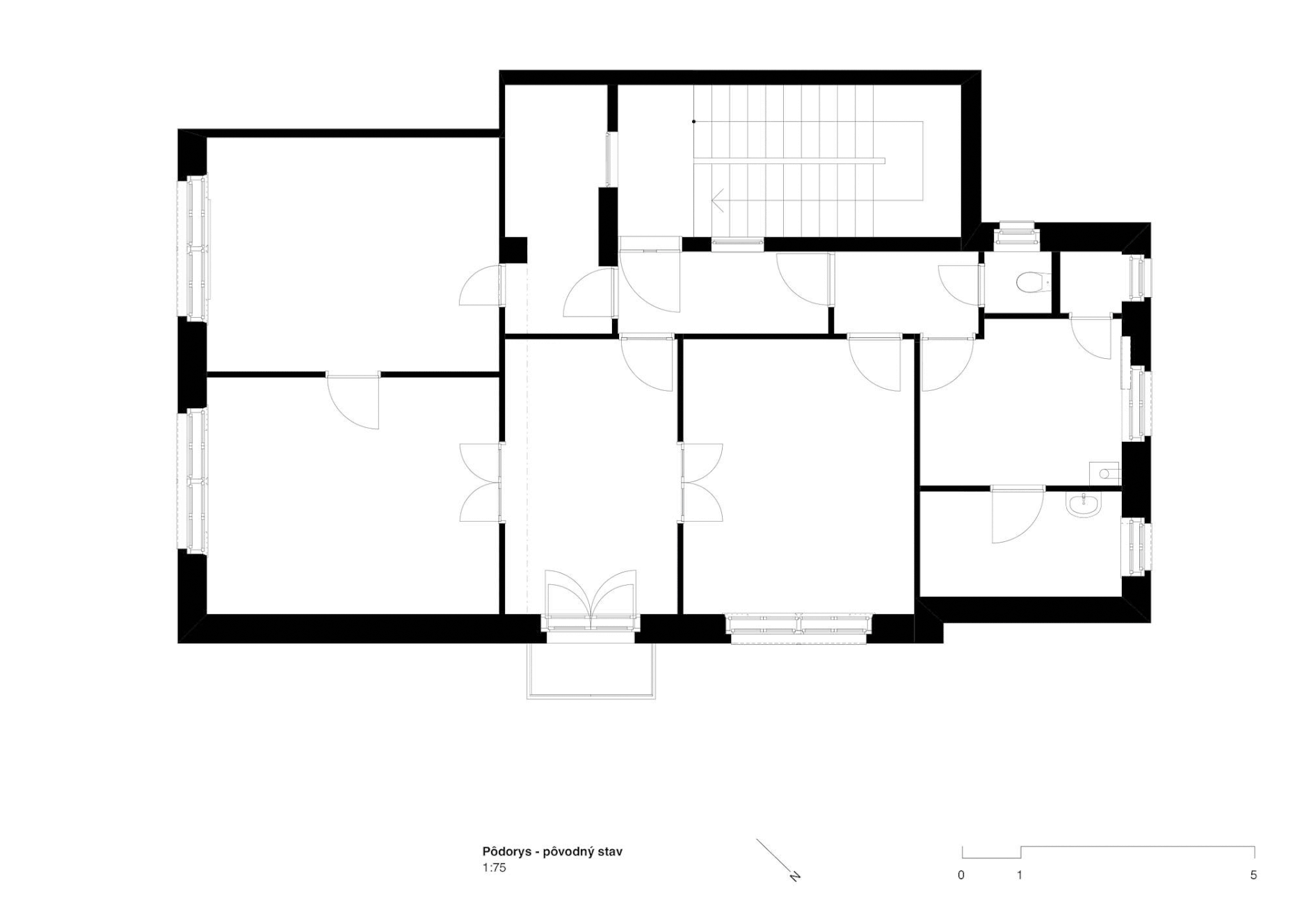
Pôdorys - pôvodný stav a búracie práce
Pôdorys - pôvodný stav a búracie práceAutor: JRKVC
Pôdorys - návrh
Pôdorys - návrhAutor: JRKVC
Rezy
RezyAutor: JRKVC
Rezy
RezyAutor: JRKVC

Dispozícii dominuje trojica za sebou radených miestností - kuchyňa, jedáleň a obývacia izba. Miestnosti sú prepojené rozmernými štvorkrídlovými dverami, čo umožňuje ich transformáciu na jeden funkčný celok. Na rovnakom princípe funguje prepojenie obývacej izby a pracovne. Architekti pri navrhovaní počítali s rozrastaním rodiny, pracovňa môže byť jednoducho transformovaná na detskú izbu. Spálňa sa napája na dennú zónu z kuchyne, alebo cez priechodný šatník a kúpeľňu priamo zo zádveria. Naprieč bytom sa tiahne šatníková stena, ktorá poskytuje dostatok úložného priestoru pre celú rodinu. 

Foto: Nora & Jakub Čaprnka
Foto: Nora & Jakub Čaprnka
Foto: Nora & Jakub Čaprnka
Foto: Nora & Jakub Čaprnka
Foto: Nora & Jakub Čaprnka
Foto: Nora & Jakub Čaprnka
Foto: Nora & Jakub Čaprnka
Foto: Nora & Jakub Čaprnka
Foto: Nora & Jakub Čaprnka
Foto: Nora & Jakub Čaprnka
Foto: Nora & Jakub Čaprnka
Foto: Nora & Jakub Čaprnka
Foto: Nora & Jakub Čaprnka

Interiér v historickom prostredí sa dá robiť rôznym spôsobom. Nejestvuje iba jeden dobrý recept. V tomto prípade autori použli mix zdravého konzervativizmu aj s miernymi “úletmi” v zmysle populárnych riešení a farebných, či materiálových akcentov. 

Celkovú atmosféru bytu dopĺňajú drevené dverové a okenné výplne so štíhlym rastrovaním, parkety so “stromčekovým” vzorom, či nábytok z exotického dreva (leštený palisander). Okrem klasických materiálov (kameň, drevo, mosadz) sa architekti nebáli v interiéri použiť frézovanú MDF dosku striekanú na modro (profilovaný sokel, či dvierka kuchynskej linky), či ružovú farbu v priechodnom šatníku. Dosiahli súčasnú, obľúbenú podobu bytu. Zachovali zároveň stavebnú podstatu diela majstrov. Mobiliár sa časom môže zmeniť. Krásny dom od Weinwurma a Vécseiho však stále bude cítiť v pozadí. 

Foto: Nora & Jakub Čaprnka
Foto: Nora & Jakub Čaprnka
Foto: Nora & Jakub Čaprnka
Foto: Nora & Jakub Čaprnka
Foto: Nora & Jakub Čaprnka
Foto: Nora & Jakub Čaprnka
Foto: Nora & Jakub Čaprnka
Foto: Nora & Jakub Čaprnka
Foto: Nora & Jakub Čaprnka
Foto: Nora & Jakub Čaprnka
Foto: Nora & Jakub Čaprnka
Foto: Nora & Jakub Čaprnka
Foto: Nora & Jakub Čaprnka
Vila na Kuzmányho ulici v Bratislave, Weinwurm – Vécsei, 1932
Vila na Kuzmányho ulici v Bratislave, Weinwurm – Vécsei, 1932Foto: Peter Jurkovič
Byt pred zahájením rekonštrukcie (2014)
Byt pred zahájením rekonštrukcie (2014)Foto: Peter Jurkovič
"Očistený" interiér
"Očistený" interiérFoto: Peter Jurkovič
Model
ModelAutor: JRKVC
Model
ModelAutor: JRKVC

Na záver ostáva dúfať, že vila na Kuzmányho ulici sa dočká dôslednej celkovej obnovy. Rekonštrukcia bytu pre mladú rodinu by mohola byť jedným z prvotných impulzov.

Viac o projekte KZM si môžete prečítať na blogu Petra Jurkoviča.

Podklady: JRKVC

Ateliér

Poloha diela

Ing. arch. Peter Jurkovič
Ing. arch. Kristína Tomanová

Súvisiace články

Vložené
10. september 2018
0
6283
Hlavný obsahHlavný obsah
Čakajte prosím