Rad interiérových dverí DIVA DOOR od spoločnosti J.A.P. ponúka čistý dizajn a variabilné riešenia pre súčasné interiéry.
REHAU Window Solutions na veľtrhu Fensterbau Frontale 2026
Sortiment Slim Line zahŕňa pestrý výber dekorov a textúr.
Európska značka okien oslavuje jubileum: za 95 rokov sa vyvinula na najväčšiu medzinárodne pôsobiacu okennú značku a inovačného...
Na podujatí sa predstaví až 37 vystavovateľov - popredných dodávateľov stavebných materiálov a inovácií s prezentáciou...
Novotvar v prostredí alpskej obce.
Hansgrohe - prémiová značka kúpeľňových riešení, ponúka nadčasový dizajn, technickú precíznosť a udržateľné inovácie...
Využite špeciálnu akciu Internorm: okná za minuloročné ceny a hliníkový kryt úplne zadarmo. Ponuka je časovo obmedzená!
Sumarizácia najdôležitejších inovácií, ktoré redefinujúcich využitie tohto energetického zdroja.
AMPHIBIA 3000 GRIP 1.3 od spoločnosti ATRO predstavuje modernú hydroizolačnú technológiu, ktorá spája vysokú odolnosť,...
Ambiciózne plány EK narazili na ekonomické možnosti domácností v jednotlivých členských štátoch –...
IDEA DOOR od spoločnosti JAP prináša do interiéru čistý minimalistický vzhľad vďaka bezrámovému riešeniu a precíznej...
Kontinuita riešenia od vonkajšieho obkladu až po kovania a kľučky.
Nástenné nadomietkové armatúry Vitus sú mimoriadne vhodné pre rýchlu a efektívnu...
Okenné profily z kompozitného materiálu RAU-FIPRO X od spoločnosti Rehau sú v porovnaní s tradičnými plastovými profilmi mnohonásobne...

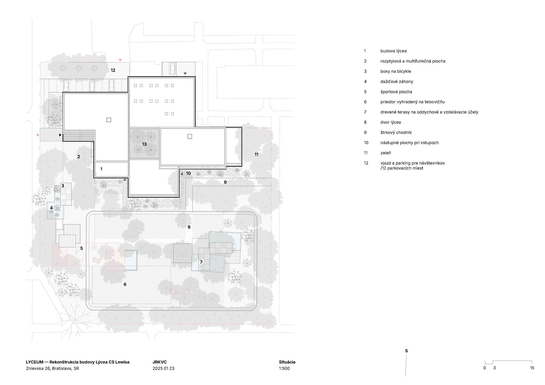
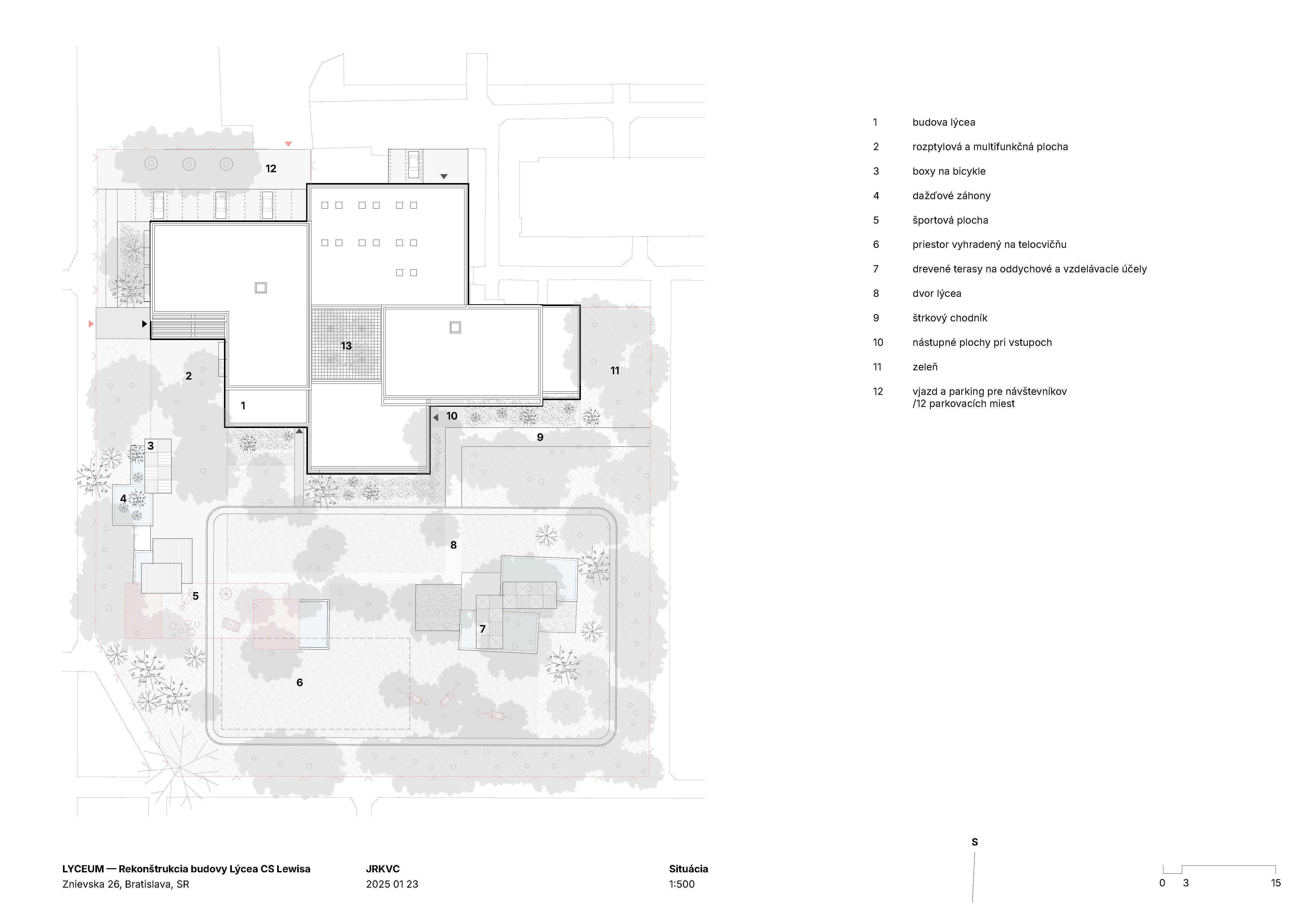
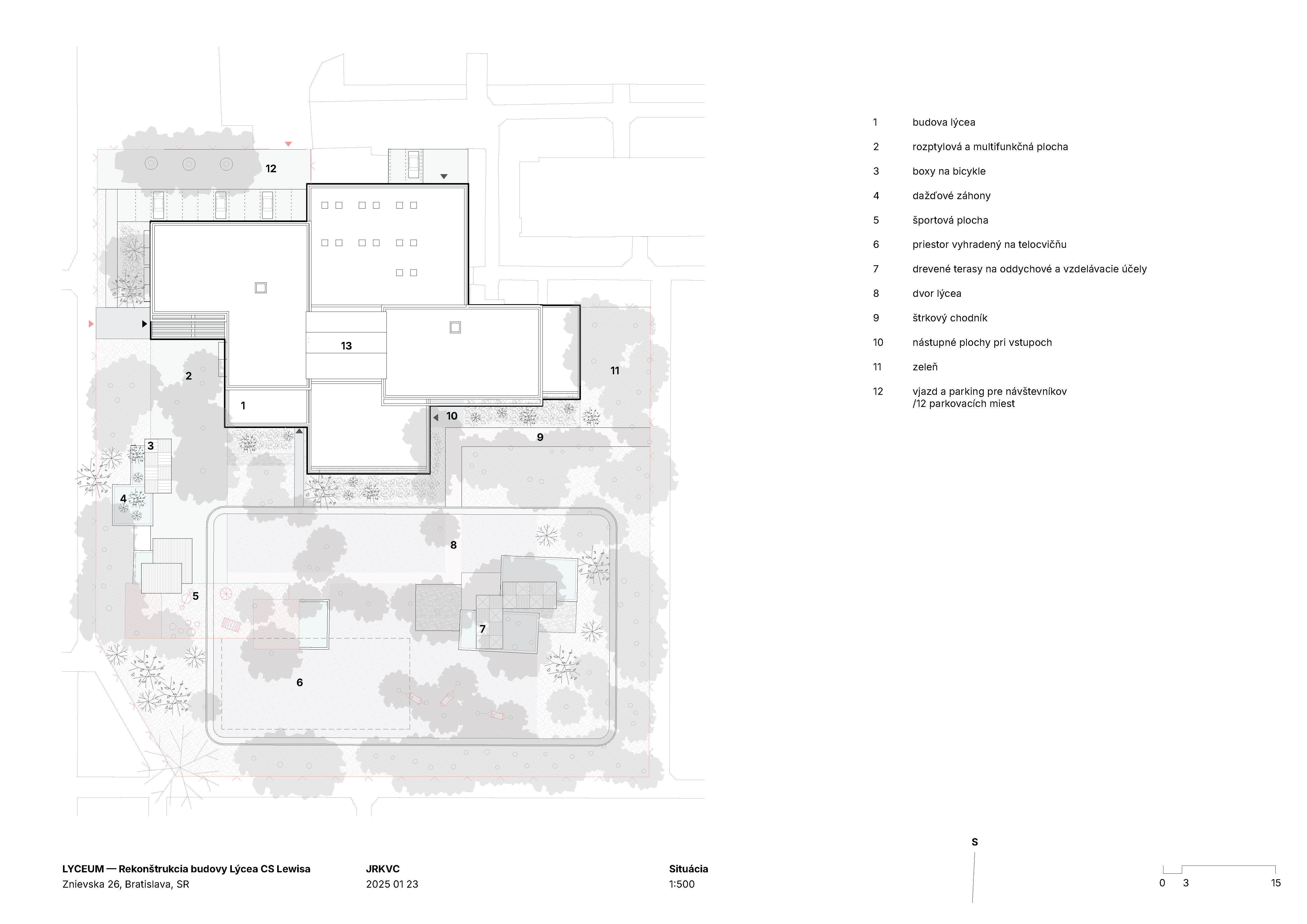
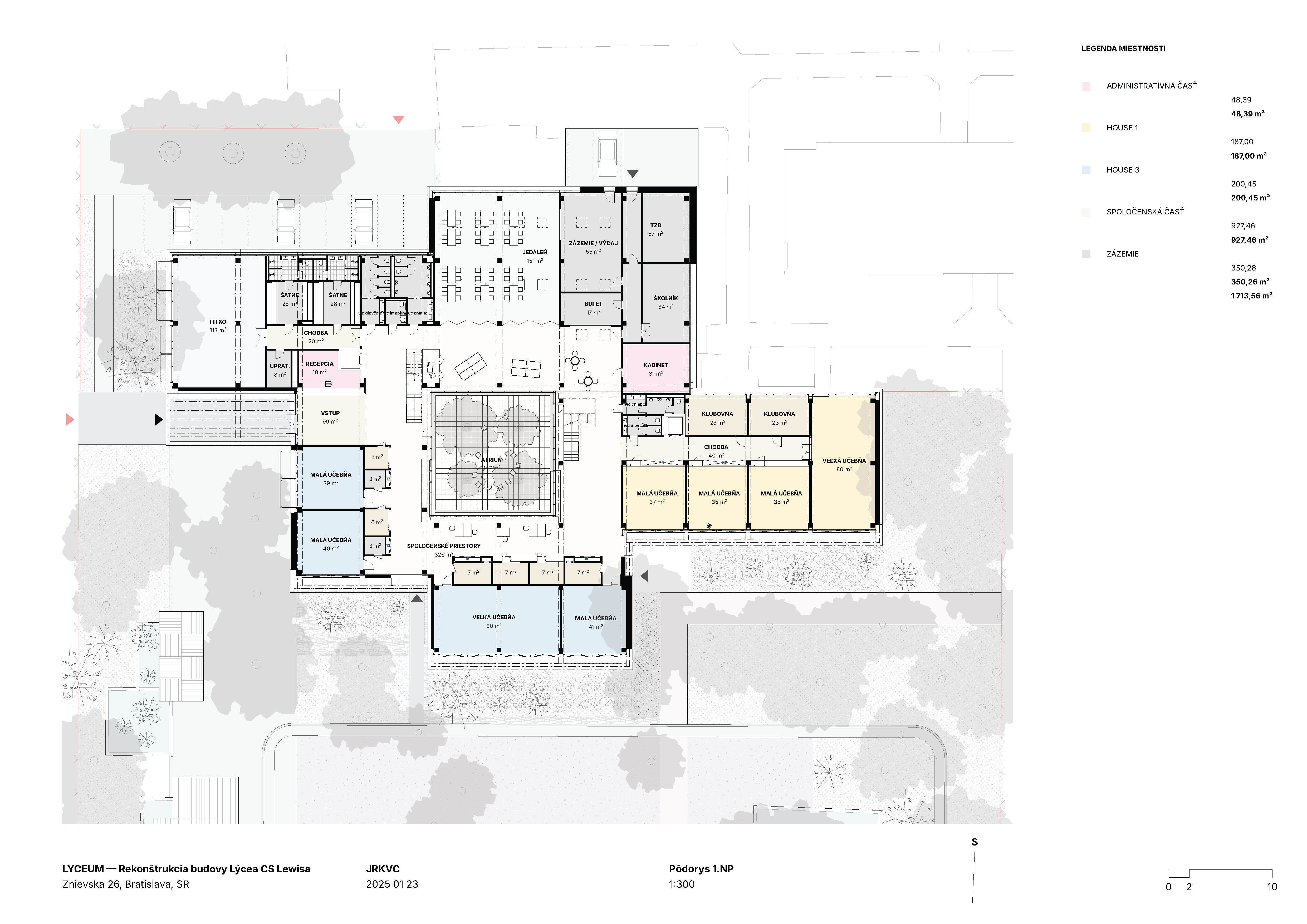
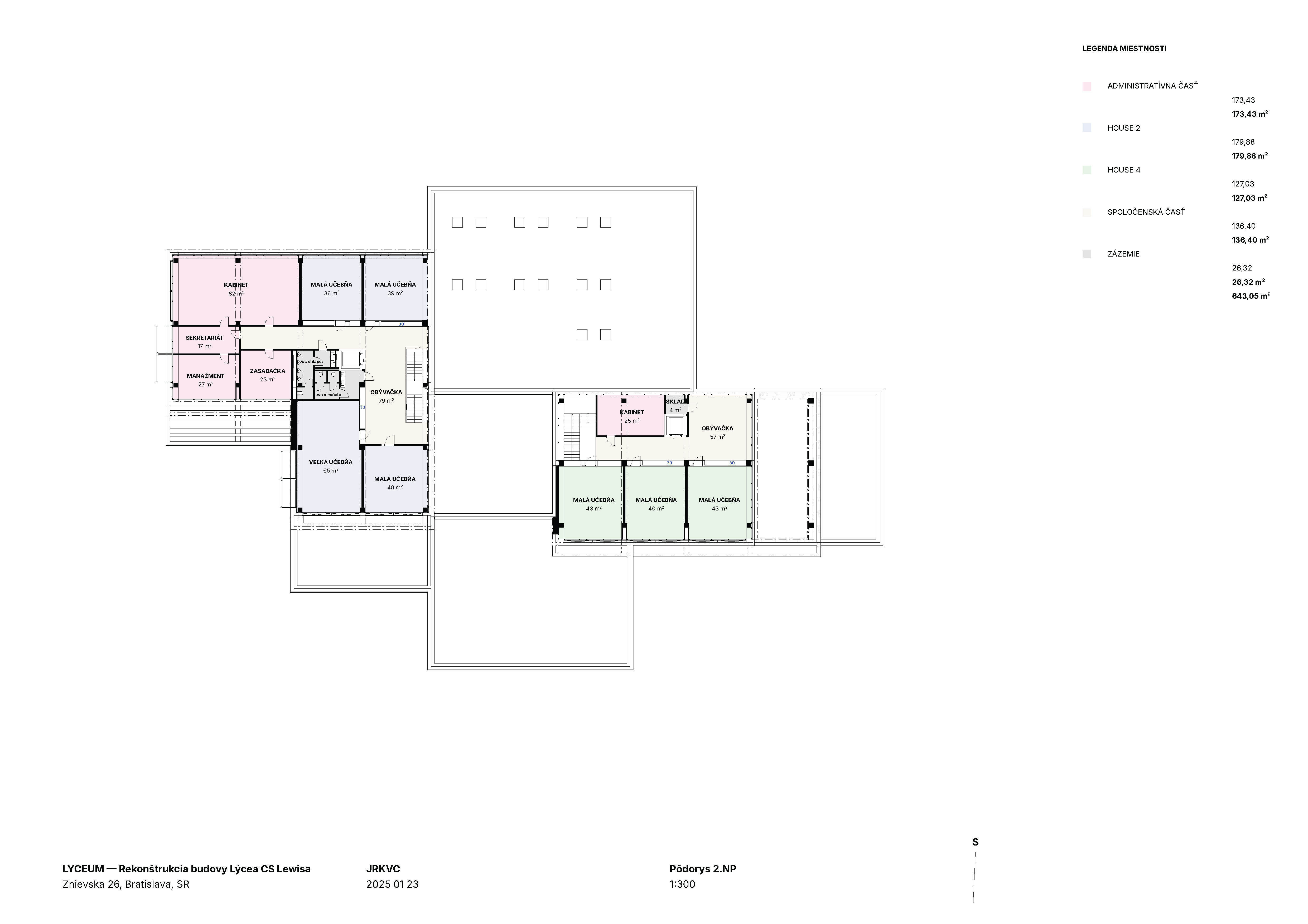
Koncept zachováva pôvodný prefabrikovaný železobetónový skelet typu MSRP, ktorého potenciál pre flexibilné usporiadanie priestorov sa využíva v novej dispozícii. Areál dopĺňa nová modro-zelená zásahy infraštruktúra prepojenia na okolie. Štúdia nadväzuje na úspešné transformácie školských budov spojené s Lýceom C. S. Lewisa a ambíciu priniesť kvalitné prostredie pre výučbu aj komunitný život.
Sprievodný autorský text:
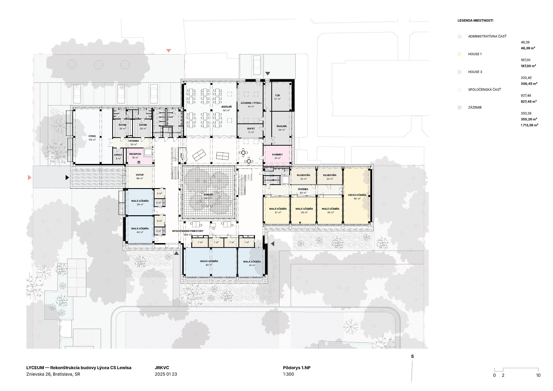
Návrh rieši komplexnú rekonštrukciu existujúcej budovy s cieľom zachovať jej pôvodnú funkciu školského zariadenia. Rekonštrukcia má za cieľ zlepšiť jej funkčnosť, estetiku a zabezpečiť optimálne podmienky pre vzdelávanie. Projekt je realizovaný s rešpektovaním pôvodného montovaného skeletového systému a zahŕňa dispozičné a estetické zmeny, ktoré reflektujú moderné pedagogické prístupy. V budove sa nachádza kapacita pre 240 študentov, pričom každý ročník zahŕňa 50–60 žiakov.
Urbanistické riešenie
Návrh sadových úprav dopĺňa architektonické riešenie rekonštrukcie budovy školy pre potreby lýcea, rieši exteriérové časti okolo budovy a napojenie priestoru na okolie. Riešené územie (školský areál) je vymedzené oplotením. Návrh nielen v maximálnej možnej miere implementuje koncepciu modrozelenej infraštruktúry, ale predovšetkým citlivým ekologickým prístupom znižuje uhlíkovú stopu a negatívny environmentálny dopad na územie. Súčasne predstavuje aj ekonomické riešenie, ktoré neplytvá zdrojmi, ale naopak maximálne recykluje existujúce štruktúry. Navrhnuté sú domáce druhy drevín, vhodné pre danú lokalitu, a súčasne perspektívne z pohľadu odolnosti voči klimatickým zmenám. Súčasťou druhového zloženia sú i ovocné dreviny poskytujúce ďalšie ekosystémové benefity. Dreviny dopĺňajú druhovo bohaté trávno-bylinné spoločenstvá. Sadové úpravy budú mať celkovo pozitívny vplyv na životné prostredie; okrem už spomínaných benefitov sa budú podieľať na zlepšení lokálnej mikroklímy, znížení hlučnosti a prašnosti miesta. Vytvoria tiež priestor mestskej prírody poskytujúci zázemie pre miestnu faunu aj flóru. Návrh tak vytvára moderné priestory „divokej mestskej prírody“ prepojenej s potrebami školského zariadenia, ktoré môže slúžiť ako inšpirácia pre environmentálne zodpovednú tvorbu priestoru, čím vo výsledku umocňuje edukatívny charakter celého územia.
Nosný systém
Budova je postavená na prefabrikovanom montovanom skelete, konkrétne na konštrukčnej sústave MSRP, ktorá umožňuje flexibilné dispozičné úpravy. Tento systém sa skladá z nosných stĺpov, stropných panelov Spiroll a ďalších prefabrikovaných prvkov, ktoré umožnili jednoduché prispôsobenie novému návrhu. V rámci rekonštrukcie boli využité moduly umožňujúce prispôsobenie podlažných dispozícií, čím sa dosiahlo efektívne a funkčné riešenie priestorov.
Funkčné a dispozičné riešenie
Učebne sú orientované na slnečné strany, čím sa zabezpečuje kvalitné prirodzené osvetlenie a príjemné prostredie na štúdium. Priestor je rozdelený podľa moderného konceptu „houses“, ktoré vytvárajú mikrokomunity študentov rôznych ročníkov. Každý „house“ obsahuje učebne, spoločný rozptylový priestor a klubovňu a oddychové zóny. Tento systém podporuje interakciu medzi študentmi a pedagógmi, pričom zároveň zabezpečuje dostatok priestoru na individuálnu aj skupinovú prácu. Centrálnym prvkom budovy je átrium, okolo ktorého sa rozprestiera multifunkčný komunikačný „prstenec“. Tento priestor slúži nielen ako chodba, ale aj ako miesto pre spoločenské aktivity, relax a učenie. Budova je navrhnutá tak, aby zahŕňala priestory pre 240 študentov, pričom v každom ročníku je 50–60 žiakov. Každý študent má k dispozícii vlastnú uzamykateľnú skrinku, ktorá je situovaná v širších chodbách prstenca okolo átria. Dispozičné riešenie podporuje transparentnosť a bezpečnosť – všetky dvere do učební, mentoringových miestností a spoločenských priestorov majú priehľadné časti, čo zlepšuje vizuálnu kontrolu a pocit otvorenosti.
Podklady: JRKVC