Advertorial

Okná Internorm za minuloročné ceny + hliníkový kryt zdarma!

Využite špeciálnu akciu Internorm: okná za minuloročné ceny a hliníkový kryt úplne zadarmo. Ponuka je časovo obmedzená!

Pozvánka na 2. ročník stavebného veľtrhu BigMarket na Slovensku

Na podujatí sa predstaví až 37 vystavovateľov - popredných dodávateľov stavebných materiálov a inovácií s prezentáciou...

Moderné plynové technológie: Efektivita a inovácie pre 21. storočie

Sumarizácia najdôležitejších inovácií, ktoré redefinujúcich využitie tohto energetického zdroja.

Utesňovanie spodných stavieb pomocou hydro-aktívnej fólie AMPHIBIA.

AMPHIBIA 3000 GRIP 1.3 od spoločnosti ATRO predstavuje modernú hydroizolačnú technológiu, ktorá spája vysokú odolnosť,...

Dekarbonizácia individuálneho vykurovania domácností – Green Deal evolučne a nie revolučne

Ambiciózne plány EK narazili na ekonomické možnosti domácností v jednotlivých členských štátoch –...

Minimalistické dvere IDEA – technická precíznosť a čistota prevedenia

IDEA DOOR od spoločnosti JAP prináša do interiéru čistý minimalistický vzhľad vďaka bezrámovému riešeniu a precíznej...

Dom s výhľadom na údolie, Dlouhý Most (ČR)

Kontinuita riešenia od vonkajšieho obkladu až po kovania a kľučky.

Schell Vitus – osvedčené riešenie pre sprchy a umývadlá vo verejnom sektore s viac ako desaťročnou tradíciou

Nástenné nadomietkové armatúry Vitus sú mimoriadne vhodné pre rýchlu a efektívnu...

Kompozitné okná predstavujú súčasnosť a budúcnosť

Okenné profily z kompozitného materiálu RAU-FIPRO X od spoločnosti Rehau sú v porovnaní s tradičnými plastovými profilmi mnohonásobne...

Myotis - stoly 2025

Najnovší sortiment stolov pre zariadenie interiérov...

Priemyselné sklenené priečky Dorsis Digero: svetelné rozhranie pre moderné interiéry

Spojenie moderného dizajnu, funkčnosti a svetla do harmonického architektonického prvku.

Význam prirodzeného svetla pre moderné a flexibilné pracovné prostredie

Kancelárska budova Baumit v slovinskom Trzine prešla premenou na moderné a udržateľné pracovisko. Architekti kládli dôraz...

Konferencia Xella Dialóg predstaví novinky a trendy v stavebníctve

Mottom šiesteho ročníku on-line konferencie odborníkov Xella Dialóg je Efektívny návrh budov 2025+: zmeny a riešenia

Murovací robot WLTR stavia svoj prvý dom na Slovensku

Robot WLTR predstavuje moderný prístup k murovaným konštrukciám. Vďaka automatizácii dokáže rýchlo, presne a bezpečne realizovať...

Nová éra bezpečnosti s I-tec Secure od Internorm

Okrem bezpečnosti majú okná aj elegantný vzhľad, pretože nie sú viditeľné žiadne uzamykacie časti kovania.

Rekonštrukcia obecného úradu Únětice (ČR)

Dôverne známy scenár, tentokrát so šťastným koncom.
Diela
Red 319.02.2019
13330+13
Rekonštrukcia obecného úradu Únětice (ČR)
Autori: Ing. arch. Jaroslav Hulín, Ing. arch., M.Arch. Jiří Pavlíček, Ph.D., Ing. arch. Šimon JiráčekInvestor: Obec ÚněticePlocha pozemku: 605 m2Zastavaná plocha: 98 m2Návrh: 2014 - 2015Realizácia: 2015 - 2015Adresa: Náves 17/4, Únětice, Česká republikaPublikované: 19. február 2019

Projekty využívajúce dotáciácie na zníženie energetickej náročnosti skončia väčšinou pri zateplení fasády vrstvou polystyrénu, bez akéhokoľvek ďalšieho rozmyslu. Chýba komplexnejší pohľad architekta, pridaná vrstva neprináša žiadnu novú architektonickú ani remeselnú kvalitu. Aj pri stavbách, ktoré nemajú "áčkovú" kvalitu, je dôležitý zodpovedný prístup. Obecný úrad si aj po rekonštrukcii zachoval charakteristickú podobu a detaily. Na prvý pohľad sa ani v interiéri skoro nič nezmenilo. Práve takýto striedmy a úsporný prístup sa nám páči. 

Zadaním obce bola nenáročná stavebná úprava úradu s cieľom zlepšenia energetickej bilancie budovy. Tesne predtým, ako architekti začali na projekte pracovať, si obec zabezpečila dotáciu na zateplenie stavby z 30. rokov minulého storočia. “Ptali jsme se sami sebe, jestli by se vůbec takového projektu měli zúčastnit architekti. Po delší úvaze jsme ale dospěli k závěru, že v projektu existuje ještě řada nezodpovězených otázek. Děsila nás především kombinace zateplení a historické budovy. Proto jsme se projektu ujali,” vysvetľujú architekti.

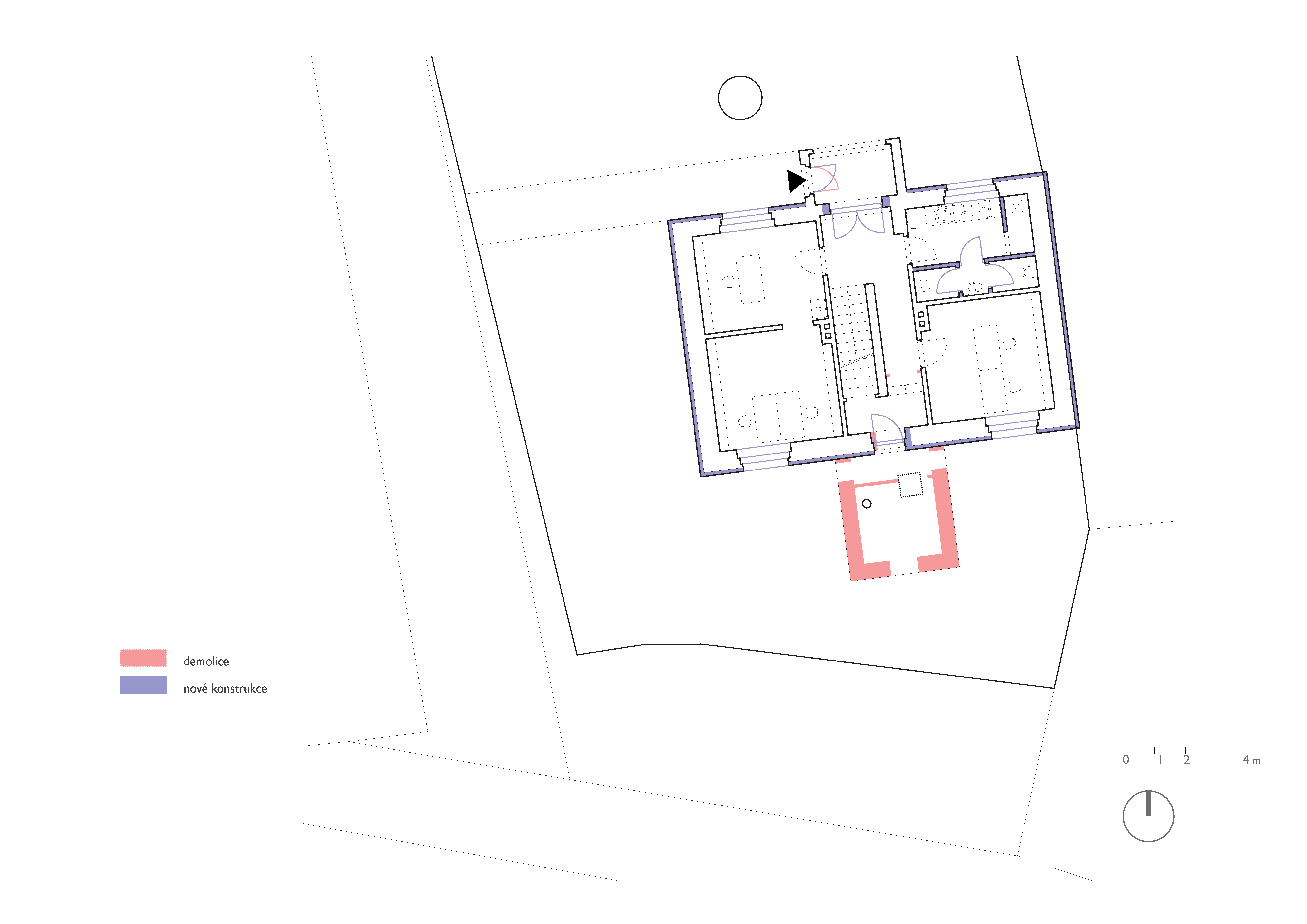
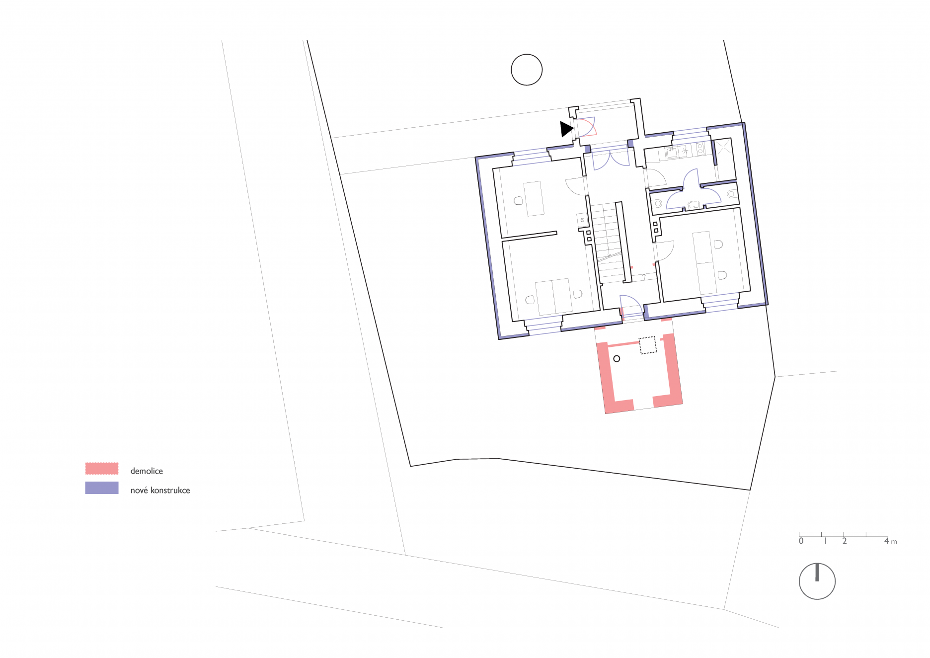
Pre architektov bolo otázkou, ako sa postaviť k prístavbe z 50. rokov. Vzhľadom na porušenú statiku neskoršej dostavby a motto rekonštrukcie "hľadanie energetických úspor" sa rozhodli optimalizovať dispozíciu tak, aby bolo možné prístavbu zbúrať. Zmenšil sa tak obostavaný objem a predovšetkým ochladzovaná plocha fasády. Spolu s inštaláciou nového vykurovacieho systému a zateplením, spomínané opatrenia prispeli k zlepšeniu energetickej bilancie stavby.

Druhou zásadnou otázkou bolo, ako zatepliť budovu tak, aby nestratila svoju historickú podobu. Relatívne banálna otázka nadobúda v kontexte mnohých nevydarených projektov dôležitosť. Architekti študovali historické podklady a overovali na vizualizáciách rôznu hrúbku zateplenia. Ako výsledné optimum zvolili 15 cm dodatočnej tepelnej izolácie zo strany exteriéru. Aby zostali zachované pôvodné proporcie, bolo potrebné upraviť okenné otvory, vrátane realizácie niekoľkých nových prekladov. Nové okná sú pochopiteľne špaletové. “Měli jsme štěstí v tom, že původní fasáda nebyla příliš členitá,” priznávajú architekti. Pôvodnú brizolitovú omietku nahradila opticky aj štrukturálne veľmi podobná vrstva aplikovaná na kontaktný zatepľovací systém.

Foto: Benedikt Markel
Foto: Benedikt Markel
Foto: Benedikt Markel
Situácia
SituáciaAutor: Pavlíček Hulín architekti
Pôdorys 1. NP
Pôdorys 1. NPAutor: Pavlíček Hulín architekti
Pôdorys 2. NP
Pôdorys 2. NPAutor: Pavlíček Hulín architekti
Pôdorys 3. NP
Pôdorys 3. NPAutor: Pavlíček Hulín architekti
Rez A-A
Rez A-AAutor: Pavlíček Hulín architekti
Pohľad južný
Pohľad južnýAutor: Pavlíček Hulín architekti
Pohľad zapadný
Pohľad zapadnýAutor: Pavlíček Hulín architekti

V interiéri sa autori snažili zachovať čo najviac pôvodných prvkov, aj s ohľadom na finančné možnosti obce. Radiátory sú osadené do novovyrobených ník pod oknami, fošňová podlaha je natretá na pôvodný odtieň. Prvky, ktoré nebolo treba vymieňať (napríklad zárubne) sú ponechané bez úprav, aby dom žil svojou pôvodnou atmosférou.

Jediným výrazne novým prvkom sa tak stalo okno na západnej fasáde. Osvetľuje starostovu kanceláriu/zasadačku a je z neho vidieť na centrum obce. “Občané tak mohou kontrolovat svého voleného zástupce podobně jako tomu je například v Reichstagu,” dodávajú na záver autori.  

Foto: Benedikt Markel
Foto: Benedikt Markel
Foto: Benedikt Markel
Obecný úrad pred rekonštrukciou
Obecný úrad pred rekonštrukciouFoto: Pavlíček Hulín architekti

Poloha diela

Ing. arch. Jaroslav Hulín
Ing. arch., M.Arch. Jiří Pavlíček, Ph.D.
Ing. arch. Šimon Jiráček

Súvisiace články

Vložené
19. február 2019
0
1333
Hlavný obsahHlavný obsah
Čakajte prosím