Využite špeciálnu akciu Internorm: okná za minuloročné ceny a hliníkový kryt úplne zadarmo. Ponuka je časovo obmedzená!
Na podujatí sa predstaví až 37 vystavovateľov - popredných dodávateľov stavebných materiálov a inovácií s prezentáciou...
Sumarizácia najdôležitejších inovácií, ktoré redefinujúcich využitie tohto energetického zdroja.
AMPHIBIA 3000 GRIP 1.3 od spoločnosti ATRO predstavuje modernú hydroizolačnú technológiu, ktorá spája vysokú odolnosť,...
Ambiciózne plány EK narazili na ekonomické možnosti domácností v jednotlivých členských štátoch –...
IDEA DOOR od spoločnosti JAP prináša do interiéru čistý minimalistický vzhľad vďaka bezrámovému riešeniu a precíznej...
Kontinuita riešenia od vonkajšieho obkladu až po kovania a kľučky.
Nástenné nadomietkové armatúry Vitus sú mimoriadne vhodné pre rýchlu a efektívnu...
Okenné profily z kompozitného materiálu RAU-FIPRO X od spoločnosti Rehau sú v porovnaní s tradičnými plastovými profilmi mnohonásobne...
Najnovší sortiment stolov pre zariadenie interiérov...
Spojenie moderného dizajnu, funkčnosti a svetla do harmonického architektonického prvku.
Kancelárska budova Baumit v slovinskom Trzine prešla premenou na moderné a udržateľné pracovisko. Architekti kládli dôraz...
Mottom šiesteho ročníku on-line konferencie odborníkov Xella Dialóg je Efektívny návrh budov 2025+: zmeny a riešenia
Robot WLTR predstavuje moderný prístup k murovaným konštrukciám. Vďaka automatizácii dokáže rýchlo, presne a bezpečne realizovať...
Okrem bezpečnosti majú okná aj elegantný vzhľad, pretože nie sú viditeľné žiadne uzamykacie časti kovania.

Dielo sa dostalo do užšieho výberu poroty v aktuálnom ročníku Českej ceny za architektúru.
Objekt pôvodného kina (Kino pohraničnej stráže) bol postavený v rokoch 1958-1959 v rámci akcie Z (takzvaná “neplatená pracovná činnosť obyvateľov”) v západnej časti námestia Slobody. Išlo o prvé väčšie stavebné dielo obyvateľov čerstvo osidlujúcich Planú po odsune pôvodnej nemeckej populácie (v roku 1946). Spôsob ľudovej výstavby je čitateľný v stavebno-technickom riešení, alebo napríklad na “zdobnej” fasáde budovy orientovanej smerom do námestia. Jednopodlažný objekt nahradil dva pôvodné mestské domy. Výškovo nekorešponduje s výškovou hladinou okolitých stavieb a neprijíma ani historickú parceláciu.
Budova, nachádzajúca sa v mestskej pamiatkovej zóne, prešla niekoľkými čiastočnými opravami zameranými predovšetkým na úpravu čelnej fasády, posledná prebehla v roku 2009. Počas spomínaných prestavieb boli okrem iného odstránené pôvodné výtvarné motívy medzi oknami do námestia.
Priestorové usporiadanie budovy už dlhšiu dobu nereflektovalo súdobé požiadavky na riešenie kinosály. “Strnulá” dispozícia bránila aj inému účelu užívania. Vek a nedostatok prevádzkovej flexibility predstavovali významnú príčinu úpadku návštevnosti zariadenia i kultúrneho života v meste.
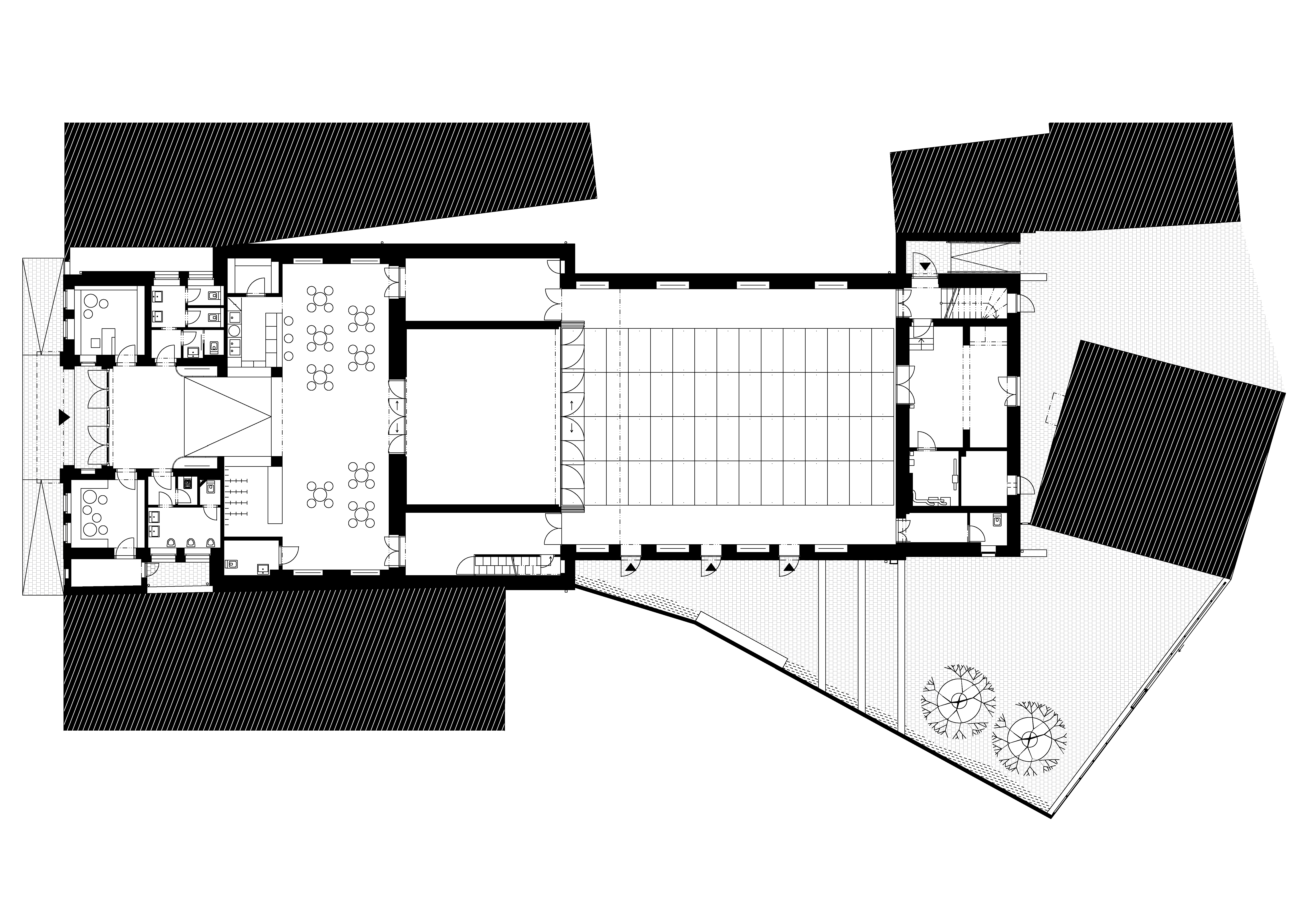
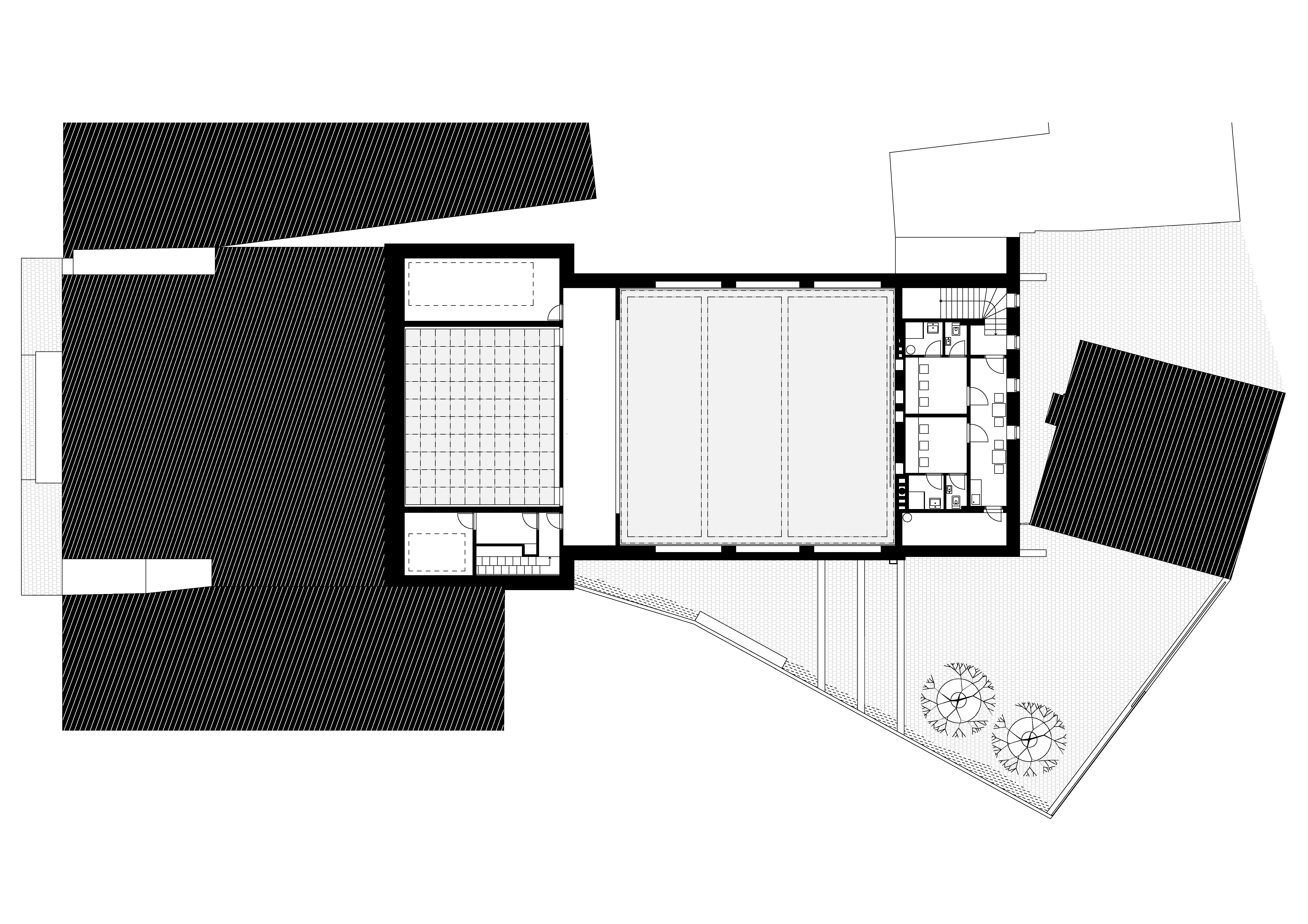
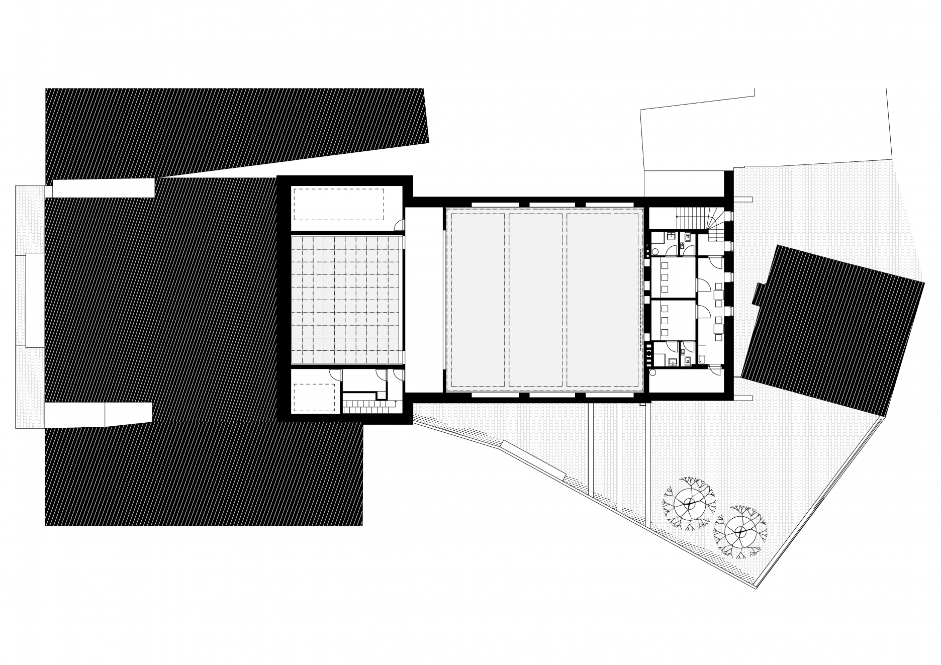
Nové dispozičné riešenie reaguje na aktuálne požiadavky mesta - objekt funguje ako sústava samostatných, na sebe nezávislých, avšak prepojiteľných prevádzok. Zároveň sa snaží zachovať výraznú osovosť charakterizujúcu celú budovu. Pôvodnú kinosála s fixnou eleváciou nahradila zlúčená veľká a malá sála s podlahou v jednej výškovej úrovni. Pôvodná záhrada pri zadnej časti budovy je novo riešená ako verejný dvor priliehajúci k hlavnej sále. Na vstupné priestory, ktoré sú po rekonštrukcii bezbariérovo prístupné nadväzuje foyer, v ktorom sa vedľa nutných servisných miestností nachádza kaviareň. S kaviarňou priamo susedí menšia sála, takzvaný Black box. Priestor je možné vyčleniť bez ohľadu na dianie v okolitých miestnostiach. Môže však ponúknuť aj prepojenie s kaviarňou alebo hlavnou sálou. Veľkosťou, technológiami aj prevádzkovou väzbou na servisné krídlo skladov a šatní pre účinkujúcich sa veľká sála stáva centrom kultúrneho života. Zaujímavým technickým riešením sú “zdvíhateľné” polia podlahy (praktikáble), ktoré zväčšujú flexibilitu využitia priestoru. Technický balkónom s “live” postom pre zvukárov aj osvetľovača a vymedzený priestor pre premietaciu techniku zodpovedá moderným štandardom..
Hlavný bezbariérový vstup je orientovaný do námestia Slobody. Miestnosti za severnou fasádou interagujú s verejným priestorom námestia. Stávajú sa "výkladnou skriňou" programovej náplne objektu, čomu je podriadená ich náplň - predajňa lístkov a salónik kaviarne. Južný "chrbát" budovy je clonený vyčnievajúcou fasádou susednej cukrárne. Výškový rozdiel sály a terénu vyrovnáva terasa so širokým vyrovnávacím schodiskom, ktoré vytvára pomyselný amfiteáter.
Fasáda orientovaná do námestia bola citlivo zrekonštruovaná. Po miernom znížení okenných parapetov nasledovalo “navrátenie” medziokenných reliéfov a rekonštrukcia reliéfu jazdkyne. Farebné riešenie je založené na miernom kontraste omietky, vstupného portálu a sokla budovy obloženého kameňom. Obnovený bol aj zapustený vstup do objektu.
Profilácia ríms na fasáde ostala zachovaná. Dodržané boli rozmery aj materiál. Južná, východná a západná fasáda bola zateplená. Pri ostatných plochách to bolo vylúčené z dôvodu historickej hodnoty a výrazného členenia priečelí. Ako jemný akcent sa v rovine fasády objavuje kamenný obklad vstupného portálu a sokla na severnej strane objektu. Zachované sgrafitové motívy boli šetrne reštaurované. Vonkajšie povrchy sú dláždené rovnako ako príjazdová komunikácia mačacími hlavami kladenými v polkruhovom vzore.
Na špecifiká dobovej realizácie objektu a na pôvodnú náplň budovy odkazujú niektoré detaily.
O obnovu medziokennej sgrafitovej výstavy sa postaral Libor Kaláb. Hlavným motívom umeleckého diela sa novo stávajú neuróny. Neuróny koordinujú funkciu celého tela. Môžu spoločne tvoriť väčšie funkčné celky. “S nadsázkou lze obdobně nahlížet na nové KINONEKINO - jako na jakýsi středobod, kde se navazují vazby, spojení a uskutečňuje se setkání všech jednotek obce. Spojuje se zde svět umění, kultury a společenského života. Vznikají tak nové kvalitativní vazby a obohacují tak intelektuální potenciál celého města,” hovoria autori.
Vďaka tomu, že budova slúži ako divadlo, kino, organizujú sa tu výstavy a prednášky, vzniká množstvo prepojení. Nielen kultúrnych, ale predovšetkým ľudských a myšlienkových.
Odkaz na špecifickú dobovú realizáciu budovy, v rámci ktorej ruku k dielu priložili miestni obyvatelia, pripomína motív na bráne oplotenia. Prostredníctvom perforácie je na plech prenesená fotografia zo stavby kina z roku 1958.
Detail zrkadliaci pôvodnú funkciu budovy možno objaviť na stenách baru a šatní pre návštevníkov. Tie pokrýva tapeta zobrazujúca sken štyristo metrov dlhého filmového pásu týždenníka, ktorý sa v kine kedysi premietal. Len obďaleč, na stenách foyer, sa “prepisujú” fragmenty pôvodných “peesáckých” (v minulosti išlo o Kino pohraničnej stráže) reliéfov.
Namiesto zachovania originálnych výjavov bolo pristúpené k ich abstrahovaniu. Dôvodom bola nízka výtvarná kvalita a tendenčná dobová tematika. Sklenená plastika zavesená na stene knižnice salóniku je vytvorená zbierkou starých a pôvodných svietidiel z kina.
Podklady: XTOPIX architekti