Advertorial

Pozvánka na 2. ročník stavebného veľtrhu BigMarket na Slovensku

Na podujatí sa predstaví až 37 vystavovateľov - popredných dodávateľov stavebných materiálov a inovácií s prezentáciou...

Hotel Hirschen Spa House, Rakúsko

Novotvar v prostredí alpskej obce.

Vytvorte si kúpeľňu snov: dizajnové riešenie od značky hansgrohe

Hansgrohe - prémiová značka kúpeľňových riešení, ponúka nadčasový dizajn, technickú precíznosť a udržateľné inovácie...

Okná Internorm za minuloročné ceny + hliníkový kryt zdarma!

Využite špeciálnu akciu Internorm: okná za minuloročné ceny a hliníkový kryt úplne zadarmo. Ponuka je časovo obmedzená!

Moderné plynové technológie: Efektivita a inovácie pre 21. storočie

Sumarizácia najdôležitejších inovácií, ktoré redefinujúcich využitie tohto energetického zdroja.

Utesňovanie spodných stavieb pomocou hydro-aktívnej fólie AMPHIBIA.

AMPHIBIA 3000 GRIP 1.3 od spoločnosti ATRO predstavuje modernú hydroizolačnú technológiu, ktorá spája vysokú odolnosť,...

Dekarbonizácia individuálneho vykurovania domácností – Green Deal evolučne a nie revolučne

Ambiciózne plány EK narazili na ekonomické možnosti domácností v jednotlivých členských štátoch –...

Minimalistické dvere IDEA – technická precíznosť a čistota prevedenia

IDEA DOOR od spoločnosti JAP prináša do interiéru čistý minimalistický vzhľad vďaka bezrámovému riešeniu a precíznej...

Dom s výhľadom na údolie, Dlouhý Most (ČR)

Kontinuita riešenia od vonkajšieho obkladu až po kovania a kľučky.

Schell Vitus – osvedčené riešenie pre sprchy a umývadlá vo verejnom sektore s viac ako desaťročnou tradíciou

Nástenné nadomietkové armatúry Vitus sú mimoriadne vhodné pre rýchlu a efektívnu...

Kompozitné okná predstavujú súčasnosť a budúcnosť

Okenné profily z kompozitného materiálu RAU-FIPRO X od spoločnosti Rehau sú v porovnaní s tradičnými plastovými profilmi mnohonásobne...

Myotis - stoly 2025

Najnovší sortiment stolov pre zariadenie interiérov...

Priemyselné sklenené priečky Dorsis Digero: svetelné rozhranie pre moderné interiéry

Spojenie moderného dizajnu, funkčnosti a svetla do harmonického architektonického prvku.

Význam prirodzeného svetla pre moderné a flexibilné pracovné prostredie

Kancelárska budova Baumit v slovinskom Trzine prešla premenou na moderné a udržateľné pracovisko. Architekti kládli dôraz...

Konferencia Xella Dialóg predstaví novinky a trendy v stavebníctve

Mottom šiesteho ročníku on-line konferencie odborníkov Xella Dialóg je Efektívny návrh budov 2025+: zmeny a riešenia

Dostavba areálu Archívu hlavného mesta Prahy

Nový priestor pre rozširujúce sa zbierky.
Diela
Red 431.08.2018
9540+10
Dostavba areálu Archívu hlavného mesta Prahy
Autori: Ing. arch. Petr Páv, Ing. arch. Jitka SmolíkováZastavaná plocha: 1.320 m2Obostavaný objem: 32.557 m3Návrh: 2008 - 2016Realizácia: 2014 - 2017Adresa: Archivní 1280/6, Praha, Česká republikaPublikované: 31. august 2018

Dielo sa dostalo do užšieho výberu poroty v aktuálnom ročníku Českej ceny za architektúru.

Účelom dostavby areálu Archívu hlavného mesta Prahy bolo uvoľniť nevyhovujúce priestory rozptýlené na rôznych miestach v centre Prahy (najmä barokový Clam-Gallasov palác) a zároveň sústrediť všetky potrebné funkcie pod jednu strechu. Dátové centrum hlavného mesta Prahy, Centrum digitalizácie, Archív digitálnych dokumentov a Správa archívu Magistrátu hlavného mesta Prahy našli ideálne miesto v nadväznosti na existujúcu budovu z roku 1997.

Celkový pohľad na budovu archívu
Celkový pohľad na budovu archívuAutor: Pavel Krejčí
Južné nárožie
Južné nárožieAutor: Pavel Krejčí

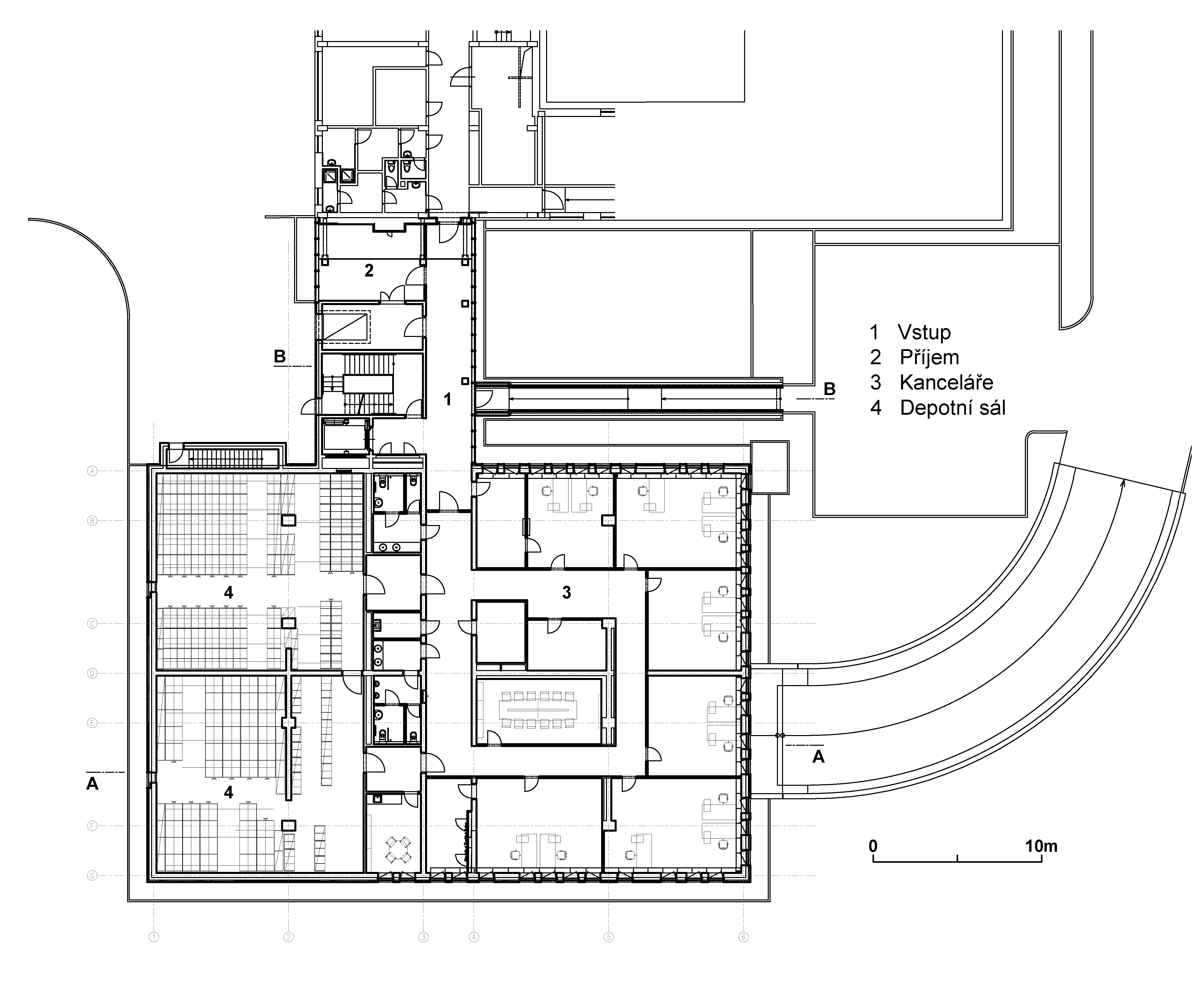
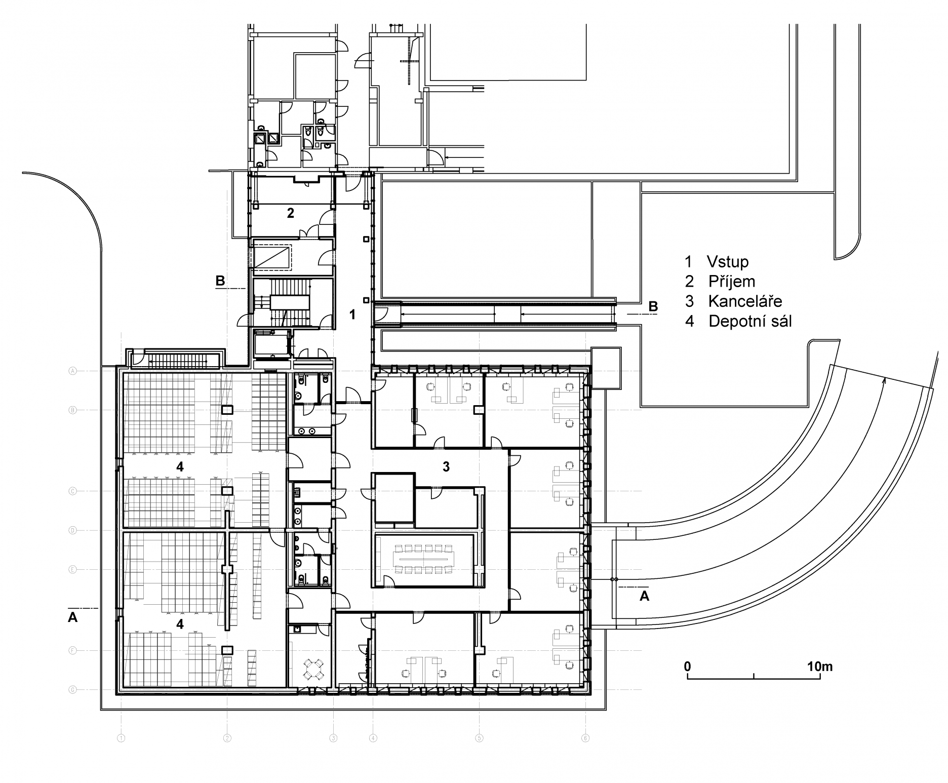
Dostavba Archívu zahŕňala výstavbu nového prevádzkovo depotného objektu pre skladovanie archiválií, nového energocentra a rozšírenie konferenčnej sály. Nový depotný objekt je umiestnený pri južnej fasáde existujúceho obslužného objektu, na ktorý naväzuje spojovacím krčkom.

Širšie vzťahy
Širšie vzťahyAutor: A 32

Novostavba má jedno podzemné a sedem nadzemných podlaží, nosné konštrukcie sú navrhnuté tak aby umožnili v prípade potreby ďalšie rozšírenie a nadstavbu na konečných 12 nadzemných podlaží. Zámerom je ušetriť budúce výdavky a obmedziť vplyv na životné prostredie.

Pohľad z ulice Klíčova
Pohľad z ulice KlíčovaAutor: Pavel Krejčí
Nočný pohľad z ulice Klíčova
Nočný pohľad z ulice KlíčovaAutor: Pavel Krejčí

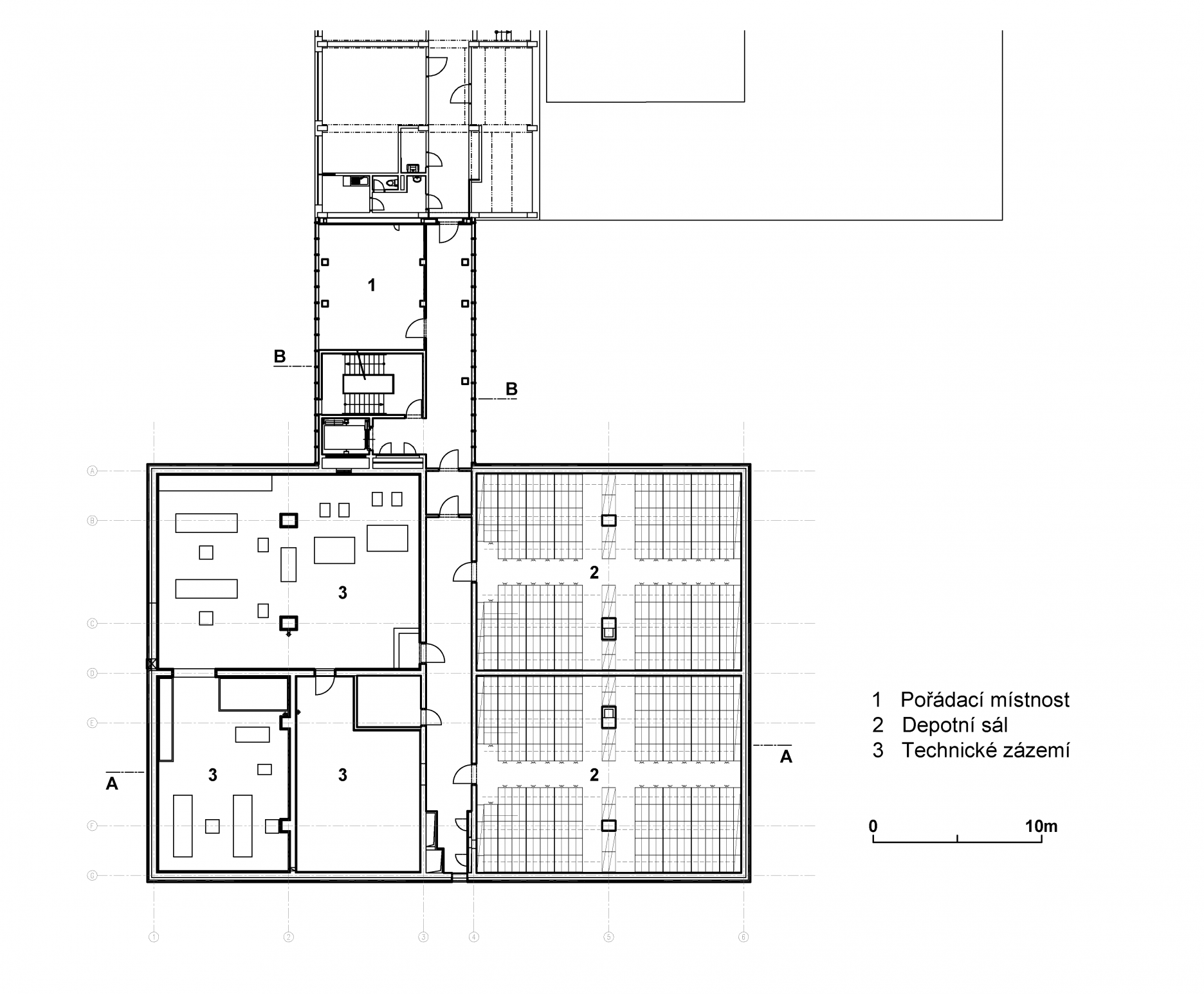
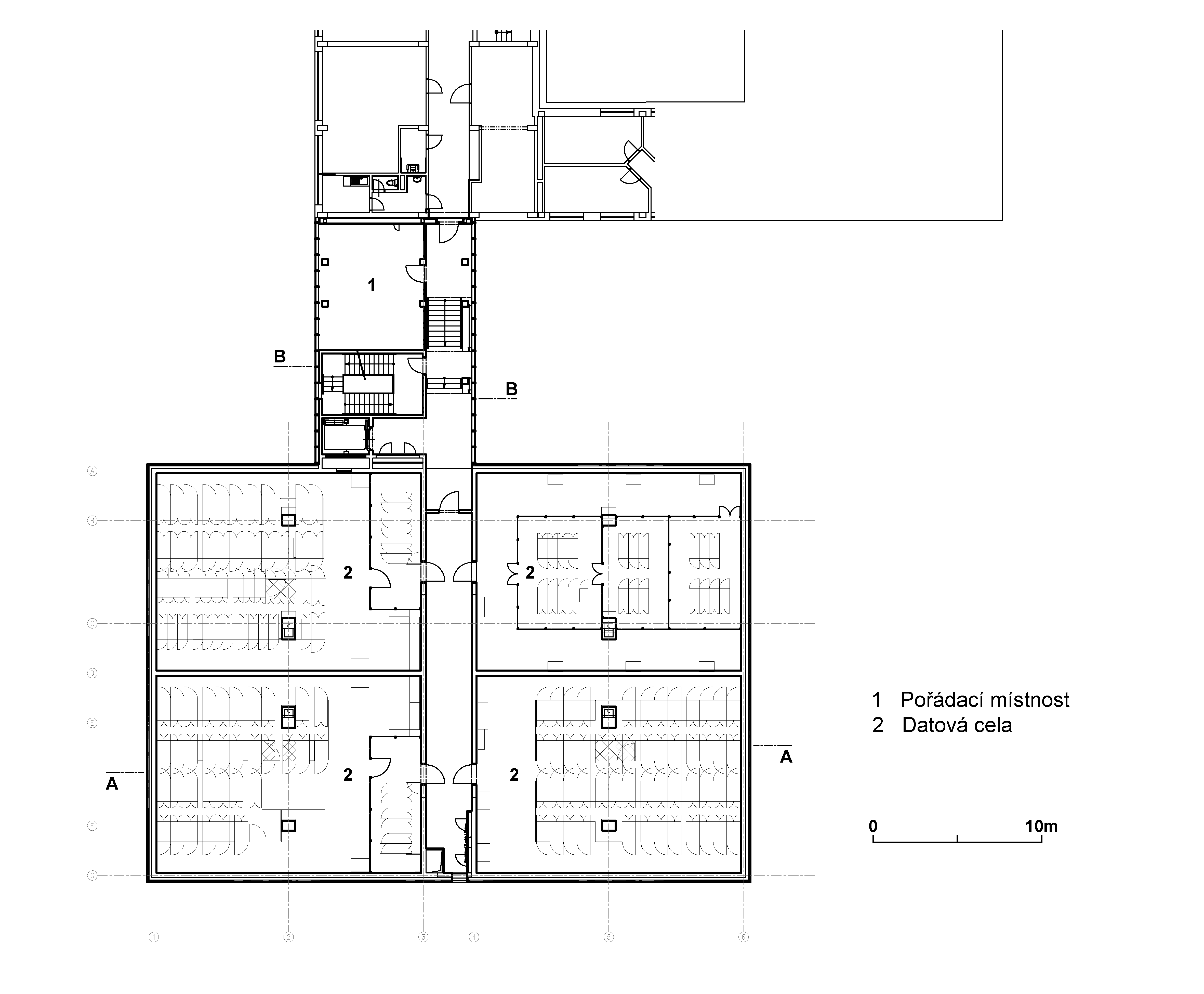
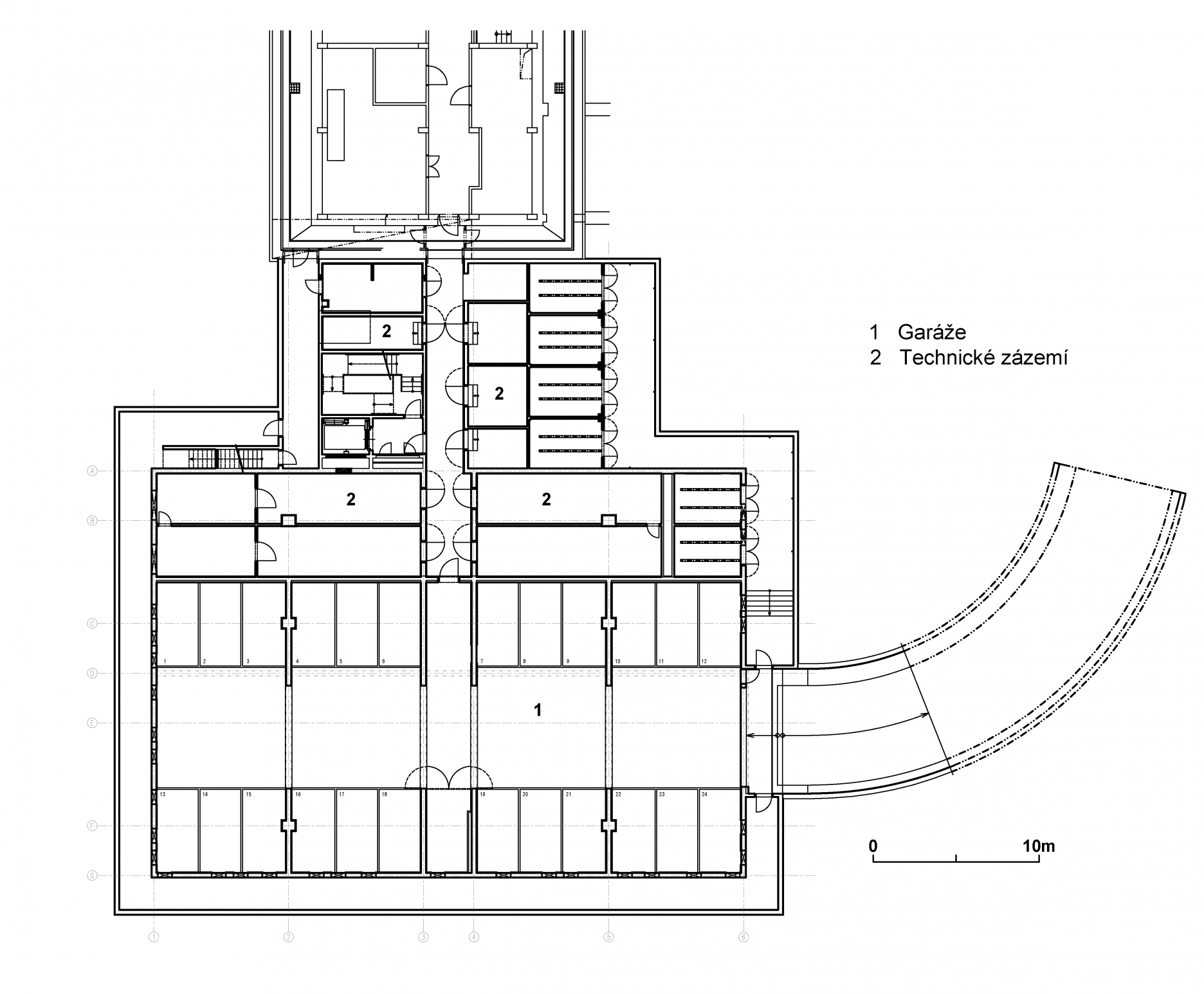
V podzemnom podlaží je parkovisko, trafostanica, rozvodne a ďalšie technické priestory. Na prízemí a prvom poschodí sú prevádzkové priestory a centrum digitalizácie. Na treťom nadzemnom podlaží je dátové centrum. V ostatných podlažiach sú depotné sály, na najvyšších podlažiach strojovne vzduchotechniky a klimatizácie. V spojovacom trakte sa nachádzajú zakladačové miestnosti pre spracovávanie archiválií a vertikálne komunikácie.

Autor: A 32
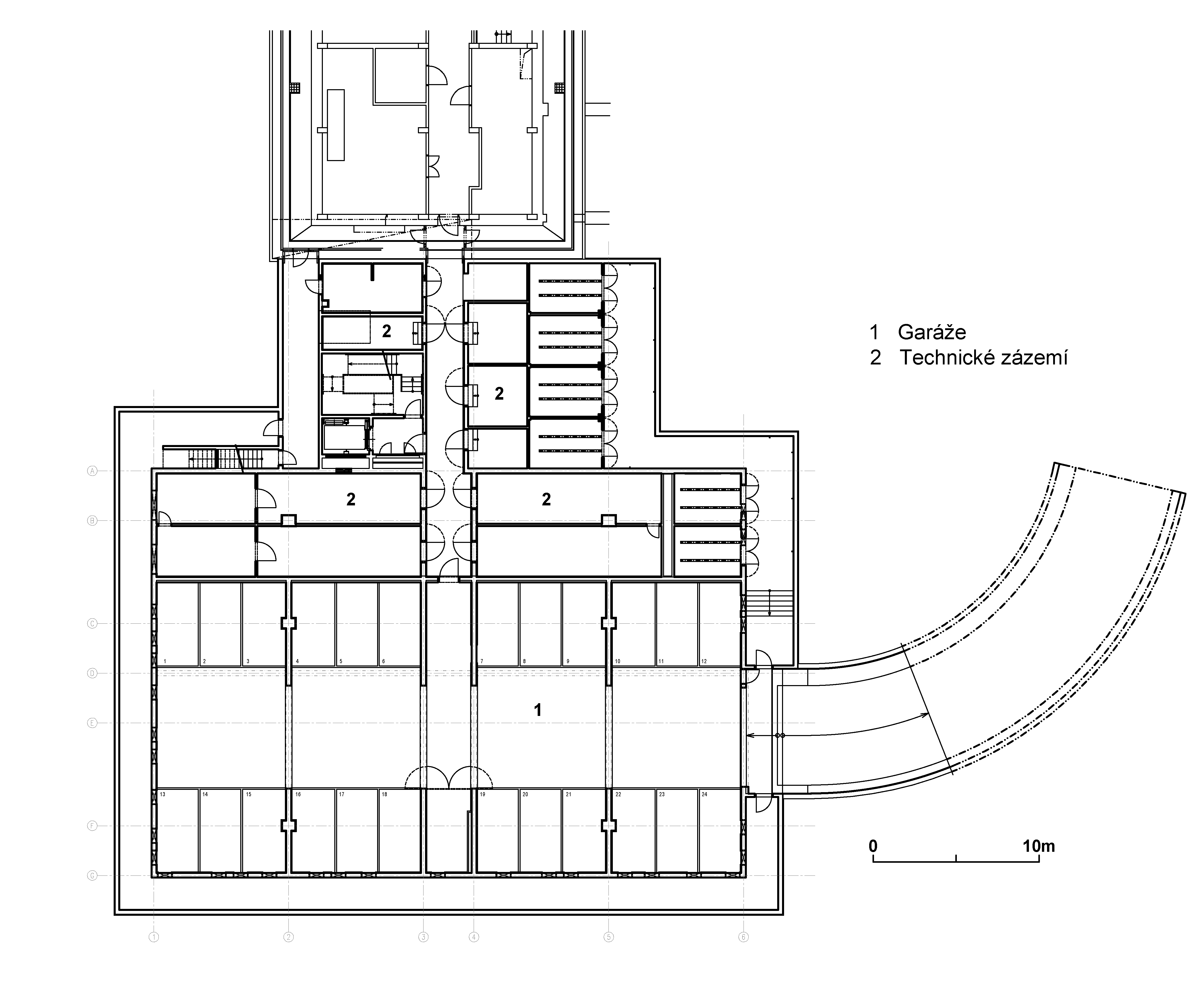
Pôdorys 1. PP
Pôdorys 1. PPAutor: A 32
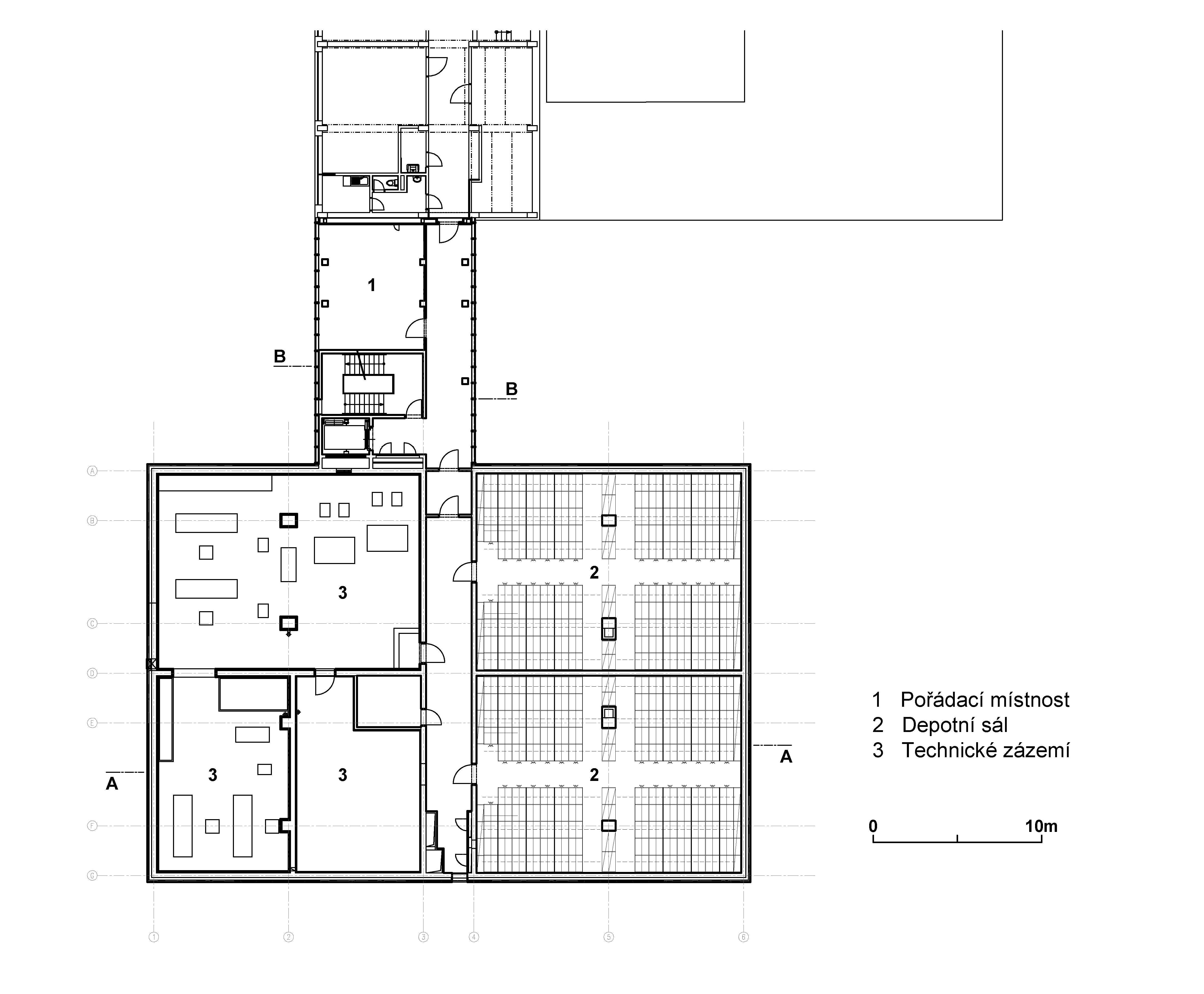
Pôdorys 1. NP
Pôdorys 1. NPAutor: A 32
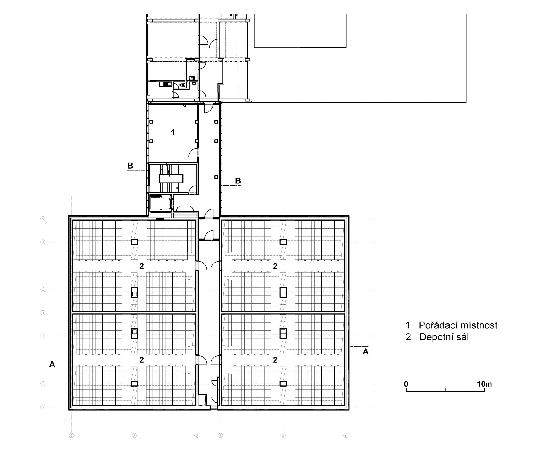
Pôdorys 2. NP
Pôdorys 2. NPAutor: A 32
Pôdorys 3. NP
Pôdorys 3. NPAutor: A 32
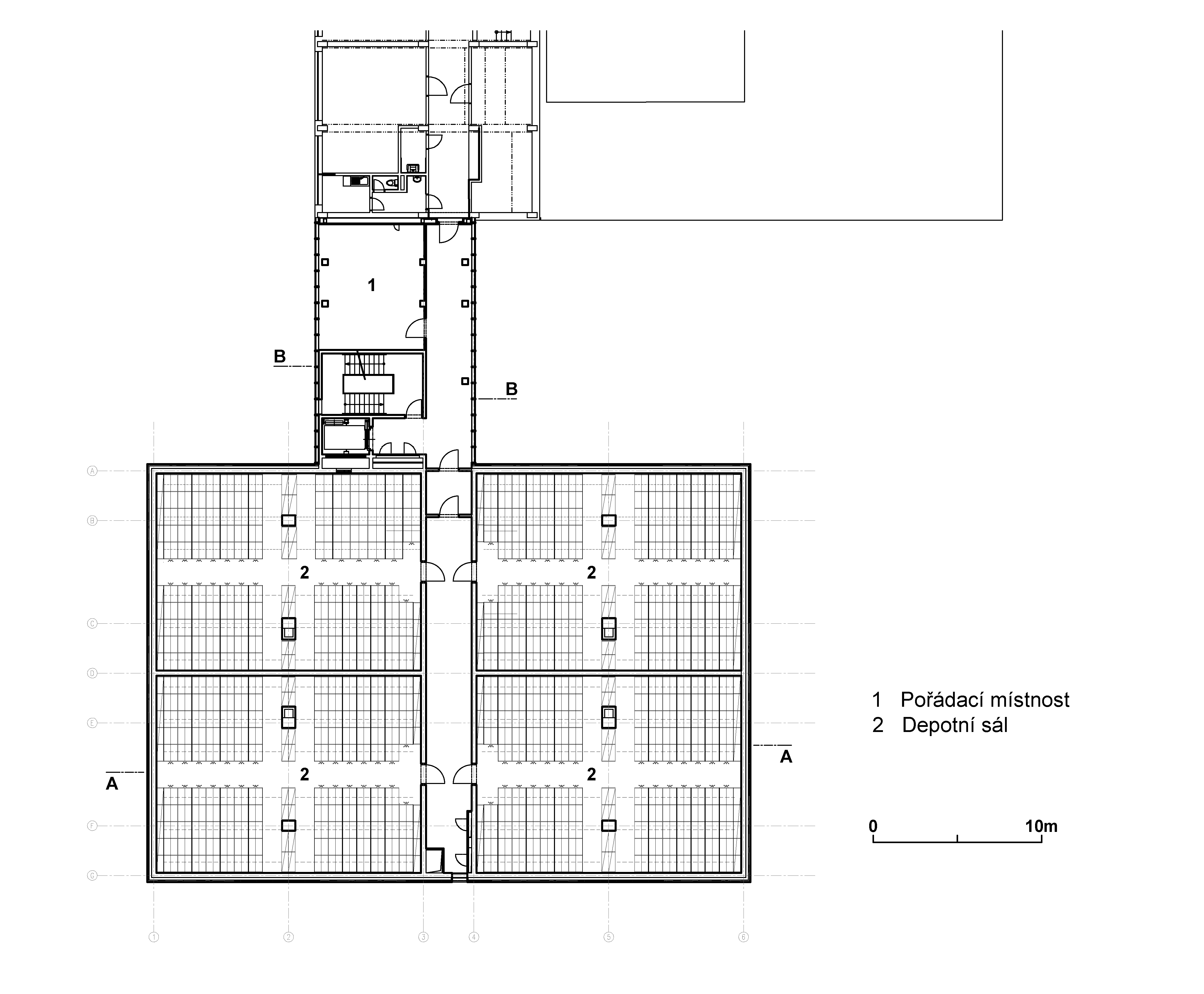
Pôdorys 4.-5. NP
Pôdorys 4.-5. NPAutor: A 32
Pôdorys 6. NP
Pôdorys 6. NPAutor: A 32
Rez A-A
Rez A-AAutor: A 32
Rez B-B
Rez B-BAutor: A 32
Pohľad severovýchodný
Pohľad severovýchodnýAutor: A 32

Fasáda obložená žulovými doskami materiálovo nadväzuje na susediaci starší objekt archívu. Špárorez a plasticita obkladu podľa autorov asociuje tradičný spôsob ukladania archiválií v regáloch. Nepravidelnosť reliéfu je docielená striedaním rôznych formátov obkladu, hrúbky, a spôsobu opracovania povrchu kameňa. Hliníkový fasádny systém je použtý vo väčšej miere na obvode spojovacieho krčku. Výplne okenných otvorov sú takisto vsadené do hliníkových rámov.

Juhovýchodná fasáda
Juhovýchodná fasádaAutor: Jakub Karlíček
Fasáda pri vstupnej rampe
Fasáda pri vstupnej rampeAutor: Pavel Krejčí
Detail vstupnej rampy
Detail vstupnej rampyAutor: Pavel Krejčí
Vstupná rampa
Vstupná rampaAutor: Pavel Krejčí
Detail vstupnej rampy
Detail vstupnej rampyAutor: Pavel Krejčí
Tlmiče hluku VZT dieselagregátov
Tlmiče hluku VZT dieselagregátovAutor: Pavel Krejčí
Chodba v spojovacom krčku
Chodba v spojovacom krčkuAutor: Pavel Krejčí
Zasadacia miestnosť
Zasadacia miestnosťAutor: Pavel Krejčí
Schodisko
SchodiskoAutor: Pavel Krejčí
Depotná sála
Depotná sálaAutor: Jakub Karlíček
Strojovňa hasiaceho zariadenia
Strojovňa hasiaceho zariadeniaAutor: Pavel Krejčí

Realizácia fasády sa vo výsledku ukázala ako pomerne zložitá. Bolo ťažké zabezpečiť aby mala rozsiahla plocha obkladu vyhovujúcu kresbu a farebnosť. “Abychom se co nejvíce přiblížili záměru, bylo nakonec domluveno, že si z bloků kamene, tak jak se v lomech těží, přibližně o rozměrech 3x3 metry, musí vybrat sám architekt. Vybíralo se ve Veroně a v Carraře v kamenictví u přístavu, kde se bloky dovážejí z Brazílie. Surové bloky kamene se kropí vodou ze všech stran, aby lépe vynikla kresba. Podle kresby zvenčí bloku se usuzuje, jaká se projeví zevnitř, až bude blok rozříznut na desky. Bloky se kupují celé, pak se řežou, brousí a leští. První výběr dopadl dobře, následně se vybíralo ve Veroně i v Carraře ještě dvakrát. Vzhledem k rozsahu dodávky byl materiál navážen z Brazílie postupně. Výsledná kresba i barevnost na fasádě dopadla podle představ,” Objasňujú autori na záver proces výberu materiálu.

Fotografia z výstavby
Fotografia z výstavbyAutor: Jakub Karlíček
Výber blokov kameňa vo Verone
Výber blokov kameňa vo VeroneAutor: Petr Páv

Autor projektu - architektonické riešenie:
Ing. arch. Petr Páv, A 32 spol. s r.o.
Ing. arch. Jitka Smolíková, A 32 spol. s r.o.

Architektonické riešenie, autorský dozor:
A 32 spol. s r.o.
V Štíhlách 2031/32, 142 00 Praha 4
www.a32.cz

Projektant, autorský dozor:
SATRA, spol. s r.o.
Sokolská 1802/32, 120 00 Praha 2
www.satra.cz

Projekt pre stavebné povolenie:
D plus projektová a inžinierska a.s.
Sokolovská 45/16, 186 00 Praha 8
www.d-plus.cz

Projekt pre realizáciu stavby:
SUNCAD, s.r.o.
Nám. Na Lužinách 2616/3, 155 00 Praha 13
www.suncad.cz

investor:
Hlavné mesto Praha
Mariánske námestie 2/2, 110 00 Praha 1, zastúpené OMI MHMP

Podklady: A 32

Poloha diela

Ing. arch. Petr Páv
Ing. arch. Jitka Smolíková
Vložené
28. august 2018
0
954
Hlavný obsahHlavný obsah
Čakajte prosím