Advertorial

Pozvánka na 2. ročník stavebného veľtrhu BigMarket na Slovensku

Na podujatí sa predstaví až 37 vystavovateľov - popredných dodávateľov stavebných materiálov a inovácií s prezentáciou...

Hotel Hirschen Spa House, Rakúsko

Novotvar v prostredí alpskej obce.

Vytvorte si kúpeľňu snov: dizajnové riešenie od značky hansgrohe

Hansgrohe - prémiová značka kúpeľňových riešení, ponúka nadčasový dizajn, technickú precíznosť a udržateľné inovácie...

Okná Internorm za minuloročné ceny + hliníkový kryt zdarma!

Využite špeciálnu akciu Internorm: okná za minuloročné ceny a hliníkový kryt úplne zadarmo. Ponuka je časovo obmedzená!

Moderné plynové technológie: Efektivita a inovácie pre 21. storočie

Sumarizácia najdôležitejších inovácií, ktoré redefinujúcich využitie tohto energetického zdroja.

Utesňovanie spodných stavieb pomocou hydro-aktívnej fólie AMPHIBIA.

AMPHIBIA 3000 GRIP 1.3 od spoločnosti ATRO predstavuje modernú hydroizolačnú technológiu, ktorá spája vysokú odolnosť,...

Dekarbonizácia individuálneho vykurovania domácností – Green Deal evolučne a nie revolučne

Ambiciózne plány EK narazili na ekonomické možnosti domácností v jednotlivých členských štátoch –...

Minimalistické dvere IDEA – technická precíznosť a čistota prevedenia

IDEA DOOR od spoločnosti JAP prináša do interiéru čistý minimalistický vzhľad vďaka bezrámovému riešeniu a precíznej...

Dom s výhľadom na údolie, Dlouhý Most (ČR)

Kontinuita riešenia od vonkajšieho obkladu až po kovania a kľučky.

Schell Vitus – osvedčené riešenie pre sprchy a umývadlá vo verejnom sektore s viac ako desaťročnou tradíciou

Nástenné nadomietkové armatúry Vitus sú mimoriadne vhodné pre rýchlu a efektívnu...

Kompozitné okná predstavujú súčasnosť a budúcnosť

Okenné profily z kompozitného materiálu RAU-FIPRO X od spoločnosti Rehau sú v porovnaní s tradičnými plastovými profilmi mnohonásobne...

Myotis - stoly 2025

Najnovší sortiment stolov pre zariadenie interiérov...

Priemyselné sklenené priečky Dorsis Digero: svetelné rozhranie pre moderné interiéry

Spojenie moderného dizajnu, funkčnosti a svetla do harmonického architektonického prvku.

Význam prirodzeného svetla pre moderné a flexibilné pracovné prostredie

Kancelárska budova Baumit v slovinskom Trzine prešla premenou na moderné a udržateľné pracovisko. Architekti kládli dôraz...

Konferencia Xella Dialóg predstaví novinky a trendy v stavebníctve

Mottom šiesteho ročníku on-line konferencie odborníkov Xella Dialóg je Efektívny návrh budov 2025+: zmeny a riešenia

Polyfunkčný objekt Dorn, Brno

Nový výrazný mestský objekt. Dielo s ambíciou tvaroslovne nadviazať na odkaz (nielen brnenskej) modernej architektúry XX. storočia v novom, súčasnom prerozprávaní.
Diela
Red 418.08.2018
10260+15
Polyfunkčný objekt Dorn, Brno
Autori: Doc. Ing. arch. Tomáš Rusín, Doc. Ing. arch Ivan WahlaSpolupráca: Ing.arch. Bořivoj Čapák, Ing .arch. Lukáš VágnerPodlažná plocha: 6652 m2Obostavaný objem: 70 917 m3Návrh: 2008 - 2014Realizácia: 2014 - 2016Adresa: Plotní , Česko 19, Brno, Česká republikaPublikované: 18. august 2018

Dielo sa dostalo do užšieho výberu poroty v aktuálnom ročníku Českej ceny za architektúru.

Polyfunkčný objekt sa nachádza v južnej časti širšieho centra Brna, v tesnej blízkosti hlavnej stanice. Voľba tehlovej fasády a dôsledná práca s remeselným detailom (najmä v parteri) začleňuje stavbu do miestneho kontextu. Nielen v súvislosti s odkazom moderny, ale napríklad aj v náväznosti na susedné materiálovo príbuzné budovy, vrátane historickej Vaňkovej strojárne. Je najväčšou stavbou so zavesenou tehlovou fasádou v Českej republike. Štíhle telo budovy nie je len formálnou kompozíciou, ale reflektuje riešenie moderných kancelárskych pracovísk. Úzka dispozícia umožnila realizovať veľkopriestorové kancelárie s dostatkom denného svetla na celej ploche pracoviska.

Foto: Ing. arch. Bořivoj Čapák
Situácia
SituáciaAutor: RAW

Výšková administratívna časť je vystavaná na polyfunkčnej trojpodlažnej podnoži. Tvoria ju dve k sebe priliehajúce, stredovo súmerné, pravouhlé lichobežníky. Úzky kancelársky blok je konzolovo vyložený nad nárožím s hlavným vstupom. Vytvára dynamický prvok celej kompozície, umocnený nízkymi pásmi okien v kosouhlých cípoch.

Foto: Ing. arch. Bořivoj Čapák

Budova je rozdelená na dva stavebné objekty. Administratívna časť s ​​obchodnými jednotkami na prízemí, parkovaním a technologickým zázemím v podzemnom podlaží prilieha k päťpodlažnému parkovaciemu domu.

Foto: Ing. arch. Bořivoj Čapák

Na nároží je pred objektom široký pás dlažby s kruhovou zatrávnenú plochou. Súčasťou priestranstva je aj nová liatinová fontána, pripomínajúca mená významných priemyselníkov 19. storočia - zakladateľov priemyselnej slávy mesta Brna. Hlavný vstup do vyššej kancelárskej časti je na nároží, z ulice Plotní. Druhý vstup ku komunikačnému jadru päťpodlažného bloku je z ulice Dornych. Päť obchodných jednotiek v parteri je prístupných priamo z chodníka. 

Foto: Ing. arch. Bořivoj Čapák
Foto: Ing. arch. Bořivoj Čapák

Fasáda celého objektu je z lícových tehál s jemnými rozdielmi v intenzite vypálenia. V parteri bol kladený dôraz na kvalitné remeselné spracovanie detailov nerezových leštených zasklievacích rámov a oceľových profilov výkladov.

Foto: Ing. arch. Bořivoj Čapák
Foto: Ing. arch. Bořivoj Čapák
Foto: Ing. arch. Bořivoj Čapák

Dispozícia

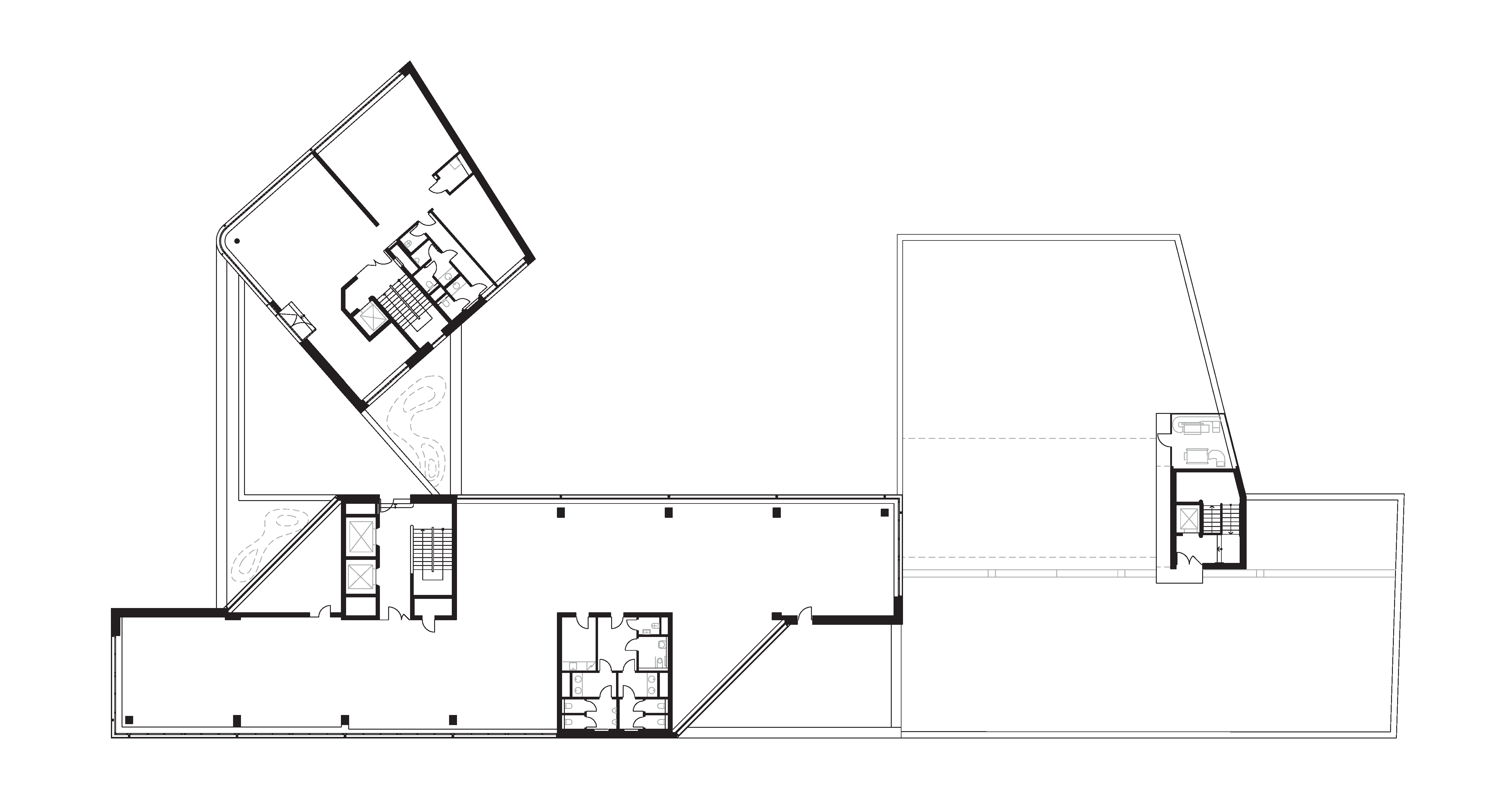
V budove sú dve komunikačné jadrá so schodiskom a výťahmi. V dvanásťpodlažnej časti pripadajú na jadro dva výťahy, v päťpodlažnej jeden. Na vertikálne jadrá v spoločnej trojpodlažnej podnoži a päťpodlažnej kancelárskej časti nadväzujú vnútorné chodby, okolo ktorých sú umiestnené kancelárie, hygienické zázemie a technické miestnosti.

Deväť najvyšších podlaží nárožnej veže je navrhnutých ako open-space kancelárie, s možnosťou delenia priečkami podľa priania nájomníka. V podzemnom podlaží je 23 parkovacích miest. Parkovacie garáže v susediacom objekte sú sprístupnené systémom D'Humyho rámp. Na štyroch pároch nadzemných polpodlaží a dvojici polpodlaží v podzemí je k dispozícii celkom 130 parkovacích miest.

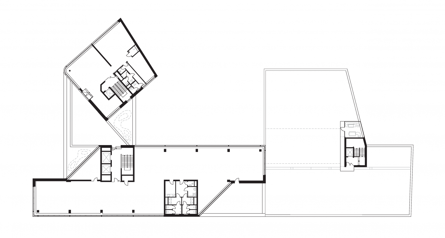
Pôdorys  prízemia
Pôdorys prízemiaAutor: RAW
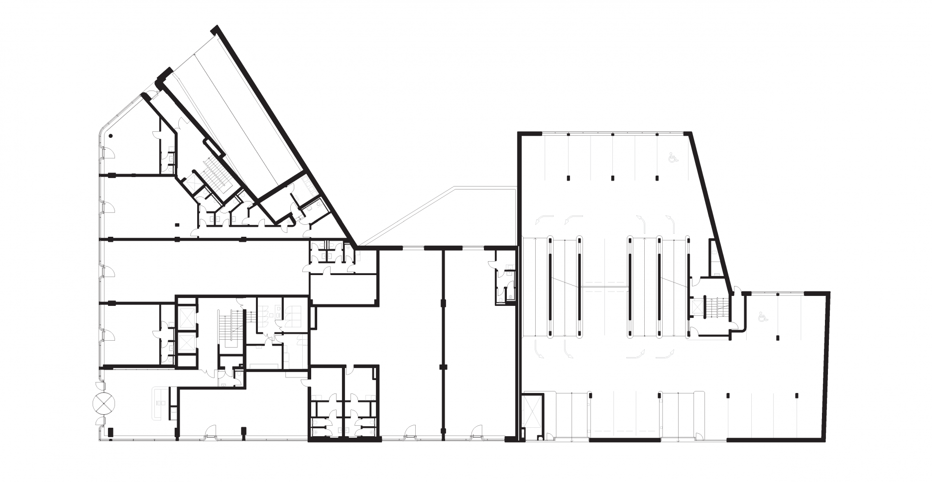
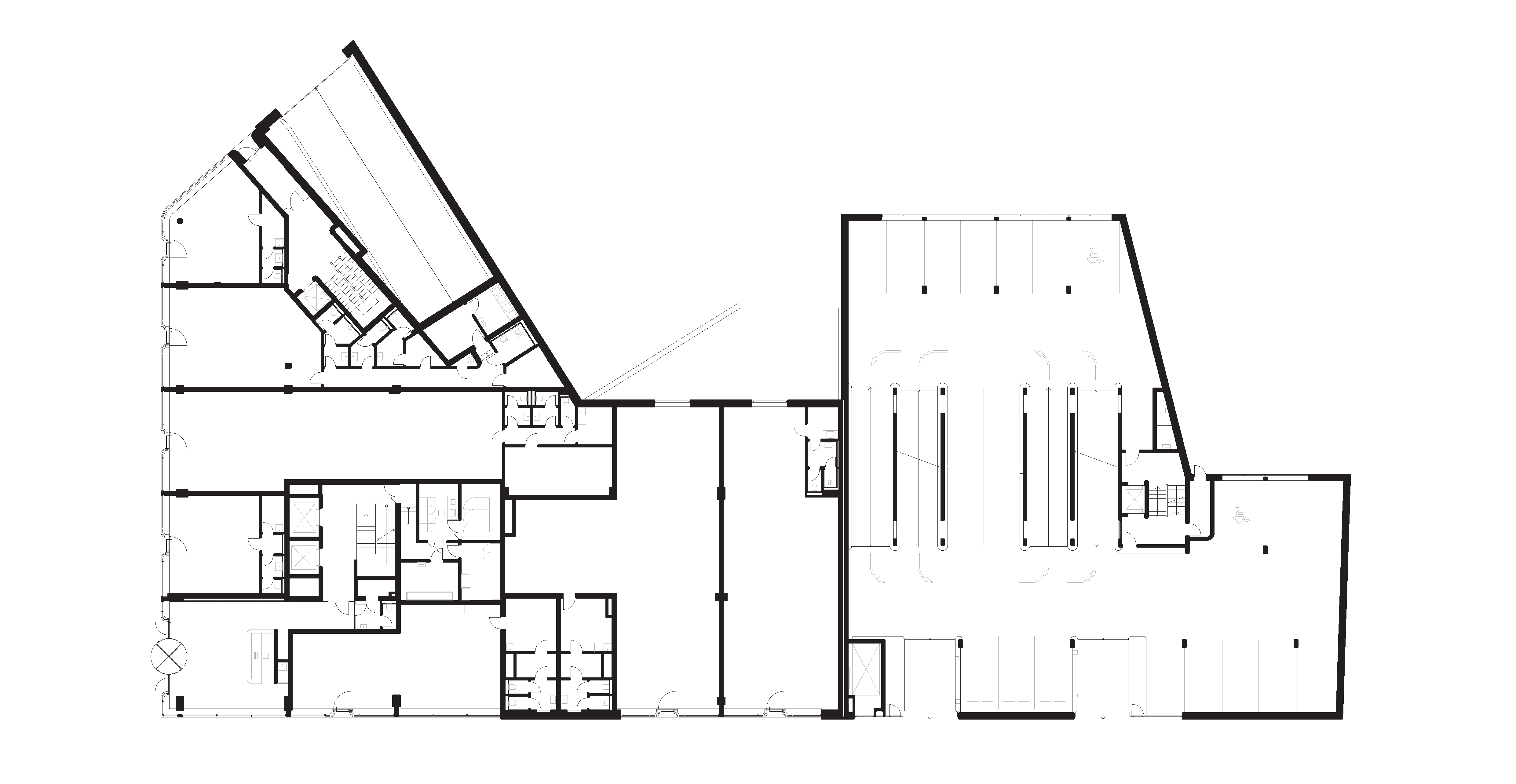
Pôdorys 4. NP
Pôdorys 4. NPAutor: RAW
Pozdĺžny rez
Pozdĺžny rezAutor: RAW
Pohľad z ulice Plotní
Pohľad z ulice PlotníAutor: RAW
Čelný pohľad
Čelný pohľadAutor: RAW

V interiéri objektu je použitý svetlý travertínový obklad, ktorý sa uplatňuje predovšetkým na schodiskách a vo vstupných halách.

Foto: Ing. arch. Bořivoj Čapák
Foto: Ing. arch. Bořivoj Čapák
Foto: Ing. arch. Bořivoj Čapák
Foto: Ing. arch. Bořivoj Čapák
Foto: Ing. arch. Bořivoj Čapák
Foto: Ing. arch. Bořivoj Čapák
Foto: Ing. arch. Bořivoj Čapák
Foto: Ing. arch. Bořivoj Čapák
Foto: Ing. arch. Bořivoj Čapák
Foto: Ing. arch. Bořivoj Čapák
Foto: Ing. arch. Bořivoj Čapák
Foto: Ing. arch. Bořivoj Čapák
Foto: Ing. arch. Bořivoj Čapák

Podklady: RAW

Poloha diela

Doc. Ing. arch. Tomáš Rusín
Doc. Ing. arch Ivan Wahla

Súvisiace články

Vložené
15. august 2018
0
1026
Hlavný obsahHlavný obsah
Čakajte prosím