Na podujatí sa predstaví až 37 vystavovateľov - popredných dodávateľov stavebných materiálov a inovácií s prezentáciou...
Novotvar v prostredí alpskej obce.
Hansgrohe - prémiová značka kúpeľňových riešení, ponúka nadčasový dizajn, technickú precíznosť a udržateľné inovácie...
Využite špeciálnu akciu Internorm: okná za minuloročné ceny a hliníkový kryt úplne zadarmo. Ponuka je časovo obmedzená!
Sumarizácia najdôležitejších inovácií, ktoré redefinujúcich využitie tohto energetického zdroja.
AMPHIBIA 3000 GRIP 1.3 od spoločnosti ATRO predstavuje modernú hydroizolačnú technológiu, ktorá spája vysokú odolnosť,...
Ambiciózne plány EK narazili na ekonomické možnosti domácností v jednotlivých členských štátoch –...
IDEA DOOR od spoločnosti JAP prináša do interiéru čistý minimalistický vzhľad vďaka bezrámovému riešeniu a precíznej...
Kontinuita riešenia od vonkajšieho obkladu až po kovania a kľučky.
Nástenné nadomietkové armatúry Vitus sú mimoriadne vhodné pre rýchlu a efektívnu...
Okenné profily z kompozitného materiálu RAU-FIPRO X od spoločnosti Rehau sú v porovnaní s tradičnými plastovými profilmi mnohonásobne...
Najnovší sortiment stolov pre zariadenie interiérov...
Spojenie moderného dizajnu, funkčnosti a svetla do harmonického architektonického prvku.
Kancelárska budova Baumit v slovinskom Trzine prešla premenou na moderné a udržateľné pracovisko. Architekti kládli dôraz...
Mottom šiesteho ročníku on-line konferencie odborníkov Xella Dialóg je Efektívny návrh budov 2025+: zmeny a riešenia

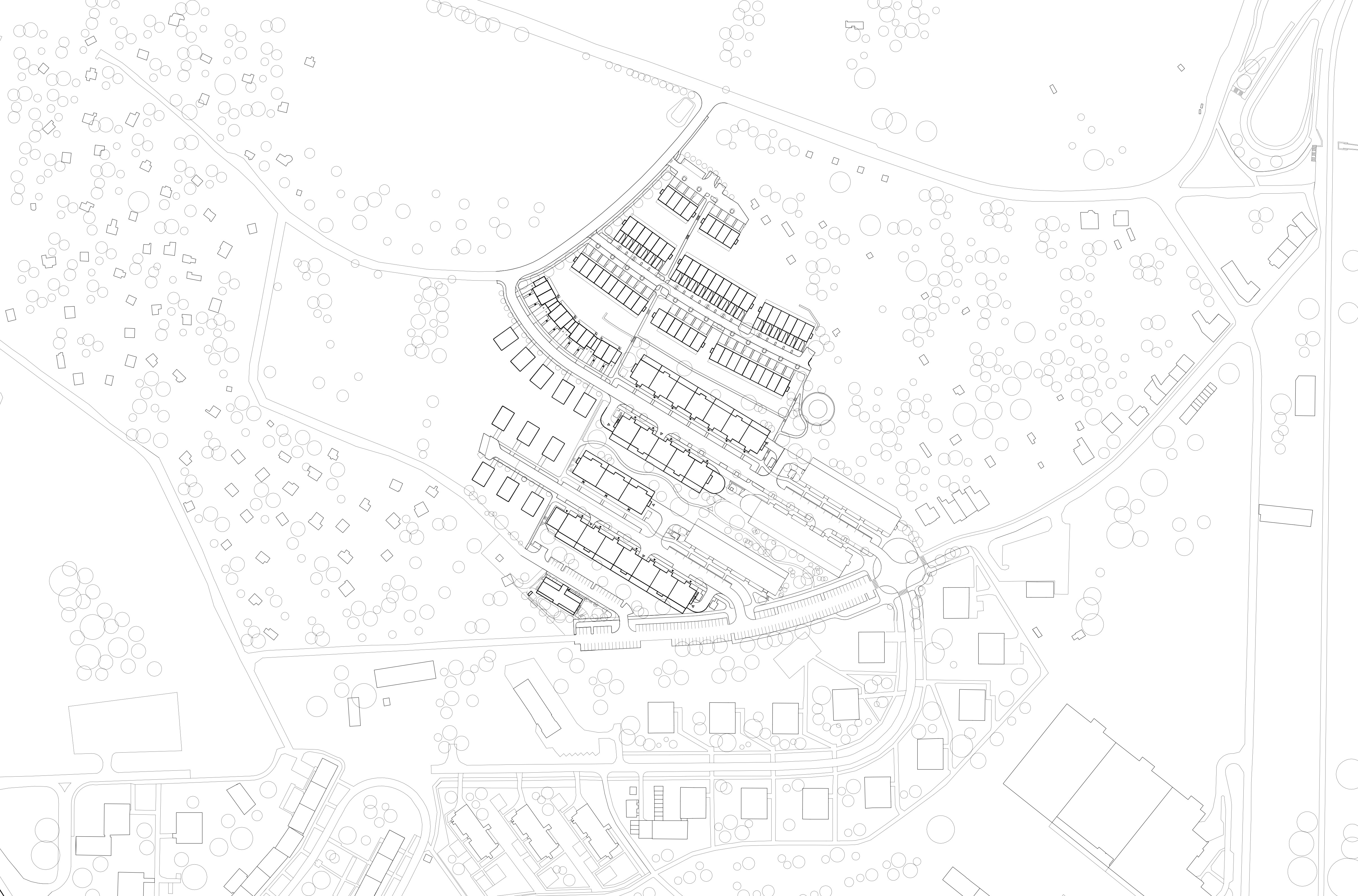
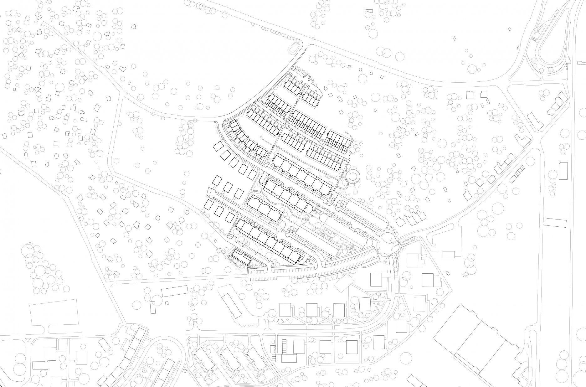
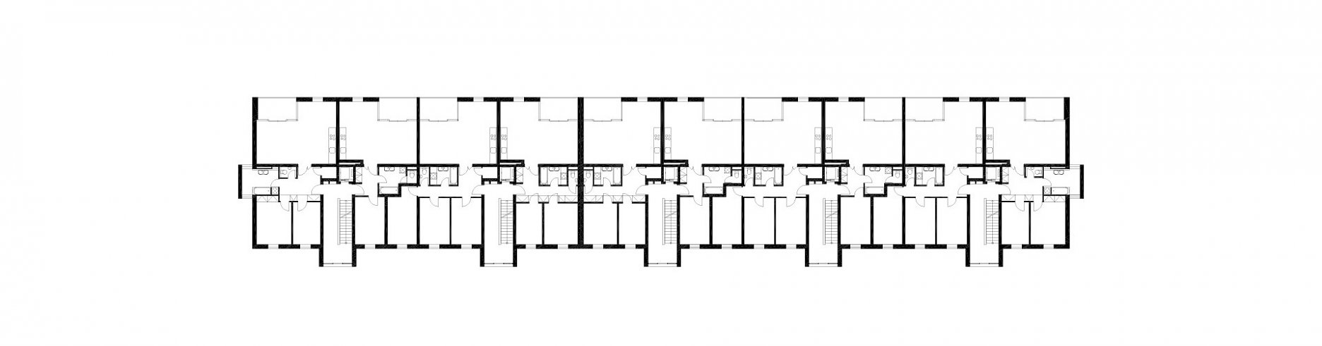
Obytný súbor Panorama sa nachádza v brnenskej časti Bystrc, na rozhraní mesta a prímestskej krajiny. Zo svahovitého pozemku, zvažujúceho sa smerom na sever, je krásny výhľad na hladinu Brnianskej priehrady. Prírodný horizont údolia však narušuje skupina panelových domov z 80. rokov, ktoré sú umiestnené na hrebeni svahu nad novou obytnou zónou.
"Naším cílem bylo vytvořit obytnou čtvrť. Tedy nikoliv abstraktní rastr či ornament vzniklý mechanickým řazením bytových domů. Navrhli jsme proto strukturovaný celek s centrem tvořeným piazzetou vymezenou oblými, dostředivými objekty občanské vybavenosti - tedy hospodou či kavárnou - a veřejnými prostory různého, avšak jasného charakteru. Máme zde tedy ulice s podélným parkováním mezi frontami obytných domů traktovanými vertikálami jejich schodišť, park s dětským hřištěm mezi zadními frontami, široké obytné ulice mezi řadami rodinných domů." vysvetľuje autor realizácie Petr Pelčák.
Urbanistická štruktúra graduje od päty svahu po jeho hrebeň. Zástavba "plynie" pozdĺž horizontálnych ulíc osadených vo svahu. Po vertikále je odstupňovaná od rodinných domov, cez bytovky, až po výškové panelové domy z konca minulého storočia na hrebeni kopca. "Přírodní horizonty přehrady ničící skupina bodových paneláků necitlivě umístěná na vrcholu svahu je takto zapojena do jeho zástavby a tím ztrácí něco ze své agresivity," dodáva architekt.
Ulice vedené po vrstevnici tvoria krivku - "hadovku" stúpajúcu či klesajúcu po svahu. Najkratšie pešie spojenie s brehom priehrady umožňuje chodník vedený po spádnici, ktorý spája najvyššie a najnižšie položenú časť obytného súboru. Delí ho na časť zastavanú bytovými domami na východe a rodinnými domami na západe. Zástavba rodinných domov svojou drobnejšou mierkou vytvára prechod do prímestskej krajiny s chatovými osadami nad priehradou.
Kvalitu bývania na periférii mesta zvyšuje ponuka vonkajších obytných plôch pri väčšine bytov - loggie, balkóny a strešné terasy. "Uskakované" najvyššie podlažie obytných blokov, výrazne vysunuté konzoly balkónov a zasunuté niky loggií výrazne členia hmotu. Tiene na fasáde zdôrazňujú trojrozmernosť a plasticitu zástavby v svahu. "Brání tak „slití“ jejího vjemu do jednotvárné hmoty a tak zdůrazňují morfologii místa," dodáva Pelčák.
Obytný súbor bol realizovaný v dvoch etapách (avšak nie v navrhovanom rozsahu - severovýchodnú časť územia sa developerovi nepodarilo získať). Postavených bolo 354 bytov a 61 domov.
Podklady: Petr Pelčák