Advertorial

Pozvánka na 2. ročník stavebného veľtrhu BigMarket na Slovensku

Na podujatí sa predstaví až 37 vystavovateľov - popredných dodávateľov stavebných materiálov a inovácií s prezentáciou...

Hotel Hirschen Spa House, Rakúsko

Novotvar v prostredí alpskej obce.

Vytvorte si kúpeľňu snov: dizajnové riešenie od značky hansgrohe

Hansgrohe - prémiová značka kúpeľňových riešení, ponúka nadčasový dizajn, technickú precíznosť a udržateľné inovácie...

Okná Internorm za minuloročné ceny + hliníkový kryt zdarma!

Využite špeciálnu akciu Internorm: okná za minuloročné ceny a hliníkový kryt úplne zadarmo. Ponuka je časovo obmedzená!

Moderné plynové technológie: Efektivita a inovácie pre 21. storočie

Sumarizácia najdôležitejších inovácií, ktoré redefinujúcich využitie tohto energetického zdroja.

Utesňovanie spodných stavieb pomocou hydro-aktívnej fólie AMPHIBIA.

AMPHIBIA 3000 GRIP 1.3 od spoločnosti ATRO predstavuje modernú hydroizolačnú technológiu, ktorá spája vysokú odolnosť,...

Dekarbonizácia individuálneho vykurovania domácností – Green Deal evolučne a nie revolučne

Ambiciózne plány EK narazili na ekonomické možnosti domácností v jednotlivých členských štátoch –...

Minimalistické dvere IDEA – technická precíznosť a čistota prevedenia

IDEA DOOR od spoločnosti JAP prináša do interiéru čistý minimalistický vzhľad vďaka bezrámovému riešeniu a precíznej...

Dom s výhľadom na údolie, Dlouhý Most (ČR)

Kontinuita riešenia od vonkajšieho obkladu až po kovania a kľučky.

Schell Vitus – osvedčené riešenie pre sprchy a umývadlá vo verejnom sektore s viac ako desaťročnou tradíciou

Nástenné nadomietkové armatúry Vitus sú mimoriadne vhodné pre rýchlu a efektívnu...

Kompozitné okná predstavujú súčasnosť a budúcnosť

Okenné profily z kompozitného materiálu RAU-FIPRO X od spoločnosti Rehau sú v porovnaní s tradičnými plastovými profilmi mnohonásobne...

Myotis - stoly 2025

Najnovší sortiment stolov pre zariadenie interiérov...

Priemyselné sklenené priečky Dorsis Digero: svetelné rozhranie pre moderné interiéry

Spojenie moderného dizajnu, funkčnosti a svetla do harmonického architektonického prvku.

Význam prirodzeného svetla pre moderné a flexibilné pracovné prostredie

Kancelárska budova Baumit v slovinskom Trzine prešla premenou na moderné a udržateľné pracovisko. Architekti kládli dôraz...

Konferencia Xella Dialóg predstaví novinky a trendy v stavebníctve

Mottom šiesteho ročníku on-line konferencie odborníkov Xella Dialóg je Efektívny návrh budov 2025+: zmeny a riešenia

Top´rezidence Šárecké údolí, Praha

Od súťaže po realizáciu.
Diela
Red 408.09.2019
16660+9
Top´rezidence Šárecké údolí, Praha
Autori: Ing. arch. Oldřich Hájek, prof. Ing. arch. Jaroslav Šafer, Ing. arch. Pavel Lesenský, Ing. arch. Jakub Koníř, Ing. arch. Olga KostřížováSpolupráca: Ing. Aleš Marek (Projektant), Ing. Karel Chlupáč (Projektant)Investor: KKCG Real Estate Návrh: 2013 - 2015Realizácia: 2015 - 2017Adresa: V Šáreckém údolí 2770, Praha, Česká republikaPublikované: 8. september 2019

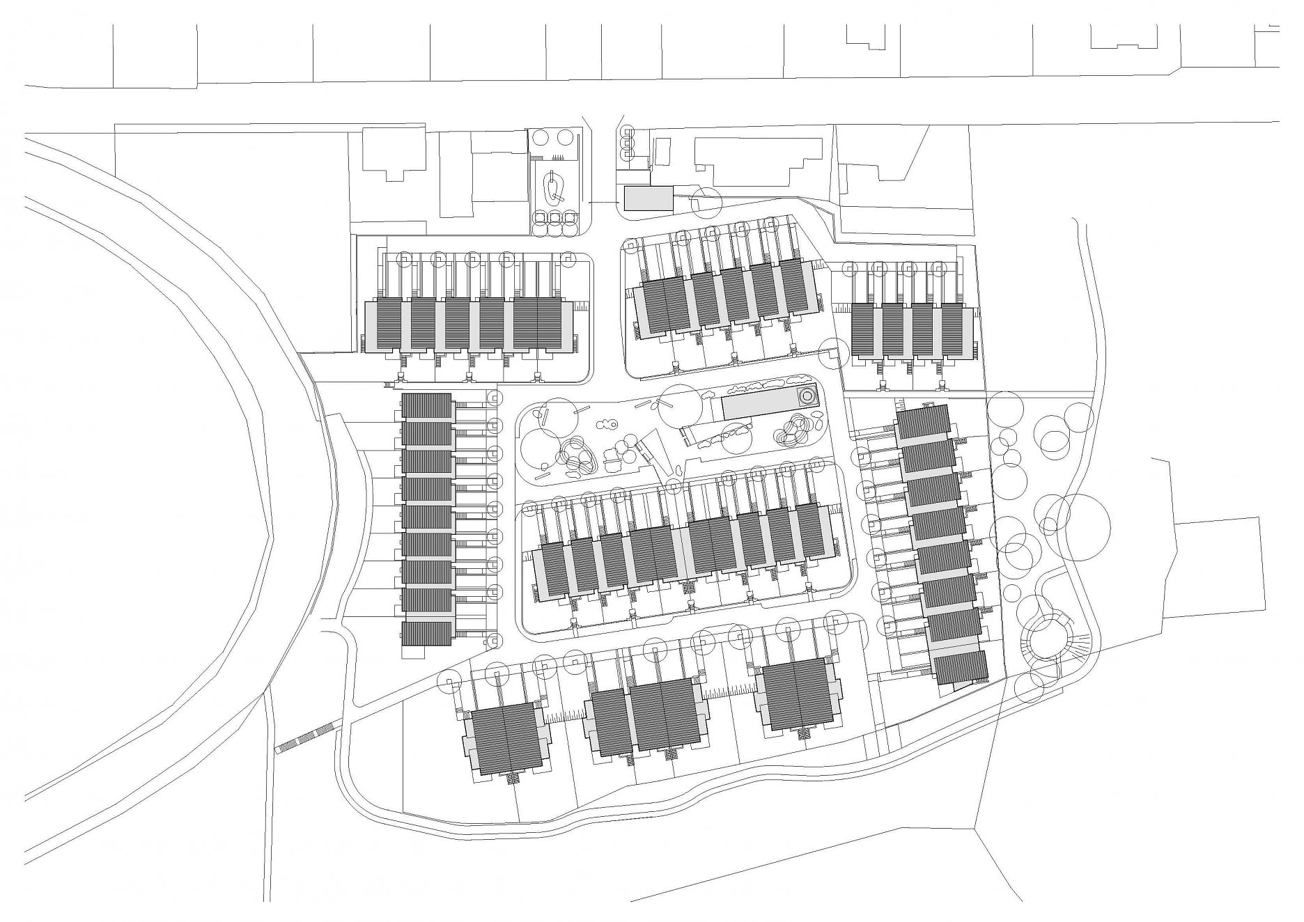
Obytný súbor, na mieste bývalej tehelne (Baráčkova cihelna), vyrástol v prostredí prírodného parku Šárka - Lysolaje. Projekt kolektívu Šafer Hájek architekti je výsledkom vyzvanej architektonickej súťaže, ktorej sa zúčastnila desiatka ateliérov. Zadanie, okrem kvality architektonického riešenia zástavby, kládlo zvýšený dôraz na stvárnenie verejného priestoru a zakomponovanie jestvujúcej zelene.

Foto: Filip Šlapal

Kľúčovým urbanistickým princípom zrealizovaného projektu je vytvorenie rozľahlého poloverejného parku v ťažisku areálu. Otvorený, centrálne komponovaný priestor necháva vyniknúť zachovaný symbol pôvodného využitia lokality - štíhly komín bývalej tehelne. “Parkový prostor má charakter „vesnického parku / návsi“ a umožňuje všestranné společenské využití včetně aktivního odpočinku,” vysvetľujú architekti.

Foto: Filip Šlapal
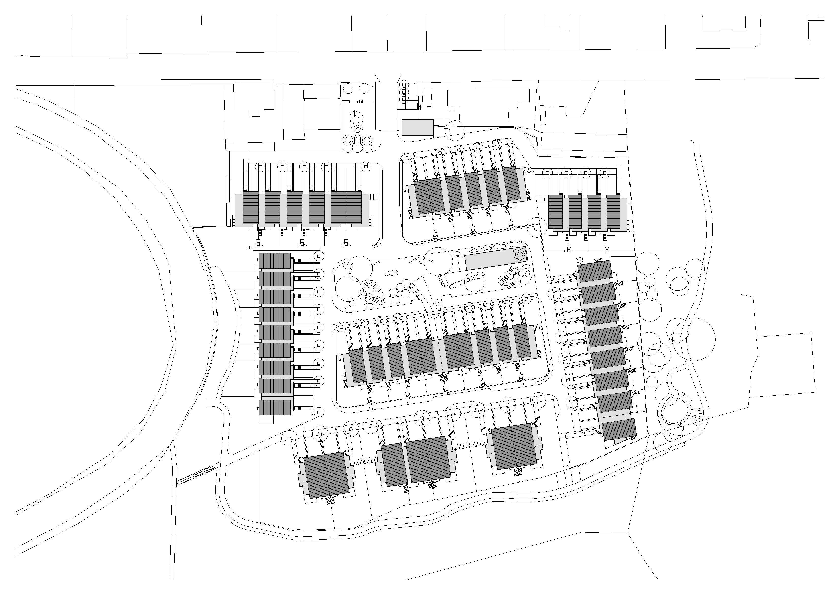
Situácia,
Situácia,autor: Šafer Hájek architekti

Výrazná vertikála pomáha definovať centrálnu zónu, zároveň sa stáva súčasťou konštrukcie spoločnej klubovne. Susedia majú možnosť posedenia v interiéri, alebo na otvorenej terase pri vodnej ploche.

Foto: Filip Šlapal

V parku sú ako deliace prvky využité neopracované kamene a lichoběžníkové drôtené konštrukcie porastené popínavými rastlinami. Skupiny stromov tvorie malé háje, ktoré vyrastajú z organicky modelovaného trávnika.

Foto: Filip Šlapal

Fasády radových domov smerujú vždy do okolitej zelene alebo centrálneho parku. Bloky nie sú nikdy umiestnené oproti sebe. Nevzniká tak stiesnený koridor so zástavbou na oboch stranách.

Foto: Filip Šlapal

“Architektura řadových domů je založena na myšlence pomyslného dělení základního obdélníka na dva menší, které jsou proti sobě posunuté a do sebe zaklesnuté“, objasňujú zvolené riešenie autori. Spomínaný posun je reprezentovaný prienikom dvojice materiálovo a tvarovo (šikmá versus plochá strecha) odlíšených blokov.

Foto: Filip Šlapal
Foto: Filip Šlapal
Foto: Filip Šlapal
Foto: Filip Šlapal

Všetky objekty sú navrhnuté v nízkoenergetickom štandarde. Prízemie je zodvihnuté o polovicu výšky suterénu, v ktorom vznikol priestor pre garáže. Na zvýšenú úroveň nadväzujú súkromné predzáhradky.

Foto: Filip Šlapal
Foto: Filip Šlapal
Pôdorys 1. PP,
Pôdorys 1. PP,autor: Šafer Hájek architekti
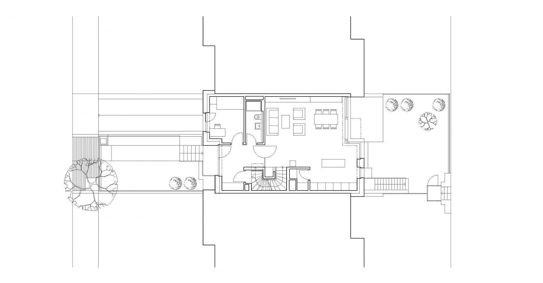
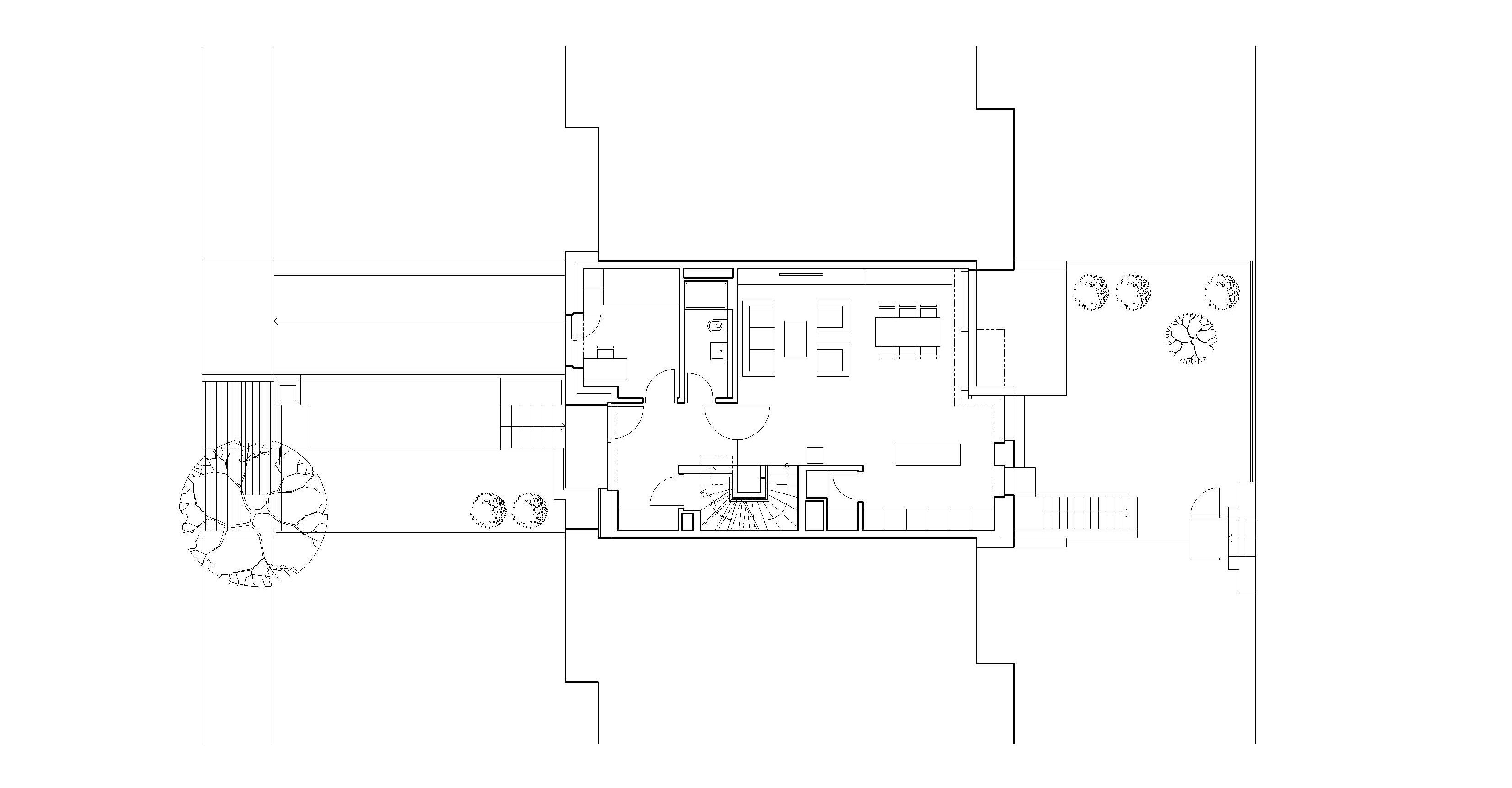
Pôdorys 1. NP,
Pôdorys 1. NP,autor: Šafer Hájek architekti
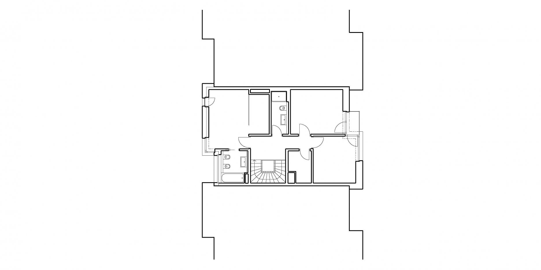
Pôdorys 2. NP,
Pôdorys 2. NP,autor: Šafer Hájek architekti
Rez,
Rez,autor: Šafer Hájek architekti
Pohľady,
Pohľady,autor: Šafer Hájek architekti
Pohľady,
Pohľady,autor: Šafer Hájek architekti

Poloha diela

Ing. arch. Oldřich Hájek
prof. Ing. arch. Jaroslav Šafer
Ing. arch. Pavel Lesenský
Ing. arch. Jakub Koníř
Ing. arch. Olga Kostřížová

Súvisiace články

Vložené
28. máj 2019
0
1666
Hlavný obsahHlavný obsah
Čakajte prosím