Advertorial

Pozvánka na 2. ročník stavebného veľtrhu BigMarket na Slovensku

Na podujatí sa predstaví až 37 vystavovateľov - popredných dodávateľov stavebných materiálov a inovácií s prezentáciou...

Hotel Hirschen Spa House, Rakúsko

Novotvar v prostredí alpskej obce.

Vytvorte si kúpeľňu snov: dizajnové riešenie od značky hansgrohe

Hansgrohe - prémiová značka kúpeľňových riešení, ponúka nadčasový dizajn, technickú precíznosť a udržateľné inovácie...

Okná Internorm za minuloročné ceny + hliníkový kryt zdarma!

Využite špeciálnu akciu Internorm: okná za minuloročné ceny a hliníkový kryt úplne zadarmo. Ponuka je časovo obmedzená!

Moderné plynové technológie: Efektivita a inovácie pre 21. storočie

Sumarizácia najdôležitejších inovácií, ktoré redefinujúcich využitie tohto energetického zdroja.

Utesňovanie spodných stavieb pomocou hydro-aktívnej fólie AMPHIBIA.

AMPHIBIA 3000 GRIP 1.3 od spoločnosti ATRO predstavuje modernú hydroizolačnú technológiu, ktorá spája vysokú odolnosť,...

Dekarbonizácia individuálneho vykurovania domácností – Green Deal evolučne a nie revolučne

Ambiciózne plány EK narazili na ekonomické možnosti domácností v jednotlivých členských štátoch –...

Minimalistické dvere IDEA – technická precíznosť a čistota prevedenia

IDEA DOOR od spoločnosti JAP prináša do interiéru čistý minimalistický vzhľad vďaka bezrámovému riešeniu a precíznej...

Dom s výhľadom na údolie, Dlouhý Most (ČR)

Kontinuita riešenia od vonkajšieho obkladu až po kovania a kľučky.

Schell Vitus – osvedčené riešenie pre sprchy a umývadlá vo verejnom sektore s viac ako desaťročnou tradíciou

Nástenné nadomietkové armatúry Vitus sú mimoriadne vhodné pre rýchlu a efektívnu...

Kompozitné okná predstavujú súčasnosť a budúcnosť

Okenné profily z kompozitného materiálu RAU-FIPRO X od spoločnosti Rehau sú v porovnaní s tradičnými plastovými profilmi mnohonásobne...

Myotis - stoly 2025

Najnovší sortiment stolov pre zariadenie interiérov...

Priemyselné sklenené priečky Dorsis Digero: svetelné rozhranie pre moderné interiéry

Spojenie moderného dizajnu, funkčnosti a svetla do harmonického architektonického prvku.

Význam prirodzeného svetla pre moderné a flexibilné pracovné prostredie

Kancelárska budova Baumit v slovinskom Trzine prešla premenou na moderné a udržateľné pracovisko. Architekti kládli dôraz...

Konferencia Xella Dialóg predstaví novinky a trendy v stavebníctve

Mottom šiesteho ročníku on-line konferencie odborníkov Xella Dialóg je Efektívny návrh budov 2025+: zmeny a riešenia

Rekonštrukcia a modernizácia letného kina, Tišnov (ČR)

Na ďalších päťdesiat rokov.
Diela
Red 308.08.2023
7520+12
Rekonštrukcia a modernizácia letného kina, Tišnov (ČR)
Autori: Ing. arch. Pavel Hude, Ing. arch. Lena Vitorino, Ing. arch. Boris HladkýSpolupráca: Ing. arch. Maroš Belopotocký, Ing. arch. Nikola SlámováInvestor: Mesto TišnovInvestičný náklad: 0,97 mil. €Návrh: 2019 - 2020Realizácia: 2021 - 2022Adresa: Hornická 1725,, Tišnov, SlovenskoPublikované: 8. august 2023

Príspevok k aktuálnej téme letných kín a amfiteátrov. Kvalitná realizácia v Tišnove oživuje areál zo začiatku 70. rokov minulého storočia.

Letné kino na východnom okraji zastavaného územia deväťtisícového juhomoravského mesta postavili občania v rámci Akcie Z. Stavba z obdobia normalizácie využíva svahovitý terén na úpätí kopca Klucanina. Komplex s parabolickým projekčným plátnom, javiskom, hľadiskom pre 770 divákov a premietacím objektom sa po takmer paťdesiatich rokoch prevádzky dostal na hranicu svojej životnosti. Východiskom bola rozsiahla rekonštrukcia a modernizácia, ktorá je podľa slov autorov z brnianskeho ateliéru PLUS MÍNUS NULA "koncipována tak, aby byly splněny soudobé požadavky na multifunkční kulturní areál při zachování stávajícího génia loci." 

Zmenou prešli takmer všetky funkčné časti kina - javisko po novom umožňuje organizovanie kultúrnych akcií rôznej mierky, pohodlné hľadisko spĺňa krivku viditeľnosti pre 536 divákov, premietací objekt zastrešuje bar a zázemie. 

Ako charakteristický prvok Letného kina v Tišnove zachovali architekti oceľovú konštrukciu premietacieho plátna. Pôvodnú parabolickú plochu však nahradilo rovné plátno, zodpovedajúce súdobým audio-vizuálnym štandardom.

Architektonické riešenie jednotlivých častí kina, voľba materiálu a farebnosť sú podľa architektov zvolené s ohľadom na vzťah areálu letného kina a okolitej prírody. Hľadisko s bočnými schodiskami tvoria prefabrikovaných betónové dielce, na ktorých sú osadené oceľové lavice s agátovými lamelami. Betónové javisko a okolité spevnené plochy z prefabrikovaných veľkoformátových dlažieb umožňujú inštaláciu rôznych scén, prispôsobených charakteru budúcich podujatí. Premietací objekt s výrazným betónovým zastrešením baru je obložený trapézovým plechom, ktorý je zároveň použitý aj na zastrešenie oceľovej konštrukcie premietacieho plátna.

Foto: Jan Cága
Foto: Jan Cága
Foto: Jan Cága
Foto: Jan Cága
Foto: Jan Cága
Situácia
SituáciaAutor: PLUS MÍNUS NULA
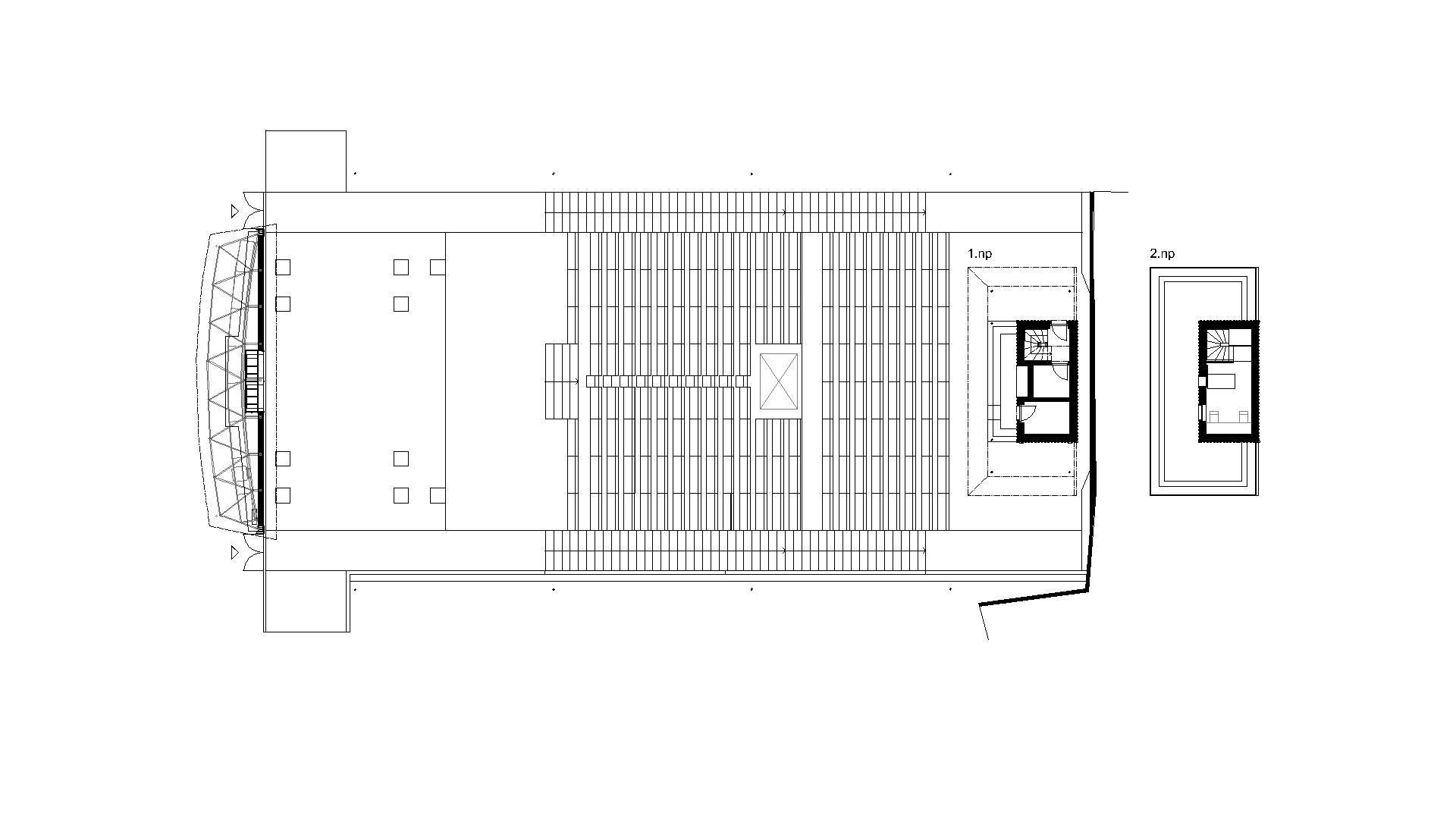
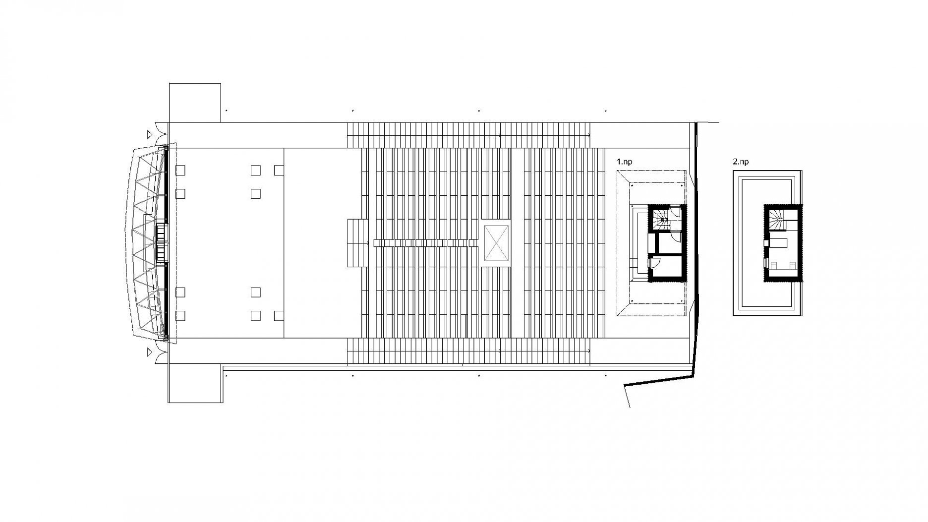
Pôdorys
PôdorysAutor: PLUS MÍNUS NULA
Rez
RezAutor: PLUS MÍNUS NULA
Rez
RezAutor: PLUS MÍNUS NULA
Pohľad
PohľadAutor: PLUS MÍNUS NULA
Foto: Jan Cága
Foto: Jan Cága
Foto: Jan Cága
Foto: Jan Cága
Foto: Jan Cága
Foto: Jan Cága
Foto: Jan Cága
Foto: Jan Cága
Foto: Jan Cága
Foto: Jan Cága
Foto: Jan Cága
Foto: Jan Cága
Foto: Jan Cága
Foto: Jan Cága
Stav areálu pred rekonštrukciou
Stav areálu pred rekonštrukciouFoto: PLUS MÍNUS NULA

Podklady: PLUS MÍNUS NULA
Fotografie: Jan Cága

Poloha diela

Ing. arch. Pavel Hude
Ing. arch. Lena Vitorino
Ing. arch. Boris Hladký
Vložené
25. júl 2023
0
752
Hlavný obsahHlavný obsah
Čakajte prosím