Na podujatí sa predstaví až 37 vystavovateľov - popredných dodávateľov stavebných materiálov a inovácií s prezentáciou...
Novotvar v prostredí alpskej obce.
Hansgrohe - prémiová značka kúpeľňových riešení, ponúka nadčasový dizajn, technickú precíznosť a udržateľné inovácie...
Využite špeciálnu akciu Internorm: okná za minuloročné ceny a hliníkový kryt úplne zadarmo. Ponuka je časovo obmedzená!
Sumarizácia najdôležitejších inovácií, ktoré redefinujúcich využitie tohto energetického zdroja.
AMPHIBIA 3000 GRIP 1.3 od spoločnosti ATRO predstavuje modernú hydroizolačnú technológiu, ktorá spája vysokú odolnosť,...
Ambiciózne plány EK narazili na ekonomické možnosti domácností v jednotlivých členských štátoch –...
IDEA DOOR od spoločnosti JAP prináša do interiéru čistý minimalistický vzhľad vďaka bezrámovému riešeniu a precíznej...
Kontinuita riešenia od vonkajšieho obkladu až po kovania a kľučky.
Nástenné nadomietkové armatúry Vitus sú mimoriadne vhodné pre rýchlu a efektívnu...
Okenné profily z kompozitného materiálu RAU-FIPRO X od spoločnosti Rehau sú v porovnaní s tradičnými plastovými profilmi mnohonásobne...
Najnovší sortiment stolov pre zariadenie interiérov...
Spojenie moderného dizajnu, funkčnosti a svetla do harmonického architektonického prvku.
Kancelárska budova Baumit v slovinskom Trzine prešla premenou na moderné a udržateľné pracovisko. Architekti kládli dôraz...
Mottom šiesteho ročníku on-line konferencie odborníkov Xella Dialóg je Efektívny návrh budov 2025+: zmeny a riešenia

Civilná, neokázalá architektúra. Efektívne priestorové riešenie a multifunkčná náplň.
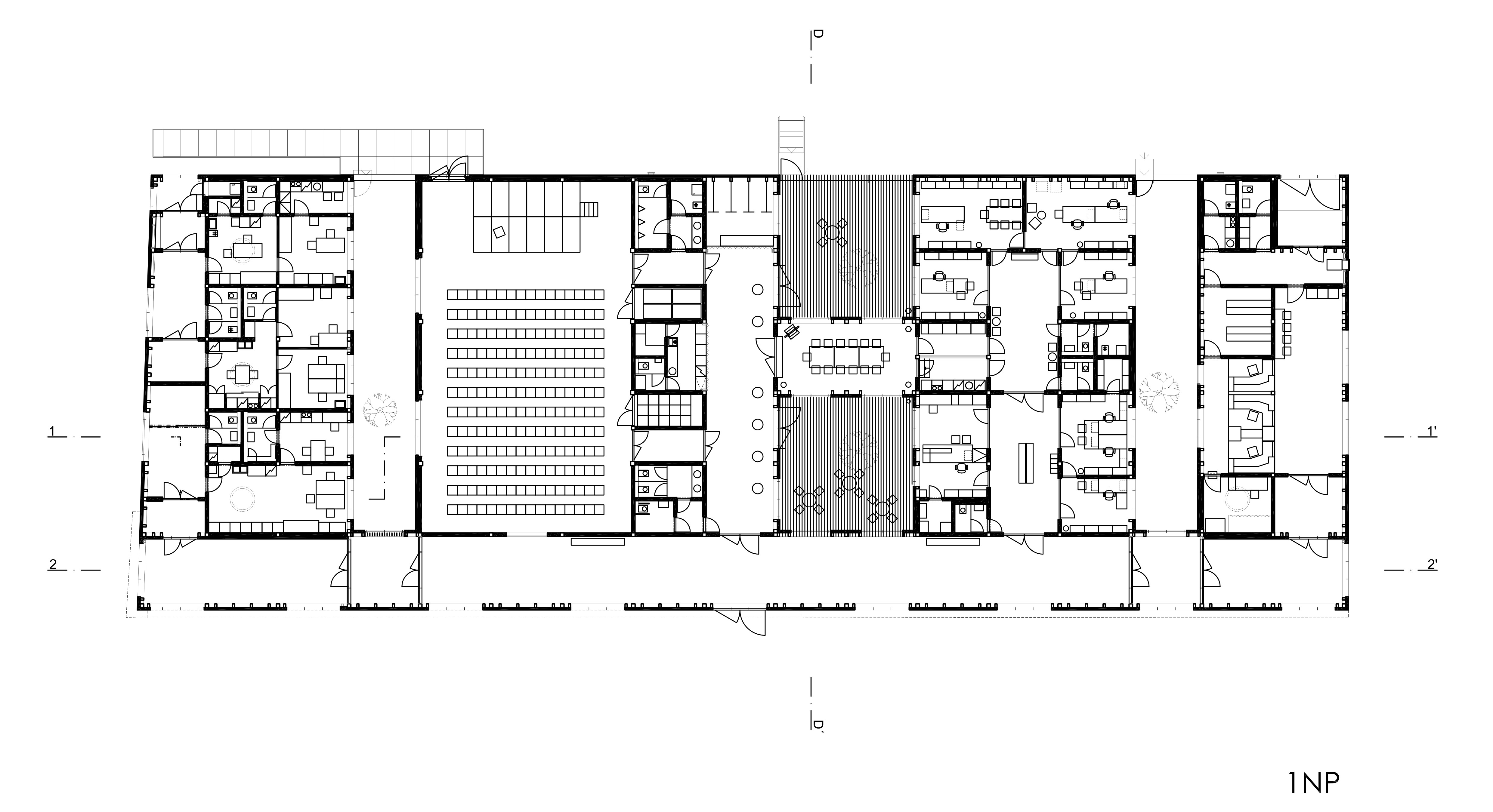
Zadanie a lokalita
Trojtisícová pražská časť Ďáblice má od minulého roka novú radnicu. Mestskej časti už roky chýba prirodzené centrum. Práve k budovaniu infraštruktúry v obytnej zóne má prispieť úrad, ktorý vznikol na mieste bývalého kina. Multifunkčné využitie objektu zabezpečuje spoločenská sála, pošta a ordinácie lekárov. Neďaleko navyše v uplynulých mesiacoch vyrástlo komunitné centrum a parčík.
Architektúra
Podľa slov architektov bolo ich prioritou navrhnúť jednoduchý bezbariérový objekt, ktorý nebude monumentom, ale skôr “inštrumentom” pre obyvateľov všetkých vekových kategórií. Podstatou riešenia je otvorenosť a transparentnosť, stavebná aj funkčná. Uličné fasády sú akcentované striebornou metalickou farbou nanášanou cez šablónu, ktorá vytvára výrazný geometrický vzor.
Priestorové riešenie
Budova je rozdelená na štyri funkčné celky - ordinácie, multifunkčnú sálu, úrad a poštu. Spomenuté časti sú prepojené vestibulom. Vestibul funguje ako podlubie a rozptylová plocha pri rôznych kultúrnych podujatiach (plesy, zábavy, koncerty, príležitostne i výstavy). V strede je átrium, ktoré napomáha presvetleniu vnútorných priestorov. Hranice medzi jednotlivými časťami sa môžu meniť podľa potreby a aktuálneho využitia budovy.
Konštrukcia a technológie
Základnú nosnú konštrukciu tvorí skelet z dreveného masívu s modulom 4x4 m. Budova je zo strany exteriéru opláštená tepelnoizolačnými sendvičovými panelmi. Steny z liaporbetónových tvárnic slúžia ako zavetrenie konštrukcie a zlepšujú akustické parametre vnútorného priestoru. Stavba je zastrešená extenzívnou zelenou strechou. Kúrenie a chladenie zabezpečujú tepelné čerpadlá typu vzduch/vzduch.
Interiér
Architekti pri návrhu pracovali s neutrálnymi prírodnými materiálmi, ktoré reprezentujú civilný charakter vnútorného priestoru a vyznieva vďaka nim hra svetla a tieňa.
Podklady: A.LT architekti