Advertorial

Pozvánka na 2. ročník stavebného veľtrhu BigMarket na Slovensku

Na podujatí sa predstaví až 37 vystavovateľov - popredných dodávateľov stavebných materiálov a inovácií s prezentáciou...

Hotel Hirschen Spa House, Rakúsko

Novotvar v prostredí alpskej obce.

Vytvorte si kúpeľňu snov: dizajnové riešenie od značky hansgrohe

Hansgrohe - prémiová značka kúpeľňových riešení, ponúka nadčasový dizajn, technickú precíznosť a udržateľné inovácie...

Okná Internorm za minuloročné ceny + hliníkový kryt zdarma!

Využite špeciálnu akciu Internorm: okná za minuloročné ceny a hliníkový kryt úplne zadarmo. Ponuka je časovo obmedzená!

Moderné plynové technológie: Efektivita a inovácie pre 21. storočie

Sumarizácia najdôležitejších inovácií, ktoré redefinujúcich využitie tohto energetického zdroja.

Utesňovanie spodných stavieb pomocou hydro-aktívnej fólie AMPHIBIA.

AMPHIBIA 3000 GRIP 1.3 od spoločnosti ATRO predstavuje modernú hydroizolačnú technológiu, ktorá spája vysokú odolnosť,...

Dekarbonizácia individuálneho vykurovania domácností – Green Deal evolučne a nie revolučne

Ambiciózne plány EK narazili na ekonomické možnosti domácností v jednotlivých členských štátoch –...

Minimalistické dvere IDEA – technická precíznosť a čistota prevedenia

IDEA DOOR od spoločnosti JAP prináša do interiéru čistý minimalistický vzhľad vďaka bezrámovému riešeniu a precíznej...

Dom s výhľadom na údolie, Dlouhý Most (ČR)

Kontinuita riešenia od vonkajšieho obkladu až po kovania a kľučky.

Schell Vitus – osvedčené riešenie pre sprchy a umývadlá vo verejnom sektore s viac ako desaťročnou tradíciou

Nástenné nadomietkové armatúry Vitus sú mimoriadne vhodné pre rýchlu a efektívnu...

Kompozitné okná predstavujú súčasnosť a budúcnosť

Okenné profily z kompozitného materiálu RAU-FIPRO X od spoločnosti Rehau sú v porovnaní s tradičnými plastovými profilmi mnohonásobne...

Myotis - stoly 2025

Najnovší sortiment stolov pre zariadenie interiérov...

Priemyselné sklenené priečky Dorsis Digero: svetelné rozhranie pre moderné interiéry

Spojenie moderného dizajnu, funkčnosti a svetla do harmonického architektonického prvku.

Význam prirodzeného svetla pre moderné a flexibilné pracovné prostredie

Kancelárska budova Baumit v slovinskom Trzine prešla premenou na moderné a udržateľné pracovisko. Architekti kládli dôraz...

Konferencia Xella Dialóg predstaví novinky a trendy v stavebníctve

Mottom šiesteho ročníku on-line konferencie odborníkov Xella Dialóg je Efektívny návrh budov 2025+: zmeny a riešenia

Náboženské a kultúrne centrum českej a slovenskej obce v Londýne

Citlivá rekonštrukcia areálu vily z 19 storočia zbiera uznanie u odbornej verejnosti.
Diela
Red 316.10.2017
18390+17
Náboženské a kultúrne centrum českej a slovenskej obce v Londýne
Autori: M.A. Patrick Inglis, B.A. Jamal Badrashi, M.A. Kim LoddoPodlažná plocha: 752 m2Návrh: 2015 - 2016Realizácia: 2016 - 2017Adresa: Lonsdale Rd. 39 , London, Barnes , Spojené kráľovstvoPublikované: 16. október 2017

O novom sídle česko-slovenskej charitatívnej organizácie Velehrad v Londýnskej štvrti Barnes a jeho renovácii sa minulý mesiac písalo v prestížnom Architect Journal. Projekt Londýnskeho ateliéru Inglis Badrashi Loddo vytvoril ideálne zázemie pre kultúrne, duchovné a spoločenské akcie určené českým a slovenským krajanom.

Foto: David Grandorge

Organizácia sa zo zvojho predošlého sídla v rezidenčnej štvrti Notting Hill sťahovala do vily Woolborough, kde našla priestory pre svoje rastúce aktivity. Dom z roku 1870, ktorého súčasťou sú aj jednopodlažné pavilóny z roku 1880 a zo začiatku 30. rokov 20. storočia bol miestom, kde sa písala história britského baletu. Až donedávna tu sídlilo vedenie organizácie.

Foto: David Grandorge

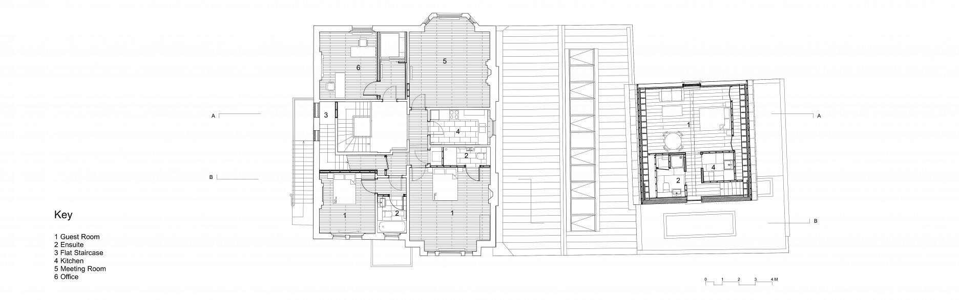
Úlohou  architektov bolo skĺbiť a funkčne prepojiť reprezentatívnu a ubytovaciu časť s pavilónmi a poskytnúť priestor pre budúce rozšírenie a diverzifikáciu programu.

Foto: David Grandorge

Obdobie vzniku jednotlivých častí komplexu sa dá ľahko identifikovať podľa odtieňu muriva. Staršie zachované časti sú sivé. Nové konštrukcie si zachovávajú farebnosť bielej tehly. Uličná fasáda pavilónov bola vymurovaná nanovo. 

Foto: David Grandorge

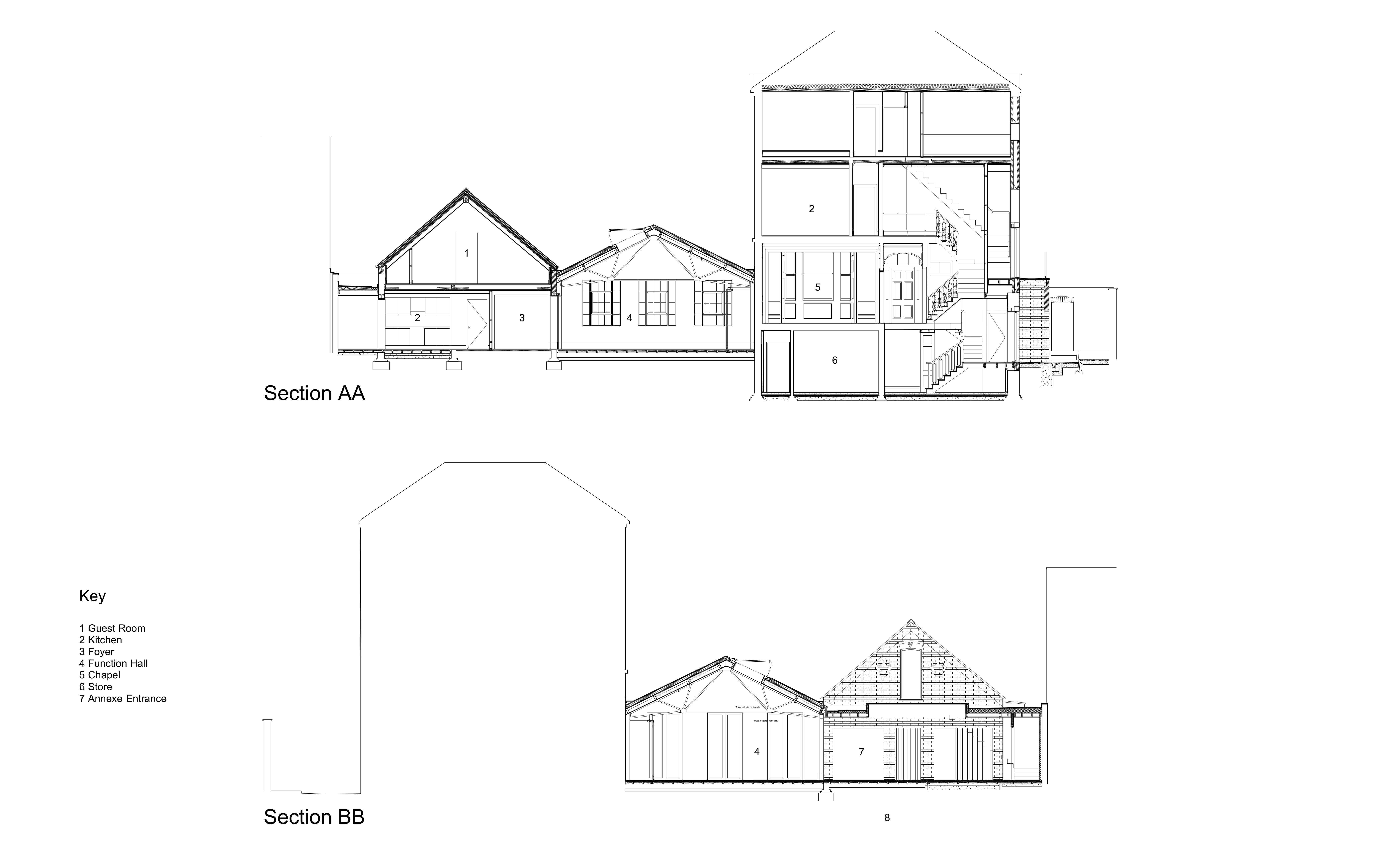
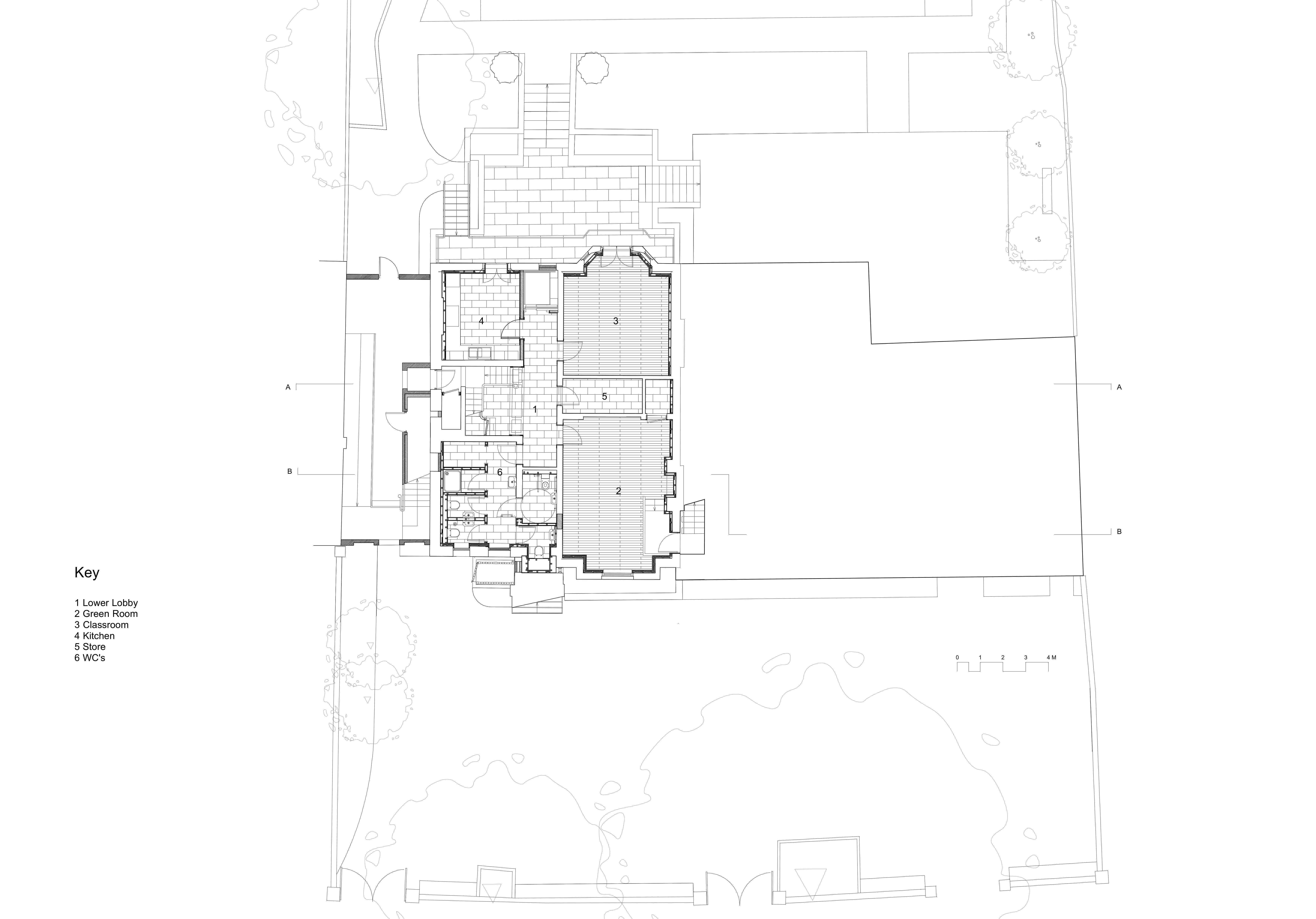
Najväčšou zmenou prešiel pavilón z tridsiatych rokov XX. storočia, kde sa teraz nachádza hlavná spoločenská sála. Prevádzka má vlastný vstup a môže fungovať nezávisle od hlavného domu.

Foto: David Grandorge

Oceľová konštrukcia novšieho pavilónu zostala zachovaná. Hlavný otvorený priestor, kde sa konajú koncerty, prednášky a premietania je priamo prepojený so záhradou. Halu je možné predeliť posuvnou stenou, za ktorou sa nachádza schodisko vedúce do suterénu vily. Nájdeme tu doplnkové priestory pre menšie podujatia.

Foto: David Grandorge

2,7 m vysoké presklené dvere prepájajú spoločenskú miestnosť s nanovo upravenou záhradou.

Foto: David Grandorge

Posuvná stena oddeľuje sálu od technického zázemia, umožňuje skladovanie stoličiek a slúži aj ako výstavná plocha.

Foto: David Grandorge

Starší pavilón z roku 1880 je prepojený z hlavnou spoločenskou sálou. Najväčším zásahom počas rekonštrukcie bola demolácia neskorších prístavieb z a osemdesiatych rokov 20. storočia. 

Foto: David Grandorge

Pôvodná tehlová stena sa stala dominantným prvkom v interiéri. Vstupný priestor bol vybudovaný nanovo. 

Foto: David Grandorge

Za stenou sa nachádzajú obslužné priestory a schodisko vedúce do izby v podkroví.

Foto: David Grandorge
Foto: David Grandorge

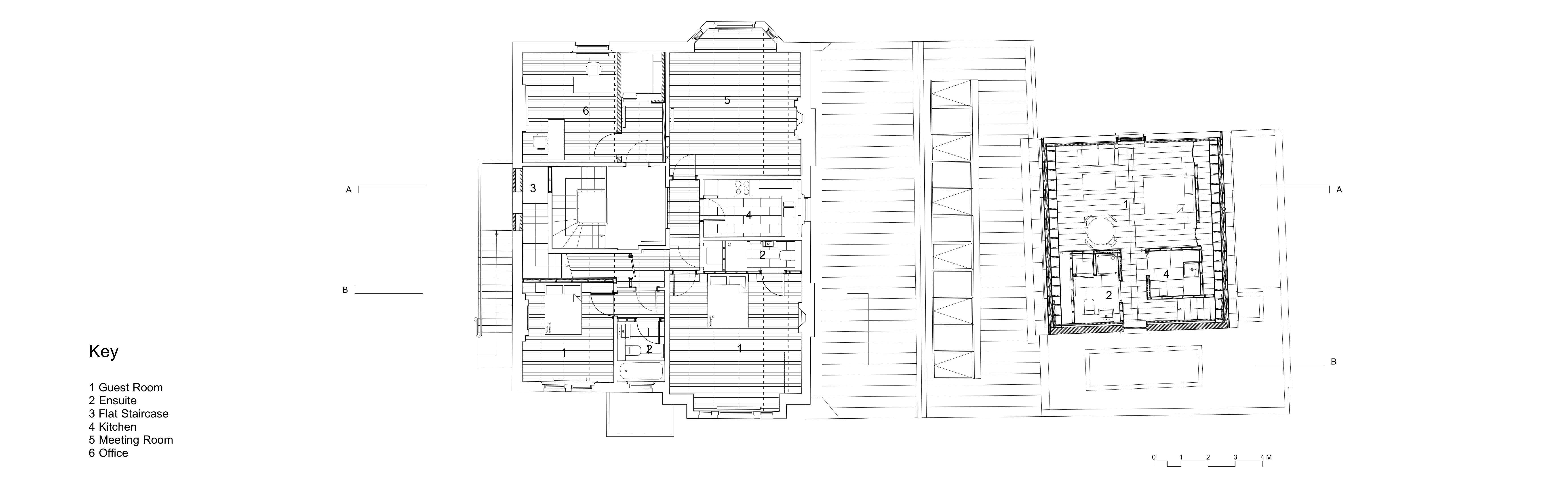
Komplexnou rekonštrukciou prešla aj vila Woolborough. Izby na prízemí hlavnej budovy boli zlúčené, vznikol multifunkčný priestor pre modlitby a komorné kultúrne podujatia.

Foto: David Grandorge
Foto: David Grandorge

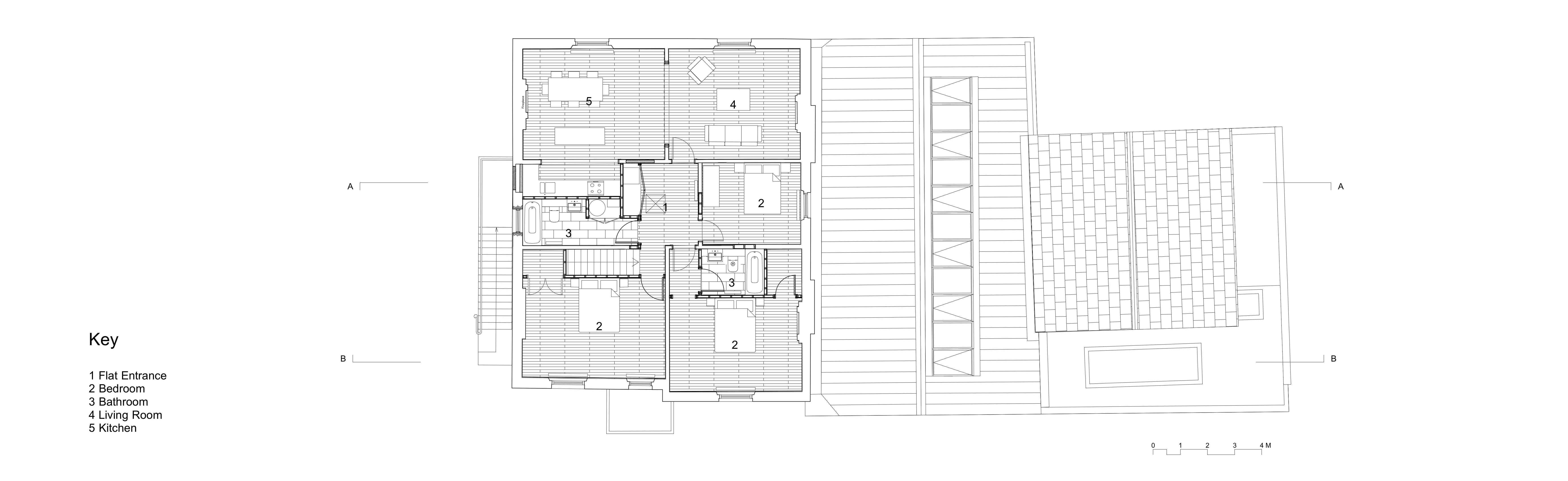
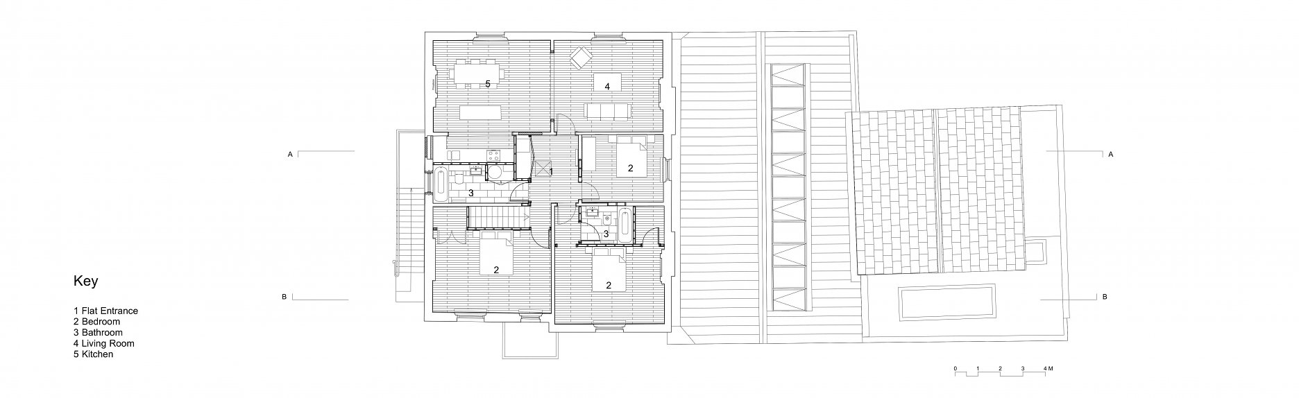
Schodisko na bočnej fasáde domu umožňuje osobitný prístup do ubytovacej časti situovanej na vyšších podlažiach.

Foto: David Grandorge

Jedna z bývalých učební slúži ako prednášková miestnosť a zároveň prepája ubytovaciu časť so spoločenskými priestormi na prízemí.

Foto: David Grandorge

Zariadenie izieb ostalo v pôvodnom duchu.

Dôležitú súčasť nového sídla tvorí Plastika Františka Bělského, ktorá symbolizuje smrť Jana Palacha. Socha bola presunutá z pôvodného sídla v Notting Hill.

Foto: David Grandorge
Situácia
SituáciaAutor: IBLA
Pôdorys 1.PP
Pôdorys 1.PPAutor: IBLA
Pôdorys 1.NP
Pôdorys 1.NPAutor: IBLA
Pôdorys 1. NP
Pôdorys 1. NPAutor: IBLA
Pôdorys 2. NP
Pôdorys 2. NPAutor: IBLA
Autor: IBLA

Za tip na článok ďakujeme Rasťovi Udžanovi, ktorý profesionálne pôsobí v Londýne.

Podklady: Inglis Badrashi Loddo

Poloha diela

M.A. Patrick Inglis
B.A. Jamal Badrashi
M.A. Kim Loddo
Vložené
13. október 2017
0
1839
Hlavný obsahHlavný obsah
Čakajte prosím