Okenné profily z kompozitného materiálu RAU-FIPRO X od spoločnosti Rehau sú v porovnaní s tradičnými plastovými profilmi mnohonásobne...
Najnovší sortiment stolov pre zariadenie interiérov...
Spojenie moderného dizajnu, funkčnosti a svetla do harmonického architektonického prvku.
Kancelárska budova Baumit v slovinskom Trzine prešla premenou na moderné a udržateľné pracovisko. Architekti kládli dôraz...
Mottom šiesteho ročníku on-line konferencie odborníkov Xella Dialóg je Efektívny návrh budov 2025+: zmeny a riešenia
Robot WLTR predstavuje moderný prístup k murovaným konštrukciám. Vďaka automatizácii dokáže rýchlo, presne a bezpečne realizovať...
Okrem bezpečnosti majú okná aj elegantný vzhľad, pretože nie sú viditeľné žiadne uzamykacie časti kovania.
Dvere MASTER v skrytej zárubni AKTIVE je možné vyrobiť až do výšky 3 700 mm
Internorm stavia na energetickú efektívnosť a inteligentné tieniace riešenia.
Pohľad na moderné prístupy k výrobe s dôrazom na udržateľnosť.
Slovensko vo výbere zastupuje šesť realizácií.
Spoločnosť Internorm odteraz stavia na novej variante tepelnoizolačného skla od AGC, ktorá v produkcii ročne ušetrí 10...
Jubilejný 20. ročník prestížnej medzinárodnej súťaže pre študentov architektúry priniesol...
Otočné a posuvné dvere MASTER od podlahy až po strop, ponúkajú mimoriadnu variabilitu výšky, materiálu a zladenia so skrytými...
Predstavené produkty, spájajú premyslený dizajn, funkčnosť a udržateľnosť. Nábytok Materia vzniká s cieľom podporiť inšpiratívne stretnutia...

Kvalitná architektúra je jedným z predpokladov pre úspešný rozvoj obce. Dá sa to za predpokladu partnerskej spolupráce architekta a samosprávy. Dobrým príkladom sú napríklad české Líbeznice a slovenský Leopoldov.
Medzi nasledovaniahodné príklady sa nedávno zaradila aj obec Bílovice nad Svitavou, kde vzniklo nové centrum verejného života.
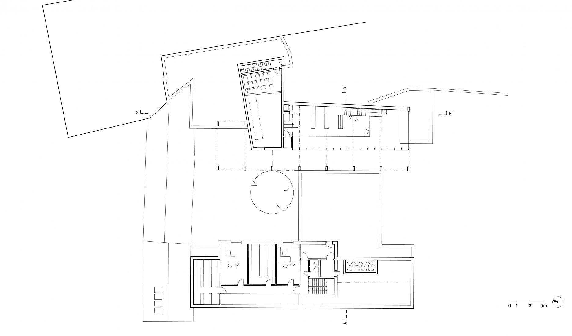
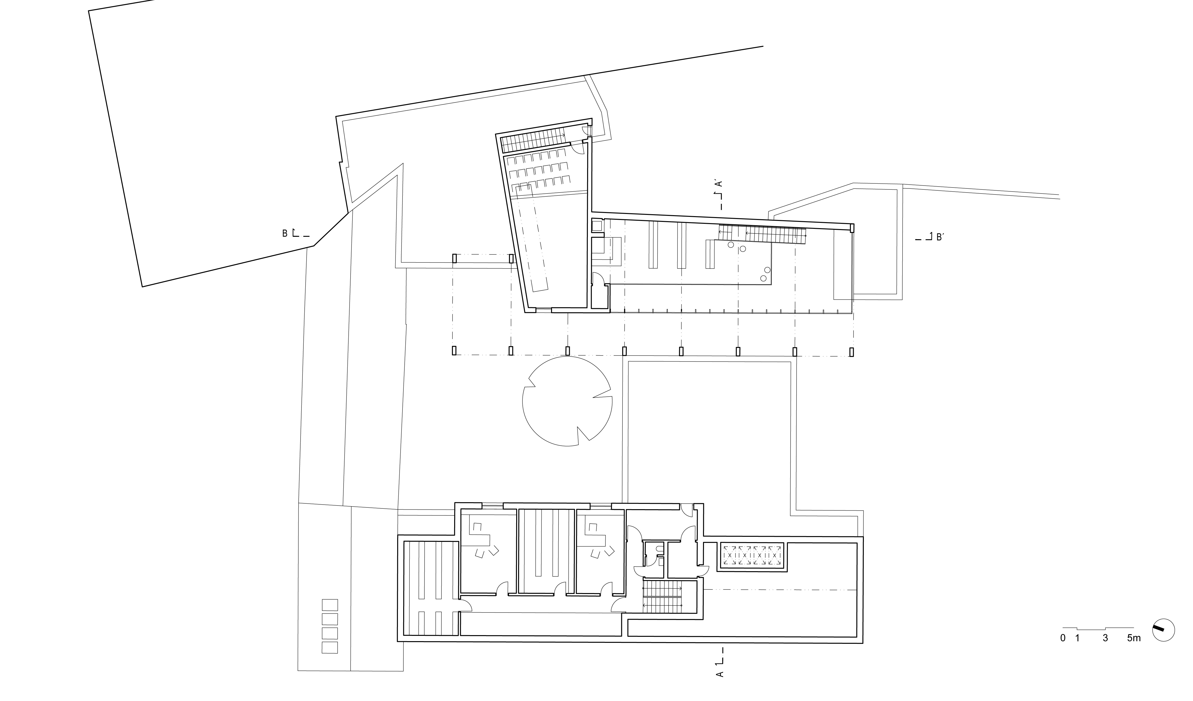
Súčasťou zadania bola stavba nového obecného úradu, knižnice, obradnej siene, pošty, letného výčapu a záhradky obecnej krčmy. V rámci projektu vznikli aj nové verejné priestory. Bolo vybudované hlavné námestie obce, vo vnútrobloku vznikol nový oddychový priestor.
“Důležité pro nás bylo dodržení rostlé formy historického urbanismu a komorního měřítka,” objasňujú architekti prístup k revitalizácii centra obce. Nové objekty držia a dopĺňajú líniu ulice Žižkova. Priestor novovzniknutého námestia je od ulice oddelený vzrastlou zeleňou. Novostavba knižnice je situovaná v druhom pláne, do pokojnej časti námestia. Predsadená strecha podporovaná pravidelným rastrom lepených drevených rámov vytvára krytý priechod medzi knižnicou a obecným úradom. Prechádzame do priestoru uzavretého nádvoria, ktoré slúži ako predpolie obradnej siene a letná záhradka výčapu bílovickej krčmy. Odtiaľ je prístupná obradná sieň a sociálne zariadenie spoločné pre krčmu, obradnú sálu i knižnicu. Nádvorie je novým priechodom prepojené aj s ulicou a priestorom pred obecnou krčmou. Celé prepojenie je možné v nočných hodinách obojstranne uzavrieť.
Námestie a verejné priestory sú vydláždené betónovými tvárnicami rôznych rozmerov. V osi námestia sú do zeme integrované podsvietené vodné trysky, ktoré oživujú verejný priestor. Dlažba je lokálne doplnená o prírodný kameň. Žulové kocky sú použité na centrálnom námestí aj vo vnútrobloku. V priestore medzi knižnicou a parkoviskom našla svoje miesto kamenná dlažba väčšieho formátu. Materiál pochádza z pôvodnej cesty.
Architektonická forma obecného úradu a pošty je striedma, avšak s premysleným detailom. Ide o jednopodlažné objekty so sedlovou strechou. Novostavby zapadajú do uličnej zástavby rodinných domov a cielene nevyčnievajú. Význam verejnej budovy je v prípade obecného úradu zdôraznený pieskovcovým obkladom medziokenných pilierov. Dvojpodlažná časť úradu je orientovaná do nádvoria, z ulice a námestia je pred pohľadmi ukrytá. Dispozícia je z ekonomických aj priestorových dôvodov trojtraktová, stredná chodba je v prevýšenom priestore prirodzene osvetlená strešnými oknami. Po obvode chodby sú medzi dverami do kancelárií umiestnené drevom obložené niky so sedením pre čakajúcich občanov.
Všetky objekty sú murované z keramických tvaroviek. Architekti sa rozhodli pre obvodové steny bez zateplenia, pre väčšiu odolnosť a prípadné jednoduchšie opravy fasád. Stropy a piliere otvorených priestorov knižnice a obradnej siene sú železobetónové. Biele omietky dopĺňajú farby prírodných materiálov - kamenný obklad, drevo, pohľadový betón, keramická pálená škridla, parapety a detaily z titánzinkového plechu bez náteru.
Na podlahách knižnice, obradnej siene, pošty a chodby obecného úradu je vzhľadom na odolnosť použitý leštený betón. V kanceláriách sú vynilové podlahy.
Podklady: P.P. Architects, s.r.o.