Na podujatí sa predstaví až 37 vystavovateľov - popredných dodávateľov stavebných materiálov a inovácií s prezentáciou...
Novotvar v prostredí alpskej obce.
Hansgrohe - prémiová značka kúpeľňových riešení, ponúka nadčasový dizajn, technickú precíznosť a udržateľné inovácie...
Využite špeciálnu akciu Internorm: okná za minuloročné ceny a hliníkový kryt úplne zadarmo. Ponuka je časovo obmedzená!
Sumarizácia najdôležitejších inovácií, ktoré redefinujúcich využitie tohto energetického zdroja.
AMPHIBIA 3000 GRIP 1.3 od spoločnosti ATRO predstavuje modernú hydroizolačnú technológiu, ktorá spája vysokú odolnosť,...
Ambiciózne plány EK narazili na ekonomické možnosti domácností v jednotlivých členských štátoch –...
IDEA DOOR od spoločnosti JAP prináša do interiéru čistý minimalistický vzhľad vďaka bezrámovému riešeniu a precíznej...
Kontinuita riešenia od vonkajšieho obkladu až po kovania a kľučky.
Nástenné nadomietkové armatúry Vitus sú mimoriadne vhodné pre rýchlu a efektívnu...
Okenné profily z kompozitného materiálu RAU-FIPRO X od spoločnosti Rehau sú v porovnaní s tradičnými plastovými profilmi mnohonásobne...
Najnovší sortiment stolov pre zariadenie interiérov...
Spojenie moderného dizajnu, funkčnosti a svetla do harmonického architektonického prvku.
Kancelárska budova Baumit v slovinskom Trzine prešla premenou na moderné a udržateľné pracovisko. Architekti kládli dôraz...
Mottom šiesteho ročníku on-line konferencie odborníkov Xella Dialóg je Efektívny návrh budov 2025+: zmeny a riešenia

Spolkový dom (Pôvodný nazov Deutsches Haus) v českej obci Slavonice, ktorá sa nachádza v moravskej časti Juhočeského kraja bol postavený v roku 1932. V roku 1945 boli nemeckí obyvatelia vysídlení, zmenila sa aj funkcia Spolkového domu. Konali sa tu plesy, divadelé predstavenia a schôdze.
„Po odsunu tu probíhaly lidové soudy, zakládání JZD, všechny takové ty kruté rány osudu, které 20. století přineslo," přiblížila riaditeľka občianskeho združenia "Slavonická renesanční" Olga Žampová. V 80. rokoch bol dom prestavovaný na kino, prestavba ale nebola nikdy dokončená. Po revolúcii sa v Slavoniciach začalo najprv s obnovou historických domov. Nemecký dom - kino, sledoval dianie 90 rokov z ústrania, chátrajúci a zatvorený. V roku 2001 priestory domu objavilo miestne občianske združenie a dom sa začal prebúdzať k životu. V rokoch 2007 až 2013 prešiel rozsiahlou rekonštrukciou a prestavbou. Dom vlastní a prevádzkuje miestna nezisková organizácia, ktorá v ňom usporadúva vzdelávacie, spoločenské, kultúrne a komunitné akcie. Je zázemím pre spolkový život mesta a regiónu. Projekt prestavby bol nominovaný na medzinárodnú cenu Mies Van Der Rohe v roku 2015.
Úlohou architektov navrhnúť prestavbu a adaptáciu Spolkového domu na vzdelávacie enviromentálne centrum. Objekt sa nachádza v mestskej pamiatkovej rezervácii v centre mesta Slavonice. Jedná sa o jeden z príkladov, ktorý ukazuje možnosť zníženia energetickej náročnosti historicky cenného objektu pri zachovaní jeho kvalít.
V zachovanom historickom meste Slavonice, ktoré je známe renesančnou architektúrou meštianskych domov, bol Spolkový dom postavený na pôdorysnej stope stredovekej hradby. Spolkový domom je oddelený od námestia radom renesančných domov. Pozemok je súčasťou pamiatkovej rezervácie. Mesto Slavonice má ako jedno z mála miest v Českej republike schválený platný regulačný plán. Počas povojnových stavebných prác bol zničený všetok interiér sály zo 30.rokov. Nové prístavby z 80. rokov boli stavebne zle založené a trhali sa od stavby pôvodného domu.
Budova bola počas rekonštrukcie očistená od prístavieb z 80. rokov. Stratený objem domu bol navýšený zdvihnutím rímsy o necelé poschodie. Tvarom a murovanými štítmi je prestavaný dom blízky stodolám pri obvode mesta, merítkom zas inštitúciám na hradbe starého mesta (škola, múzeum).
"Návrh obnovy domu v sobě spojuje zdánlivě neslučitelné - původní stavební struktura spolkového domu je doplněna současným stavebním řešením, které splňuje přísné požadavky památkové péče v renesančním městě a nároky na nízkoenergetický dům. Dům sám o sobě bude atrakcí a bude přizpůsoben k výuce a prohlídkám. Vnější tvář domu, lícové zdivo, odkrývá proměny domu během 20. století. Opravený dům přidá současnou, a myslíme si, že citlivou, vrstvu moderní architektury do města Slavonice", hovorí jeden z tímu architektou Štěpán Valouch.
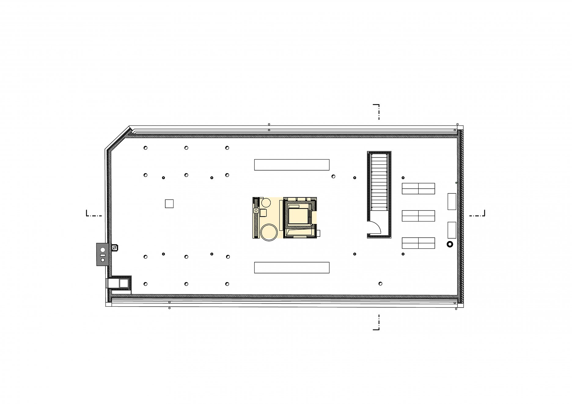
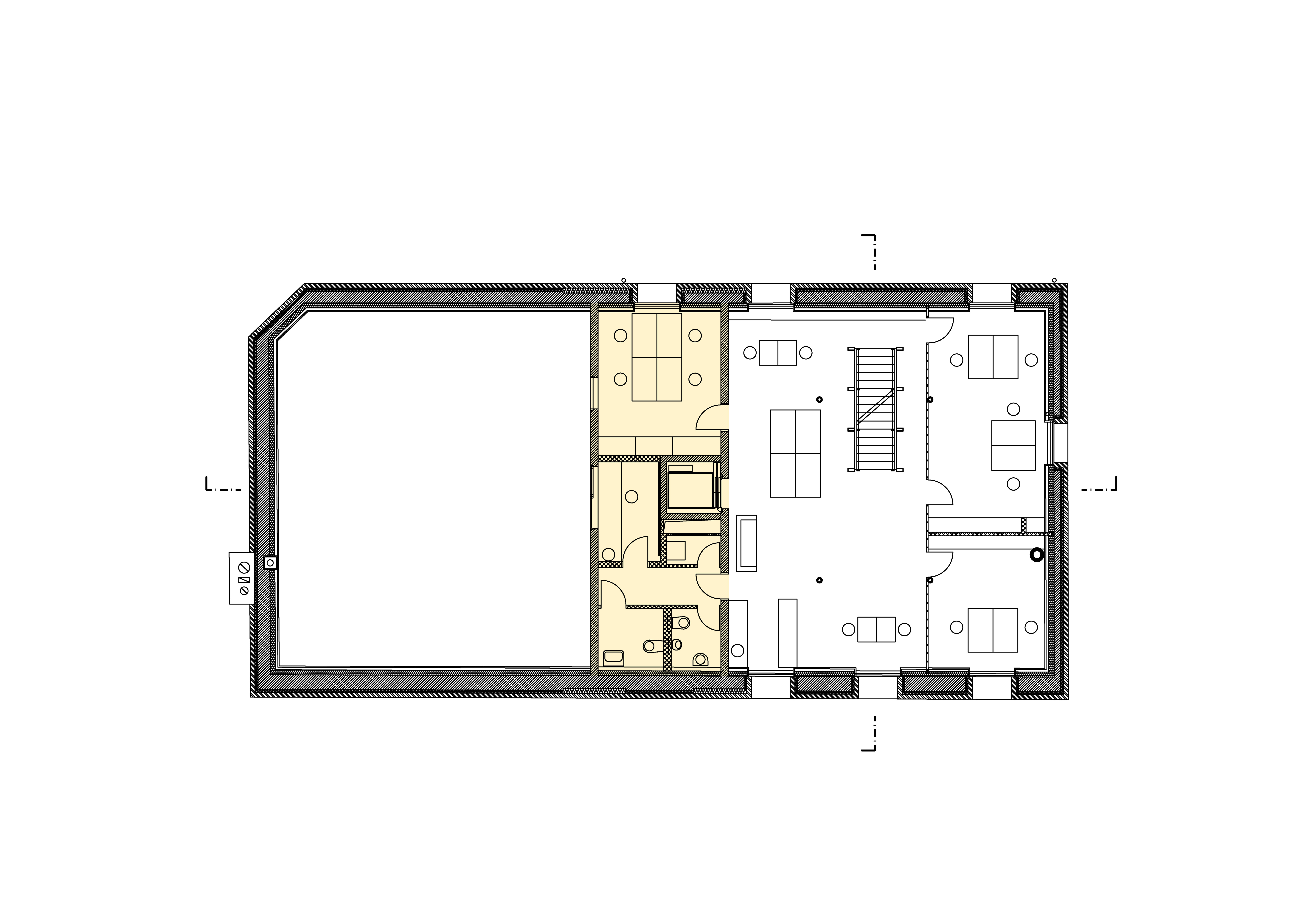
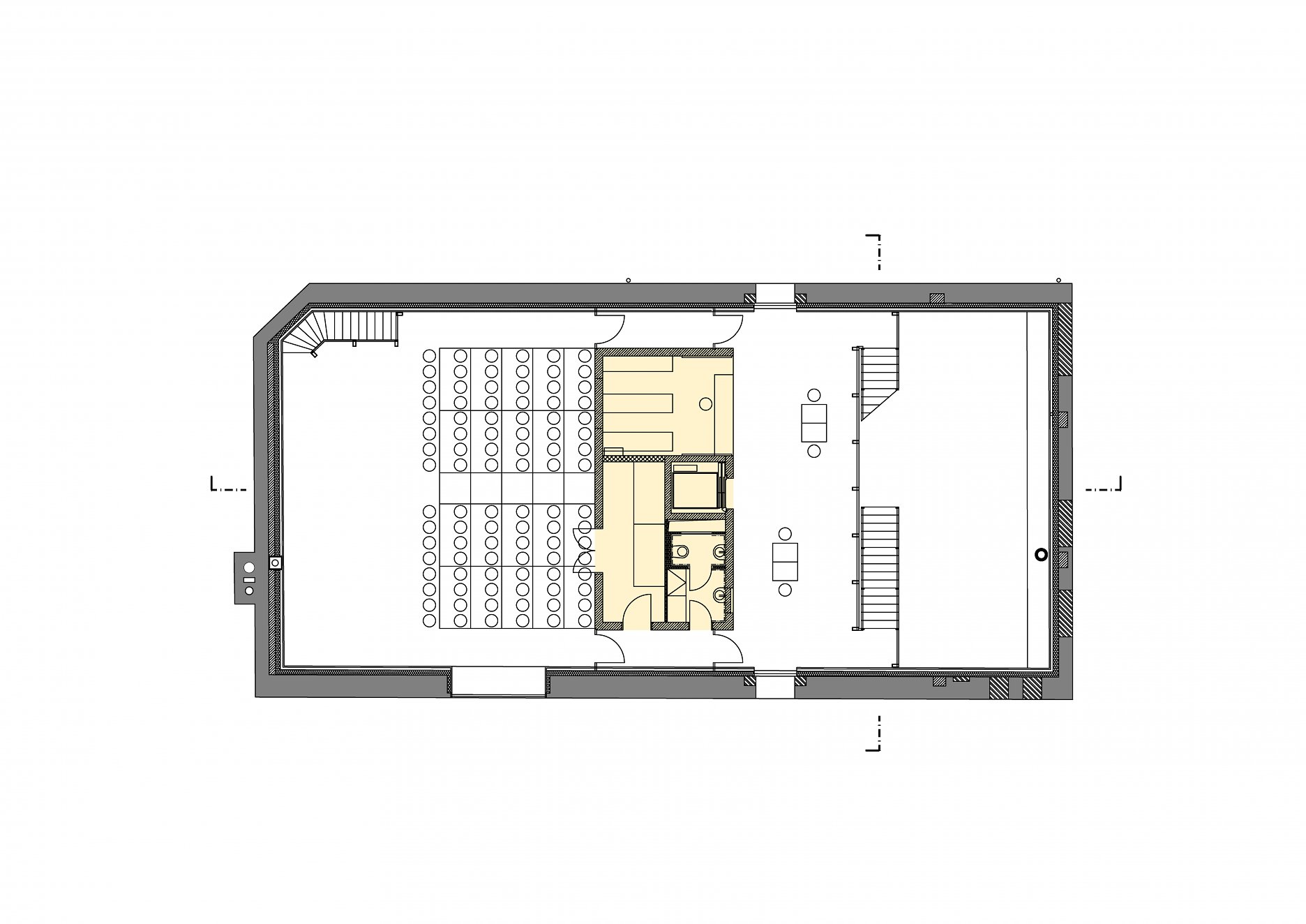
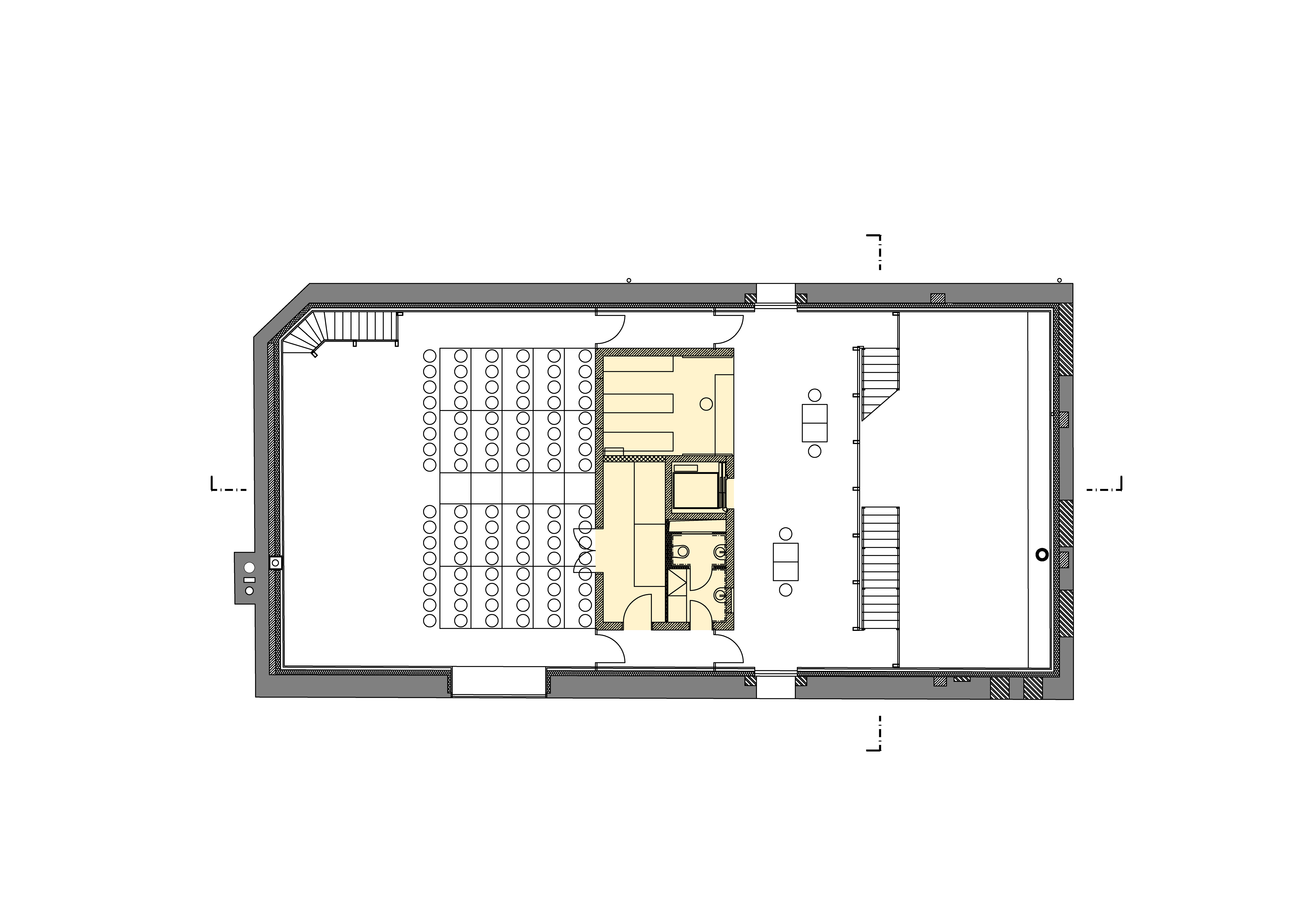
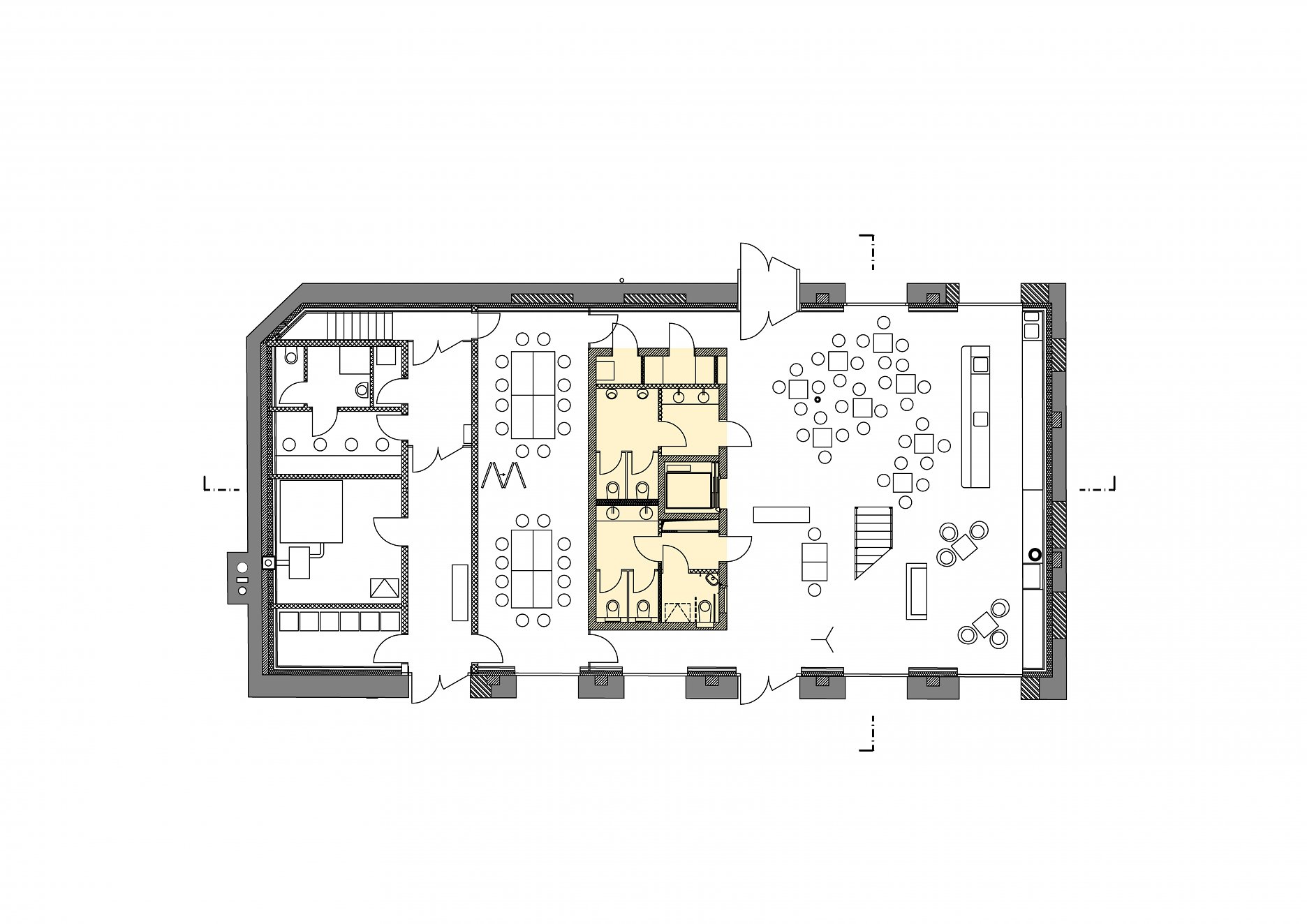
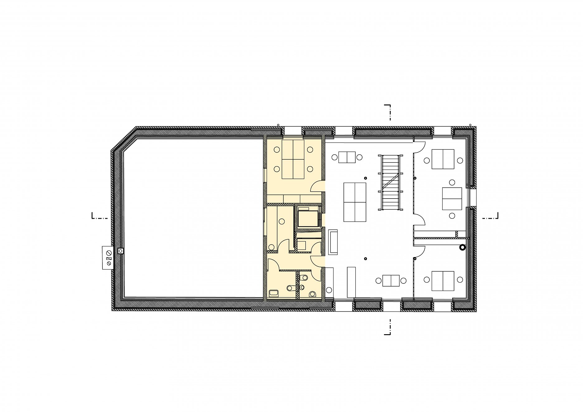
Pôvodné obvodové murivo - starú škrupinu obýva nový živočích z betónu. Betónový blok delí dom na dve polovice na časť rušnú, určenú verejnosti, s lobby, občerstvením a posedením pri krbe a na časť tichú, určenú účastníkom vzdelávacích programov. Tichá časť obsahuje viacúčelovú sálu a prednáškovú miestnosť. V servisnom bloku je umiestnený výťah, toalety, sklady a premietacia kabína.
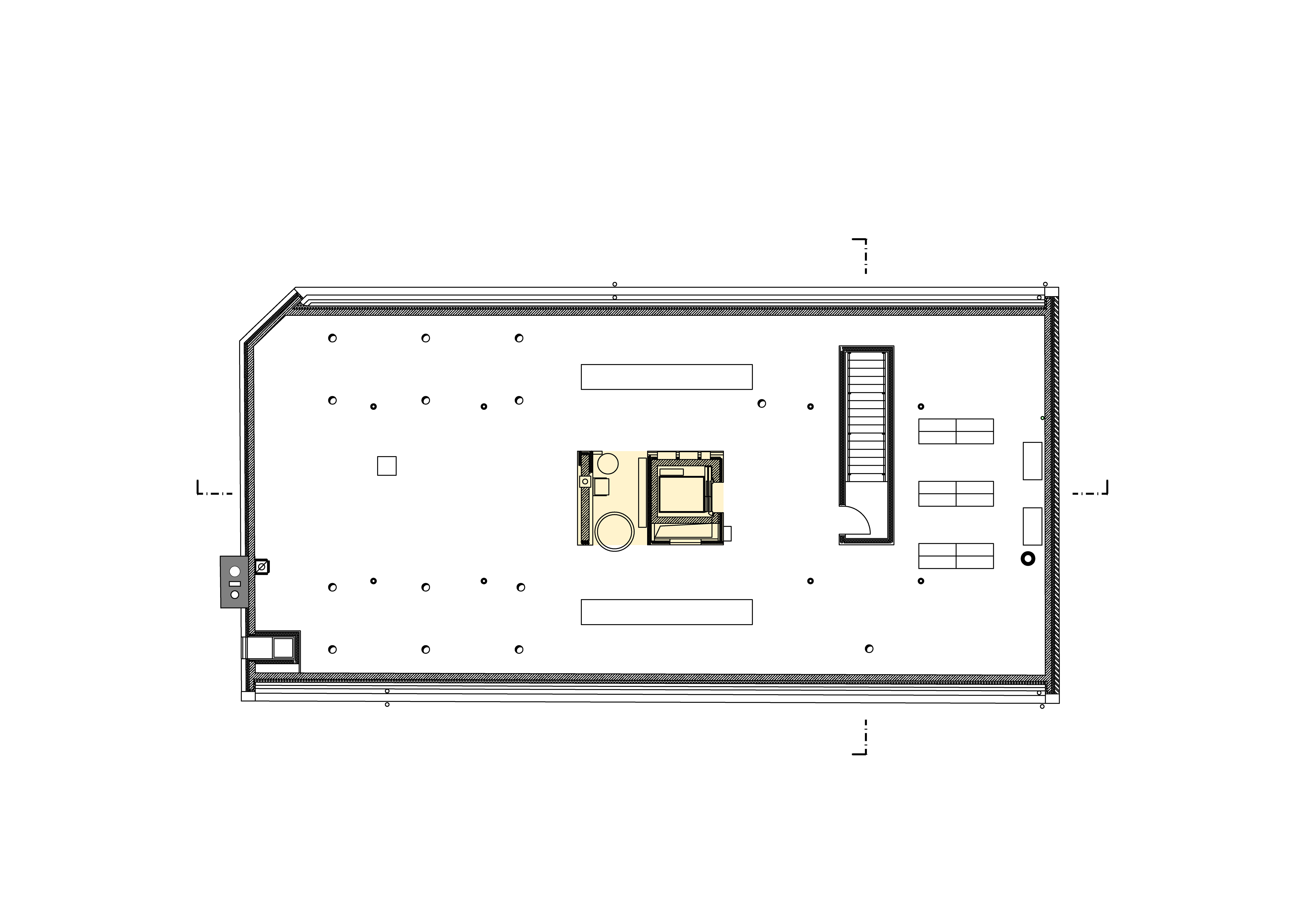
V podkroví sú umiestnené technológie, je tu aj priestorová rezerva pre ďalšiu prevádzku. Vnútorný dvor je osadený stupňovitým hľadiskom pre prednášky alebo vonkajšie divadelné predstavenia.
Vzhľadom k historickej hodnote vonkajšieho plášťa došlo k rozhodnutiu zachovať ho a dom zatepliť zvnútra. Toto riešenie ukazuje možnosť zníženia energetickej náročnosti historicky cenného objektu pri zachovaní jeho kvalít. Rozumné prevádzkové náklady a pamiatková hodnota nemusí stáť nutne v protiklade. Podarilo sa dosiahnuť nízkoenergetický štandard a vnútri kúriť obnoviteľnými zdrojmi. Zateplenie je vnútri zakryté horizontálnymi drevenými doskami s vonkajším bielym náterom. V nepravidelnom rytme sú v latovaní vytvorené medzery, cez ktoré môže prenikať zvuk do vzduchovej medzery za obkladom, čo zlepšuje akustiku.
Konštrukčné riešenie vychádza z dispozície. Stredný betónový blok a betónové stropy spevňujú celú stavbu. Konštrukcia strechy zároveň funguje ako priestorový nosník, z ktorého visí strop nad sálou a strop kancelárií a galérie. Betónová strecha akusticky tlmí technológie na streche. Betónová stena v sále je odliata do štruktúrovaného debnenia, láme akustické vlny.
Pôvodné murivo je doplnené novým režným murivom. Biela výmaľba staré a nové murivo zjednocuje, ale pri deailnejšom pohľade hovorí o premene domu hrou svetla a tieňa. Z diaľky monochromatická jednoliata fasáda je značne vrstvená. Vo fasádnym plášti nájdeme relatívne malé štvorcové otvory okien. Sú zapustená do hĺbky fasády, a z diaľky tak ukazujú takmer metrovú hrúbku obvodových stien. V prízemí sa nachádza celkom deväť rozmerných dvojkrídlových dverí, ktoré vďaka svojmu preskleniu umožňujú každému okoloidúcemu nahliadnuť, čo sa práve odohráva v interiéri. Zostavu otvorov dopĺňa ten najväčší - štvorec umiestnený do líca fasády. Ten privádza svetlo do hlavnej sály pre viac ako sto návštevníkov. Vnútri môžu diváci sedieť na jeho zníženom parapete.
Spolkový dom je vykurovaniý predovšetkým z obnoviteľných zdrojov energie. V podkroví je umiestnená akumulačná nádoba, do ktorej vedú nezávislé zdroje tepla, z ktorej je spätne zaistený ohrev vykurovacej vody. Akumulačnú nádobu vykuruje kombinovaný kotol na drevo a pelety. Pod strechou sú ďalej umiestnené dve vzduchotechnické rekuperačné jednotky, ktoré sú napojené na dva nezávislé okruhy, prevádzka sály a prevádzka verejnej časti so vstupným priestorom. V priestore občerstvenia je umiestnená krbová vložka, ktorá je napojená do vykurovacieho systému.
podklady: OV architekti