Novotvar v prostredí alpskej obce.
Hansgrohe - prémiová značka kúpeľňových riešení, ponúka nadčasový dizajn, technickú precíznosť a udržateľné inovácie...
Využite špeciálnu akciu Internorm: okná za minuloročné ceny a hliníkový kryt úplne zadarmo. Ponuka je časovo obmedzená!
Na podujatí sa predstaví až 37 vystavovateľov - popredných dodávateľov stavebných materiálov a inovácií s prezentáciou...
Sumarizácia najdôležitejších inovácií, ktoré redefinujúcich využitie tohto energetického zdroja.
AMPHIBIA 3000 GRIP 1.3 od spoločnosti ATRO predstavuje modernú hydroizolačnú technológiu, ktorá spája vysokú odolnosť,...
Ambiciózne plány EK narazili na ekonomické možnosti domácností v jednotlivých členských štátoch –...
IDEA DOOR od spoločnosti JAP prináša do interiéru čistý minimalistický vzhľad vďaka bezrámovému riešeniu a precíznej...
Kontinuita riešenia od vonkajšieho obkladu až po kovania a kľučky.
Nástenné nadomietkové armatúry Vitus sú mimoriadne vhodné pre rýchlu a efektívnu...
Okenné profily z kompozitného materiálu RAU-FIPRO X od spoločnosti Rehau sú v porovnaní s tradičnými plastovými profilmi mnohonásobne...
Najnovší sortiment stolov pre zariadenie interiérov...
Spojenie moderného dizajnu, funkčnosti a svetla do harmonického architektonického prvku.
Kancelárska budova Baumit v slovinskom Trzine prešla premenou na moderné a udržateľné pracovisko. Architekti kládli dôraz...
Mottom šiesteho ročníku on-line konferencie odborníkov Xella Dialóg je Efektívny návrh budov 2025+: zmeny a riešenia

Ďalší príklad verejnej investície od susedov, ktorá by mohla zaujať aj slovenských starostov.
História
Dlhšiu dobu chýbala v obci Ratíškovice poriadna sála. Tancovačky sa organizovali v telocvični miestnej školy, koncerty v malej kinosále, koštovky vína vo veľkom stane a výstavy hubárov v hasičskej zbrojnici. V roku 2004 padlo rozhodnutie o zadaní projektu spolkového domu pre potreby obce. Nasledujúci rok bolo vydané stavebné povolenie s pravidelne predlžovanou platnosťou až do roku 2014. Stavebné práce trvali 13 mesiacov. Spolkový dom bol dokončený v roku 2016.
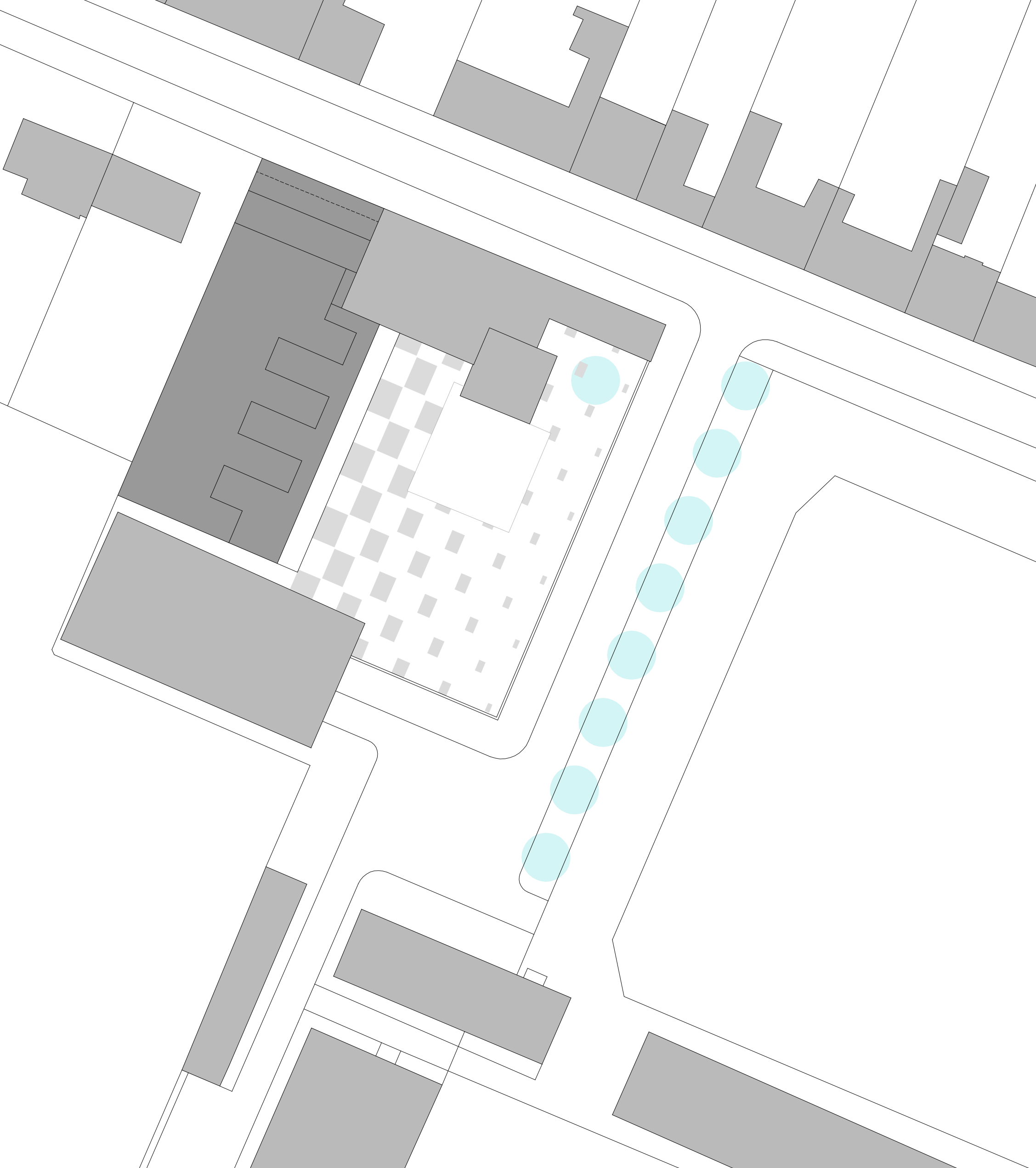
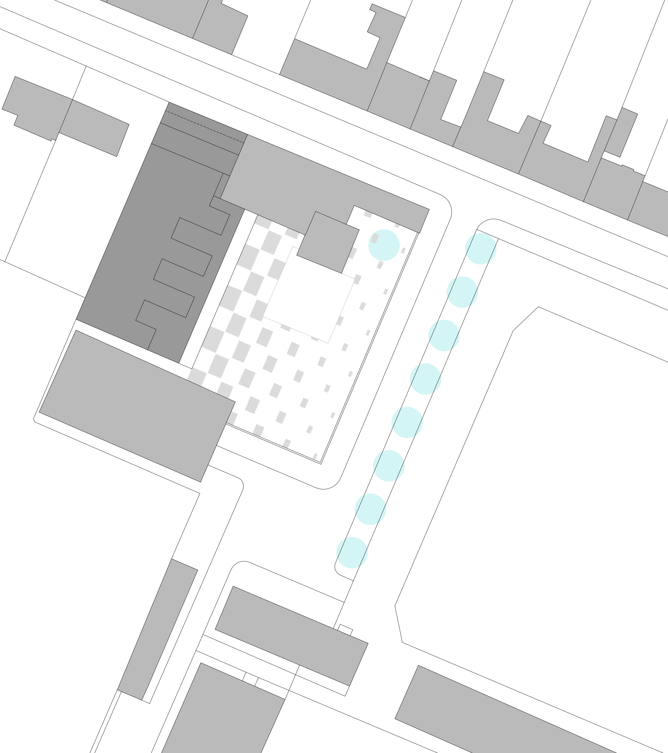
Situácia
Ratíškovice sú obec na Južnej Morave. V dedine žije 4000 obyvateľov. Spolkový dom je súčasťou uličnej zástavby a snaží sa zapadnúť do okolitej zástavby. Objekt stojí na mieste bývalej kolkárne a tesne nadväzuje na existujúcu reštauráciu „Sport“. V blízkosti sa nachádza športový areál, tri futbalové ihriská, tenisové kurty a plavecký bazén.
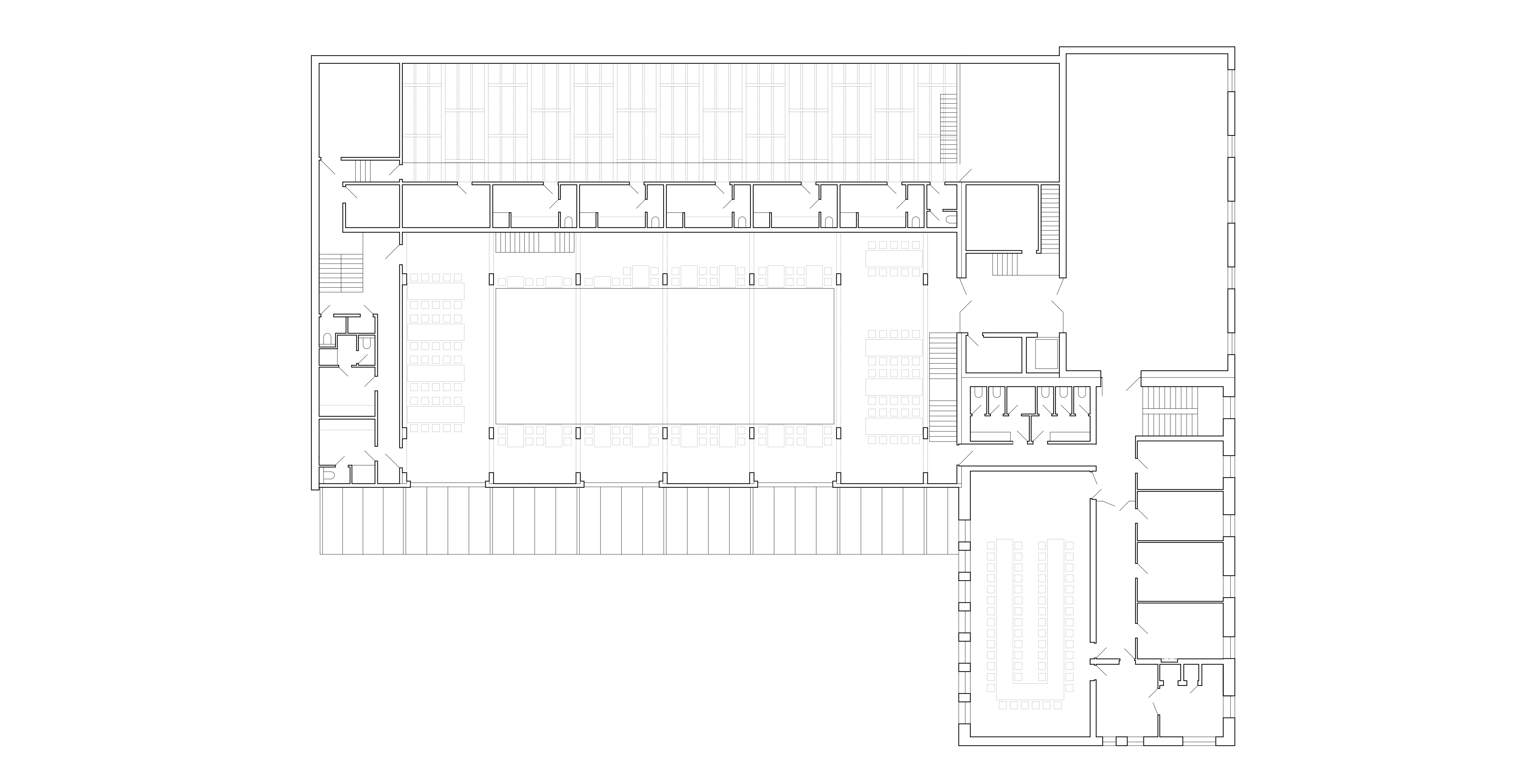
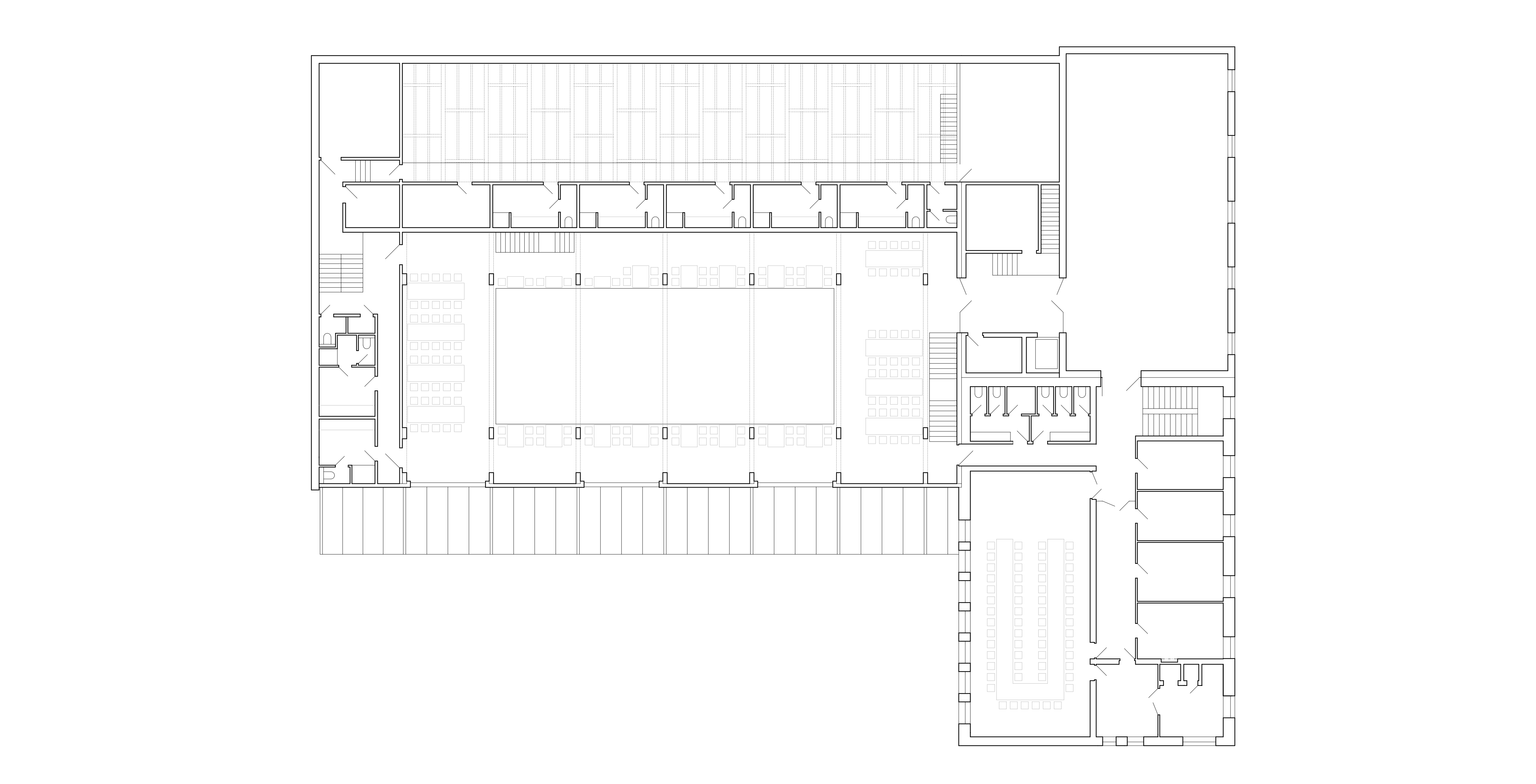
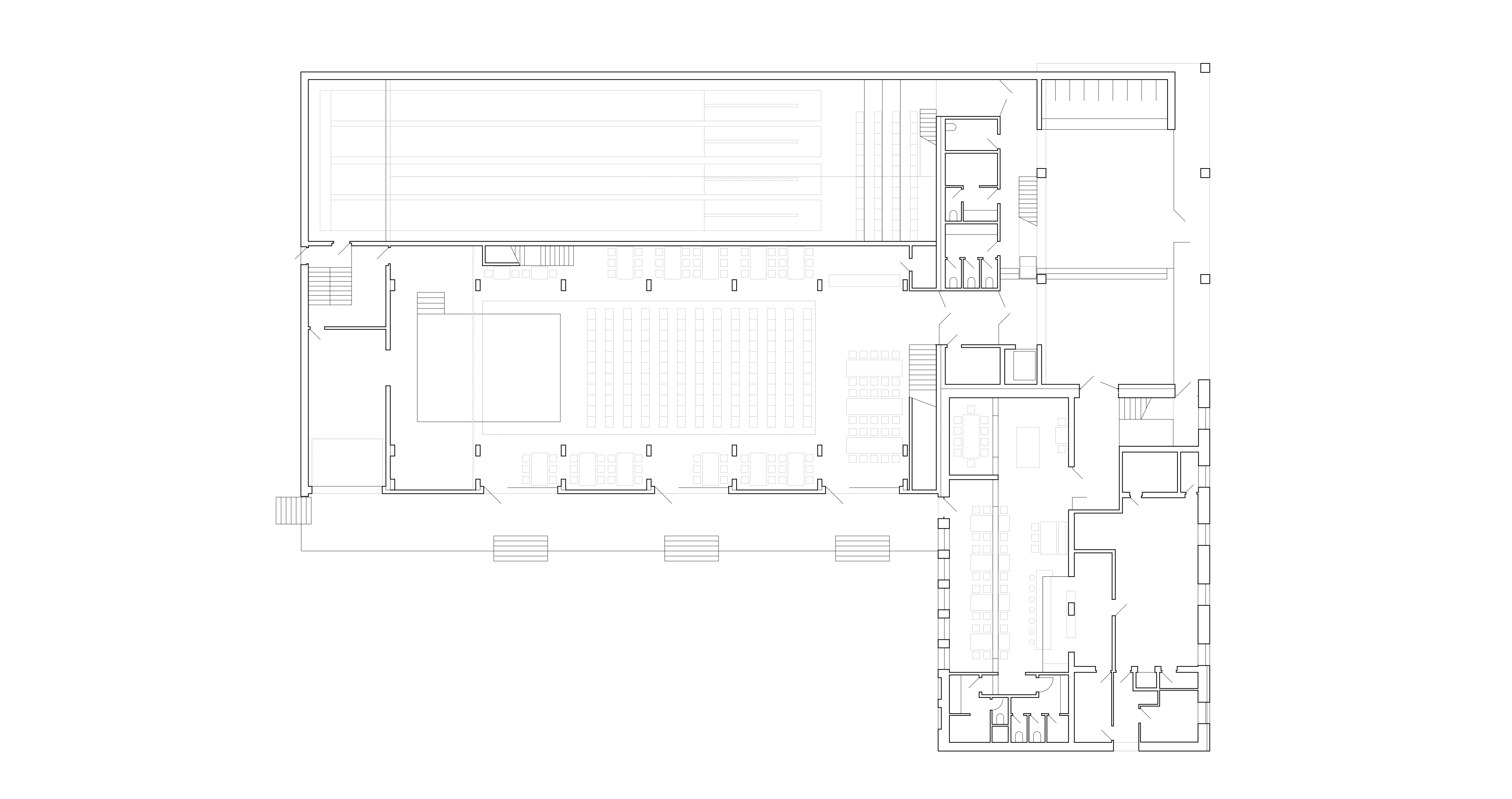
Priestor a konštrukcia
Do budovy sa vstupuje cez kryté podlubie. V interiéri je rozsiahly foyer, veľká a malá sála a kolkáreň. Architekti zachovali prepojenie s existujúcou reštauráciou. V exteriéri je obyvateľom obce k dispozícii terasa a letná scéna. Kultúrne nádvorie je stále vo výstavbe.
Základ konštrukcie stavby tvoria nosné rámy z lepených drevených profilov. V interiéri je použitý akustický heraklit.
Podklady: Létající inženýři