Na podujatí sa predstaví až 37 vystavovateľov - popredných dodávateľov stavebných materiálov a inovácií s prezentáciou...
Novotvar v prostredí alpskej obce.
Hansgrohe - prémiová značka kúpeľňových riešení, ponúka nadčasový dizajn, technickú precíznosť a udržateľné inovácie...
Využite špeciálnu akciu Internorm: okná za minuloročné ceny a hliníkový kryt úplne zadarmo. Ponuka je časovo obmedzená!
Sumarizácia najdôležitejších inovácií, ktoré redefinujúcich využitie tohto energetického zdroja.
AMPHIBIA 3000 GRIP 1.3 od spoločnosti ATRO predstavuje modernú hydroizolačnú technológiu, ktorá spája vysokú odolnosť,...
Ambiciózne plány EK narazili na ekonomické možnosti domácností v jednotlivých členských štátoch –...
IDEA DOOR od spoločnosti JAP prináša do interiéru čistý minimalistický vzhľad vďaka bezrámovému riešeniu a precíznej...
Kontinuita riešenia od vonkajšieho obkladu až po kovania a kľučky.
Nástenné nadomietkové armatúry Vitus sú mimoriadne vhodné pre rýchlu a efektívnu...
Okenné profily z kompozitného materiálu RAU-FIPRO X od spoločnosti Rehau sú v porovnaní s tradičnými plastovými profilmi mnohonásobne...
Najnovší sortiment stolov pre zariadenie interiérov...
Spojenie moderného dizajnu, funkčnosti a svetla do harmonického architektonického prvku.
Kancelárska budova Baumit v slovinskom Trzine prešla premenou na moderné a udržateľné pracovisko. Architekti kládli dôraz...
Mottom šiesteho ročníku on-line konferencie odborníkov Xella Dialóg je Efektívny návrh budov 2025+: zmeny a riešenia

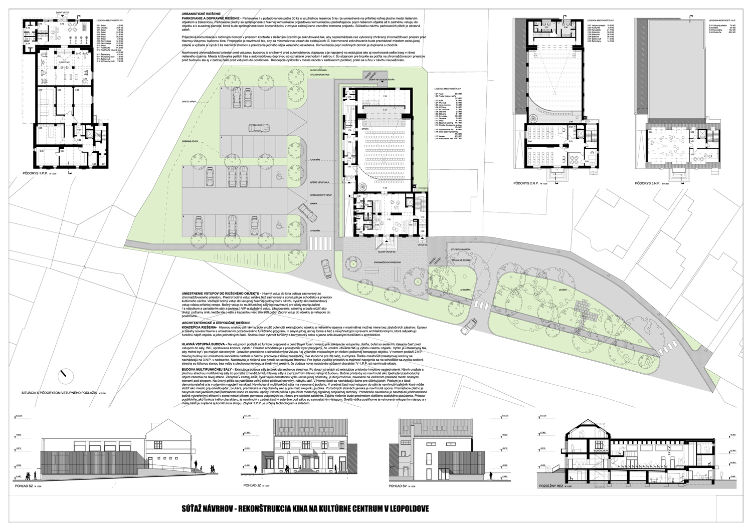
Po tom, ako Leopoldov v roku 2014 získal návrh svojho nového mestského úradu prostredníctvom otvorenej architektonickej súťaže, sa snaží dnes rovnakým spôsobom získať riešenie ďalšej dôležitej otázky - prestavby budovy kina z roku 1932 na kultúrne centrum.
Požiadavky na program boli široké a očakávania veľké. Ako budovu navrhnúť dostatočne flexibilnú pre všetky požadované aktivity a ako jej pri tom zachovať, respektíve vybudovať identitu? Nakoľko citlivo a nakoľko razantne treba vstupovať do existujúceho výrazu budovy a ako navonok artikulovať posun, ktorý absolvovala jej programová náplň za takmer 90 rokov od jej vzniku? Ako zapojiť do hry predpolie budovy? - to sú len niektoré z otázok, s ktorými sa museli vysporiadať súťažiaci.
Porota na svojom zasadnutí 10.7.2017 hodnotila 14 návrhov. Zasadala v zložení Ing. arch. Petr Lešek, Ing. arch. Benjamín Brádňanský, Mgr. Terézia Kavuliaková, Ing. Róbert Gergič a Ing. arch. Ondrej Marko (pôvodne náhradník, zastúpil Ing. arch. Irakliho Eristaviho). Náhradníkom poroty s poradným hlasom bol Ing. arch. Matej Jančár.
Výsledky súťaže sú nasledovné:
1. cena - návrh č.1
Účastník: Architekti A B.K.P.Š., spol. s r.o.
Autori: Ing.arch. Martin Kusý ml., Ing.arch. Ľubomíra Blašková, Ing.arch. Monika Krčméryová, Ing.arch. Róbert Bakyta
Hodnotenie poroty:
Návrh zjednotil figúru kina, zbavil ho nevyhovujúcich prístavieb. Celý objem budovy je efektívne využitý. Predpriestor smerom k železničnej trati je riešený kultivovane.
Porota oceňuje, že chýbajúce priestory boli umiestnené do podkopaného suterénu. Vďaka tomu majú klubové priestory a posilňovňa dobrú dostupnosť priamo z exteriéru. Porota to považuje za vhodné riešenie pre potreby mesta danej veľkosti. Tieto priestory umožňujú variabilné využitie, čo dáva predpoklad každodennému živému využitiu parteru.
Sála má vhodný pomer presklených a plných častí fasády. Foyer je veľkorysý a umožňuje variabilné využitie.
2. cena - návrh č.3
Účastník: MAPA architekti s.r.o.
Autori: Ing. arch. Katarína Bergerová, Ing. arch. Patrícia Botková, Ing. arch. Martin Hudec, Mgr. art. Marián Stanislav
Hodnotenie poroty: Návrh má dobrý pomer parkovacích plôch k ostatným exteriérovým plochám. Dobrým neformálnym spôsobom prepája sálu, terasu a záhradu. Jeho nedostatkom je nedostatočne prezentované materiálové riešenie prístavby, ktoré vzbudzovalo pochybnosti. Vyhlasovateľ kritizoval nedostatočné využitie priestorov pod sálou a zachovanie posilňovne v súčasnej veľkosti. Priestor foyer vzbudzuje pri pohľade zospodu veľké očakávania, ktoré sa pri návšteve 2. podlažia nepotvrdia - namiesto reprezentatívneho balkóna je priestor obsadený utilitárnymi funkciami toaliet.
3. cena - návrh č.9
Účastník: Totalstudio s.r.o.
Autori: Mgr. art. Tomáš Tokarčík, Mgr. art. Aleš Šedivec, Ing. arch. Michal Kontšek
Hodnotenie poroty: Riešenie je architektonicky kvalitné, poskytuje zaujímavé spojenie s exteriérom na úrovni 1. np, ale je príliš ambiciózne v riešení predimenzovanej strešnej terasy a otázne pôsobiacej nadstavby. Dispozície sú jednoduché, prehľadné a funkčné. Urbanizmus je zvládnutý dobre. Parkovisko je príliš utilitárne.
Ostatné súťažné návrhy uvádzame v chronologickom poradí:
Návrh č.2
Účastník: Ing. arch. Jiří Ksandr
Autori: MgA. Vít Šimek, Ing. arch. Karel Harazim, Bc. Filip Hutera, Bc. Alexander Kachalov
Hodnotenie poroty: Porota ocenila návrh subtílnej terasy a bočných lodí. Vyhlasovateľ nepožaduje až také navýšenie kapacity sály, ako predkladá návrh. Problémom je aj neexistencia, resp. problematickosť napojenia terasy s terénom smerom k železničnej trati. Priľahlé exteriérové prostredie je čisto parkoviskom. Dispozícia je komplikovaná, foyer je poddimenzované. Prístup pre starších a imobilných návštevníkov do klubových priestorov na 2. nadzemnom podlaží nie je možný.
Návrh č.4
Účastník: MMA ateliér, s.r.o.
Autori: Ing. arch. Marián Minárik, Ing. arch. Michal Medovarský
Hodnotenie poroty: Vstup do budovy je nejasný, ale pozitívom je, že je od ulice výrazne oddelený a vytvára predpriestor. Bezbarierový prístup do vyšších podlaží je komplikovaný. Sála nie je dobre prepojená ani s exteriérom ani s inými interiérovými priestormi, nemá prepojenie, ktoré by bolo viac, než únikovým východom. Parkovisko je síce utilitárne, ale neefektívne. Porota oceňuje návrat k pôvodnému výrazu plochej strechy nad sálou.
Návrh č.5
Účastník: Ing. arch. Roman Škantár
Autor: Ing. arch. Roman Škantár
Hodnotenie poroty: Návrh vytvára priveľký objem dostavby, ktorá nie je odôvodnená. Neefektívne pracuje s lokalitným programom a má neprívetivý výraz.
Návrh č.6
Účastník: Ing. arch. Peter Moravčík
Autori: Ing. arch. Tomáš Krištek, Ing. arch. Mgr. art. Ondrej Kurek, Ing. arch. Peter Moravčík, Ing. arch. Marek Trebuľa
Hodnotenie poroty: Urbanistické riešenie dobre oddeľuje servisný priestor parkovania od sály a vytvára funkčný predpriestor k nej. Návrh má zaujímavé priestorové riešenie – sála je znížená na úroveň terénu, ale je problematicky prepojená s foyer. Pevné javisko absentuje. Veľkosť presklenia sály smerom na východ a západ je diskutabilná. Hlavný nástup do budovy je riešený veľkoryso a kultivovane.
Návrh č.7
Účastník: ADESCOM, s.r.o
Autor: Ing. arch. Tomáš Boroš
Hodnotenie poroty: Riešenie prístavby vytvorením polozapustenej hmoty s átriom je zaujímavou alternatívou. Poskytuje chránený vstup do trojpodlažnej sály. Prináša veľký rozsah prístavby nad rámec potrieb vyhlasovateľa. Napojenie foyer a sály je problematické.
Návrh č.8
Účastník: PRO BONIUM s.r.o.
Autori: Ing. arch. Marián Beták, Ing. Henrieta Sedláčeková
Hodnotenie poroty: Návrh sa snaží zachovať maximum existujúceho stavu, ale pritom neposkytuje adekvátne riešenie úlohy.
Návrh č.10
Účastník: Ing. arch. Vojtech Inczinger
Autori: Ing. arch. Vojtech Inczinger, Ing. arch. Antónia Števanková, Ing. arch. Jakub Števanka
Hodnotenie poroty: Vstupný predpriestor je rozbitý rampami. Celý priestor smerom k železničnej trati je vyplnený parkoviskom. Dominantná nadstavba prináša priestory nad rámec požadovaného programu a nie je prístupná výťahom. Sála je izolovaná od okolia, je s ním prepojená iba servisnými vstupmi, čo sa počas vyhodnocovania ukázalo ako nevhodné riešenie pre tému.
Návrh č.11
Účastník: JNCK s.r.o.
Autori: Ing. arch. Peter Dostál, Ing. arch. Hana Laššová, Ing. arch. Peter Janeček
Hodnotenie poroty: Dvor pred sálou je navrhnutý veľkoryso, ale vyhlasovateľ ho nedokáže v navrhovanej podobe naplniť a využiť. Návrh dobre pracuje so sálou na úrovni terénu, ale písomne deklarované zasunutie hľadiska znemožňuje v uzavretom móde pripojenie sály na foyer. Chýbajú parkovacie miesta.
Návrh č.12
Účastník: Ing. arch. Marek Kľučár
Autori: Ing. arch. Marek Kľučár, Ing. arch. Pavol Vadkerti, Ing. Peter Wirth
Hodnotenie poroty: Návrh výrazne prekračuje možnosti lokality a vyhlasovateľa a neprináša adekvátny benefit.
Návrh č.13
Účastník: Ing. arch. Roman Porubec
Autori: Ing. arch. Emanuel Zatlukaj, Bc. Maroš Greš, Ing. arch. Branislav Lackovič, Ing. arch. Roman Porubec
Hodnotenie poroty: Lokalitný program je zle rozmiestnený v interiéri aj exteriéri. Foyer je prehnane monumentálne. Návrh propaguje originálny prístup ku konzervácii existujúcej stavby.
Návrh č.14
Účastník: Ing. arch. Marek Abramovič
Autori: Ing. arch. Tomáš Abramovič, Ing. arch. Marek Abramovič
Hodnotenie poroty: Posunutie sály o podlažie nižšie je zaujímavé riešenie, ale vyžaduje neúmerne vysoké náklady na realizáciu. Nie je jasné, prečo pri prestavbe takéhoto rozsahu je zachovaná, resp. obnovená, súčasná sedlová strecha nad sálou. Návrh má nejasnú organizáciu prevádzky, vytvára neopodstatnené množstvo vstupov. Prístavby sú formálne nejasné.
Zápisnicu z hodnotenia poroty nájdete v prílohe:
Zdroj: Súťaž Leopoldov