Na podujatí sa predstaví až 37 vystavovateľov - popredných dodávateľov stavebných materiálov a inovácií s prezentáciou...
Novotvar v prostredí alpskej obce.
Hansgrohe - prémiová značka kúpeľňových riešení, ponúka nadčasový dizajn, technickú precíznosť a udržateľné inovácie...
Využite špeciálnu akciu Internorm: okná za minuloročné ceny a hliníkový kryt úplne zadarmo. Ponuka je časovo obmedzená!
Sumarizácia najdôležitejších inovácií, ktoré redefinujúcich využitie tohto energetického zdroja.
AMPHIBIA 3000 GRIP 1.3 od spoločnosti ATRO predstavuje modernú hydroizolačnú technológiu, ktorá spája vysokú odolnosť,...
Ambiciózne plány EK narazili na ekonomické možnosti domácností v jednotlivých členských štátoch –...
IDEA DOOR od spoločnosti JAP prináša do interiéru čistý minimalistický vzhľad vďaka bezrámovému riešeniu a precíznej...
Kontinuita riešenia od vonkajšieho obkladu až po kovania a kľučky.
Nástenné nadomietkové armatúry Vitus sú mimoriadne vhodné pre rýchlu a efektívnu...
Okenné profily z kompozitného materiálu RAU-FIPRO X od spoločnosti Rehau sú v porovnaní s tradičnými plastovými profilmi mnohonásobne...
Najnovší sortiment stolov pre zariadenie interiérov...
Spojenie moderného dizajnu, funkčnosti a svetla do harmonického architektonického prvku.
Kancelárska budova Baumit v slovinskom Trzine prešla premenou na moderné a udržateľné pracovisko. Architekti kládli dôraz...
Mottom šiesteho ročníku on-line konferencie odborníkov Xella Dialóg je Efektívny návrh budov 2025+: zmeny a riešenia

Verejnú architektonickú súťaž vyhlásila mestská časť Bratislava-Rača. Predmetom bol ideový návrh využitia a prestavby budovy Nemeckého kultúrneho domu a jej začlenenie do urbánnej štruktúry v lokalite „Barónka“. Účelom súťaže bolo získať ideové námety pre najlepší návrh usporiadania vnútorných častí budovy kultúrneho domu a súvisiacich exteriérových priestorov, ktorý prispeje ku rozvoju spoločenského života obce.
Bolo odovzdaných 7 súťažných návrhov, ktoré posudzovala porota v zložení: Mgr. arch. Miloš Juráni - predseda poroty, Doc. Ing. arch. Milan Andráš, PhD., Ing. arch. Miroslav Minca, Ing. arch. Pavol Pokorný, Mgr. Rastislav Žitný (prvý náhradník) a Ing. arch. Julius Toma (druhý náhradník).
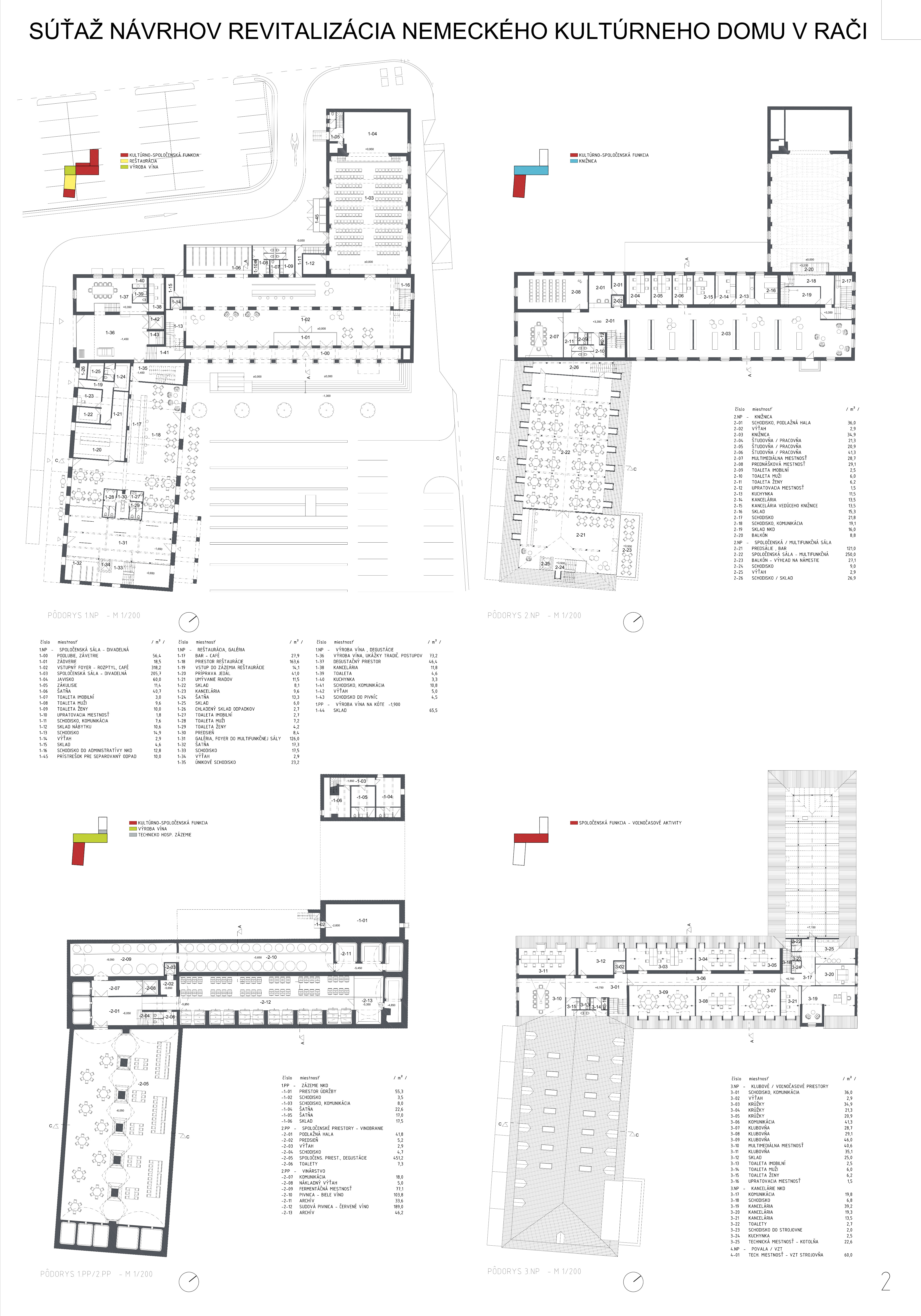
Návrhy priniesli rôzne funkčne náplne a podnetné architektonické riešenia Nemeckého kultúrneho domu. Pre ďalšie rozvíjanie génia loci budovy NKD a oživenie vinárskej tradície, ktorá je v Rači zakorenená sa rozhodla komisia udeliť prvú cenu návrhu č.2, ktorý spĺňa funkčné súvislosti a s minimálnymi zmenami rozvíja myšlienku vinárstva a vhodne sprístupňuje atraktívne pivničné priestory novým vstupom do fasády budovy z námestia. Návrh zvolil okrem existujúcich kultúrnospoločenských funkcii umiestniť do objektu aj reštauračné služby, galériu a v horných poschodiach ubytovanie formou penziónu. Tieto funkcie sa navzájom dopĺňajú a podporujú. Všetky funkcie sú samostatné a prístupné priamo z námestia, vďaka presunutiu garáži do podzemia ostáva námestie voľné pre ďalšie voľnočasové aktivity.
Podobný koncept rozvíja aj druhy ocenený návrh č.5, ktorý sprístupňuje pivnice odvážnym vykrojením do námestia v tvare kruhu. Z navrhovaných funkcii sú zaujímavé zdieľané kancelárie - inkubátory pre začínajúce firmy, ktoré sľubujú oživenie priestoru formou komunitného života.
Tretí ocenený návrh č.3 tiež správne posilnil myšlienku vinárskeho domu, ktorý rozšíril kultúrnospoločenské aktivity, podzemnú garáž a ubytovacie kapacity v podkrovnej časti NKD. Vchody však ostali nezmenené, značne poddimenzované. Vstup do podzemia garáží rozdeľuje námestie, čo zabraňuje ďalšiemu využitiu.
Niektoré návrhy spracovávali aj tému prestavby NKD na administratívnu budovu, táto funkcia je však nevhodná, vzhľadom na tektonické členenie budovy, absenciu vertikálnych komunikačných jadier, veľkoplošných flexibilných priestorov a vhodného presvetlenia (existencia malých okien a vikierov). Komisia môže konštatovať, že všetky návrhy priniesli podnetné riešenia, pomohli odhaliť nevyužitý potenciál budovy NKD. Pre zadávateľa súťaže, Mestskú časť Bratislava-Rača budú výborným východiskovým podkladom pre ďalší postup pri riešení funkcii a architektonickom stvárnení historicky významného objektu. Hodnotenie odbornej komisie podporuje myšlienku kontinuity vinárskej tradície, typickej pre Raču, v ktorej obnova budovy NKD zohráva dôležitý, zatiaľ naplno nevyužitý potenciál. Porota sa preto rozhodla oceniť všetky nevíťazné návrhy odmenami.
Predstavujeme jednotlivé súťažné návrhy:
1. cena 3000 EUR: Návrh č. 2
Autor: Ing. arch. Radovan Krajňak
Libreto:
Budova Nemeckého kultúrneho domu má neuveriteľný potenciál z hľadiska využiteľnosti na kultúrno-spoločenské akcie a propagácii Račianskeho vinohradníctva a vinárstva. Navrhované využitie a rozsah služieb v objekte NKD napĺňa celé spektrum, od kultúrno- spoločenských udalostí rôznych veľkosti a zamerania, cez reštauračné služby, až po poskytnutie ubytovacích kapacít penziónového typu. Samostatne fungujúce celky v rámci NKD sa navzájom dopĺňajú a vytvárajú spolu moderné kultúrno-spoločenské centrum poskytujúce komplexné služby. Celý objekt prispieva k zvýšeniu turistického ruchu v samotnej Rači a celej oblasti.
2. cena 2000 EUR: Návrh č. 5
Autori - A81 s.r.o.: Ing. arch. Tomáš Čechvala, Ing. arch. František Ščury, Ing. arch. Filip Galko, Ing. arch. Daniela Schuchmannová
Libreto:
Ťažiskom tohto návrhu je otvorenie pôvodného technologického priestoru vinárskych pivníc. Vytvorené priame prepojenie vonkajšieho prostredia s vnútorným výtvára schodisko s pobytovou zónou. V návrhu je odstránená prístavbu z roku 2010, ktorá nebola dokončená. Doplnené sú hlavné vstupy do prevádzok a vstupných zón objektu. Navrhované funkcie sú odvodené od existujúceho stavu a plánovanej výstavby obytného súboru - parter je oživený reštauráciou a obchodnými priestormi, nadzemné podlažia sú venované administratívnym priestorom a co-workingovým ateliérom - zdieľaným priestorom pre komunitu nezávisle pracujúcich ľudí nielen z Rače. Viaceré úrovne priestorov sú prepojené točítými schodiskami - motív odvodený od analógie stáčania hrozna.
3. cena 1000 EUR: návrh č. 3
Autori - hantabal architekti: Ing. arch. Juraj Hantabal, Ing. arch. Michaela Hantabalová, Ing. arch. Jakub Hanták
Libreto:
Architekt v tomto návrhu pristupoval ku NKD s rešpektom v celej jeho podobe, architektonickom stvárnení, urbanistickom usporiadaní so všetkými súvislosťami na okolie. Ale keďže na nachádzame v inom storočí ako bol postavení, samozrejme prichádzajú nové nároky na funkčnú náplň objektu, ako ho zaradiť do fungovania dnešného sveta. Znovu ho vraciame do života a snažíme sa naplniť objekt požadovanými funkciami a ich optimálnym usporiadaním v existujúcom objekte, tak aby mohli jednotlivé prevádzky fungovať od seba nezávislo. Námestie bolo možné realizovať samostatne bez priestorov Nemeckého kultúrneho centra. Je koncipované jednoduchým rastrom stromov a celoplošne pochôdznym kamenným mlatom, ktorý prírodne ladí s vinohradníckym okolím Rače. Tým sa stáva námestie výsostne peším prostredím doplnené o parkové prvky navádzajúce k vstupným priestorom do objektu NKD. Ich tvar je odvodený od dreveného sudu na víno. Pod námestím uvažujú autori s viacpodlažnou podzemnou garážou. Počet podzemných podlaží ostáva v návrhu otvorený, s tým, že jedno podlažie svojim jednoduchým konštrukčným tvarom obsiahne 47 parkovacích miest.
Súťažný návrh č. 1 - odmena 400 EUR
Autori: Ing. arch. Štefan Rafanides, Ing. Juraj Veselý
Libreto:
Hlavným motívom je znovunavrátenie kultúry do objektu Nemeckého kultúrneho domu, zapojenie do organizmu sídla, prepojenie s okolím a oživenie miesta po celý rok. Cieľom riešenia návrhu číslo 1 bolo pozdvihnúť kultúrnu, spoločenskú, architektonickú hodnotu pamiatky, vytvorením nového predpolia s námestím a pohotovostným parkovaním. Hlavnými tézami konceptu bolo doplnenie už zaužívanej kultúrno spoločenskej funkcie v hlavnej sále krídla „B“ o ďalšie verejné funkcie so zachovaním tradície výroby vína. Reorganizovaním priestoru námestia sa mal vytvoriť spoločensko-stretávací priestor adekvátny pre centrum kultúry s možnosťou usporiadania akcií počas celého roka bez zabratia parkovacích plôch. Prinavrátenie zelene v podobe stromoradia pred hlavnou budovou mal byť odkaz na históriu, kedy zeleň bola súčasťou tohto priestoru. Hlavným cieľom bolo previazanie vnútorného života s exteriérom pomocou zväčšenia presklených plôch v parteri krídla „C“ a podlubí hlavnej budovy. Dopravné riešenie bolo akceptované a prebraté z projektu Rínok Rača, kde je navrhnutá reorganizácia priľahlých dopravných plôch a križovatiek. Architektonický koncept tohto návrhu je založený na rešpektovaní objektu v jeho architektonickom výraze s prvkami nemeckej hradnej architektúry a dopĺňa ho súčasnou jednoznačne odlíšenou výrazovou vrstvou.
Súťažný návrh č. 4 - odmena 200 EUR
Autori: Bc. Alena Tundérová, Bc. Monika Molnárová, Romana Hajduková
Libreto:
Nemecký kultúrny dom nachádzajúci sa v Bratislave v mestskej časti Rača oplýva bohatou históriou a tradíciou vinárstva. Preto sa architekti tohto návrhu rozhodli obnoviť výrobu vína v Nemeckom dome a voliť funkcie, ktoré by umožňovali sprístupniť objekt širšej verejnosti, ako to bolo v minulosti. V hlavnej časti objektu situovali detašované pracovisko ÚĽUVu (kurzy šitia, čipkárstva, umeleckého šperku, drotárstva, košikárstva s grafickou a keramickou dielňou a tanečnou sálou) s možnosťou workshopov a krátkodobého prenocovania netradičnou formou. Zázemie reštaurácie sa rozhodli presunúť do suterénu pod krídlo B, aby neuberali priestor na sedenie v reštaurácií. Reštauráciu otvárajú nielen v rámci vnútorného priestoru, ale prepájajú ju aj s exteriérom pomocou terasy. Otvorenie vnútorného priestoru nie je len z funkčného hľadiska, ale aj z hľadiska presvetlenia, keďže v súčasnosti sú dané priestory tmavé.
Súťažný návrh č. 6 - odmena 200 EUR
Autori: Akp, spol. s.r.o: Ing. arch. Jan Pavúk, PhD., Dipl. Ing. arch. Michal Kravec
Libreto:
Vínna pivnica je prístupná cez nové schodisko s výťahom a návrh počíta s zrekonštrukciou. Podzemné klenbové miestnosti sú vhodné pre rôzne akcie, ako sú banket, večera, recepcia atď. Vstupná hala na prízemí je ústredným bodom budovy, z ktorého sa dajú dosiahnuť všetky funkčné priestory budovy. Na prízemí hlavnej budovy sa nachádzajú verejno - kultúrne priestory.
Súťažný návrh č. 7 - odmena 200 EUR
Autori: Mgr. art. Martin Uhrík, PhD., Bc. Zuzana Závodská, Bc. Ivana Rusnáková, Bc. Petronela Palčová
Libreto:
Základnou myšlienkou tohto návrhu je združenie väčšiny reprezentatívnych, servisných a kultúrnych funkcií, ktoré ponúka mestská časť Rača svojim občanom, do jedného celku v objekte Nemeckého domu. Priestor pred Nemeckým domom je podľa architekta jedným z mála verejných priestorov v Rači, kde je možné vytvoriť námestie. Návrh definuje polootvorené námestie ohraničené z dvoch strán Nemeckým domom z jednej strane pešou promenádou nadväzujúcou na návrh obytného komplexu Rínok a ulicou Barónka. Oproti terajšiemu riešeniu je zmenšené parkovisko, ktoré bude slúžiť len pre návštevníkov úradu. Parkovisko pre zamestnancov umiestňujeme za budovou v priestore asanovanej stavby. Parkovisko je od pobytovej plochy námestia oddelené zeleňou. Námestie je zariadené lavičkami, malým detským ihriskom, stojanmi na bicykle a verejným osvetlením.