Advertorial

Pozvánka na 2. ročník stavebného veľtrhu BigMarket na Slovensku

Na podujatí sa predstaví až 37 vystavovateľov - popredných dodávateľov stavebných materiálov a inovácií s prezentáciou...

Hotel Hirschen Spa House, Rakúsko

Novotvar v prostredí alpskej obce.

Vytvorte si kúpeľňu snov: dizajnové riešenie od značky hansgrohe

Hansgrohe - prémiová značka kúpeľňových riešení, ponúka nadčasový dizajn, technickú precíznosť a udržateľné inovácie...

Okná Internorm za minuloročné ceny + hliníkový kryt zdarma!

Využite špeciálnu akciu Internorm: okná za minuloročné ceny a hliníkový kryt úplne zadarmo. Ponuka je časovo obmedzená!

Moderné plynové technológie: Efektivita a inovácie pre 21. storočie

Sumarizácia najdôležitejších inovácií, ktoré redefinujúcich využitie tohto energetického zdroja.

Utesňovanie spodných stavieb pomocou hydro-aktívnej fólie AMPHIBIA.

AMPHIBIA 3000 GRIP 1.3 od spoločnosti ATRO predstavuje modernú hydroizolačnú technológiu, ktorá spája vysokú odolnosť,...

Dekarbonizácia individuálneho vykurovania domácností – Green Deal evolučne a nie revolučne

Ambiciózne plány EK narazili na ekonomické možnosti domácností v jednotlivých členských štátoch –...

Minimalistické dvere IDEA – technická precíznosť a čistota prevedenia

IDEA DOOR od spoločnosti JAP prináša do interiéru čistý minimalistický vzhľad vďaka bezrámovému riešeniu a precíznej...

Dom s výhľadom na údolie, Dlouhý Most (ČR)

Kontinuita riešenia od vonkajšieho obkladu až po kovania a kľučky.

Schell Vitus – osvedčené riešenie pre sprchy a umývadlá vo verejnom sektore s viac ako desaťročnou tradíciou

Nástenné nadomietkové armatúry Vitus sú mimoriadne vhodné pre rýchlu a efektívnu...

Kompozitné okná predstavujú súčasnosť a budúcnosť

Okenné profily z kompozitného materiálu RAU-FIPRO X od spoločnosti Rehau sú v porovnaní s tradičnými plastovými profilmi mnohonásobne...

Myotis - stoly 2025

Najnovší sortiment stolov pre zariadenie interiérov...

Priemyselné sklenené priečky Dorsis Digero: svetelné rozhranie pre moderné interiéry

Spojenie moderného dizajnu, funkčnosti a svetla do harmonického architektonického prvku.

Význam prirodzeného svetla pre moderné a flexibilné pracovné prostredie

Kancelárska budova Baumit v slovinskom Trzine prešla premenou na moderné a udržateľné pracovisko. Architekti kládli dôraz...

Konferencia Xella Dialóg predstaví novinky a trendy v stavebníctve

Mottom šiesteho ročníku on-line konferencie odborníkov Xella Dialóg je Efektívny návrh budov 2025+: zmeny a riešenia

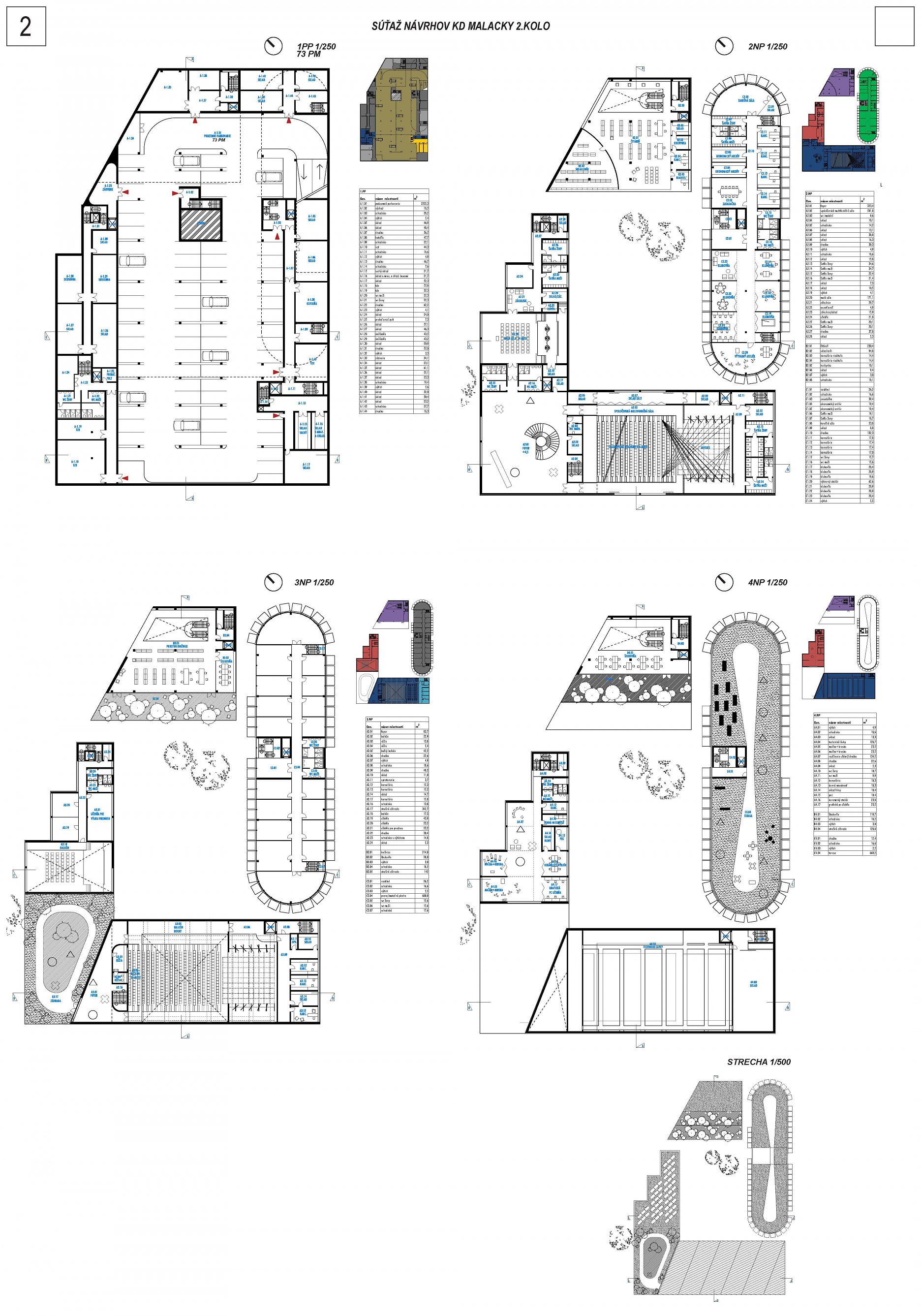
Kultúrny dom Malacky - výsledky súťaže

Zvíťazil ateliér N/A.
Súťaže
Red 323.02.2022
74720+64
Kultúrny dom Malacky - výsledky súťaže

Mesto Malacky vyhlásilo koncom júla 2021 dvojkolovú urbanisticko-architektonickú súťaž návrhov na nový kultúrny dom s multifunkčnou spoločenskou sálou, základnou umeleckou školou, mestským kultúrnym centrom, reštauráciou a barom. Na pozemku pri križovatke Zámockej a Radlinského ulice v súčasnosti stojí bývalá budova mestského úradu (predtým sídlo spoločnosti Nafta Gbely). Víťazný návrh ateliéru N/A počíta s jej zbúraním, čo posilní výškovú dominantnosť kostola v centre mesta. Koncept delí funkcie do samostatných objektov kultúrneho domu a knižnice. Blok uzatvára parkovací dom.

Súťaž prebiehala v dvoch kolách. V prvej etape predložilo 25 kolektívov urbanisticko-architektonické riešenie verejného priestoru v okolí kultúrneho domu, koncepčné riešenie parteru, prevádzky a priestorového usporiadania. Na hodnotiacom zasadnutí dňa 26.10. 2021 rozhodla porota o vylúčení dvoch návrhov a určila trojicu súťažiacich, postupujúcich do druhého kola. Ateliéry N/A, Totalstudio a young.s architekti v druhom kole podrobne rozpracovali koncept z prvej etapy súťaže. Zvíťazil kolektív N/A.

 

Hodnotiaca komisia v zložení: Martin Jančok (predseda poroty), Marek Chalupa, Branislav Škopek a Milan Ondrovič rozhodla v druhom kole o výsledkoch nasledovne:

1. miesto: N/A s.r.o.
Autori: Benjamín Brádňanský, Vít Halada
Režijná odmena 9 000 € + cena 3 000 € = 12 000 €

Komentár poroty:

Organizace budov do bloku, zpevnění profilů přilehlých ulic potvrzením stavební čáry ve stopě uliční čáry, nastavení přiměřeně vysoké míry využití pozemku bloku v centru města, udržení přiměřené hladiny zástavby, artikulace veřejného a poloveřejného prostoru a v neposlední řadě individualizace charakteru jednotlivých budov jsou hlavní atributy návrhu č.13 ve 2.kole soutěže, které porota hodnotí jako nejvhodnější východiska pro regulaci území a vhodný předpoklad pro realizaci kulturního domu v tomto místě.

Návrh ověřil vhodnost využití pozemků bloku pro větší kapacitu, než vyžaduje stavební program uvažovaného kulturního domu. Takto uvažovaná hustota zástavby se jeví v tomto místě centra města jako důvodná a přiměřená, a to jak z pohledu historických hodnot místa, tak z dlouhodobého horizontu plánování rozvoje města.

Porota podmiňuje návazné podrobnější provedení návrhu a následnou realizaci kulturního domu zpracováním důsledné regulace celého bloku autory návrhu v prvotní fázi zakázky a dále doložením návrhu i všech ostatních budov v bloku (mimo vlastní kulturní dům) na úrovni komplexní studie zpracované ideálně za účasti stavebníka/ů těchto dalších budov (ideálně alespoň ve dvou alternativních návrzích zpracovaných jinými autory) tak, aby byla doložena vhodnost, potřebná univerzalita a realizovatelnost celého bloku včetně společného suterénu.

Porota doporučuje při severovýchodní hranici bloku doplnit dopravního propojení Zámocké a slepé ulice podél bytového domu. Z hlediska dopravní obsluhy je žádoucí ze Zámocké ulice eliminovat tranzitní dopravu a klást důraz na zvýšení priority nemotoristické dopravy.

Ze soutěžního návrhu je patrný zřejmý důraz na sledovaný význam koncepčního urbanisticko-architektonického řešení úkolu a rovněž tak i provozního a dispozičního řešení jednotlivých budov. Prezentovaný charakter a vizuální podoba kulturního centra, ZUŠ i knihovny se však jeví jako velmi schematické, formální a zatím postrádající potřebný nosný názorový potenciál. Přestože je princip souboru individualizovaných solitérů sestavených do městského bloku jedním z klíčových východisek pro celý návrh, nepromítá se tento princip do charakterové individualizace budovy ZUŠ od vlastní budovy kulturního centra, což celkově silný koncept oslabuje a obě budovy zbytečně monumentalizuje. Porota proto doporučuje důslednou individualizaci charakteru jednotlivých budov a doporučuje volit charakter více instrumentální a méně monumentální.

Při dalším rozpracování návrhu je třeba cílit na vytvoření budov důsledně městského charakteru, s městským aktivovaným parterem, nadále sledovat posilování významu Zámocké ulice jako historicko-kulturní osy a zároveň páteře historického centra města s řadou atraktorů. Je třeba podporovat kultivaci prostoru vlastní Zámocké ulice oboustranným stromořadím, doplnit chybějící chodníky pro pohodlnou chůzi podél ulice, doplnit funkční městský mobiliář a nevyloučit obslužnou automobilovou dopravu v ulicích po obvodě bloku. Ke zvážení je stále možnost využití nosných konstrukcí stávající budovy či její části, ať z důvodu ekonomického či z důvodu udržitelného rozvoje.
Pro úspěšné provedení ambiciózní ideje hybridního bloku je nezbytné důsledně promyslet etapizaci rozsáhlé výstavby tak, aby se návrh v průběhu náročné realizace nezasekl v nedokončeném torzálním stavu. Jinými slovy, aby byl urbanisticky a architektonicky plnohodnotným ve všech etapách výstavby.

Vizualizácie:

 

Súťažné panely:

 

2. miesto: Totalstudio, s.r.o.
Autori: Ing. arch. Michal Kontšek, Mgr.art. Aleš Šedivec, Ing. arch. Miroslava Kamenská, Mgr. art Tomáš Tokarčík
Režijná odmena 9 000 € + cena 2 000 € = 11 000 €

Komentár poroty:

Návrh predstavuje formáciu dvoch objektov - prestavby existujúcej budovy bývalého Mestského úradu a novostavby kultúrneho domu. Je pragmatický, ekonomický a z pohľadu výstavby veľmi realistický. Súčasne deklaruje ambíciu byť ekologicky a kultúrne udržateľným. V súvislosti s tým porota oceňuje prejavenú zodpovednosť a odvahu zachovať predmetnú budovu napriek tomu, že súčasná verejná mienka je skôr za jej odstránenie. Veľmi pozitívne je hodnotené aj jednoznačné umiestnenie nového objektu kultúrneho domu pozdĺž bytového domu, čím dochádza k zamedzeniu potenciálne konfliktného vzťahu obytnej štruktúry s budúcim rušným verejným priestranstvom.

Obidva objekty vytvárajú vo svojom vzájomnom priestorovom vzťahu trojuholníkové námestie otvorené smerom k Zámockej ulici. Celkový (urbanistický) návrh vrátane bezprostredného okolia budovy však aj po prepracovaní v druhom kole súťaže pôsobí pomerne schématickým dojmom. Chýba presnejšia artikulácia a štruktúrovanie tohoto kľúčového verejného priestoru.

Po architektonickej, konštrukčnej a materiálovej stránke sú navrhované objekty prevedené na veľmi vysokej úrovni. Sú kultivovane stvárnené a dispozične premyslené. Forma novonavrhovaného kultúrneho domu svojím prevedením reprezentuje solídnu mestskú budovu 21. storočia. Na druhej strane transformácia objektu bývalého Mestského úradu radikálne mení jeho image skrz zvýraznenie miery otvorenosti voči vzniknutému námestiu. Bonusom je kaviareň na jej streche, ktorá sprístupňuje občanom jedinečný výhľad na centrum mesta. Takáto zásadná zmena by mohla viesť k pozitívnemu prijatiu aj zo strany skeptickej časti verejnosti.

 

3. miesto: young.s architekti s.r.o.
Autori: Ing. arch. Jozef Bátor, PhD., Ing. arch. Tomáš Medlen, Ing. arch. Michaela Perejdová, Lucia Višváderová
Režijná odmena 9 000 € + cena 1 000 € = 10 000 €

Komentár poroty:

Návrh v porovnaní s prvým kolom figúru kultúrneho centra zjednodušil do pôdorysného tvaru písmena L –tak vzniká plocha nástupného plató ktorá sa orientuje na kompozičnú os zámockej ulice. Plató je artikulované znížením oproti nivelete Zámockej ulice. Zároveň sa znížením tejto nivelety dostane jestvujúce pozemné podlažie výškového domu zo severnej strany fasády na parter.

Do takto vytvoreného plató je potom orientovaný aj foyer hlavnej sály, samotná sála a taktiež prevádzka kaviarne.

Táto koncepcia organizácie nástupu, s vytvorením vlastného predpriestoru je jednou z možných správnych odpovedí a v situačných vzťahoch funguje dobre.

Problémom návrhu je však istá schematickosť a nekonzistentnosť v dispozično-prevádzkovom riešení, ale aj v samotnom architektonickom riešení.
Architektonicko hmotové riešenie prináša pridanie hmoty na fasádu výškového domu zo strany Radlinského ulice – čo sa javí otázne.

Problematické sa tiež zdá byť zasklenie dvoch fasád hlavnej sály – najmä to severné otvára výhľady do akéhosi zbytkového priestoru medzi dvomi domami a snaží sa ho rehabilitovať výsadbou, pričom v tejto polohe by bolo namieste skôr ukľudnenie výhľadu v podobe plnej steny čo by malo aj prevádzkové výhody. Naopak dôležité a správne prepojenie s vytvoreným plató sa dalo zasa dosiahnuť aj viac utilitárnym spôsobom umožňujúcim riešenie akustiky sály. Zázemie sály situované na vyššom podlaží, a taktiež samotné pohyblivé riešenie podlahy sály sa javí ako otázne a neprimerané.

Foyer do malej sály zo strany Radlinského ulice a zbytkový priestor premenný na galériu pôsobia skôr ako kulisa a nepresvedčivo.

Porota mala taktiež výhrady k riešeniu celej fasády ponechanej výškovej stavby ako zasklenenej – toto riešenie generuje pochybnosti ohľadom energetickej efektivity ale aj vhodnosti vzhľadom na charakter umiestnených prevádzok.

Odborná časť porty mimoriadne vysoko hodnotí presvedčivé urbanistické riešenie a taktiež pokus o prácu s jestvujúcou substanciou - keďže riešenie okrem výškovej budovy revitalizuje a transformuje aj objemy dvoch menších sál. Toto rozhodnutie jednak generuje kultúrnu kontinuitu a cenné vrstvenie mesta, ale taktiež ekonomickú a najmä ekologickú udržateľnosť.

 

Odmena: DOXA s.r.o. 
Autori: Ing. arch. Tomáš Boroš, ArtD., Ing. arch. Ondrej Jurčo, Ing. arch. Maroš Mitro, Bc. Pavel Bakajsa, Jasmín Al-Husseinová, Ing. arch. Branislav Ivan
Pridelená odmena: 1500 €

 

 

Súťažné návrhy z prvého kola:

Postup do druhého kola - návrh č. 13: N/A
Autori: Benjamín Brádaňanský, Vít Halada

 

Postup do druhého kola - návrh č. 20: Totalstudio, s.r.o.
Autori: Ing. arch. Michal Kontšek, Mrg. art. Aleš Šedivec, Ing. arch. Miroslava Kamenská, Mgr.art. Tomáš Tokarčík

 

Postup do druhého kola - návrh č. 18: young.s architekti s. r. o.
Autori: Ing. arch Jozef Bátor, PhD., Ing. arch. Tomáš Medlen, Ing. arch. Michaela Perejdová, Lucia Višváderová

 

4. miesto - návrh č. 7:  MODIOR architects and engineers s.r.o (v čase súťaže  ENVEA, s.r.o.)
Autori: Milan Škorupa, Stanislav Kadlečík, Peter Kokinda


5. miesto - návrh č. 21: DOXA
Autori: Ing. arch. Tomáš Boroš, ArtD., Ing. arch. Ondrej Jurčo, Ing. arch. Maroš Mitro, Bc. Pavel Bakajsa, Jasmín Al-Husseinová, Ing. arch. Branislav Ivan

 

6. miesto - návrh č. 17: plusminusarchitects, s.r.o.
Autori: Ing. arch. Maroš Fečík, Ing. arch. Filip Kandravý, Ing. arch. Katarína Bergerová, Ing. arch. Martin Hudec, PhD.

 

7. - 10. miesto - návrh č. 10: Ateliér ASKO B&G s.r.o.
Autori: Ing Gabriel Machala, Ing. arch. Jana Matlovičová, Ing. arch. Martin Machala


7. - 10. miesto - návrh č. 12: SLLA s.r.o.
Autori: Michal Sulo, Miriam Lišková
Spolupráca: Sebastian Benzoni, Claudia Montedoro


7. - 10. miesto - návrh č. 14: Ing. arch. Zdeněk Trefil
Autor: Ing. arch. Zdeněk Trefil


7. - 10. miesto - návrh č. 23: AATELIER
Autori: Andrej Serafin, Bruno Pella, Patrik Michal Berinšter, Michal Bartek


11. - 13. miesto - návrh č. 6: Ing. arch. Juraj Palovič
Autori: Ing. arch. Juraj Palovič, Ing. arch. Petr Strojný, Jakub Čerešník, Lukáš Bím


11. - 13. miesto - návrh č. 11: Ing. Arch. Matúš Pastorok
Autori: Ing. Arch. Matúš Pastorok, Klára Kubíčková


11. - 13. miesto - návrh č. 19: geome3 s.r.o
Autori: Ing. arch. Martin Gallovský, Ing. Ing. arch. Peter Derevenec, Ing. arch. Mária Derevencová


14. - 23. miesto - návrh č. 1: Ing. arch. Ladislav Bobčák PhD.
Autori: Ing. arch. Ladislav Bobčák, Viktor Malinovský, Karolína Hamráková


14. - 23. miesto - návrh č. 2: Ing. arch. Ján Mihalov
Autori: Ing. arch. Ján Mihalov


14. - 23. miesto - návrh č. 3: MUUR s.r.o.
Autori: Ing. arch. Vladimír Netík, Mgr. art. Marianna Markusková


14. - 23. miesto - návrh č. 4: adbau+, s.r.o.
Autori: Ing. arch., ArtD. Ivo Flimmel

 

14. - 23. miesto - návrh č. 8: cityprojekt
Autor: Ing.arch. Pavol Citovický

 

14. - 23. miesto - návrh č. 9: ATELIÉR A. BKPŠ Šutek s.r.o.
Autori: Akad. arch. Eduard Šutek, Ing. arch. Andrej Šutek


14. - 23. miesto - návrh č. 15: studený architekti s.r.o.
Autori: Ján Studený, Peter Stec, Maroš Bátora


14. - 23. miesto - návrh č. 16: 2021 s.r.o.
Autori: Peter Lényi, Ondrej Marko, Lenka Borecká, Anna Kvasniaková, Jana Kvasniaková


14. - 23. miesto - návrh č. 22: SK.INFLOW DESIGN s.r.o.
Autori: Ing. arch. Andrej Boroš, Ing. arch. Michal Ráchela, Ing. arch. Michal Pulman, Ing. Nicole Končeková, Tomáš Rausz


14. - 23. miesto - návrh č. 25: Ing. arch. Ladislav Bobčák
Autori: Ing. arch. Ladislav Bobčák, Viktor Malinovský, Karolína Hamráková

 

Vylúčený - návrh č. 5

 

Vylúčený - návrh č. 24:

 

Zápisnica z 2. kola súťaže:


Zápisnica z 1. kola súťaže:

 

Zoznam účastníkov:

Spracovatelia súťaže: obstarame.sk + BAKYTA

Súvisiace články

Vložené
23. február 2022
0
7472
Hlavný obsahHlavný obsah
Čakajte prosím