Na podujatí sa predstaví až 37 vystavovateľov - popredných dodávateľov stavebných materiálov a inovácií s prezentáciou...
Novotvar v prostredí alpskej obce.
Hansgrohe - prémiová značka kúpeľňových riešení, ponúka nadčasový dizajn, technickú precíznosť a udržateľné inovácie...
Využite špeciálnu akciu Internorm: okná za minuloročné ceny a hliníkový kryt úplne zadarmo. Ponuka je časovo obmedzená!
Sumarizácia najdôležitejších inovácií, ktoré redefinujúcich využitie tohto energetického zdroja.
AMPHIBIA 3000 GRIP 1.3 od spoločnosti ATRO predstavuje modernú hydroizolačnú technológiu, ktorá spája vysokú odolnosť,...
Ambiciózne plány EK narazili na ekonomické možnosti domácností v jednotlivých členských štátoch –...
IDEA DOOR od spoločnosti JAP prináša do interiéru čistý minimalistický vzhľad vďaka bezrámovému riešeniu a precíznej...
Kontinuita riešenia od vonkajšieho obkladu až po kovania a kľučky.
Nástenné nadomietkové armatúry Vitus sú mimoriadne vhodné pre rýchlu a efektívnu...
Okenné profily z kompozitného materiálu RAU-FIPRO X od spoločnosti Rehau sú v porovnaní s tradičnými plastovými profilmi mnohonásobne...
Najnovší sortiment stolov pre zariadenie interiérov...
Spojenie moderného dizajnu, funkčnosti a svetla do harmonického architektonického prvku.
Kancelárska budova Baumit v slovinskom Trzine prešla premenou na moderné a udržateľné pracovisko. Architekti kládli dôraz...
Mottom šiesteho ročníku on-line konferencie odborníkov Xella Dialóg je Efektívny návrh budov 2025+: zmeny a riešenia

Ucelená vízia rozvoja štvortisícového mesta Leopoldov a systematická práca na projektoch, ktoré presahujú jedno volebné obdobie prináša dlhodobo svoje ovocie. Najnovšia realizácia kolektívu Architekti BKPŠ vyrástla v priamej nadväznosti na oceňovaný Mestský úrad. Potenciál obnovy objektu v centrálnej zóne sídla preukázala overovacia štúdia ateliéru 2021 z roku 2018. Výsledné architektonické riešenie jaslí, dokončených v priebehu minulého roku, dôsledne zachováva charakteristickú uličnú fasádu domu. Monochromatická farebná schéma zároveň identifikuje objekt ako súčasť nového funkčného bloku občianskej vybavenosti.
Realizáciu predstavíme so sprievodným textom Eleny Alexy, ktorý pôvodne vyšiel v časopise PROJEKT 01/2024:
Samozrejmá vyrovnanosť
Je nás asi viac, čo máme kdesi hlboko uloženú trpko podfarbenú spomienku na útle detstvo strávené v jasliach či škôlke. Nie každý je kolektívny typ, nie každý si rýchlo zvykne na prostredie, ktoré je neznáme, do istej miery neosobné, kde vládnu stereotypy striktného režimu aktivít, spánku aj stravovania. Dodnes si pamätám pach mojej škôlky a hoci to boli časy vcelku milé, ten pocit zvláštneho smútku a ohrozenia mi zostal. Pátranie po príčine vedie v prvom rade k personálu a, samozrejme, k strave, ktorá mi spôsobila nejednu ťažkú chvíľku. No nezanedbateľnou súčasťou celkového spomienkového obrazu je aj škôlka samotná. Jej budova, interiér, záhrada. S úzkosťou sa mi vybavujú rôzne tmavé priestory a zákutia a úplná absencia súkromia na spoločných toaletách. Ak má prostredie, v ktorom trávime kus života, vplyv na to, ako sa cítime, o čom isto nikto nepochybuje, tak práve jasle a škôlky majú značnú spoluúčasť na tom, či detskú dušu zaplaví dobro, a či sa im podarí vybudovať dôveru vo veľký svet za prahom ich vlastného domova. Malé deti vnímajú pocitovo, a nie je to len o láskavom prístupe, ale aj o podobe priestoru, jeho prívetivosti, svetle, vôni, zvukoch, teple či chlade, farbách a materiáloch.
01
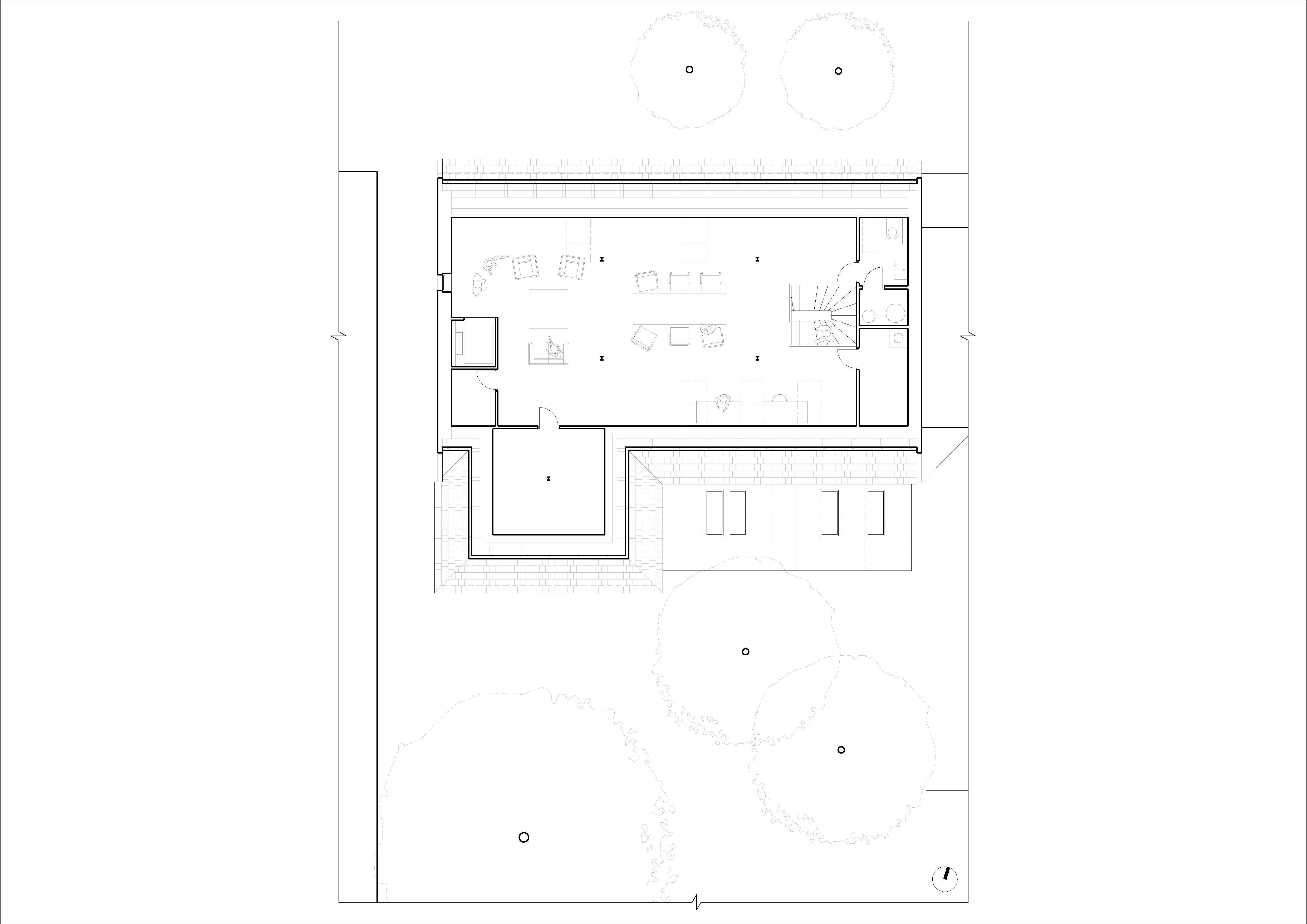
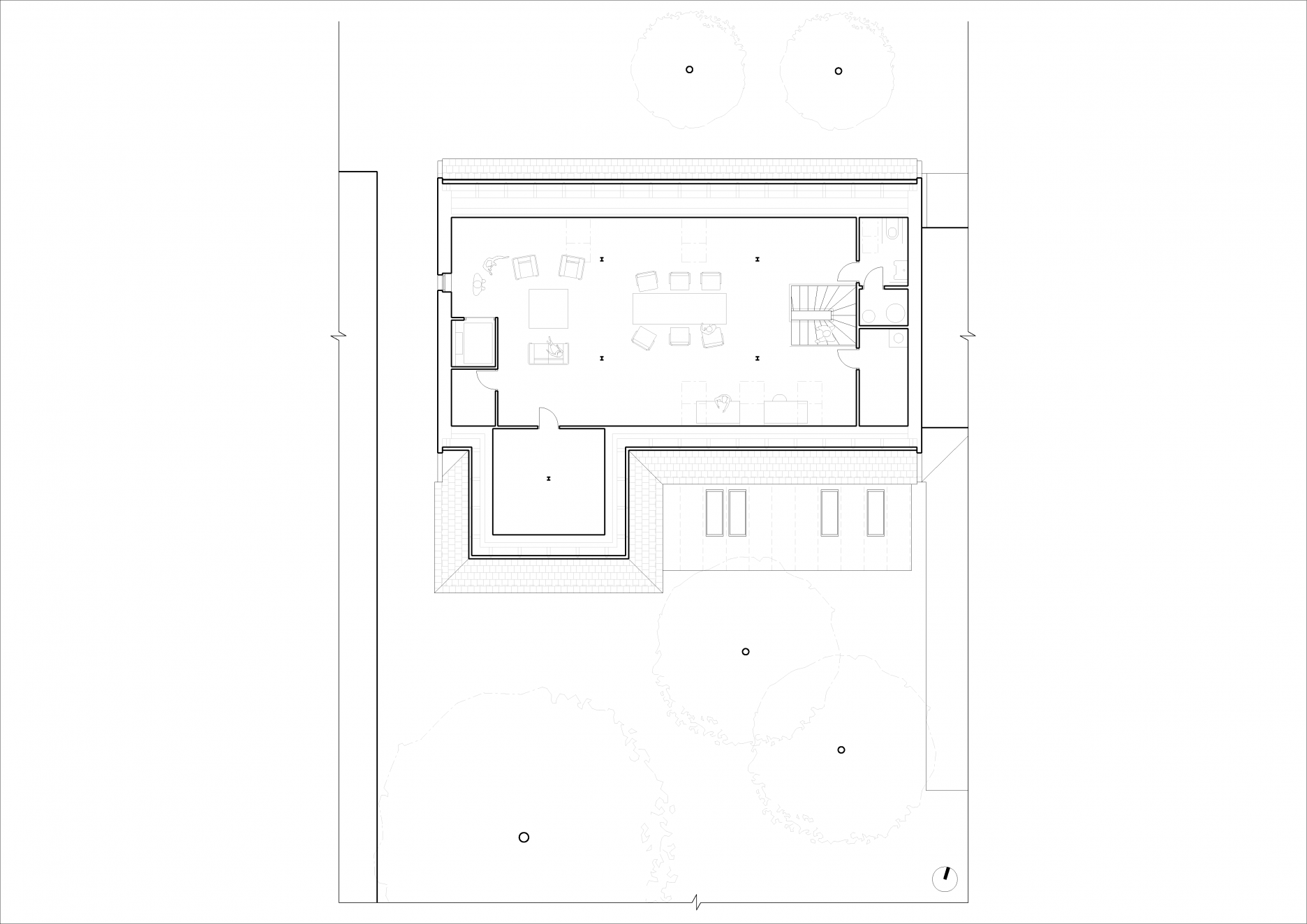
Jasle v Leopoldove sú rozhodne miestom, ktoré sa oplatí dôkladne preskúmať. Stačí vojsť a každá matka zaplesá, takto má vyzerať kvalitné predškolské zariadenie. Ale čo je azda ešte dôležitejšie než úhľadné povrchy a materiály, starostlivo zvolené farebné odtiene a logická prevádzková schéma, je to, čo sa týmto stavebným zásahom udialo v úplnom centre Leopoldova, a tiež, do akého objektu sa vlastne jasle dostali a akou metódou sa pristupovalo k jeho adaptácii. A nesmieme zabudnúť na ďalšiu zásadnú záležitosť - rozhodnutie, ktoré viedlo k zriadeniu jaslí práve v tomto dome a čo mu predchádzalo.
02
Je známe, že Leopoldov má momentálne mimoriadne rozhľadené a činorodé vedenie. Bodom nula je z hľadiska architektonickej kultivácie tohto cca 4-tisícového mestečka nepochybne rekonštrukcia a dostavba budovy mestského úradu od architektov zerozero. Práve od neho sa odvíjajú nielen ďalšie múdre rozhodnutia mesta, ale aj úvaha skupiny autorov Róbert Bakyta, Martin Kusý ml., Július Vass a Ľubomíra Blašková, ktorí projekt jaslí neuchopili len ako rekonštrukciu rodinného domu, resp. jeho konverziu, ale aj ako úlohu so širším priestorovým dosahom. Bezprostredná blízkosť oceňovaného mestského úradu architektov nabádala k rešpektu voči jeho vizuálnej dominancii, no mestský úrad je dotvorený aj verejným priestorom a práve ten sa rozhodli ďalej rozvíjať. Nadviazali pritom na prvotnú štúdiu od ateliéru 2021 a ich ideu v zmysle pôvodnej parcelácie do zadnej časti jaslí, akoby do zadného dvora, umiestniť menší parčík. Má podobu štvorcového nádvoria s okružným chodníkom z mlatu a centrálnou zeleňou s ovocnými stromami. Malý sad s lavičkami. Rajská záhrada, ktorú, skúsme dúfať, ocenia aj generácie Z a Alfa odchované na instantnom obsahu sociálnych sietí. Mesto týmto krokom získalo väčší rozsah verejných priestorov, vznikol tu akýsi klaster prepojených námestíčok s rozdielnou atmosférou. Na námestie pred úradom materiálovo nadväzuje aj vstupné predpolie jaslí, teda chodník. Architekti Bakyta, Kusý ml. a spol. ho pokryli metličkovým betónom s precízne identickým škárorezom à la zerozero.
03
Jasle sú teda prístupné z dvoch strán – z ulice a zo zadného dvora cez bránku v nízkom tehlovom múriku. Veľmi pôvabné, komorné a čisté riešenie. Tak ako čistý je aj celý objekt. Je biely. Áno, vedľa je biely mestský úrad a Bakyta, Kusý ml. s kolegami rozhodne nemali v úmysle ho prekričať. Ale úprimne, azda aj bez bieleho úradu by architekti pre jasle zvolili bielu fasádu. Biela je ušľachtilá, nevtieravá, neobťažuje, je pokorná a navyše v ateliéri B.K.P.Š, odkiaľ obaja autori pochádzajú, je biela predmetom dlhodobého skúmania. A nie je len jedna, je ich mnoho. Ak sa však zamýšľame nad priečeliami jaslí, okrem prostej bielej omietky vidíme aj betón. Betónové sú prefabrikáty okenných parapetov aj sokel. A aj toto "zavinila" budova mestského úradu so svojimi krásnymi vrúbkovanými podokennými betónovými prefabrikátmi, na ktoré sa architekti odvolávajú. Jasle sa však nechcú priateliť len s novým objektom úradu, ale aj s pôvodnou miestnou zástavbou s jej typickými prvkami. Strecha je nová, ale drobná pálená škridla, ktorá ju pokrýva, odkazuje na strechy starších rodinných domov v okolí. Rovnako aj stupňovité tehlové orámovanie štítu bolo v tomto kraji dobrým obyčajom, ktorý stojí za to udržiavať pri živote. Toto premyslené preväzovanie s okolím cez materiály a prvky funguje ako neviditeľné pradivo, ktoré sa napája na lokálne prostredie a vysiela jasný signál: tu som doma, patrím sem.
04
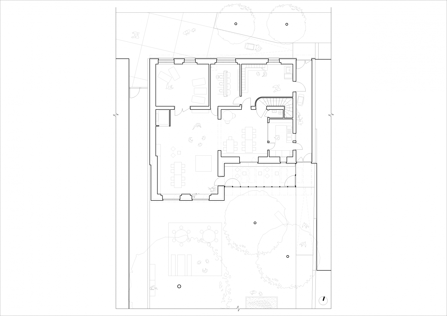
Rodinný dom, napriek úplnej zmene svojej funkcie, nezasiahli viac-menej žiadne radikálne stavebno-konštrukčné zásahy, ktoré by menili jeho charakteristické znaky. Architekti ho síce zbavili menšej prístavby smerom do záhrady a pribudla tam zasklená veranda, ale členenie priečelí a dokonca aj priestorový program zostali takmer v autentickom stave. Drevené okná sú presné repliky, vnútorné drevené okenice sú repasované, zachovaná zostala aj priechodnosť miestností, keďže tento dispozičný systém korešpondoval aj s prevádzkou jaslí. Na uličnej fasáde ubudli dvere do obchodu a nahradilo ich okno, ale ich miesto pripomína jemný vlys v betónovom sokli. Detail, ktorý si okoloidúci sotva všimne, a ak predsa, tak isto nabáda k zvedavosti. Nečakaná drobnosť ako pridaná hodnota.
05
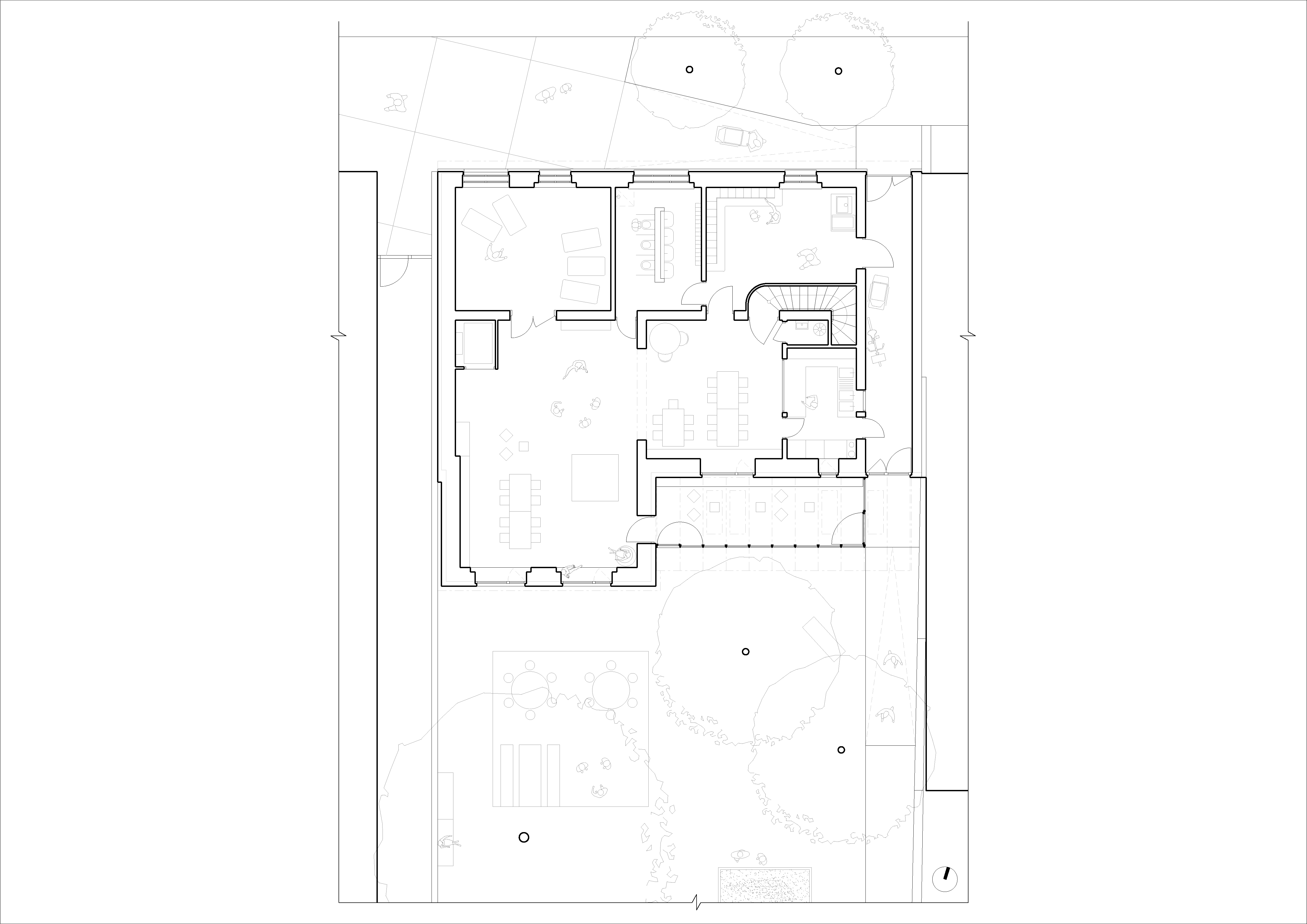
Prevádzku tvorí jednoduchý a prehľadný sled priestorov v postupnosti vstupná chodba, šatňa, hygiena, jedáleň s kuchyňou, herňa a spálnička. Chodba prebieha naprieč domom dozadu do záhrady, kde je pieskovisko, lavičky a ešte všeličo, čo sem navrhla krajinná architektka, no ešte to len čaká na zazelenenie a rozpuk. Vložený novotvar schodiska s pomerne výraznou zaoblenou drevenou stenou vedie hore do podkrovia, kde je otvorený priestor pre personál, hygienické zázemie, práčovňa a sklad. To je všetko. Ale vlastne ešte nie. Dôležité sú aj výhľady. Sú súčasťou života vo vnútri. A je na čo pozerať. Na ulici je ostrovček zo skupinkou vysokých ihličnanov, ktoré sa dajú vnímať aj z okien v podkroví a na opačnej strane domu je záhrada, ktorá keď dorastie, sľubuje farbistú scenériu.
06
Jasle v Leopoldove sú komplexným dielom vrátane nábytku. Autori sa vyhli premotivovanej farebnosti, k akej často zvádza téma detských zariadení, hoci ich nábytkové riešenia farebné sú, len zvolená škála pracuje zväčša s tlmenejšími odtieňmi a prírodnou dyhou. Mobiliár doplnili vstavanými prvkami parapetných lavíc, kde si deti môžu posedieť pri hre alebo len tak pozorovať premenlivú krajinku záhrady za oknom. Podstatou interiéru, to, čo určuje jeho výraz, však vôbec nie je nábytok, ale steny, stropy a svetlo, ktoré sa od nich odráža. A tu sme opäť pri bielej a jej pozoruhodnej schopnosti rafinovanej dramatizácie. Jasle sú biele aj zvnútra, ale tu sú v hre dva matné odtiene: spodný soklový umývateľný náter do výšky nábytku vo svetlejšom neutrálnom odtieni, na ktorý sa vyššie na stenách a stropoch napája lomená biela s jemnučkým okrovým nádychom (že by tzv. štokholmská?). No dobre, biela a biela, ale táto dvojhra úplne mení nudu bežných bielych stien na hrejivé divadlo viacerých nuáns belostných odtieňov podľa toho, ako na steny a strop dopadá svetlo. Skutočne prekvapivý efekt. A zároveň nanajvýš prirodzený, nenásilný, vyrovnaný, ako celý tento objekt zvonka aj zvnútra. Jasle v Leopoldove majú aj vďaka tejto zdržanlivosti v miere a forme architektonických zásahov v sebe istú samozrejmosť. I keď by sa dali urobiť na x ďalších spôsobov, ťažko môžeme konštatovať niečo iné, než to, že takto to malo byť, takto je to správne.
07
Čo sa to teda v Leopoldove prihodilo okrem toho, že má nové mestské jasle? Toto mestečko začína byť v kontexte tzv. architektonickej turistiky čoraz zaujímavejšie. Okrem mestského úradu (zerozero) a mestského parku (architekti Kopec, Zahradníčková, Džadoň) má jasle, ktoré sú vzácnym príkladom výborného prístupu k adaptácii staršieho rodinného domu, neďaleko sa už črtá vstupný objekt tenisových kurtov od štúdia Plural a čoskoro sa začne s prestavbou kina na kultúrne centrum, ktoré vysúťažili Bakyta, Kusý ml., Blašková a Krčméryová. To už nie je náhoda, to je jasný plán pracovať na kultivácii mesta prostredníctvom architektúry a z mestských prostriedkov. Naozaj stojí za to prísť sem a uvidieť, zažiť a premýšľať, ako je to možné.
Výsledok podrobnejšie predstavia autori:
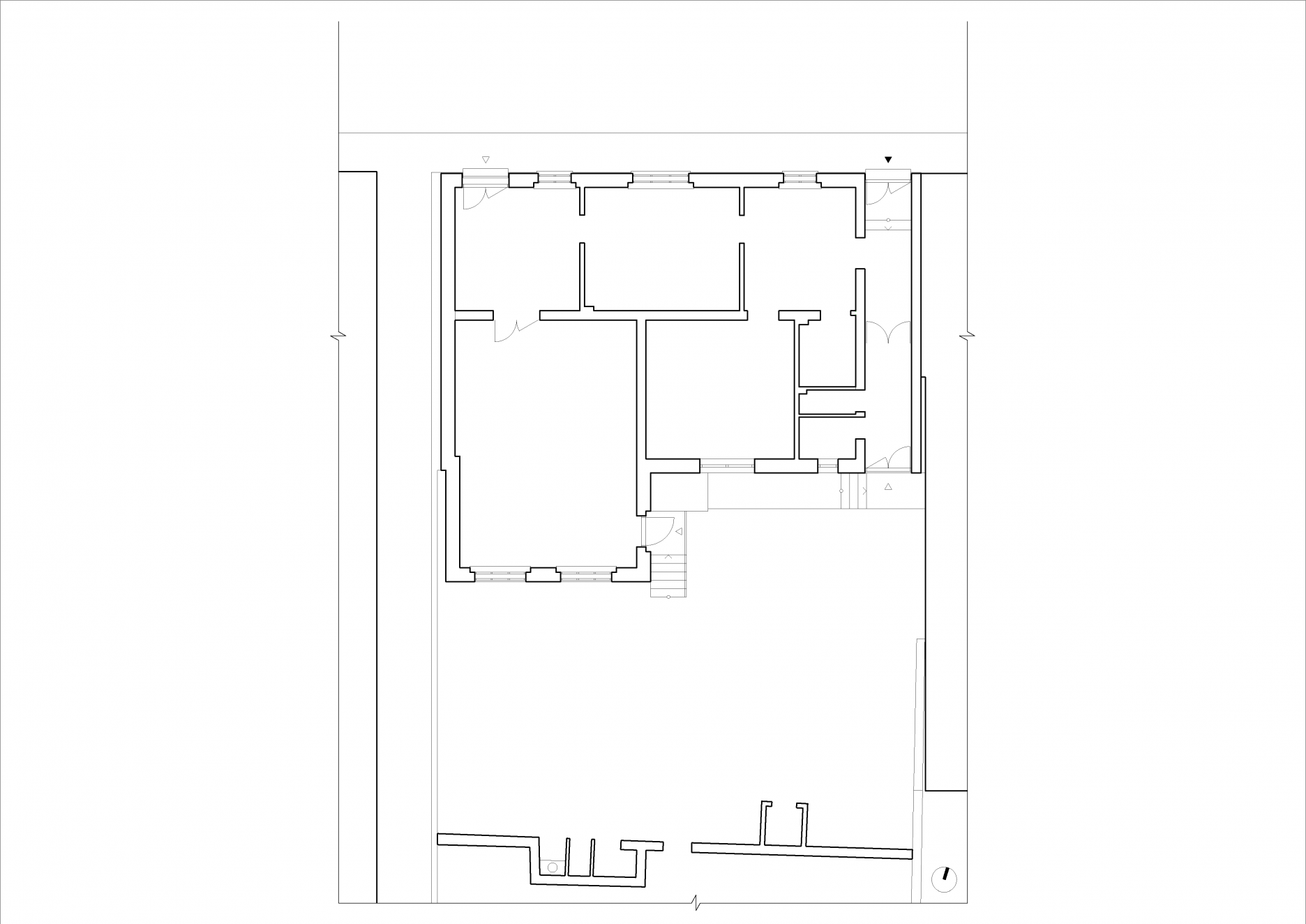
Východiskový vs. nový stav - porovnanie:
Podklady: Architekti BKPŠ
Fotografie: Matej Hakár
Text: Elena Alexy / časopis Projekt PROJEKT 01/2024
Použité materiály a riešenia:
Pálená strešná krytina TONDACH Steinbrück od spoločnosti Wienerbeger.